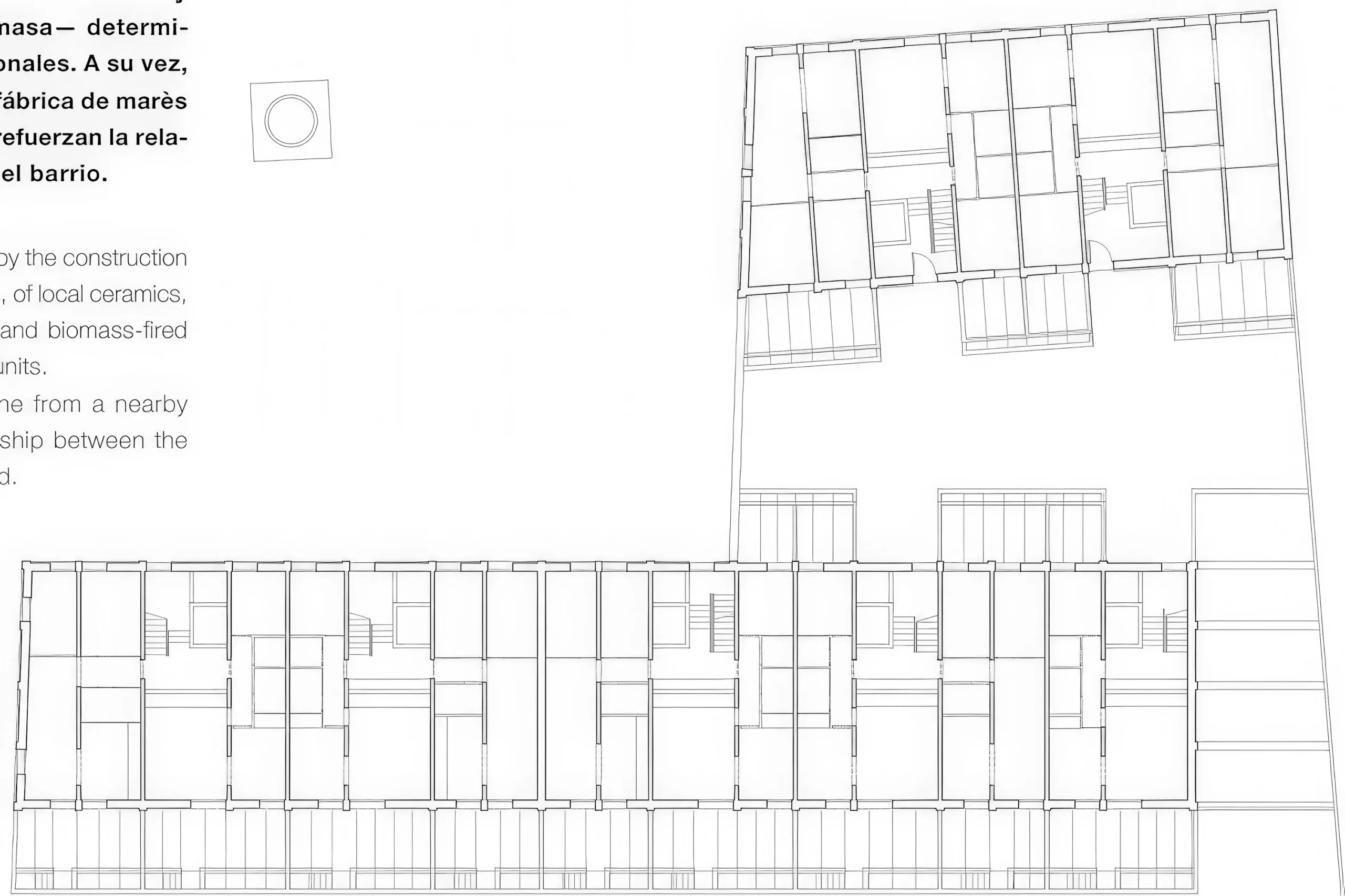
43 VPP Brotad sn / 43 Social Housing Units Brotad sn | OFICI ARQUITECTURA ARQUITECTES • 2026-01-20 下午12:04 • 住宅建筑设计, 公寓住宅设计 OFICI ARQUITECTURA设计的43 VPP Brotad sn社会住宅项目位于西班牙马略卡岛帕尔马市,通过改造历史纺织厂区,采用当地低影响材料和传统建造技术,在尊重工业遗产的同时创造43套保障性住房,展现了可持续城市更新的创新实践。 设计: ARQUITECTES 类型: 公寓住宅设计 功能: 独立住宅 风格: 可持续建筑 材料: 木材 石材 砖材 再生材料 尺度: 中型建筑 地点:帕尔马 时间: 2020年 项目概述 43 VPP Brotad sn社会住宅项目位于西班牙巴利阿里群岛马略卡岛帕尔马市Soledat社区,是对1873年建成的Can Ribes纺织厂区的改造更新。该项目包含43套社会住房单元,分为两个体量,设计始于2020年,旨在通过当代建筑语言重新诠释工业遗产价值。 设计理念 OFICI ARQUITECTURA的设计理念聚焦于历史遗产保护与气候应急响应的平衡。项目充分利用原有工业建筑特征,通过低影响本地材料的使用,将19世纪工业建筑遗产转化为当代社会住宅,在尊重场地历史文脉的同时回应环境可持续性需求。 空间与功能 43套社会住房单元被组织在两个相互呼应的建筑体量中,通过中央公共空间连接。住宅内部空间由承重墙系统和楼板结构定义,外部砂岩墙体强化了建筑与社区的视觉联系。入口设置在两个体量之间,强调了公共空间作为社区社会结构核心的作用。 材料与技术 项目采用本地砂岩、陶瓷砖材和木材等传统材料,结合现代建造技术。外墙使用附近采石场的砂岩砌块,结构墙体采用本地陶瓷材料,楼板系统使用木材和生物质燃料拱顶技术。保温系统采用回收棉板,体现了完整的可持续设计策略。 项目特色与启发 43 VPP Brotad sn项目的独特之处在于成功地将工业遗产转化为高品质社会住宅,展示了历史建筑适应性再利用的潜力。该项目为建筑师和城市开发者提供了如何在保护文化遗产的同时满足当代住房需求的实践范例。 设计团队 OFICI ARQUITECTURA是一家专注于建筑与城市设计的西班牙事务所,以其对历史文脉的敏感回应和可持续设计方法著称。团队在本项目中展现了将工业遗产转化为现代居住空间的专业能力,体现了其对地方材料与传统建造技术的深入理解。 项目概述 43 VPP Brotad sn社会住宅项目位于西班牙巴利阿里群岛马略卡岛帕尔马市Soledat社区,是对1873年建成的Can Ribes纺织厂区的改造更新。该项目包含43套社会住房单元,分为两个体量,设计始于2020年,旨在通过当代建筑语言重新诠释工业遗产价值。 设计理念 OFICI ARQUITECTURA的设计理念聚焦于历史遗产保护与气候应急响应的平衡。项目充分利用原有工业建筑特征,通过低影响本地材料的使用,将19世纪工业建筑遗产转化为当代社会住宅,在尊重场地历史文脉的同时回应环境可持续性需求。 空间与功能 43套社会住房单元被组织在两个相互呼应的建筑体量中,通过中央公共空间连接。住宅内部空间由承重墙系统和楼板结构定义,外部砂岩墙体强化了建筑与社区的视觉联系。入口设置在两个体量之间,强调了公共空间作为社区社会结构核心的作用。 材料与技术 项目采用本地砂岩、陶瓷砖材和木材等传统材料,结合现代建造技术。外墙使用附近采石场的砂岩砌块,结构墙体采用本地陶瓷材料,楼板系统使用木材和生物质燃料拱顶技术。保温系统采用回收棉板,体现了完整的可持续设计策略。 项目特色与启发 43 VPP Brotad sn项目的独特之处在于成功地将工业遗产转化为高品质社会住宅,展示了历史建筑适应性再利用的潜力。该项目为建筑师和城市开发者提供了如何在保护文化遗产的同时满足当代住房需求的实践范例。 设计团队 OFICI ARQUITECTURA是一家专注于建筑与城市设计的西班牙事务所,以其对历史文脉的敏感回应和可持续设计方法著称。团队在本项目中展现了将工业遗产转化为现代居住空间的专业能力,体现了其对地方材料与传统建造技术的深入理解。 本文来自 © ARQUITECTES, 发布于 © 建筑学院官方网站。 未经授权,禁止转载或摘编。 编辑版本版权归 © 建筑学院官方网站 所有, 设计、图纸及照片版权归设计方 © ARQUITECTES ↗ 所有。 查看作者在建筑学院发布的更多作品: ARQUITECTES @ 建筑学院官方网站 43 VPP Brotad snOFICI ARQUITECTURA工业遗产改造帕尔马住宅社会住宅设计 ARQUITECTES事务所 & 设计师 下载原图 收藏 0 关于作者 ARQUITECTES事务所 & 设计师 关注私信 6 文章 0 评论 0 粉丝 ARQUITECTES 是来自西班牙巴塞罗那的建筑事务所,以其严谨的可持续设计哲学闻名。他们擅长城市采矿策略,改造既有建筑,创造出充满自然光与通风的诗意空间。其官网 harquitectes.com 展示了曾获密斯奖提名的众多作品,是研究当代欧洲生态建筑的重要案例库。 巴利阿里群岛6 VPP Ses Veles / 6 Social Housing Units. Ses Veles | FORTUNY + ALVENTOSA MORELL ARQUITECTES巴利阿里群岛 上一篇 2026-01-19 上午11:38 48 VPP Olivera 62 / 48 Social Housing Units. Olivera 62 | LLOC ARQUITECTES 下一篇 2026-01-20 下午12:05 猜你喜欢 25 DOT Lope de Vega 3 / 25 Temporary Cohousing Units | HARQUITECTES 2026-02-09 住宅建筑设计 48 VPP Olivera 62 / 48 Social Housing Units. Olivera 62 | LLOC ARQUITECTES 2026-01-20 住宅建筑设计 波特苏雷社会住房 Porto Seguro Social Housing | 克里斯蒂安·凯雷兹|Christian Kerez 2025-12-01 公共建筑设计 6 VPP Ses Veles / 6 Social Housing Units. Ses Veles | FORTUNY + ALVENTOSA MORELL ARQUITECTES 2026-03-30 住宅建筑设计 23套住宅,特龙卡 23 Housing Units, Trignac | 拉卡东与瓦萨尔建筑师事务所|Lacaton & Vassal 2025-11-12 公共建筑设计 岳阳华菱港旅游码头游客中心 / 都市实践 2025-10-27 交通建筑 发表回复 请登录后评论...登录后才能评论 提交