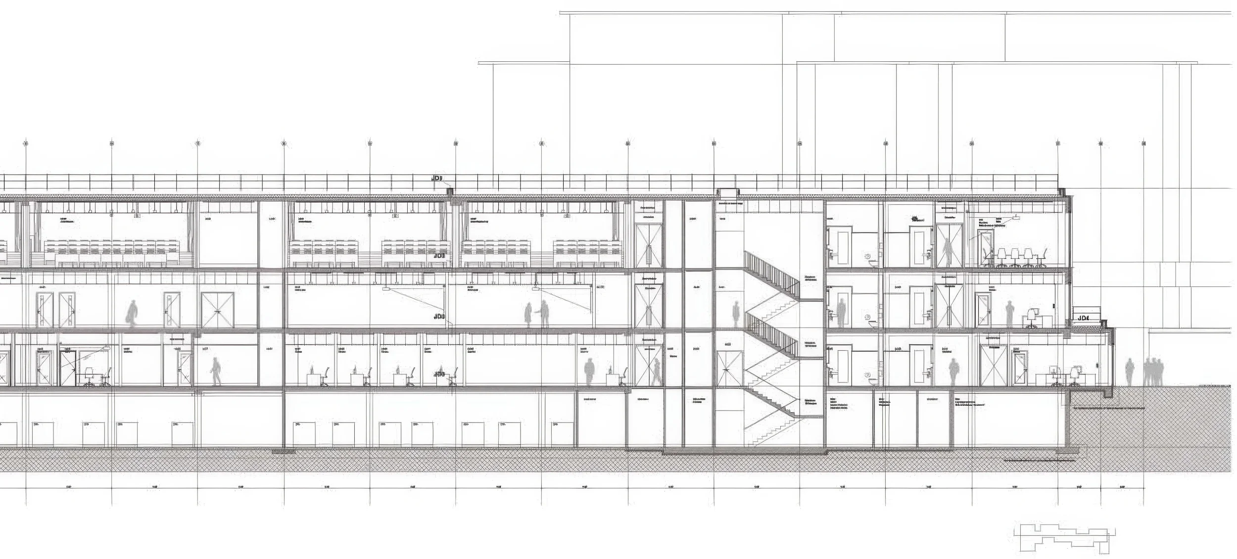
HEC Paris MBA 大楼| 大卫·奇珀菲尔德建筑事务所|David Chipperfield 大卫·奇珀菲尔德建筑事务所|David Chipperfield • 2025-11-26 上午8:50 • 公共建筑设计, 建筑师, 建筑设计, 文化建筑设计 HEC巴黎MBA建筑位于法国巴黎郊区茹伊昂若萨,是欧洲顶尖商学院HEC的新教学大楼。该项目由大卫·奇珀菲尔德建筑事务所设计,作为校园总体规划的首期工程,不仅容纳MBA课程教学设施和行政服务,还成为校园主入口。建筑采用铝制幕墙和清水混凝土材料,通过错落体块创造丰富的内外空间,成为连接学术环境与社区的界面。 设计: 大卫·奇珀菲尔德建筑事务所|David Chipperfield 类型: 文化建筑设计 功能: 独立住宅 风格: 当代建筑 材料: 混凝土 钢材 玻璃 金属板 尺度: 中型建筑 地点:法国 时间: 2000年 项目简介 HEC巴黎MBA建筑位于法国巴黎郊区茹伊昂若萨的HEC商学院校园内,是一座教育建筑,建筑面积未明确披露,设计建成于21世纪初,是大卫·奇珀菲尔德建筑事务所为应对学生和教职员工增长需求而设计的校园总体规划首期项目。 设计理念 设计团队以创造校园核心入口和强化HEC欧洲顶级商学院形象为核心思路,灵感来源于整合原有校园的分散布局。策略亮点包括通过错落体块整合建筑与环境,使用统一外皮包裹多样功能,以及将建筑定位为校园与社区的接口。 空间与功能 空间组织以中央大厅为社交枢纽,连接私人区域(如行政办公室)和公共区域(如礼堂和咖啡厅)。功能分区包括灵活的教学空间(如研讨室、哈佛式阶梯教室)、个人学习休息区,以及250座主礼堂。动线设计促进偶然相遇和非正式聚会,提升创意交流。 材料与技术 材料选择参考1960年代校园建筑,使用铝制幕墙外立面和内部清水混凝土。施工工艺包括垂直模块化幕墙和外部绝缘金属包层。结构策略利用混凝土热质量,结合混合自由冷却系统和铝网天花板,实现节能和自然通风。 设计团队 大卫·奇珀菲尔德建筑事务所是一家国际知名建筑事务所,以现代主义设计、材料真实性和可持续性著称,专注于文化、教育和商业项目,强调建筑与环境的和谐融合。 项目简介 HEC巴黎MBA建筑位于法国巴黎郊区茹伊昂若萨的HEC商学院校园内,是一座教育建筑,建筑面积未明确披露,设计建成于21世纪初,是大卫·奇珀菲尔德建筑事务所为应对学生和教职员工增长需求而设计的校园总体规划首期项目。 设计理念 设计团队以创造校园核心入口和强化HEC欧洲顶级商学院形象为核心思路,灵感来源于整合原有校园的分散布局。策略亮点包括通过错落体块整合建筑与环境,使用统一外皮包裹多样功能,以及将建筑定位为校园与社区的接口。 空间与功能 空间组织以中央大厅为社交枢纽,连接私人区域(如行政办公室)和公共区域(如礼堂和咖啡厅)。功能分区包括灵活的教学空间(如研讨室、哈佛式阶梯教室)、个人学习休息区,以及250座主礼堂。动线设计促进偶然相遇和非正式聚会,提升创意交流。 材料与技术 材料选择参考1960年代校园建筑,使用铝制幕墙外立面和内部清水混凝土。施工工艺包括垂直模块化幕墙和外部绝缘金属包层。结构策略利用混凝土热质量,结合混合自由冷却系统和铝网天花板,实现节能和自然通风。 设计团队 大卫·奇珀菲尔德建筑事务所是一家国际知名建筑事务所,以现代主义设计、材料真实性和可持续性著称,专注于文化、教育和商业项目,强调建筑与环境的和谐融合。 本文来自 © 大卫·奇珀菲尔德建筑事务所|David Chipperfield, 发布于 © 建筑学院官方网站。 未经授权,禁止转载或摘编。 编辑版本版权归 © 建筑学院官方网站 所有, 设计、图纸及照片版权归设计方 © 大卫·奇珀菲尔德建筑事务所|David Chipperfield ↗ 所有。 查看作者在建筑学院发布的更多作品: 大卫·奇珀菲尔德建筑事务所|David Chipperfield @ 建筑学院官方网站 HEC巴黎MBA建筑大卫·奇珀菲尔德巴黎教育建筑铝幕墙 大卫·奇珀菲尔德建筑事务所|David Chipperfield事务所 & 设计师 下载原图 收藏 0 关于作者 大卫·奇珀菲尔德建筑事务所|David Chipperfield事务所 & 设计师 关注私信 22 文章 0 评论 1 粉丝 大卫·奇珀菲尔德建筑事务所由2023年普利兹克奖得主大卫·奇珀菲尔德爵士于1985年创立,在伦敦、柏林、米兰、上海等地设有办公室。事务所以优雅克制、注重永恒感的设计风格闻名,尤其擅长文化建筑与历史建筑改造,代表作包括柏林新博物馆重建、上海西岸美术馆和洛克外滩源项目。 住宅及工作室,伦敦拉姆斯盖特区 House and Studio, Lambeth | 卡莫迪·格罗克建筑事务所|Carmody Groarke 上一篇 2025-11-26 上午12:50 Maggies中心,克劳瑟布鲁克医院 Maggie’s Centre at Clatterbridge Hospital | 卡莫迪·格罗克建筑事务所|Carmody Groarke 下一篇 2025-11-26 下午12:50 猜你喜欢 马岩松,一个陌生北京男人在巴黎的登场 2019-12-29 建筑设计 苹果香榭丽舍大街店 / 福斯特建筑事务所设计 2018-12-04 办公建筑设计 巴黎瓦伦汀诺男装店 Valentino Man Store, Paris | 大卫·奇珀菲尔德建筑事务所|David Chipperfield 2025-11-05 室内设计 论坛博物馆岛 Forum Museumsinsel | 大卫·奇珀菲尔德建筑事务所|David Chipperfield 2025-11-04 公共建筑设计 想象翁热——vincent callebaut设计的城市悬挂式花园 2018-03-22 住宅建筑设计 帕拉尔德·奥洛韦迪大学讲座厅 Lecture Halls for Pablo de Olavide University | MGM 建筑师事务所|MGM 2025-12-18 公共建筑设计 发表回复 请登录后评论...登录后才能评论 提交