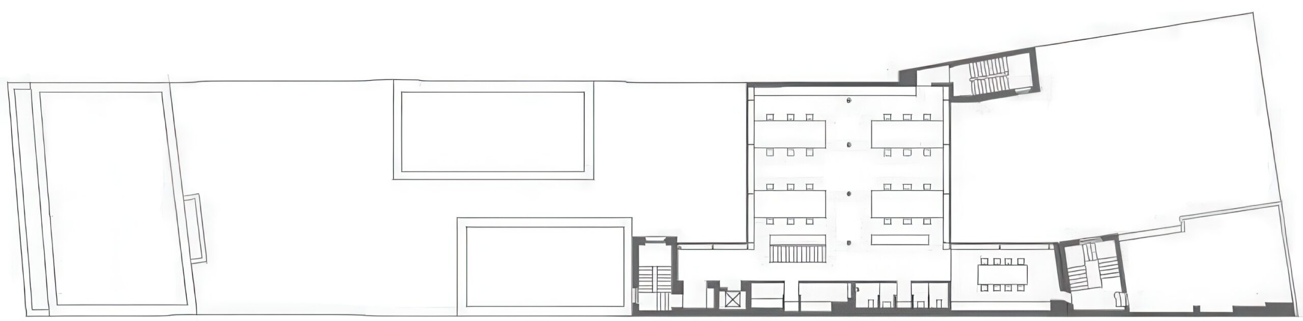
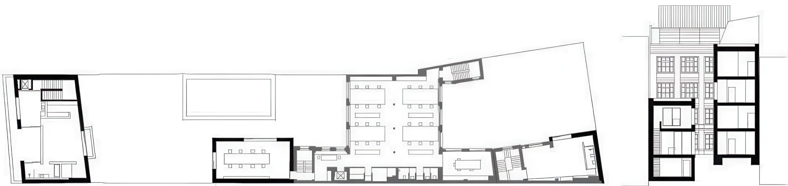
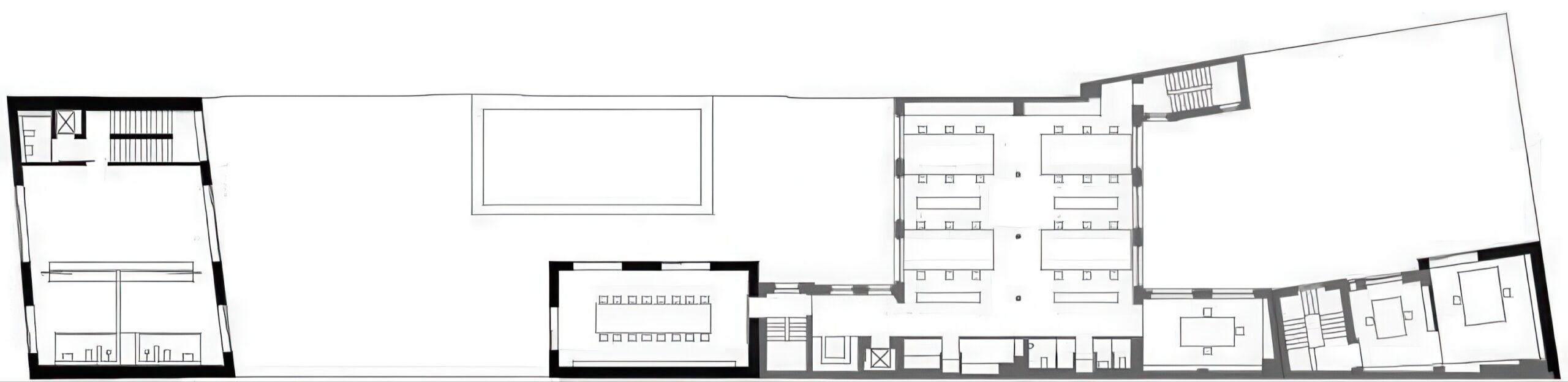
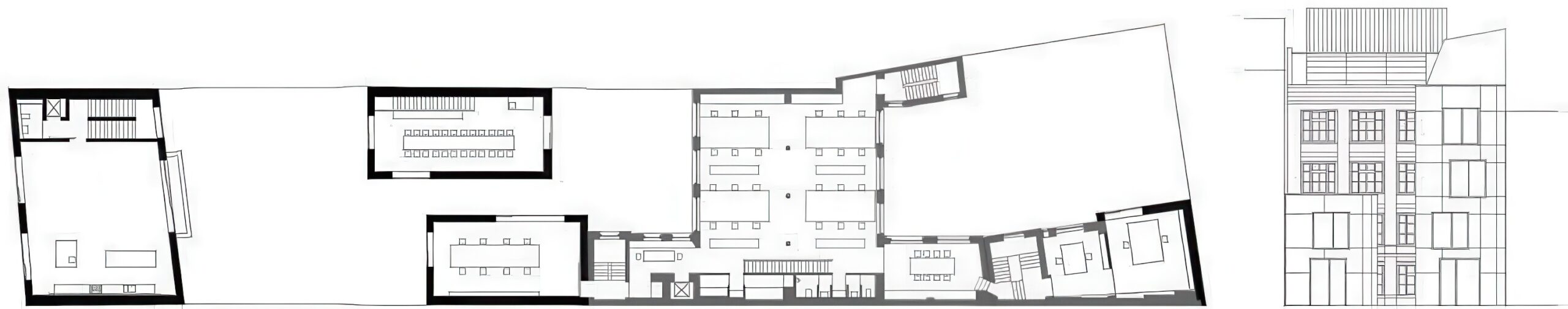
乔阿奇姆斯特大街校园 Joachimstrasse Campus | 大卫·奇珀菲尔德建筑事务所|David Chipperfield 大卫·奇珀菲尔德建筑事务所|David Chipperfield • 2025-11-24 上午8:50 • 公共建筑设计, 建筑师, 建筑设计, 文化建筑设计 乔阿奇姆斯特大街校园位于德国柏林市中心,是一座融合历史保护与现代设计的城市更新项目。该项目在二战严重受损的城市街区中,通过插入两个不同高度的立方体建筑,平衡了战前庭院结构与战后独立建筑的配置。设计保留了原有砖砌建筑的视野,同时创造了展览空间、办公区域和三个层次分明的庭院空间。 设计: 大卫·奇珀菲尔德建筑事务所|David Chipperfield 类型: 文化建筑设计 功能: 办公楼 风格: 当代建筑 材料: 混凝土 木材 石材 尺度: 中型建筑 地点:柏林 时间: 2015年 项目简介 乔阿奇姆斯特大街校园位于德国柏林市中心,是一座城市更新与办公建筑综合体。项目占地面积约一个城市街区,建筑面积未明确,设计始于1990年代,是柏林战后城市重建的重要案例。 设计理念 设计团队以尊重历史文脉为核心,在严重受损的二战街区中寻求新旧建筑的平衡。通过插入两个不同高度的立方体体量,既恢复了战前典型的庭院结构,又保留了原有建筑的视野,体现了对城市肌理的细腻回应。 空间与功能 项目包含临街建筑的展览空间和地下服务区,中部两个体量分别作为咖啡厅和办公空间。三个庭院从公共到私密依次排列:第一个庭院最为开放,第二个增加私密性,第三个成为花园空间,形成层次丰富的空间序列。 材料与技术 新建建筑采用全深度保温混凝土外墙,内外表面均保持裸露状态。所有墙体均为承重结构,支撑大跨度楼板,无需额外柱网支撑。地面使用抛光混凝土,门、隔墙和设施采用清漆木材或大理石,与混凝土形成质感对比。 设计团队 大卫·奇珀菲尔德建筑事务所是国际知名建筑设计事务所,以精致简约的设计语言和对历史文脉的尊重著称,在文化建筑、城市更新和办公建筑领域具有丰富经验。 项目简介 乔阿奇姆斯特大街校园位于德国柏林市中心,是一座城市更新与办公建筑综合体。项目占地面积约一个城市街区,建筑面积未明确,设计始于1990年代,是柏林战后城市重建的重要案例。 设计理念 设计团队以尊重历史文脉为核心,在严重受损的二战街区中寻求新旧建筑的平衡。通过插入两个不同高度的立方体体量,既恢复了战前典型的庭院结构,又保留了原有建筑的视野,体现了对城市肌理的细腻回应。 空间与功能 项目包含临街建筑的展览空间和地下服务区,中部两个体量分别作为咖啡厅和办公空间。三个庭院从公共到私密依次排列:第一个庭院最为开放,第二个增加私密性,第三个成为花园空间,形成层次丰富的空间序列。 材料与技术 新建建筑采用全深度保温混凝土外墙,内外表面均保持裸露状态。所有墙体均为承重结构,支撑大跨度楼板,无需额外柱网支撑。地面使用抛光混凝土,门、隔墙和设施采用清漆木材或大理石,与混凝土形成质感对比。 设计团队 大卫·奇珀菲尔德建筑事务所是国际知名建筑设计事务所,以精致简约的设计语言和对历史文脉的尊重著称,在文化建筑、城市更新和办公建筑领域具有丰富经验。 本文来自 © 大卫·奇珀菲尔德建筑事务所|David Chipperfield, 发布于 © 建筑学院官方网站。 未经授权,禁止转载或摘编。 编辑版本版权归 © 建筑学院官方网站 所有, 设计、图纸及照片版权归设计方 © 大卫·奇珀菲尔德建筑事务所|David Chipperfield ↗ 所有。 查看作者在建筑学院发布的更多作品: 大卫·奇珀菲尔德建筑事务所|David Chipperfield @ 建筑学院官方网站 乔阿奇姆斯特大街校园办公建筑大卫·奇珀菲尔德柏林城市更新混凝土建筑 大卫·奇珀菲尔德建筑事务所|David Chipperfield事务所 & 设计师 下载原图 收藏 0 关于作者 大卫·奇珀菲尔德建筑事务所|David Chipperfield事务所 & 设计师 关注私信 22 文章 0 评论 1 粉丝 大卫·奇珀菲尔德建筑事务所由2023年普利兹克奖得主大卫·奇珀菲尔德爵士于1985年创立,在伦敦、柏林、米兰、上海等地设有办公室。事务所以优雅克制、注重永恒感的设计风格闻名,尤其擅长文化建筑与历史建筑改造,代表作包括柏林新博物馆重建、上海西岸美术馆和洛克外滩源项目。 卢米埃大学Lyon 2大学校园学习中心 Learning Centre in Lumière Lyon 2 University campus | 布鲁瑟建筑事务所|Bruther 上一篇 2025-11-23 上午10:50 Okachimachi公寓 / Apartments in Okachimachi | 长谷川豪建筑事务所 下一篇 2025-11-24 下午12:50 猜你喜欢 巴塞罗那音乐和舞蹈学院 Ibiza and Formentera Music and Dance Conservatory | 阿尔弗雷多·帕亚|Alfredo Payá 2025-10-29 公共建筑设计 贝亲办公改造:关乎情感与心灵的设计 / COLORFULL 昱景设计 2021-01-05 办公建筑设计 捷克POHL总部 / Rusina Frei Architekti 2021-09-16 办公建筑设计 Next Hydroponic Plant Next Hydroponic Plant | 曼努埃尔·塞万提斯|Manuel Cervantes 2025-12-04 公共建筑设计 维勒花园住宅区 De Vere Gardens Residential | 大卫·奇珀菲尔德建筑事务所|David Chipperfield 2025-11-18 公共建筑设计 物理花园3实验室楼 ‘Physic Garden 3’Laboratory Building | 德莫拉建筑事务所|De Mora 2025-11-24 公共建筑设计 发表回复 请登录后评论...登录后才能评论 提交