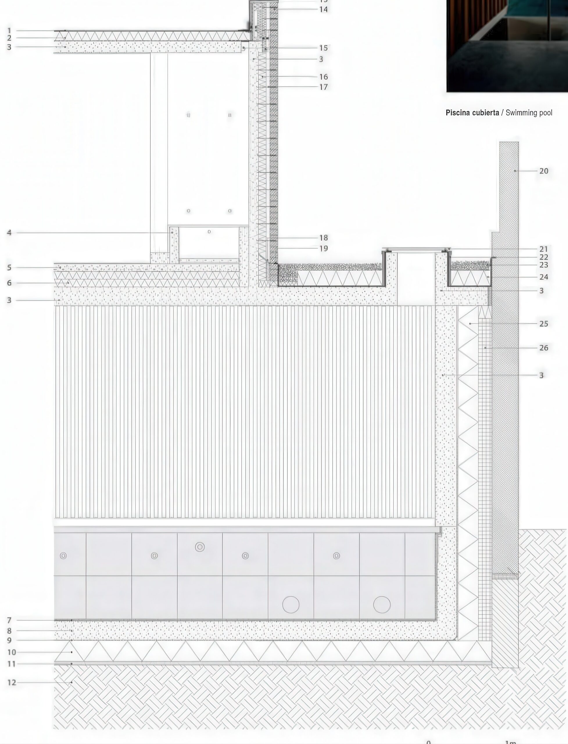
住宅及工作室,伦敦拉姆斯盖特区 House and Studio, Lambeth | 卡莫迪·格罗克建筑事务所|Carmody Groarke 卡莫迪·格罗克建筑事务所|Carmody Groarke • 2025-11-26 上午12:50 • 住宅室内设计, 公共建筑设计, 室内设计, 建筑设计, 文化建筑设计 该项目是位于伦敦南部拉姆斯盖特区的一座私人住宅与工作室综合体,由卡莫迪·格罗克建筑事务所设计。项目巧妙利用维多利亚时期工业仓库遗址,保留原有砖墙边界,新建单层住宅与工作室空间。设计通过白色抹灰砖墙、屋顶花园和清水混凝土结构,创造出雕塑般的建筑体量与静谧的城市隐居体验。 设计: 卡莫迪·格罗克建筑事务所|Carmody Groarke 类型: 文化建筑设计 功能: 独立住宅 风格: 当代建筑 材料: 混凝土 钢材 木材 玻璃 尺度: 小型建筑 地点:英国 时间: 2015年 项目简介 住宅及工作室项目位于英国伦敦拉姆斯盖特区,是一座私人住宅与工作室综合体,建筑面积约450平方米,设计于2015年,2018年建成。 设计理念 设计团队以”城市隐居”为核心概念,在维多利亚时期工业遗址上重新诠释传统与当代的对话。通过保留原有砖墙边界,新建建筑以雕塑般的体量嵌入场地,创造出既尊重历史文脉又具现代感的建筑表达。 空间与功能 项目采用垂直分层布局:地面层为工作室空间,上层为开放式住宅生活区。通过外部大楼梯连接屋顶花园与主要生活空间,内部设置秘密楼梯通往地下泳池与SPA区。空间组织强调流动性与私密性的平衡。 材料与技术 建筑采用白色抹灰砖墙塑造雕塑感体量,内部运用清水混凝土结构营造静谧氛围。保留原有工业砖墙,新建屋顶花园系统实现生态缓冲,地下室采用防水混凝土与保温隔热技术确保功能舒适性。 设计团队 卡莫迪·格罗克建筑事务所是英国知名建筑设计事务所,以精致细腻的材料运用和空间处理著称,擅长在历史环境中创造当代建筑作品,关注建筑与场所的深层对话。 项目简介 住宅及工作室项目位于英国伦敦拉姆斯盖特区,是一座私人住宅与工作室综合体,建筑面积约450平方米,设计于2015年,2018年建成。 设计理念 设计团队以”城市隐居”为核心概念,在维多利亚时期工业遗址上重新诠释传统与当代的对话。通过保留原有砖墙边界,新建建筑以雕塑般的体量嵌入场地,创造出既尊重历史文脉又具现代感的建筑表达。 空间与功能 项目采用垂直分层布局:地面层为工作室空间,上层为开放式住宅生活区。通过外部大楼梯连接屋顶花园与主要生活空间,内部设置秘密楼梯通往地下泳池与SPA区。空间组织强调流动性与私密性的平衡。 材料与技术 建筑采用白色抹灰砖墙塑造雕塑感体量,内部运用清水混凝土结构营造静谧氛围。保留原有工业砖墙,新建屋顶花园系统实现生态缓冲,地下室采用防水混凝土与保温隔热技术确保功能舒适性。 设计团队 卡莫迪·格罗克建筑事务所是英国知名建筑设计事务所,以精致细腻的材料运用和空间处理著称,擅长在历史环境中创造当代建筑作品,关注建筑与场所的深层对话。 本文来自 © 卡莫迪·格罗克建筑事务所|Carmody Groarke, 发布于 © 建筑学院官方网站。 未经授权,禁止转载或摘编。 编辑版本版权归 © 建筑学院官方网站 所有, 设计、图纸及照片版权归设计方 © 卡莫迪·格罗克建筑事务所|Carmody Groarke ↗ 所有。 查看作者在建筑学院发布的更多作品: 卡莫迪·格罗克建筑事务所|Carmody Groarke @ 建筑学院官方网站 伦敦住宅设计住宅及工作室卡莫迪·格罗克清水混凝土砖墙建筑 卡莫迪·格罗克建筑事务所|Carmody Groarke事务所 & 设计师 下载原图 收藏 0 关于作者 卡莫迪·格罗克建筑事务所|Carmody Groarke事务所 & 设计师 关注私信 15 文章 0 评论 0 粉丝 卡莫迪·格罗克(Carmody Groarke)是一家位于伦敦的建筑事务所,由凯文·卡莫迪(Kevin Carmody)和安迪·格罗克(Andy Groarke)于2006年共同创立。该事务所以其在国际范围内开展的一系列艺术、文化和遗产项目而闻名。他们善于通过精巧的建筑介入,对特定的场地文脉与历史做出深刻而细腻的当代回应,其作品范围涵盖大型公共装置、美术馆、酒店以及私人住宅等多个领域,形成了独特的设计语言。 Gotanda的房子 / House in Gotanda | 长谷川豪建筑事务所 上一篇 2025-11-25 上午8:50 拉韦雷利城堡中的卡斯特罗索非兹科。 Ravellins of Castello Sforzesco | 大卫·奇珀菲尔德建筑事务所|David Chipperfield 下一篇 2025-11-26 上午8:50 猜你喜欢 Maggies中心,克劳瑟布鲁克医院 Maggie’s Centre at Clatterbridge Hospital | 卡莫迪·格罗克建筑事务所|Carmody Groarke 2025-11-26 公共建筑设计 伯吉岛游泳池楼 Burgh Island Pool House | 卡莫迪·格罗克建筑事务所|Carmody Groarke 2025-11-27 公共建筑设计 Studio East Dining | 卡莫迪·格罗克建筑事务所|Carmody Groarke 2025-11-27 公共建筑设计 临时马蒂斯博物馆 马蒂斯博物馆 Temporary Museum for Charles Rennie Mackintosh’s Hill House | 卡莫迪·格罗克建筑事务所|Carmody Groarke 2025-11-27 公共建筑设计 菲茨罗维亚房子 Fitzrovia House | 卡莫迪·格罗克建筑事务所|Carmody Groarke 2025-11-27 住宅室内设计 瓦德塞登庄园音乐厅 Waddesdon Manor Pavilion | 卡莫迪·格罗克建筑事务所|Carmody Groarke 2025-11-06 公共建筑设计 发表回复 请登录后评论...登录后才能评论 提交