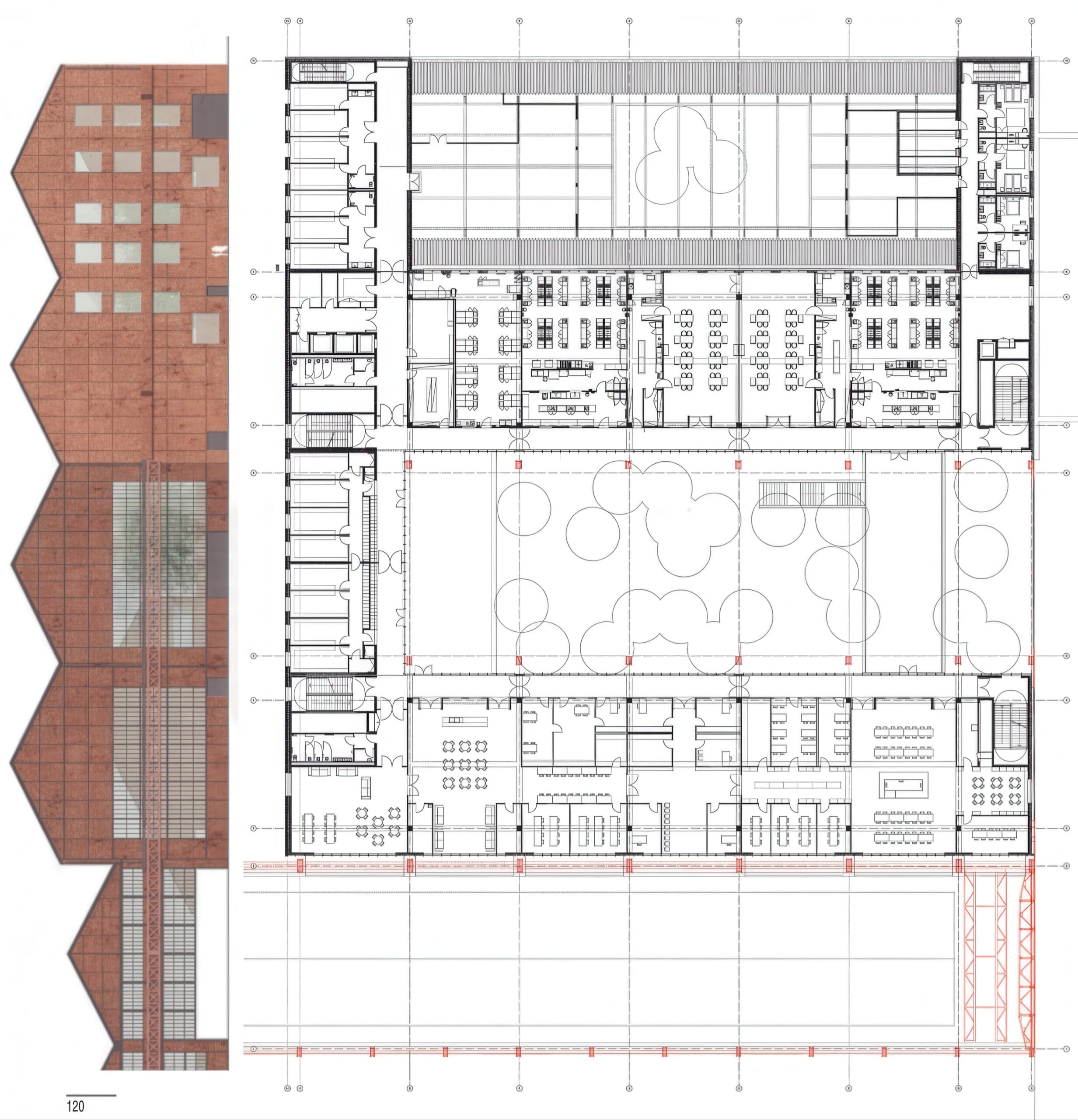
里尔酒店学院 Lycée Hôtelier de Lille | 卡鲁索·圣约翰建筑事务所|Caruso St John 卡鲁索·圣约翰建筑事务所|Caruso St John • 2025-12-02 上午12:50 • 公共建筑设计, 建筑师, 建筑设计, 文化建筑设计 里尔酒店学院是卡鲁索·圣约翰建筑事务所在法国里尔设计的职业教育建筑项目。该项目通过对历史工厂建筑的改造与更新,实现了工业遗产的活化利用。设计保留了原有建筑的史诗尺度与浪漫特质,同时植入新的教育功能空间,创造了一个兼具历史记忆与现代教育需求的学习环境。 设计: 卡鲁索·圣约翰建筑事务所|Caruso St John 类型: 文化建筑设计 功能: 学校 风格: 当代建筑 材料: 混凝土 钢材 玻璃 砖材 尺度: 大型建筑 地点:法国 时间: 2000年 项目简介 里尔酒店学院位于法国里尔,是一座由历史工厂改造而成的职业教育建筑,建筑面积未公开,设计建成于21世纪初。 设计理念 设计团队采用材料转化与类型连续性的双重策略,在保留原有工厂建筑完整性的基础上,通过轻触式修复凸显其史诗尺度与历史价值,新建筑以实用主义原则与原有结构形成构造与材料的和谐对话。 空间与功能 项目遵循原有工厂结构的足迹组织空间,在FCB场地与城市交界处设置新建筑群,包含体育馆、学生宿舍和教职工住宅,这些功能自然连接了周边社区与新兴城市街区。 材料与技术 设计注重材料的选择与构造表达,新建筑与原有结构共享构造特征和材料语言,通过精心的修复工艺实现历史建筑与现代功能的完美融合。 设计团队 卡鲁索·圣约翰建筑事务所是英国知名建筑事务所,以其对历史建筑改造和文化建筑设计的深刻理解而闻名,作品注重材料表达与空间体验。 项目简介 里尔酒店学院位于法国里尔,是一座由历史工厂改造而成的职业教育建筑,建筑面积未公开,设计建成于21世纪初。 设计理念 设计团队采用材料转化与类型连续性的双重策略,在保留原有工厂建筑完整性的基础上,通过轻触式修复凸显其史诗尺度与历史价值,新建筑以实用主义原则与原有结构形成构造与材料的和谐对话。 空间与功能 项目遵循原有工厂结构的足迹组织空间,在FCB场地与城市交界处设置新建筑群,包含体育馆、学生宿舍和教职工住宅,这些功能自然连接了周边社区与新兴城市街区。 材料与技术 设计注重材料的选择与构造表达,新建筑与原有结构共享构造特征和材料语言,通过精心的修复工艺实现历史建筑与现代功能的完美融合。 设计团队 卡鲁索·圣约翰建筑事务所是英国知名建筑事务所,以其对历史建筑改造和文化建筑设计的深刻理解而闻名,作品注重材料表达与空间体验。 本文来自 © 卡鲁索·圣约翰建筑事务所|Caruso St John, 发布于 © 建筑学院官方网站。 未经授权,禁止转载或摘编。 编辑版本版权归 © 建筑学院官方网站 所有, 设计、图纸及照片版权归设计方 © 卡鲁索·圣约翰建筑事务所|Caruso St John ↗ 所有。 查看作者在建筑学院发布的更多作品: 卡鲁索·圣约翰建筑事务所|Caruso St John @ 建筑学院官方网站 卡鲁索·圣约翰工业遗产改造法国里尔职业教育建筑里尔酒店学院 卡鲁索·圣约翰建筑事务所|Caruso St John事务所 & 设计师 下载原图 收藏 0 关于作者 卡鲁索·圣约翰建筑事务所|Caruso St John事务所 & 设计师 关注私信 20 文章 0 评论 0 粉丝 卡鲁索·圣约翰建筑事务所(Caruso St John)是成立于1990年的英国知名建筑事务所,由亚当·卡鲁索(Adam Caruso)和彼得·圣约翰(Peter St John)合伙创立。该事务所以其深刻的概念思考、对历史文脉的尊重及精湛的材料运用而闻名于世,致力于创造“可随岁月流转缓慢感知的、拥有情感内容的建筑”。其代表作——伦敦纽波特街美术馆(Newport Street Gallery)曾荣获2016年英国斯特林建筑奖,砖屋(Brick House)和沃尔索尔新艺术画廊等项目也曾入围该奖项。 国家博物馆(Qatar National Museum) National Museum of Qatar | 让·努维尔建筑事务所|Jean Nouvel 上一篇 2025-12-01 下午12:02 纽约街艺术博物馆 Newport Street Gallery | 卡鲁索·圣约翰建筑事务所|Caruso St John 下一篇 2025-12-02 上午8:50 猜你喜欢 43 VPP Brotad sn / 43 Social Housing Units Brotad sn | OFICI ARQUITECTURA 2026-01-20 住宅建筑设计 柏林艺术家之家 House for an Artist, Berlin | 卡鲁索·圣约翰建筑事务所|Caruso St John 2025-11-22 公共建筑设计 罗马别墅博物馆 Museum for a Roman Villa | 卡鲁索·圣约翰建筑事务所|Caruso St John 2025-12-04 公共建筑设计 重构斯德哥尔摩市图书馆项目 Restructuring Stockholm City Library | 卡鲁索·圣约翰建筑事务所|Caruso St John 2025-12-07 公共建筑设计 威尼斯国际建筑双年展,英国馆,2018年,威尼斯 Island, British Pavilion,Biennale Architettura 2018, Venice | 卡鲁索·圣约翰建筑事务所|Caruso St John 2025-12-11 公共建筑设计 纽约街艺术博物馆 Newport Street Gallery | 卡鲁索·圣约翰建筑事务所|Caruso St John 2025-12-02 公共建筑设计 发表回复 请登录后评论...登录后才能评论 提交