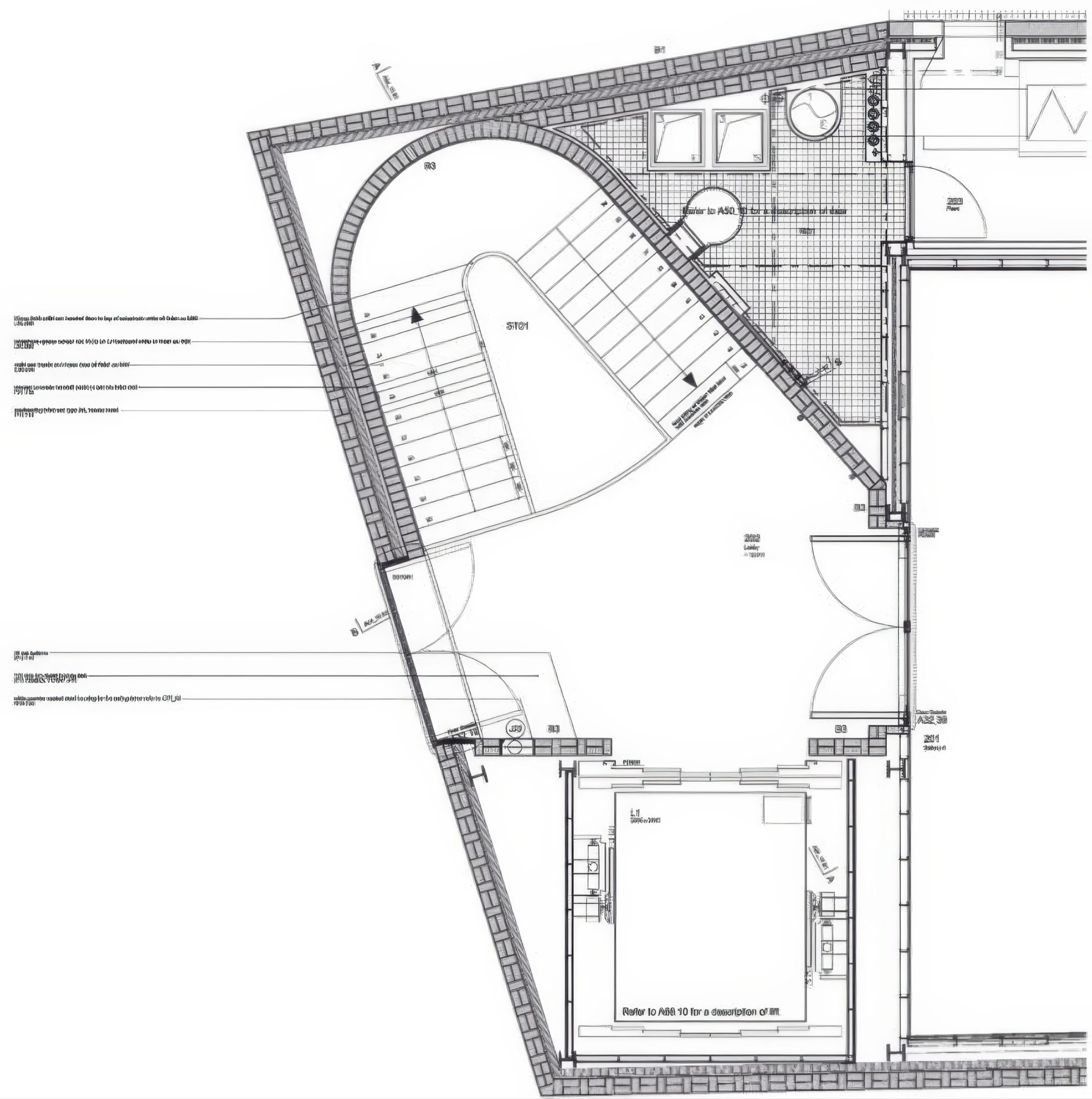
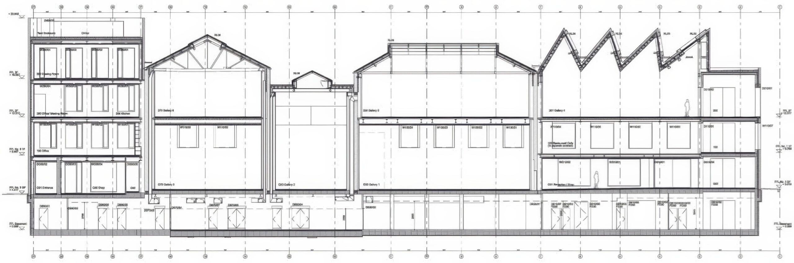
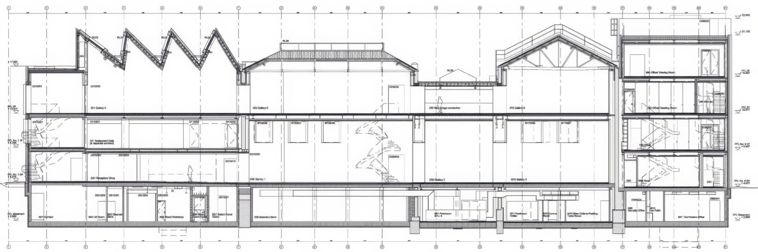
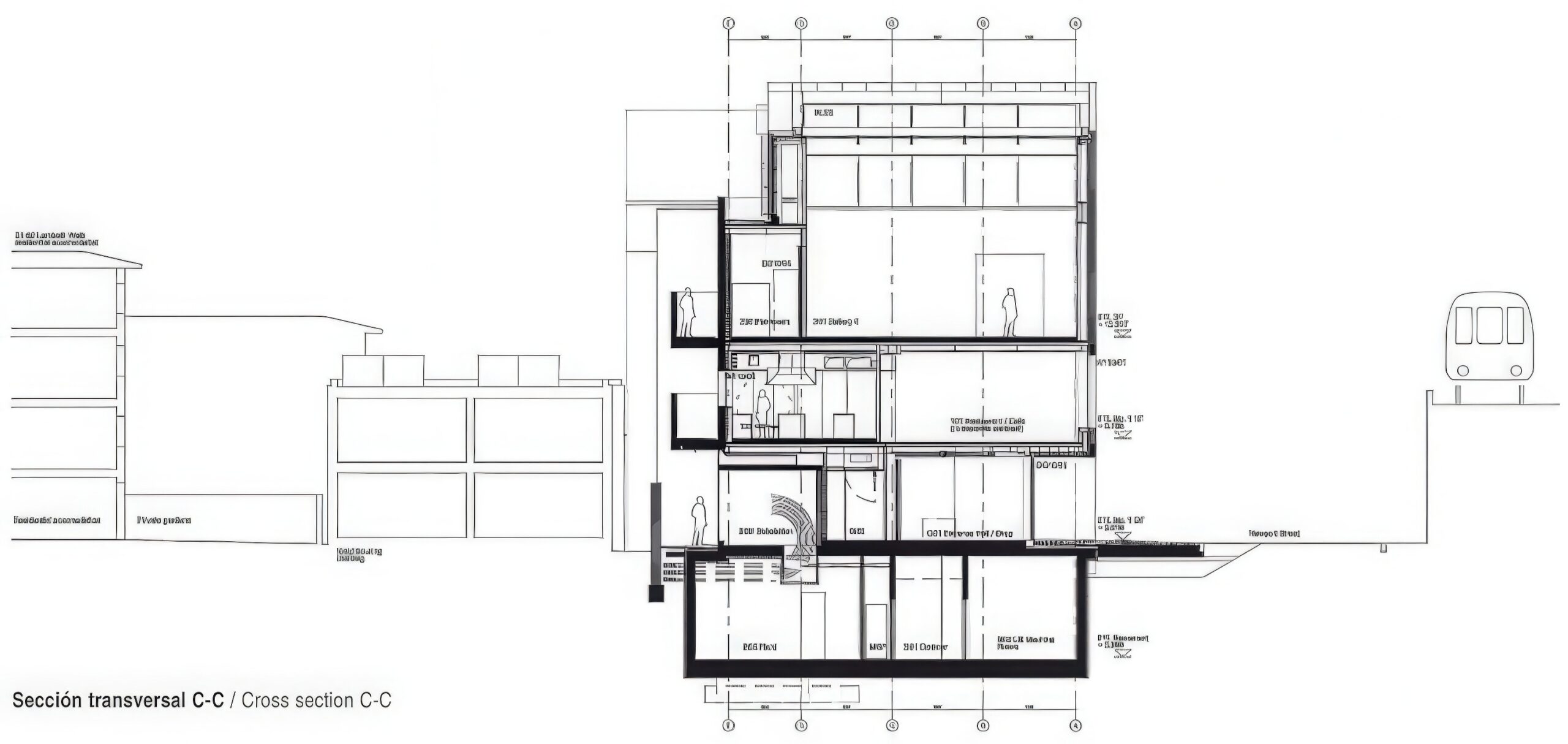
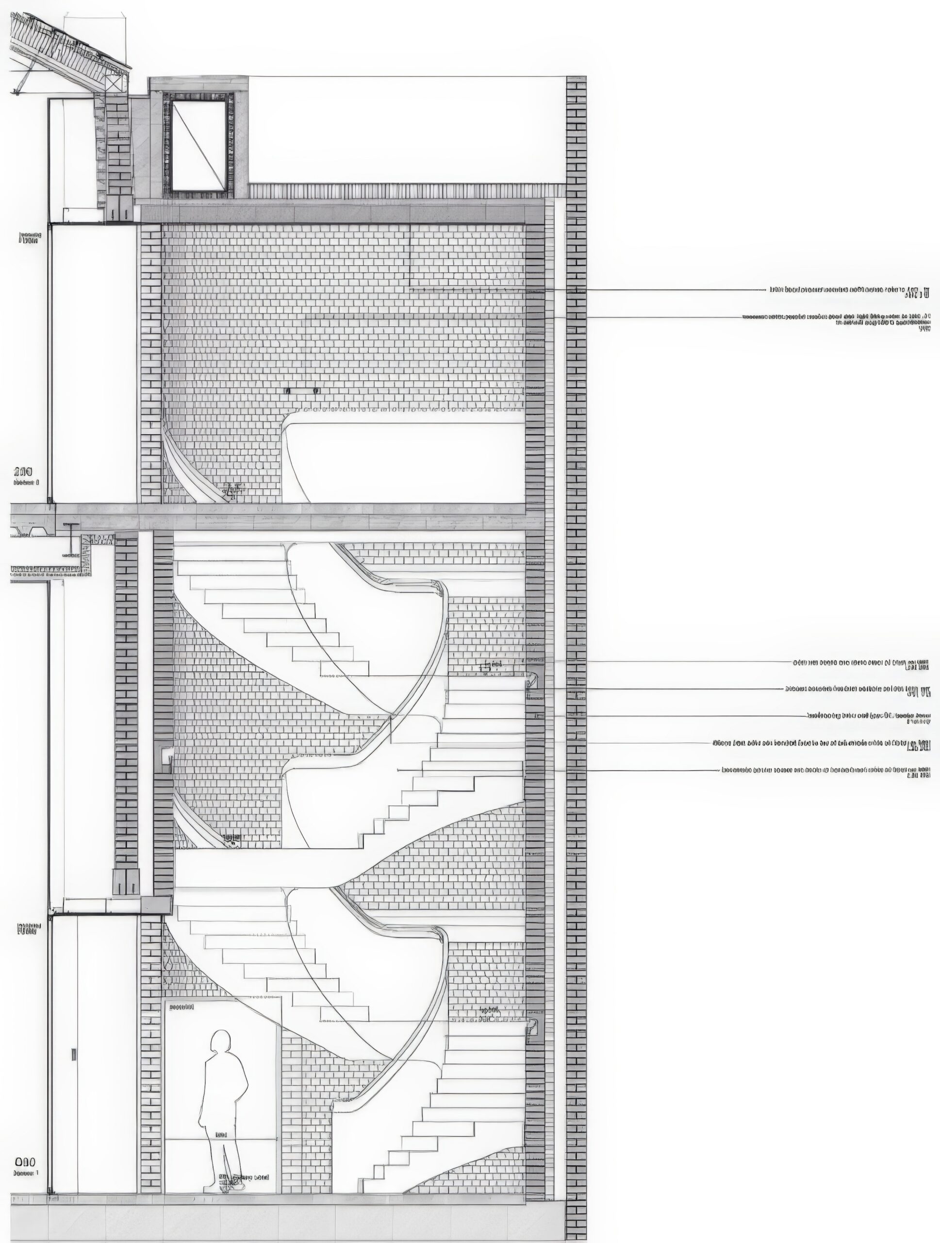
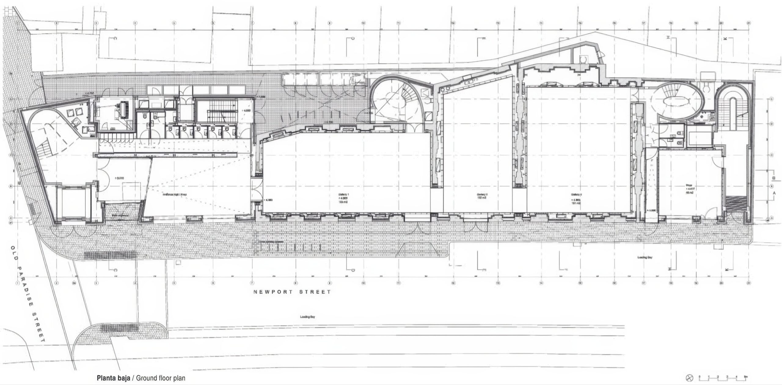
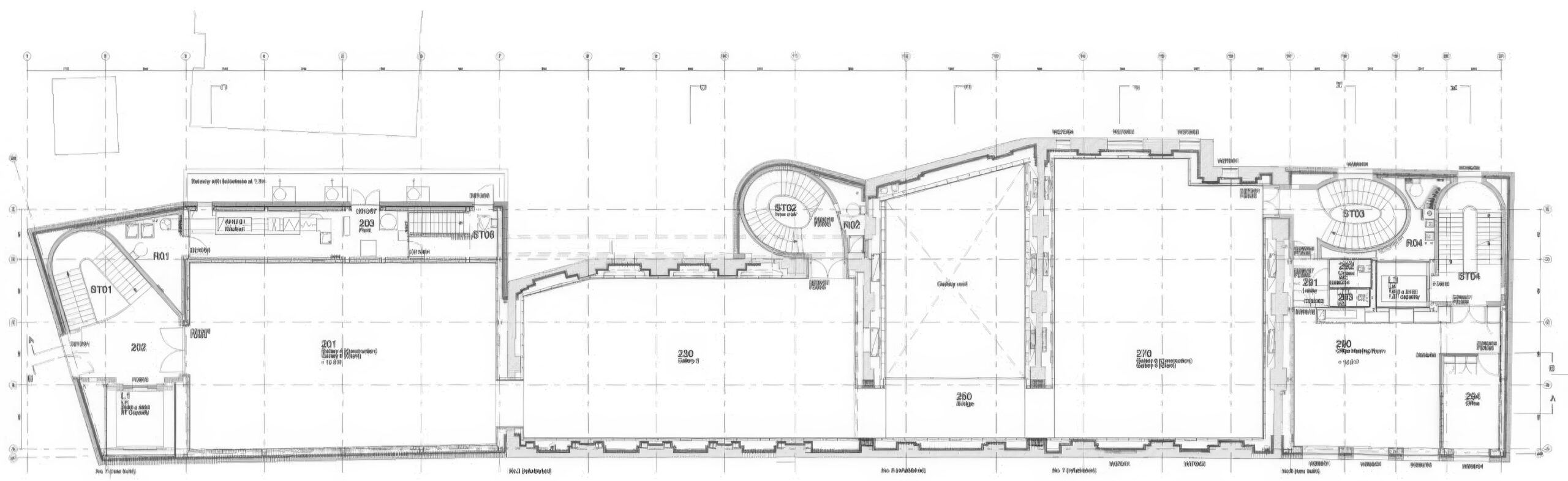
纽约街艺术博物馆 Newport Street Gallery | 卡鲁索·圣约翰建筑事务所|Caruso St John 卡鲁索·圣约翰建筑事务所|Caruso St John • 2025-12-02 上午8:50 • 公共建筑设计, 建筑师, 建筑设计, 文化建筑设计 纽约街艺术博物馆位于伦敦沃克斯豪尔区,由卡鲁索·圣约翰建筑事务所设计,将维多利亚时期的受保护联排车间改造为当代艺术画廊。项目保留了原有建筑特色,新增两栋建筑形成连续街面,采用淡红色砖材统一立面。内部设有三层展览空间、餐厅和办公区,通过螺旋楼梯和电梯连接,全年免费向公众开放。 设计: 卡鲁索·圣约翰建筑事务所|Caruso St John 类型: 文化建筑设计 功能: 博物馆 风格: 当代建筑 材料: 混凝土 钢材 玻璃 砖材 尺度: 中型建筑 地点:纽约 时间: 2015年 项目简介 纽约街艺术博物馆位于英国伦敦沃克斯豪尔区,是一座由维多利亚时期车间改造而成的当代艺术画廊。项目建筑面积约3000平方米,包含五栋联排建筑,其中三栋为历史保护建筑,两栋为新建建筑。设计于2015年完成。 设计理念 卡鲁索·圣约翰建筑事务所采用新旧融合的设计策略,在尊重历史建筑的基础上进行创新。设计延续了维多利亚车间独特的立面比例,新建部分采用匹配的淡红色砖材,形成统一而富有变化的街道立面,体现了对工业遗产的当代诠释。 空间与功能 建筑包含三层连续展览空间,每层设有三个主要画廊,可灵活适应不同规模的展览需求。空间通过新建螺旋楼梯和大型电梯垂直连接,底层设有餐厅、商店和办公区,提供完整的艺术体验功能。 材料与技术 项目采用淡红色硬质砖材与历史建筑立面相协调,内部保留原有结构特征,结合现代建造技术。屋顶天窗为上层画廊提供自然采光,水磨石地面镶嵌装饰细节,展现精致的材料工艺。 设计团队 卡鲁索·圣约翰建筑事务所是英国知名建筑事务所,以文化建筑和城市更新项目著称,擅长在历史语境中创造当代建筑表达,作品注重材料质感和空间体验。 项目简介 纽约街艺术博物馆位于英国伦敦沃克斯豪尔区,是一座由维多利亚时期车间改造而成的当代艺术画廊。项目建筑面积约3000平方米,包含五栋联排建筑,其中三栋为历史保护建筑,两栋为新建建筑。设计于2015年完成。 设计理念 卡鲁索·圣约翰建筑事务所采用新旧融合的设计策略,在尊重历史建筑的基础上进行创新。设计延续了维多利亚车间独特的立面比例,新建部分采用匹配的淡红色砖材,形成统一而富有变化的街道立面,体现了对工业遗产的当代诠释。 空间与功能 建筑包含三层连续展览空间,每层设有三个主要画廊,可灵活适应不同规模的展览需求。空间通过新建螺旋楼梯和大型电梯垂直连接,底层设有餐厅、商店和办公区,提供完整的艺术体验功能。 材料与技术 项目采用淡红色硬质砖材与历史建筑立面相协调,内部保留原有结构特征,结合现代建造技术。屋顶天窗为上层画廊提供自然采光,水磨石地面镶嵌装饰细节,展现精致的材料工艺。 设计团队 卡鲁索·圣约翰建筑事务所是英国知名建筑事务所,以文化建筑和城市更新项目著称,擅长在历史语境中创造当代建筑表达,作品注重材料质感和空间体验。 本文来自 © 卡鲁索·圣约翰建筑事务所|Caruso St John, 发布于 © 建筑学院官方网站。 未经授权,禁止转载或摘编。 编辑版本版权归 © 建筑学院官方网站 所有, 设计、图纸及照片版权归设计方 © 卡鲁索·圣约翰建筑事务所|Caruso St John ↗ 所有。 查看作者在建筑学院发布的更多作品: 卡鲁索·圣约翰建筑事务所|Caruso St John @ 建筑学院官方网站 伦敦建筑卡鲁索·圣约翰砖材立面纽约街艺术博物馆艺术画廊 卡鲁索·圣约翰建筑事务所|Caruso St John事务所 & 设计师 下载原图 收藏 0 关于作者 卡鲁索·圣约翰建筑事务所|Caruso St John事务所 & 设计师 关注私信 20 文章 0 评论 0 粉丝 卡鲁索·圣约翰建筑事务所(Caruso St John)是成立于1990年的英国知名建筑事务所,由亚当·卡鲁索(Adam Caruso)和彼得·圣约翰(Peter St John)合伙创立。该事务所以其深刻的概念思考、对历史文脉的尊重及精湛的材料运用而闻名于世,致力于创造“可随岁月流转缓慢感知的、拥有情感内容的建筑”。其代表作——伦敦纽波特街美术馆(Newport Street Gallery)曾荣获2016年英国斯特林建筑奖,砖屋(Brick House)和沃尔索尔新艺术画廊等项目也曾入围该奖项。 里尔酒店学院 Lycée Hôtelier de Lille | 卡鲁索·圣约翰建筑事务所|Caruso St John 上一篇 2025-12-02 上午12:50 资讯 /房地产开发与设计硕士,宾大新开一年MSD-PDD项目。 下一篇 2025-12-02 下午6:05 猜你喜欢 艺术 sheds Art Shed | MARKLEE 建筑事务所|MARKLEE 2025-10-26 公共建筑设计 罗马别墅博物馆 Museum for a Roman Villa | 卡鲁索·圣约翰建筑事务所|Caruso St John 2025-12-04 公共建筑设计 Turner Contemporary | 大卫·奇珀菲尔德建筑事务所|David Chipperfield 2025-11-27 公共建筑设计 A Mews Collection | 6a 建筑事务所 2025-10-22 建筑师设计 威尼斯国际建筑双年展,英国馆,2018年,威尼斯 Island, British Pavilion,Biennale Architettura 2018, Venice | 卡鲁索·圣约翰建筑事务所|Caruso St John 2025-12-11 公共建筑设计 荷恩美术馆,德昂学院 The Heong Gallery, Downing College | 卡鲁索·圣约翰建筑事务所|Caruso St John 2025-11-30 公共建筑设计 发表回复 请登录后评论...登录后才能评论 提交