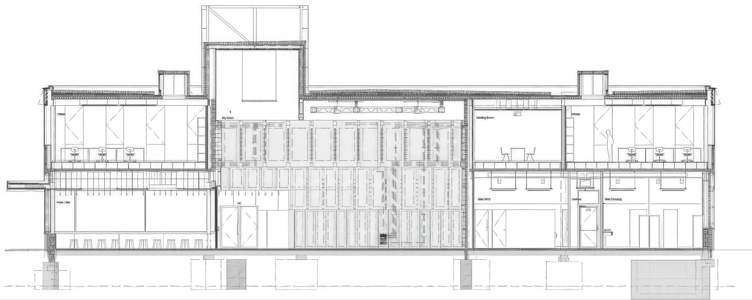
利物浦歌剧院 Liverpool Philharmonic Hall | 卡鲁索·圣约翰建筑事务所|Caruso St John 卡鲁索·圣约翰建筑事务所|Caruso St John • 2025-12-03 上午8:50 • 公共建筑设计, 建筑师, 建筑设计, 文化建筑设计 利物浦歌剧院是英国利物浦市的二级保护建筑,由卡鲁索·圣约翰建筑事务所于2012年进行改造扩建。这座1939年建成的装饰艺术风格音乐厅经过精心修复,保留了原有建筑特色,同时更新了舞台设备、照明系统和环境服务设施,为这座历史建筑注入了新的活力。 设计: 卡鲁索·圣约翰建筑事务所|Caruso St John 类型: 文化建筑设计 功能: 音乐厅 风格: 当代建筑 材料: 混凝土 钢材 玻璃 尺度: 中型建筑 地点:英国 时间: 2012年 项目简介 利物浦歌剧院位于英国利物浦市,是一座二级保护的音乐厅建筑,始建于1939年,由卡鲁索·圣约翰建筑事务所于2012年完成改造扩建工程。 设计理念 设计团队采用三部分相互关联的策略:轻微修复公共区域,全面更新舞台设备,彻底改造后台设施。新建筑延续了原有建筑的节日氛围,通过宽大的转角窗户、醒目的遮篷和标识系统,将音乐厅的活力延伸至周边城市。 空间与功能 项目包含公共休息区、主观众厅、舞台区域以及后台设施。新建部分整合了第二表演空间、化妆间和办公区域,形成紧凑统一的体量,优化了功能流线和使用体验。 材料与技术 在保留原有室内建筑的基础上,全面更换了舞台机械、照明系统和环境服务设施。新建筑采用现代材料与技术,同时尊重历史建筑的保护要求。 设计团队 卡鲁索·圣约翰建筑事务所是英国知名建筑事务所,擅长文化建筑改造与更新项目,注重历史建筑的当代诠释与功能提升。 项目简介 利物浦歌剧院位于英国利物浦市,是一座二级保护的音乐厅建筑,始建于1939年,由卡鲁索·圣约翰建筑事务所于2012年完成改造扩建工程。 设计理念 设计团队采用三部分相互关联的策略:轻微修复公共区域,全面更新舞台设备,彻底改造后台设施。新建筑延续了原有建筑的节日氛围,通过宽大的转角窗户、醒目的遮篷和标识系统,将音乐厅的活力延伸至周边城市。 空间与功能 项目包含公共休息区、主观众厅、舞台区域以及后台设施。新建部分整合了第二表演空间、化妆间和办公区域,形成紧凑统一的体量,优化了功能流线和使用体验。 材料与技术 在保留原有室内建筑的基础上,全面更换了舞台机械、照明系统和环境服务设施。新建筑采用现代材料与技术,同时尊重历史建筑的保护要求。 设计团队 卡鲁索·圣约翰建筑事务所是英国知名建筑事务所,擅长文化建筑改造与更新项目,注重历史建筑的当代诠释与功能提升。 本文来自 © 卡鲁索·圣约翰建筑事务所|Caruso St John, 发布于 © 建筑学院官方网站。 未经授权,禁止转载或摘编。 编辑版本版权归 © 建筑学院官方网站 所有, 设计、图纸及照片版权归设计方 © 卡鲁索·圣约翰建筑事务所|Caruso St John ↗ 所有。 查看作者在建筑学院发布的更多作品: 卡鲁索·圣约翰建筑事务所|Caruso St John @ 建筑学院官方网站 利物浦利物浦歌剧院卡鲁索·圣约翰建筑改造音乐厅建筑 卡鲁索·圣约翰建筑事务所|Caruso St John事务所 & 设计师 下载原图 收藏 0 关于作者 卡鲁索·圣约翰建筑事务所|Caruso St John事务所 & 设计师 关注私信 20 文章 0 评论 0 粉丝 卡鲁索·圣约翰建筑事务所(Caruso St John)是成立于1990年的英国知名建筑事务所,由亚当·卡鲁索(Adam Caruso)和彼得·圣约翰(Peter St John)合伙创立。该事务所以其深刻的概念思考、对历史文脉的尊重及精湛的材料运用而闻名于世,致力于创造“可随岁月流转缓慢感知的、拥有情感内容的建筑”。其代表作——伦敦纽波特街美术馆(Newport Street Gallery)曾荣获2016年英国斯特林建筑奖,砖屋(Brick House)和沃尔索尔新艺术画廊等项目也曾入围该奖项。 异域宅院 / Alien House | 阿尔弗雷多·帕亚|Alfredo Payá 上一篇 2025-12-02 下午10:00 Next Hydroponic Plant Next Hydroponic Plant | 曼努埃尔·塞万提斯|Manuel Cervantes 下一篇 2025-12-04 上午8:50 猜你喜欢 里尔酒店学院 Lycée Hôtelier de Lille | 卡鲁索·圣约翰建筑事务所|Caruso St John 2025-12-02 公共建筑设计 圣雅各基金会,苏黎世 St Jakob Foundation, Zurich | 卡鲁索·圣约翰建筑事务所|Caruso St John 2025-12-12 公共建筑设计 柏林艺术家之家 House for an Artist, Berlin | 卡鲁索·圣约翰建筑事务所|Caruso St John 2025-11-22 公共建筑设计 科尔尼亚文化中心 / Cultural Centre in Colina | Pezo Von Ellrichshausen 2026-02-07 公共建筑设计 圣路易斯别墅 / UMWELT + Plan Común 2025-06-12 文化建筑 英国纳粹大屠杀纪念馆 United Kingdom Holocaust Memorial | 卡鲁索·圣约翰建筑事务所|Caruso St John 2025-12-09 公共建筑设计 发表回复 请登录后评论...登录后才能评论 提交