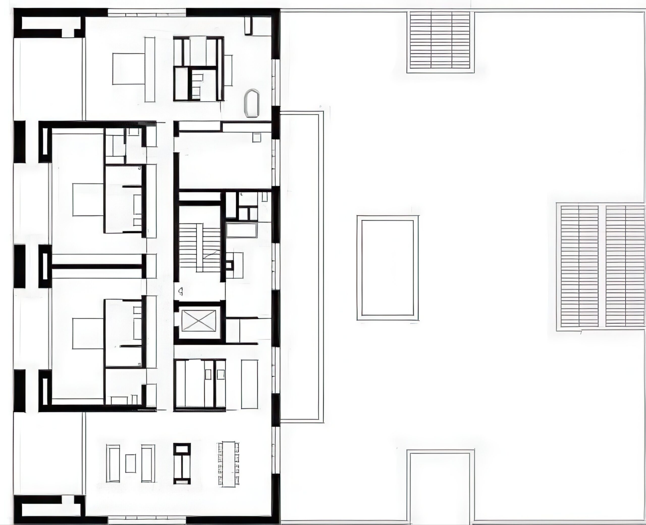
克利斯堡住宅楼 Killesberg Residential Building | 大卫·奇珀菲尔德建筑事务所|David Chipperfield 大卫·奇珀菲尔德建筑事务所|David Chipperfield • 2025-11-25 上午8:50 • 公共建筑设计, 建筑师, 建筑设计, 文化建筑设计 克利斯堡住宅楼位于德国斯图加特基勒斯贝格山,是一座集公寓住宅与幼儿园功能于一体的现代建筑。项目由大卫·奇珀菲尔德建筑事务所设计,采用浅色砖材立面与深凹凉廊设计,提供18套户型多样的公寓及两层儿童保育中心,屋顶设有游泳池,营造出与自然环境和谐共生的居住体验。 设计: 大卫·奇珀菲尔德建筑事务所|David Chipperfield 类型: 文化建筑设计 功能: 公寓住宅 风格: 现代主义 材料: 混凝土 钢材 玻璃 尺度: 中型建筑 地点:德国 时间: 2010年 项目简介 克利斯堡住宅楼位于德国斯图加特基勒斯贝格山前贸易展场地,是一座包含18套公寓和两层幼儿园的综合性建筑。建筑面积约6000平方米,设计于2010年代,2020年建成。 设计理念 设计以城市文脉融合为核心,呼应 Ortner & Ortner 总体规划,通过体量切割与立面雕琢,在密集城市肌理中创造开放空间。浅色砖材统一建筑语言,深凹凉廊引入自然景观,实现内外空间的无缝过渡。 空间与功能 建筑共六层住宅与两层幼儿园,地下室提供辅助功能。所有公寓配备通高玻璃窗,西立面深凹凉廊面向基勒斯贝格山公园,顶层设带天空凉廊的宽敞公寓及屋顶游泳池。幼儿园通过露台扩展儿童游戏区域,形成受保护的户外活动空间。 材料与技术 外墙采用浅色砖材与石灰砂浆抹面,楼板以混凝土挑梁形式外露,形成水平带状立面肌理。砖材统一住宅与幼儿园外观,赋予建筑均匀而活泼的质感,体现现代砌筑工艺与可持续材料应用。 设计团队 大卫·奇珀菲尔德建筑事务所创立于1985年,以精致简约的设计语言、对材料与文脉的深刻理解著称,作品涵盖文化、住宅与城市更新项目,强调建筑与环境的持久对话。 项目简介 克利斯堡住宅楼位于德国斯图加特基勒斯贝格山前贸易展场地,是一座包含18套公寓和两层幼儿园的综合性建筑。建筑面积约6000平方米,设计于2010年代,2020年建成。 设计理念 设计以城市文脉融合为核心,呼应 Ortner & Ortner 总体规划,通过体量切割与立面雕琢,在密集城市肌理中创造开放空间。浅色砖材统一建筑语言,深凹凉廊引入自然景观,实现内外空间的无缝过渡。 空间与功能 建筑共六层住宅与两层幼儿园,地下室提供辅助功能。所有公寓配备通高玻璃窗,西立面深凹凉廊面向基勒斯贝格山公园,顶层设带天空凉廊的宽敞公寓及屋顶游泳池。幼儿园通过露台扩展儿童游戏区域,形成受保护的户外活动空间。 材料与技术 外墙采用浅色砖材与石灰砂浆抹面,楼板以混凝土挑梁形式外露,形成水平带状立面肌理。砖材统一住宅与幼儿园外观,赋予建筑均匀而活泼的质感,体现现代砌筑工艺与可持续材料应用。 设计团队 大卫·奇珀菲尔德建筑事务所创立于1985年,以精致简约的设计语言、对材料与文脉的深刻理解著称,作品涵盖文化、住宅与城市更新项目,强调建筑与环境的持久对话。 本文来自 © 大卫·奇珀菲尔德建筑事务所|David Chipperfield, 发布于 © 建筑学院官方网站。 未经授权,禁止转载或摘编。 编辑版本版权归 © 建筑学院官方网站 所有, 设计、图纸及照片版权归设计方 © 大卫·奇珀菲尔德建筑事务所|David Chipperfield ↗ 所有。 查看作者在建筑学院发布的更多作品: 大卫·奇珀菲尔德建筑事务所|David Chipperfield @ 建筑学院官方网站 克利斯堡住宅楼公寓住宅大卫·奇珀菲尔德斯图加特砖材立面 大卫·奇珀菲尔德建筑事务所|David Chipperfield事务所 & 设计师 下载原图 收藏 0 关于作者 大卫·奇珀菲尔德建筑事务所|David Chipperfield事务所 & 设计师 关注私信 22 文章 0 评论 1 粉丝 大卫·奇珀菲尔德建筑事务所由2023年普利兹克奖得主大卫·奇珀菲尔德爵士于1985年创立,在伦敦、柏林、米兰、上海等地设有办公室。事务所以优雅克制、注重永恒感的设计风格闻名,尤其擅长文化建筑与历史建筑改造,代表作包括柏林新博物馆重建、上海西岸美术馆和洛克外滩源项目。 Bötzow啤酒厂的改造 Conversion of Bötzow Brewery | 大卫·奇珀菲尔德建筑事务所|David Chipperfield 上一篇 2025-11-25 上午12:50 圣路易斯艺术博物馆,东楼 Saint Louis Art Museum,East Building | 大卫·奇珀菲尔德建筑事务所|David 下一篇 2025-11-25 上午8:50 猜你喜欢 乔阿奇姆斯特大街校园 Joachimstrasse Campus | 大卫·奇珀菲尔德建筑事务所|David Chipperfield 2025-11-24 公共建筑设计 肯辛顿私人住宅 Private House in Kensington | 大卫·奇珀菲尔德建筑事务所|David Chipperfield 2025-11-28 公共建筑设计 爱茉莉太平洋总部 Amorepacific Headquarters | 大卫·奇珀菲尔德建筑事务所|David Chipperfield 2025-11-05 公共建筑设计 哥本哈根大学新建建筑 New Buildings for the University of Gothenburg | 谭姆与维德高德建筑事务所|Tham & Videgård 2025-11-09 公共建筑设计 Casa Fayland | 大卫·奇珀菲尔德建筑事务所|David Chipperfield 2025-11-25 公共建筑设计 巴黎瓦伦汀诺男装店 Valentino Man Store, Paris | 大卫·奇珀菲尔德建筑事务所|David Chipperfield 2025-11-05 室内设计 发表回复 请登录后评论...登录后才能评论 提交