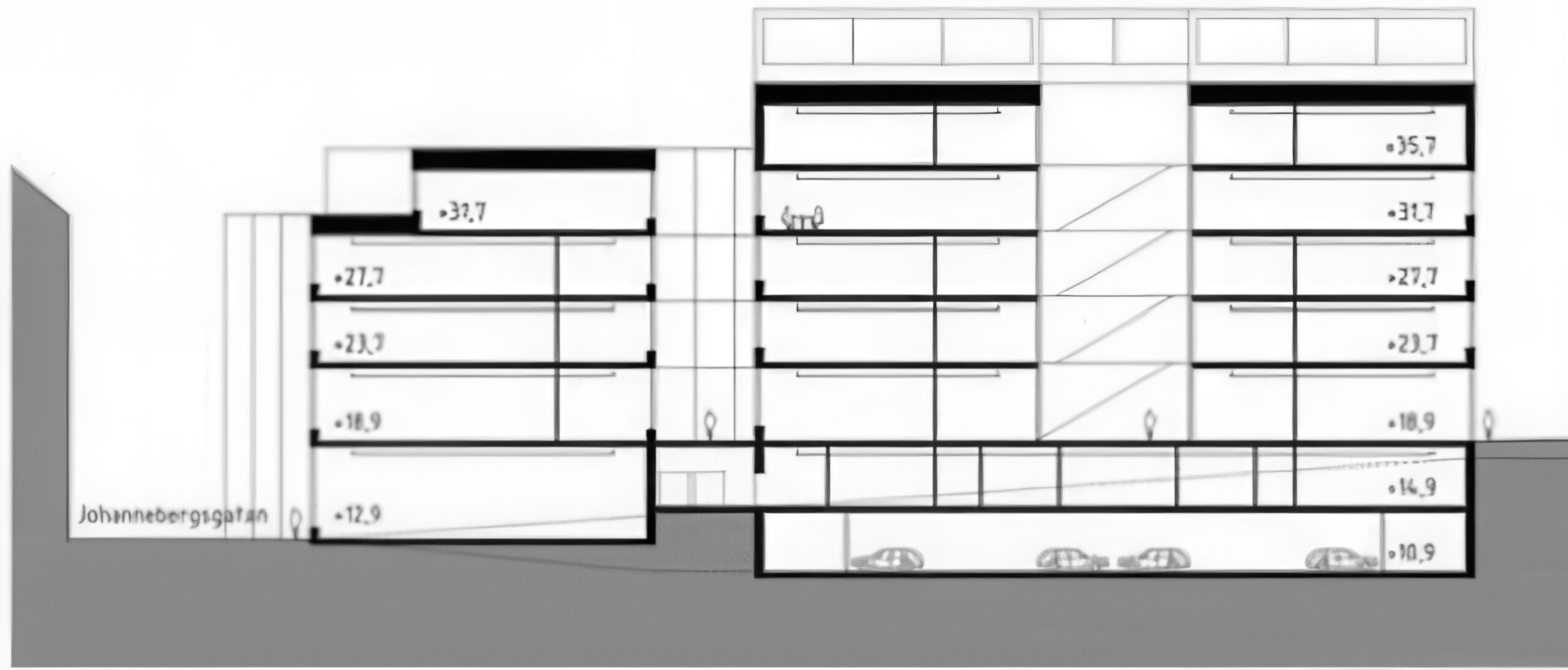
哥本哈根大学新建建筑 New Buildings for the University of Gothenburg | 谭姆与维德高德建筑事务所|Tham & Videgård 谭姆与维德高德建筑事务所|Tham & Videgård • 2025-11-09 上午8:50 • 公共建筑设计, 建筑师设计, 建筑设计, 文化建筑设计 哥德堡大学新建建筑项目由谭姆与维德高德建筑事务所设计,位于瑞典哥德堡市中心。该项目将艺术学院、设计学院与音乐学院整合于一体,围绕历史公园布局,采用红黄双色砖材与工业节奏立面,形成与周边新古典建筑和谐共生的教育建筑群。设计通过庭院空间与悬挑体量,创造开放互动的学术环境。 设计: 谭姆与维德高德建筑事务所|Tham & Videgård 类型: 文化建筑设计 功能: 独立住宅 风格: 现代主义 材料: 钢材 玻璃 砖材 尺度: 大型建筑 地点:哥德堡 时间: 2015年 项目简介 哥德堡大学新建建筑项目位于瑞典哥德堡市中心,毗邻Götaplatsen广场。项目包含艺术学院、设计学院与音乐学院,建筑面积约25,000平方米,设计于2015年启动,目前处于建设阶段。 设计理念 设计团队以”开放校园”为核心策略,通过新建建筑与历史建筑的有机整合,打破大学与城市的边界。采用工业节奏的立面与双色砖材,既呼应场地历史文脉,又展现当代教育建筑的开放特质。 空间与功能 项目围绕中央庭院组织空间,形成完整的城市街区。庭院兼具露天工作室功能,新建建筑通过连廊与既有建筑相连,包含工作室、教室、排练厅及现代化媒体图书馆,各功能空间垂直堆叠,形成高效的教学流线。 材料与技术 主要采用深红与浅黄双色砖材立面,与周边新古典建筑形成对话。图书馆部分使用玻璃与耐候钢悬挑体量,屋顶设置双坡天窗系统,优化自然采光。设计注重历史保护与当代功能的平衡。 设计团队 谭姆与维德高德建筑事务所是瑞典知名建筑事务所,以文化建筑与教育建筑设计见长,擅长通过材料表达与空间组织创造与环境和谱共生的建筑作品。 项目简介 哥德堡大学新建建筑项目位于瑞典哥德堡市中心,毗邻Götaplatsen广场。项目包含艺术学院、设计学院与音乐学院,建筑面积约25,000平方米,设计于2015年启动,目前处于建设阶段。 设计理念 设计团队以”开放校园”为核心策略,通过新建建筑与历史建筑的有机整合,打破大学与城市的边界。采用工业节奏的立面与双色砖材,既呼应场地历史文脉,又展现当代教育建筑的开放特质。 空间与功能 项目围绕中央庭院组织空间,形成完整的城市街区。庭院兼具露天工作室功能,新建建筑通过连廊与既有建筑相连,包含工作室、教室、排练厅及现代化媒体图书馆,各功能空间垂直堆叠,形成高效的教学流线。 材料与技术 主要采用深红与浅黄双色砖材立面,与周边新古典建筑形成对话。图书馆部分使用玻璃与耐候钢悬挑体量,屋顶设置双坡天窗系统,优化自然采光。设计注重历史保护与当代功能的平衡。 设计团队 谭姆与维德高德建筑事务所是瑞典知名建筑事务所,以文化建筑与教育建筑设计见长,擅长通过材料表达与空间组织创造与环境和谱共生的建筑作品。 本文来自 © 谭姆与维德高德建筑事务所|Tham & Videgård, 发布于 © 建筑学院官方网站。 未经授权,禁止转载或摘编。 编辑版本版权归 © 建筑学院官方网站 所有, 设计、图纸及照片版权归设计方 © 谭姆与维德高德建筑事务所|Tham & Videgård ↗ 所有。 查看作者在建筑学院发布的更多作品: 谭姆与维德高德建筑事务所|Tham & Videgård @ 建筑学院官方网站 哥德堡大学新建建筑哥德堡建筑教育建筑设计砖材立面谭姆与维德高德 谭姆与维德高德建筑事务所|Tham & Videgård事务所 & 设计师 下载原图 收藏 0 关于作者 谭姆与维德高德建筑事务所|Tham & Videgård事务所 & 设计师 关注私信 12 文章 0 评论 0 粉丝 谭姆与维德高德建筑事务所(Tham & Videgård Arkitekter)是成立于瑞典斯德哥尔摩的知名建筑事务所,由波勒·谭姆与马丁·维德高德于1999年创立。他们以其深刻的实践哲学著称,坚信“建筑必须被建造出来”以供体验与评估。其作品涵盖博物馆、学校及住宅,以独特的材料运用、清晰的形体表达以及对文脉的敏锐回应而闻名。代表作包括卡尔马艺术博物馆、镜立方树屋及瑞典皇家理工学院建筑学院等。 哥伦比亚大学新博士生楼 / New Doctorate’s Building, National University of Colombia | 霍尔 Steven Holl 上一篇 2025-11-08 上午8:50 穆拉赫宣言城市 Cité Manifeste, Mulhouse | 拉卡东与瓦萨尔建筑师事务所|Lacaton & Vassal 下一篇 2025-11-09 下午12:50 猜你喜欢 克利斯堡住宅楼 Killesberg Residential Building | 大卫·奇珀菲尔德建筑事务所|David Chipperfield 2025-11-25 公共建筑设计 特鲁尼建筑学院 / Architecture Faculty in Tournai | 艾雷斯·马特乌斯建筑事务所 2025-11-14 公共建筑设计 陶土展馆 / Clay Pavilion in Oaxaca | 阿尔瓦罗·西扎|Álvaro Siza 2026-03-05 公共建筑设计 赫赫斯特大学经济学院 / Faculty of Economics, Ghent University | Xaveer de Geyter 2026-02-27 公共建筑设计 舞与文本设计学院的扩展,伯尔尼 / Extension for the School of Dance and Textile Design, Bern | 巴罗齐与维加建筑事务所|Barozzi Veiga 2026-04-17 公共建筑设计 斯特拉斯堡经济学院 / Faculty of Economics, Strasbourg | Xaveer de Geyter 2026-02-28 公共建筑设计 发表回复 请登录后评论...登录后才能评论 提交