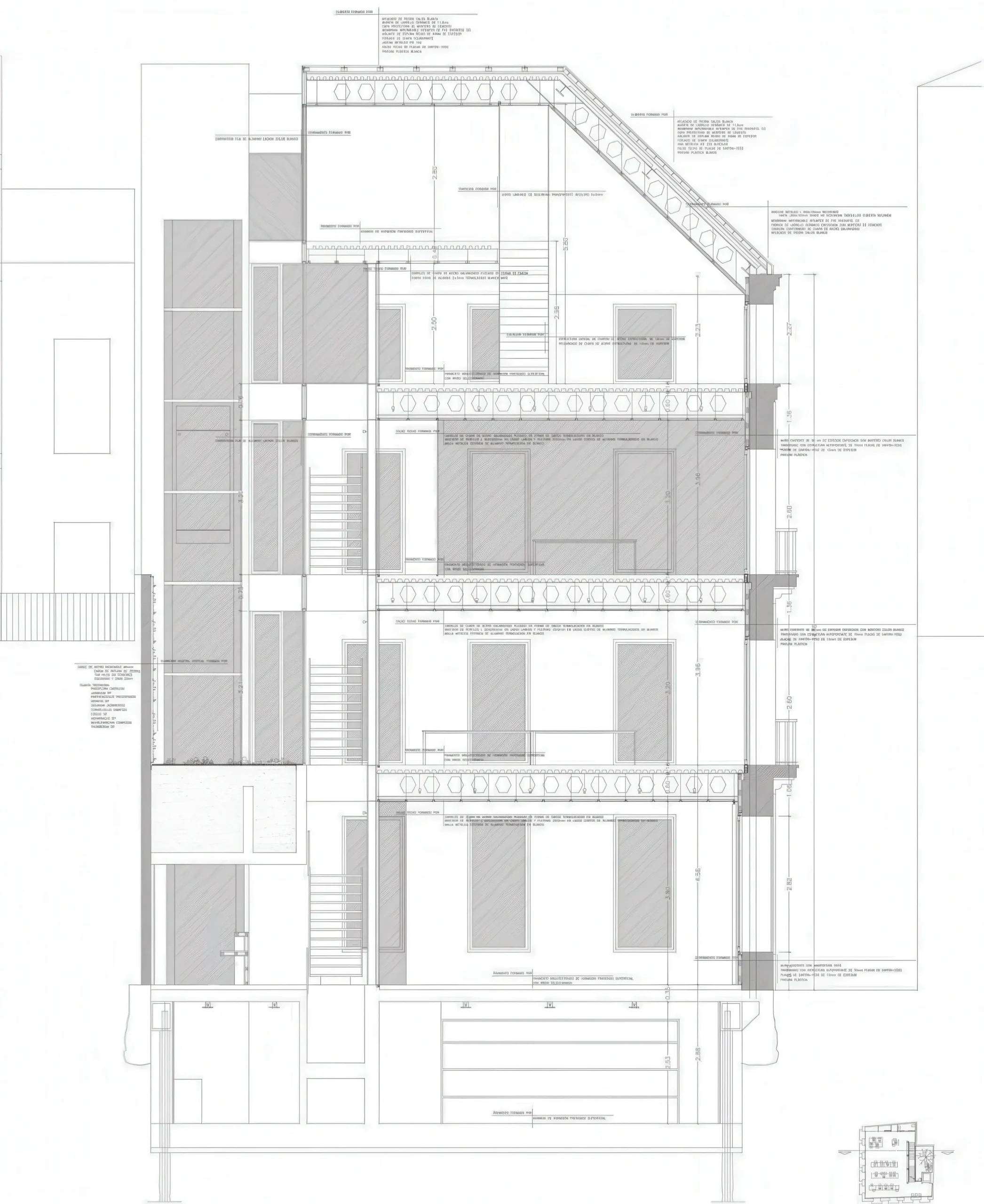
新经济学家协会办公室装修工程 Renovations for New Economists’ Guild Offices | 阿尔弗雷多·帕亚|Alfredo Payá 阿尔弗雷多·帕亚|Alfredo Payá • 2025-12-06 下午8:08 • 公共建筑设计, 建筑师, 建筑设计, 文化建筑设计 新经济学家协会办公室装修工程是阿尔弗雷多·帕亚在西班牙阿利坎特完成的建筑改造项目。该项目将原有分隔式建筑改造为开放式办公空间,通过引入庭院、创造连续空间和采用灵活布局,实现了建筑功能的重塑。设计强调空间流动性与自然采光,展现了现代办公空间改造的典范。 设计: 阿尔弗雷多·帕亚|Alfredo Payá 类型: 文化建筑设计 功能: 独立住宅 风格: 当代建筑 材料: 混凝土 钢材 玻璃 石材 砖材 尺度: 中型建筑 地点:西班牙 时间: 2008年 项目简介 新经济学家协会办公室装修工程位于西班牙阿利坎特,是一座办公建筑改造项目。建筑面积约2000平方米,设计于2008年,2014年建成。项目将原有分隔式建筑彻底改造为开放式办公空间。 设计理念 设计团队采用”掏空重建”策略,拆除原有隔断,创造四个大型开放式楼层和中央庭院。核心设计理念是追求空间连续性、灵活性和清晰性,将原本昏暗复杂的空间转变为简洁明亮的现代办公环境。 空间与功能 每层楼均为单一连续空间,设有大型多功能厅。底层向下扩展改善层高,顶层向上延伸增加空间感。战略性地布置楼梯、电梯和服务设施,确保空间流动性和功能灵活性。中央庭院提供自然采光和交叉通风。 材料与技术 保留原有石墙、砖墙和灰泥墙面,展现建筑历史痕迹。新建部分采用正交几何结构,使用博伊德梁和复合钢混凝土楼板。技术楼层和吊顶隐藏设备管线,玻璃隔断和定制家具完善空间划分。 设计团队 阿尔弗雷多·帕亚是西班牙知名建筑师,其事务所专注于建筑改造和城市更新项目,擅长通过简洁的设计手法重塑既有建筑空间,作品以空间流动性和材料真实性著称。 项目简介 新经济学家协会办公室装修工程位于西班牙阿利坎特,是一座办公建筑改造项目。建筑面积约2000平方米,设计于2008年,2014年建成。项目将原有分隔式建筑彻底改造为开放式办公空间。 设计理念 设计团队采用”掏空重建”策略,拆除原有隔断,创造四个大型开放式楼层和中央庭院。核心设计理念是追求空间连续性、灵活性和清晰性,将原本昏暗复杂的空间转变为简洁明亮的现代办公环境。 空间与功能 每层楼均为单一连续空间,设有大型多功能厅。底层向下扩展改善层高,顶层向上延伸增加空间感。战略性地布置楼梯、电梯和服务设施,确保空间流动性和功能灵活性。中央庭院提供自然采光和交叉通风。 材料与技术 保留原有石墙、砖墙和灰泥墙面,展现建筑历史痕迹。新建部分采用正交几何结构,使用博伊德梁和复合钢混凝土楼板。技术楼层和吊顶隐藏设备管线,玻璃隔断和定制家具完善空间划分。 设计团队 阿尔弗雷多·帕亚是西班牙知名建筑师,其事务所专注于建筑改造和城市更新项目,擅长通过简洁的设计手法重塑既有建筑空间,作品以空间流动性和材料真实性著称。 本文来自 © 阿尔弗雷多·帕亚|Alfredo Payá, 发布于 © 建筑学院官方网站。 未经授权,禁止转载或摘编。 编辑版本版权归 © 建筑学院官方网站 所有, 设计、图纸及照片版权归设计方 © 阿尔弗雷多·帕亚|Alfredo Payá ↗ 所有。 查看作者在建筑学院发布的更多作品: 阿尔弗雷多·帕亚|Alfredo Payá @ 建筑学院官方网站 办公建筑改造开放式办公空间新经济学家协会办公室阿利坎特建筑阿尔弗雷多·帕亚 阿尔弗雷多·帕亚|Alfredo Payá事务所 & 设计师 下载原图 收藏 0 关于作者 阿尔弗雷多·帕亚|Alfredo Payá事务所 & 设计师 关注私信 18 文章 0 评论 0 粉丝 阿尔弗雷多·帕亚(Alfredo Payá)是西班牙知名建筑师,1988年在阿利坎特成立工作室,后于2005年创立noame 29事务所。其作品深植于地中海地域文脉,强调消除公共与私有、室内与室外之间的界限。帕亚秉持“设计建筑使它像一座山”而非“设计一座像山的建筑”的深层概念性理念,避免表面隐喻。他注重建筑的物质一致性而非具体材料选择,代表作包括迈格莫山住宅、阿里坎特大学博物馆及32间公共住宅等,融合环境、气候与功能,展现其将建筑延伸至周边环境的独特哲学。 弗兰克·盖里,离开了我们,缅怀真正的天才与巨匠 1929–2025 上一篇 2025-12-06 上午5:51 艾尔·乌罗奎迪奥帕拉兹 El Orquideario Pavilion | 曼努埃尔·塞万提斯|Manuel Cervantes 下一篇 2025-12-07 上午8:50 猜你喜欢 巴塞罗那音乐和舞蹈学院 Ibiza and Formentera Music and Dance Conservatory | 阿尔弗雷多·帕亚|Alfredo Payá 2025-10-29 公共建筑设计 伊维萨与福门特拉音乐舞蹈学院 / Music and Dance Conservatory of Ibiza and Formentera | 阿尔弗雷多·帕亚|Alfredo Payá 2026-04-12 公共建筑设计 弗拉门卡尔海滩中学 / ‘Playa Flamenca’ Secondary School | 阿尔弗雷多·帕亚|Alfredo Payá 2026-04-13 公共建筑设计 32社交住宅于圣维泽德拉斯帕利戈 / 32 Social Dwellings in San Vicente del Raspeig | 阿尔弗雷多·帕亚|Alfredo Payá 2025-11-13 公共建筑设计 异域宅院 / Alien House | 阿尔弗雷多·帕亚|Alfredo Payá 2026-04-14 住宅建筑设计 异域宅院 / Alien House | 阿尔弗雷多·帕亚|Alfredo Payá 2025-12-02 公共建筑设计 发表回复 请登录后评论...登录后才能评论 提交