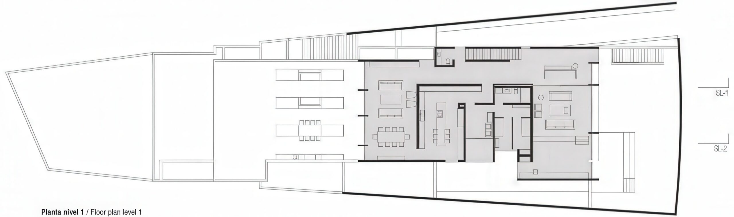
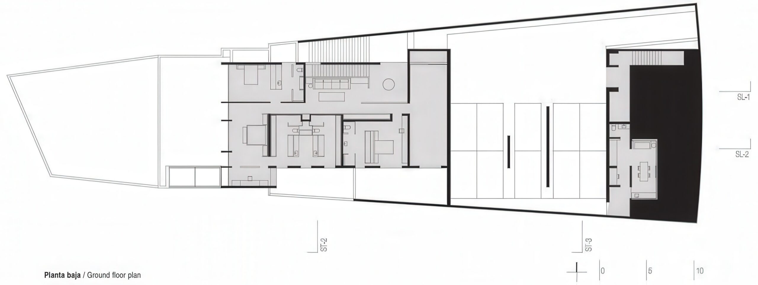
双座屋及工作室,阿玛特帕克 Two Houses and Studio, Amatepec | 曼努埃尔·塞万提斯|Manuel Cervantes 曼努埃尔·塞万提斯|Manuel Cervantes • 2025-12-08 上午8:50 • 住宅室内设计, 公共建筑设计, 室内设计, 建筑师, 建筑设计, 文化建筑设计 双座屋及工作室位于墨西哥城阿玛特帕克峡谷边缘,由曼努埃尔·塞万提斯设计。项目包含两栋住宅与工作室,采用阶梯式布局应对复杂地形,通过露台系统实现室内外空间的无缝衔接。设计尊重自然保护区的限制条件,运用混凝土带与砖墙结构,创造出与地形融为一体的建筑形态。 设计: 曼努埃尔·塞万提斯|Manuel Cervantes 类型: 文化建筑设计 功能: 独立住宅 风格: 当代建筑 材料: 混凝土 钢材 木材 玻璃 砖材 尺度: 小型建筑 地点:墨西哥 时间: 2018年 项目简介 双座屋及工作室位于墨西哥城阿玛特帕克峡谷边缘,为两栋独立住宅与工作室组合项目。建筑面积约400平方米,设计于2018年,建成于2020年。项目充分利用125米长的场地,在70米可建设区域内进行开发。 设计理念 设计团队以最小化环境影响为核心策略,采用阶梯式布局呼应峡谷地形。通过错落的体量与露台系统,实现建筑与自然的视觉融合。设计灵感来源于场地原有的地形特征,创造出如同从土地中生长出来的建筑形态。 空间与功能 项目包含两栋独立住宅:Pent-Garden住宅设有三层空间,包含卧室区、社交区及底层工作室;Pent-House住宅为两层结构,设有私人花园与峡谷观景露台。两栋住宅共享主入口与停车场,通过巧妙的标高处理实现功能分区。 材料与技术 建筑采用现浇混凝土带结构框架,侧立面使用陶瓷砖墙,面向峡谷的立面设置混凝土悬挑构件。室内外均采用裸露的砖材与木梁结构,真实展现建筑构造逻辑。结构系统充分考虑地形稳定性与抗震需求。 设计团队 曼努埃尔·塞万提斯建筑事务所是墨西哥知名设计团队,专注于住宅与小型公共建筑设计。团队以对地形、光线与材料的精准把控著称,在墨西哥当代建筑领域具有重要影响力。 项目简介 双座屋及工作室位于墨西哥城阿玛特帕克峡谷边缘,为两栋独立住宅与工作室组合项目。建筑面积约400平方米,设计于2018年,建成于2020年。项目充分利用125米长的场地,在70米可建设区域内进行开发。 设计理念 设计团队以最小化环境影响为核心策略,采用阶梯式布局呼应峡谷地形。通过错落的体量与露台系统,实现建筑与自然的视觉融合。设计灵感来源于场地原有的地形特征,创造出如同从土地中生长出来的建筑形态。 空间与功能 项目包含两栋独立住宅:Pent-Garden住宅设有三层空间,包含卧室区、社交区及底层工作室;Pent-House住宅为两层结构,设有私人花园与峡谷观景露台。两栋住宅共享主入口与停车场,通过巧妙的标高处理实现功能分区。 材料与技术 建筑采用现浇混凝土带结构框架,侧立面使用陶瓷砖墙,面向峡谷的立面设置混凝土悬挑构件。室内外均采用裸露的砖材与木梁结构,真实展现建筑构造逻辑。结构系统充分考虑地形稳定性与抗震需求。 设计团队 曼努埃尔·塞万提斯建筑事务所是墨西哥知名设计团队,专注于住宅与小型公共建筑设计。团队以对地形、光线与材料的精准把控著称,在墨西哥当代建筑领域具有重要影响力。 本文来自 © 曼努埃尔·塞万提斯|Manuel Cervantes, 发布于 © 建筑学院官方网站。 未经授权,禁止转载或摘编。 编辑版本版权归 © 建筑学院官方网站 所有, 设计、图纸及照片版权归设计方 © 曼努埃尔·塞万提斯|Manuel Cervantes ↗ 所有。 查看作者在建筑学院发布的更多作品: 曼努埃尔·塞万提斯|Manuel Cervantes @ 建筑学院官方网站 双座屋及工作室墨西哥城曼努埃尔·塞万提斯独立住宅设计阿玛特帕克 曼努埃尔·塞万提斯|Manuel Cervantes事务所 & 设计师 下载原图 收藏 0 关于作者 曼努埃尔·塞万提斯|Manuel Cervantes事务所 & 设计师 关注私信 19 文章 0 评论 0 粉丝 曼努埃尔·塞万提斯是墨西哥极具影响力的新生代建筑师。他的事务所以对材料、光线与构造的深刻理解和娴熟运用而闻名,尤其擅长运用夯土、木材和混凝土等本土材料,创造出与场地和环境紧密相连的现代建筑。其作品涵盖住宅、文化及商业项目,展现了简洁、宁静而富有 tactile 质感的设计美学。 维克葡萄酒窖 Vik Wine Cellar | 斯米里扬·拉迪奇|Smiljan Radić 上一篇 2025-12-08 上午12:50 诺华展览馆 Novartis Exhibition Pavilion | 斯米里扬·拉迪奇|Smiljan Radić 下一篇 2025-12-09 上午8:50 猜你喜欢 Mas Salvà 农家小屋 / Mas Salvà Farm House | +RCR 建筑事务所|RCR Arquitectes 2025-11-03 公共建筑设计 帕拉蒂之家 / House in Paraty | Estúdio Gustavo Utrabo 2025-12-25 住宅建筑设计 圣楚尔瓦住宅 House in Stürcherwald | 贝尔纳多·巴德尔|Bernardo Bader 2025-10-30 公共建筑设计 多内塞尔大厦 Donceles Building | 曼努埃尔·塞万提斯|Manuel Cervantes 2025-12-09 公共建筑设计 马术项目 Equestrian Project | 曼努埃尔·塞万提斯|Manuel Cervantes 2025-12-08 公共建筑设计 三个农村住房原型 Three Rural Housing Prototypes | 曼努埃尔·塞万提斯|Manuel Cervantes 2025-12-12 住宅室内设计 发表回复 请登录后评论...登录后才能评论 提交