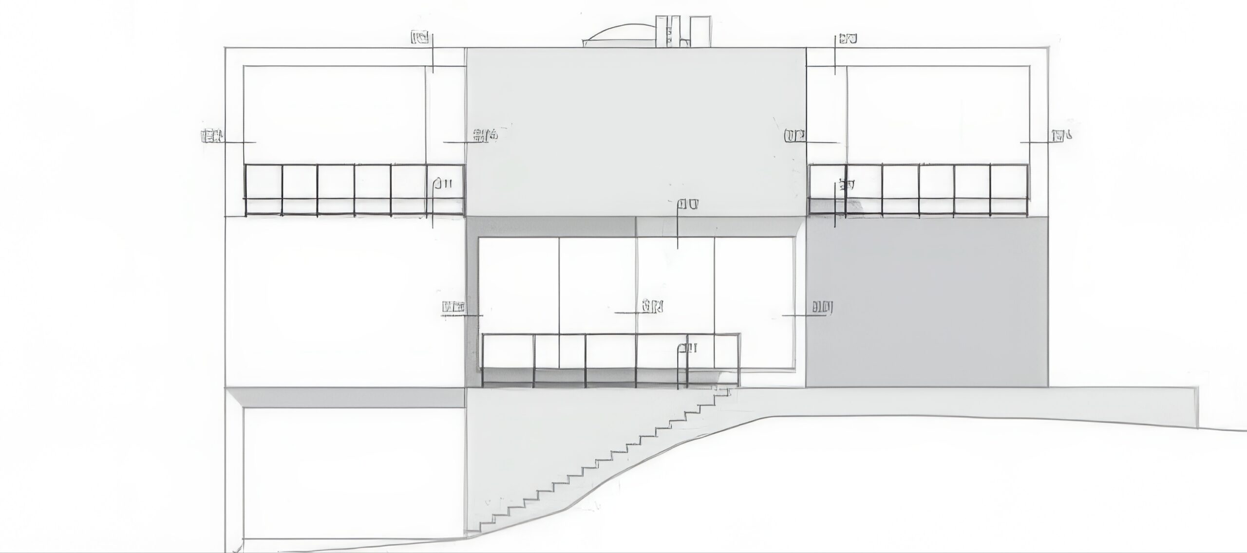
山上的房子 House on a Hill | 谭姆与维德高德建筑事务所|Tham & Videgård 谭姆与维德高德建筑事务所|Tham & Videgård • 2025-11-07 上午8:50 • 公共建筑设计, 建筑师设计, 建筑设计, 文化建筑设计 山上的房子是谭姆与维德高德建筑事务所在瑞典瓦尔姆多设计的独立住宅项目。这座位于斯德哥尔摩郊区的混凝土建筑采用垂直结构,通过45度旋转楼层创造迷宫般的空间体验。设计强调室内外空间的融合,提供全景群岛景观视野,体现了现代主义建筑与自然环境的完美对话。 设计: 谭姆与维德高德建筑事务所|Tham & Videgård 类型: 文化建筑设计 功能: 独立住宅 风格: 现代主义 材料: 混凝土 尺度: 小型建筑 地点:瑞典 时间: 2014年 项目简介 山上的房子位于瑞典瓦尔姆多,是一座独立住宅建筑,项目自2014年开始建设。建筑采用垂直布局,通过三层空间组织实现功能分区,与周边群岛景观形成紧密联系。 设计理念 设计团队将建筑简化为纯粹的结构体,借鉴灯塔和日晷的意象,创造出一个垂直的混凝土构筑物。通过45度旋转楼层布局,营造迷宫般的空间体验,让外部景观成为室内活动的参照点。 空间与功能 建筑分为三个功能层次:半地下室设置入口和服务空间;主层为社交区域和露台;上层为私人卧室。折叠的外墙设计形成一系列防风露台,跟随太阳轨迹变化,提供多样化的户外体验。 材料与技术 建筑完全采用现浇混凝土建造,坚固地锚固在基岩上。外墙结构不作层次区分,旋转折叠的体量在远观时呈现虚实交替的视觉效果,赋予建筑坚实与透明的双重品质。 设计团队 谭姆与维德高德建筑事务所是瑞典知名建筑设计公司,以其创新的现代主义设计和与自然环境的敏感对话而闻名,作品涵盖住宅、文化建筑和公共空间等多个领域。 项目简介 山上的房子位于瑞典瓦尔姆多,是一座独立住宅建筑,项目自2014年开始建设。建筑采用垂直布局,通过三层空间组织实现功能分区,与周边群岛景观形成紧密联系。 设计理念 设计团队将建筑简化为纯粹的结构体,借鉴灯塔和日晷的意象,创造出一个垂直的混凝土构筑物。通过45度旋转楼层布局,营造迷宫般的空间体验,让外部景观成为室内活动的参照点。 空间与功能 建筑分为三个功能层次:半地下室设置入口和服务空间;主层为社交区域和露台;上层为私人卧室。折叠的外墙设计形成一系列防风露台,跟随太阳轨迹变化,提供多样化的户外体验。 材料与技术 建筑完全采用现浇混凝土建造,坚固地锚固在基岩上。外墙结构不作层次区分,旋转折叠的体量在远观时呈现虚实交替的视觉效果,赋予建筑坚实与透明的双重品质。 设计团队 谭姆与维德高德建筑事务所是瑞典知名建筑设计公司,以其创新的现代主义设计和与自然环境的敏感对话而闻名,作品涵盖住宅、文化建筑和公共空间等多个领域。 本文来自 © 谭姆与维德高德建筑事务所|Tham & Videgård, 发布于 © 建筑学院官方网站。 未经授权,禁止转载或摘编。 编辑版本版权归 © 建筑学院官方网站 所有, 设计、图纸及照片版权归设计方 © 谭姆与维德高德建筑事务所|Tham & Videgård ↗ 所有。 查看作者在建筑学院发布的更多作品: 谭姆与维德高德建筑事务所|Tham & Videgård @ 建筑学院官方网站 山上的房子混凝土建筑独立住宅设计瓦尔姆多谭姆与维德高德建筑事务所 谭姆与维德高德建筑事务所|Tham & Videgård事务所 & 设计师 下载原图 收藏 0 关于作者 谭姆与维德高德建筑事务所|Tham & Videgård事务所 & 设计师 关注私信 12 文章 0 评论 0 粉丝 谭姆与维德高德建筑事务所(Tham & Videgård Arkitekter)是成立于瑞典斯德哥尔摩的知名建筑事务所,由波勒·谭姆与马丁·维德高德于1999年创立。他们以其深刻的实践哲学著称,坚信“建筑必须被建造出来”以供体验与评估。其作品涵盖博物馆、学校及住宅,以独特的材料运用、清晰的形体表达以及对文脉的敏锐回应而闻名。代表作包括卡尔马艺术博物馆、镜立方树屋及瑞典皇家理工学院建筑学院等。 湖景住宅 House with a Lake View | 克里斯蒂安·凯雷兹|Christian Kerez 上一篇 2025-11-06 下午12:50 塞维利亚文化中心和教室 / Cultural Centre and Classrooms in Ceuta | 托尼·希罗内斯|Toni Gironès 下一篇 2025-11-07 上午8:50 猜你喜欢 CASA EN EL MAIGMÓ / House on Mount Maigmó | 阿尔弗雷多·帕亚|Alfredo Payá 2026-04-13 住宅建筑设计 萨尔瓦多山谷的房子 House in Valle Santana | 曼努埃尔·塞万提斯|Manuel Cervantes 2025-12-05 公共建筑设计 异域宅院 / Alien House | 阿尔弗雷多·帕亚|Alfredo Payá 2025-12-02 公共建筑设计 克罗地亚兹戈尔单体住宅 / Single Family House in Zagreb | 德·莫拉|de Moura 2026-03-17 住宅建筑设计 Ageo的排房 / Row House in Ageo | 长谷川豪建筑事务所|Go Hasegawa 2025-11-12 公共建筑设计 京都的房子 / House in Kyodo | 长谷川豪建筑事务所 2025-11-01 公共建筑设计 发表回复 请登录后评论...登录后才能评论 提交