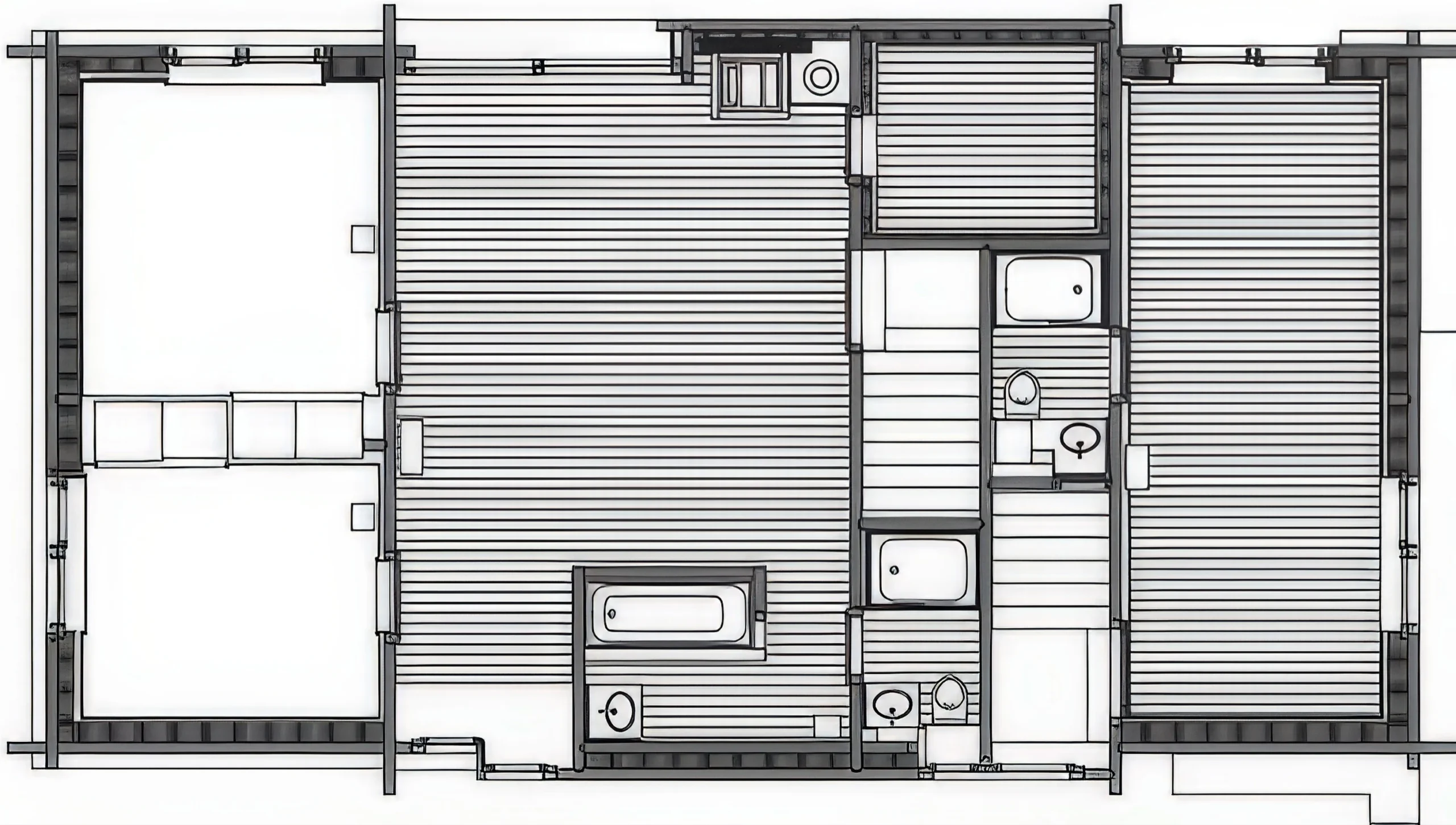
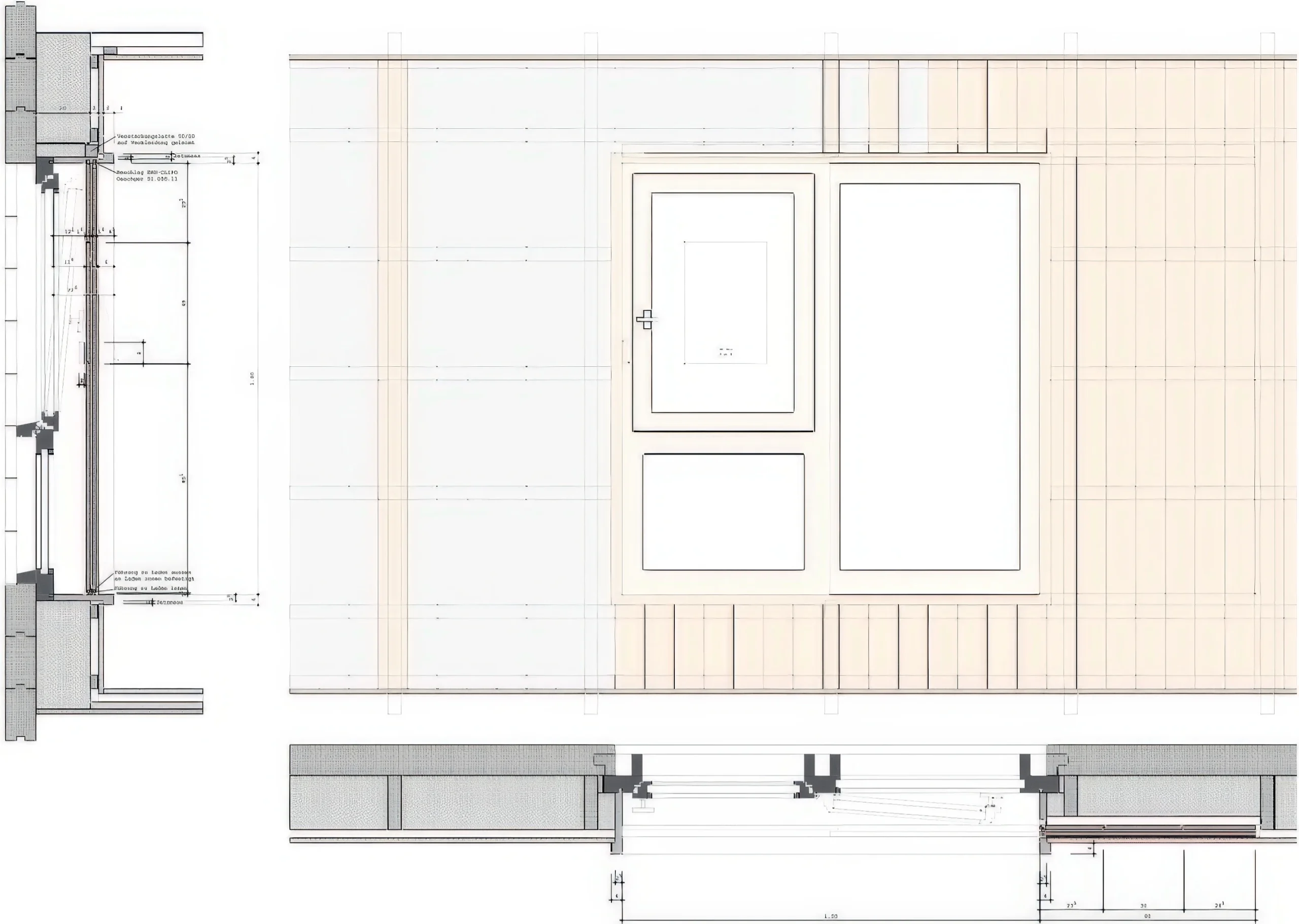
沃尔彭之家 / Walpen House | 吉翁·A·卡米纳达|Gion A. Caminada 吉翁·A·卡米纳达|Gion A Caminada • 2025-12-20 下午1:25 • 住宅建筑设计, 公寓住宅设计, 建筑设计, 独立住宅, 独立住宅设计 沃尔彭之家由吉翁·A·卡米纳达设计,位于瑞士布拉滕贝纳特斯,是一座独立住宅建筑。该项目巧妙结合当地传统建造技术与现代木构工艺,通过岩石锚固结构与多层次空间组织,创造出雕塑般的居住体验。 设计: 吉翁·A·卡米纳达|Gion A Caminada 类型: 独立住宅设计 功能: 独立住宅 风格: 地域主义 材料: 木材 石材 尺度: 小型建筑 地点: 布拉滕贝纳特斯 时间: 2002年 项目概述 沃尔彭之家位于瑞士布拉滕贝纳特斯,是一座独立住宅建筑,设计于2000年,2002年建成。项目依山而建,充分利用岩石地形,建筑面积约300平方米,体现了传统建造智慧与现代设计的完美融合。 设计理念 吉翁·A·卡米纳达的设计理念源于对当地建造传统的深刻理解与创新应用。沃尔彭之家并非简单模仿历史形式,而是继承传统技术适应地形的智慧,通过现代木构工艺重新诠释地域建筑语言,实现建筑与自然的和谐共生。 空间与功能 沃尔彭之家的空间组织以厨房为核心,楼梯从下层入口区通向中央厨房区域。建筑”捕捉”岩石下方的室外空间作为储藏区,服务于住宅和周边环境。卧室区域采用简约设计,与中央空间的丰富木构形成鲜明对比,营造出精致的生活氛围。 材料与技术 项目主要采用实木构造技术,充分发挥木材的造型潜力。建筑突出部分由石砌墙体支撑,结构与饰面的关系得到感性强调。木板的直接材质感贯穿主要空间,转角、边缘、悬挑和台阶等细节都展现出木构造的艺术表现力。 项目特色与启发 沃尔彭之家展示了传统建造技术在当代建筑设计中的持续有效性,为建筑师提供了将地域智慧与现代工艺结合的典范。项目对木构造潜力的极致探索,为住宅设计中的材料表达与空间塑造提供了重要参考。 设计团队 吉翁·A·卡米纳达是瑞士著名建筑师,以其对传统建造技术的深入研究与现代转化而闻名。他的作品常常探索木材构造的可能性,在尊重地域文脉的同时展现当代建筑语言的创新性。 项目概述 沃尔彭之家位于瑞士布拉滕贝纳特斯,是一座独立住宅建筑,设计于2000年,2002年建成。项目依山而建,充分利用岩石地形,建筑面积约300平方米,体现了传统建造智慧与现代设计的完美融合。 设计理念 吉翁·A·卡米纳达的设计理念源于对当地建造传统的深刻理解与创新应用。沃尔彭之家并非简单模仿历史形式,而是继承传统技术适应地形的智慧,通过现代木构工艺重新诠释地域建筑语言,实现建筑与自然的和谐共生。 空间与功能 沃尔彭之家的空间组织以厨房为核心,楼梯从下层入口区通向中央厨房区域。建筑”捕捉”岩石下方的室外空间作为储藏区,服务于住宅和周边环境。卧室区域采用简约设计,与中央空间的丰富木构形成鲜明对比,营造出精致的生活氛围。 材料与技术 项目主要采用实木构造技术,充分发挥木材的造型潜力。建筑突出部分由石砌墙体支撑,结构与饰面的关系得到感性强调。木板的直接材质感贯穿主要空间,转角、边缘、悬挑和台阶等细节都展现出木构造的艺术表现力。 项目特色与启发 沃尔彭之家展示了传统建造技术在当代建筑设计中的持续有效性,为建筑师提供了将地域智慧与现代工艺结合的典范。项目对木构造潜力的极致探索,为住宅设计中的材料表达与空间塑造提供了重要参考。 设计团队 吉翁·A·卡米纳达是瑞士著名建筑师,以其对传统建造技术的深入研究与现代转化而闻名。他的作品常常探索木材构造的可能性,在尊重地域文脉的同时展现当代建筑语言的创新性。 本文来自 © 吉翁·A·卡米纳达|Gion A Caminada, 发布于 © 建筑学院官方网站。 未经授权,禁止转载或摘编。 编辑版本版权归 © 建筑学院官方网站 所有, 设计、图纸及照片版权归设计方 © 吉翁·A·卡米纳达|Gion A Caminada ↗ 所有。 查看作者在建筑学院发布的更多作品: 吉翁·A·卡米纳达|Gion A Caminada @ 建筑学院官方网站 walpen-house吉翁·A·卡米纳达独立住宅设计瑞士住宅建筑 吉翁·A·卡米纳达|Gion A Caminada事务所 & 设计师 下载原图 收藏 0 关于作者 吉翁·A·卡米纳达|Gion A Caminada事务所 & 设计师 关注私信 22 文章 0 评论 0 粉丝 瑞士建筑师吉翁·A·卡米纳达(Gion A. Caminada)以其对传统木结构的现代诠释与乡村建筑复兴而闻名。他的官方网站 theaficionados.com 系统展示其代表作、设计哲学及对乡土文化的深刻思考。访问该站可深入了解其如何将地方传统转化为当代可持续的建筑语言。 The Frame – 假日度假屋 / The Frame – Holiday Retreat in Imaduwa | 帕琳达·坎南加拉|Palinda Kannangara 上一篇 2025-12-20 上午10:55 花园小屋 / Garden House | 安妮·霍尔特罗普|Anne Holtrop 下一篇 2025-12-20 下午1:38 猜你喜欢 佛罗里达的房子 / House in Florida | Pezo Von Ellrichshausen 2026-03-28 住宅建筑设计 House at the Bäumle / Vertical Living | 贝尔纳多·巴德尔|Bernardo Bader 2025-11-19 公共建筑设计 CASA ESPINAL / Spinal House | 帕琳达·坎南加拉|Palinda Kannangara 2026-01-07 住宅建筑设计 Casa de Navidad / House in Navidad | Pezo Von Ellrichshausen 2026-02-05 住宅建筑设计 断层式住宅 / Striated House | 帕琳达·坎南加拉|Palinda Kannangara 2025-12-21 住宅建筑设计 山上的房子 House on a Hill | 谭姆与维德高德建筑事务所|Tham & Videgård 2025-11-07 公共建筑设计 发表回复 请登录后评论...登录后才能评论 提交