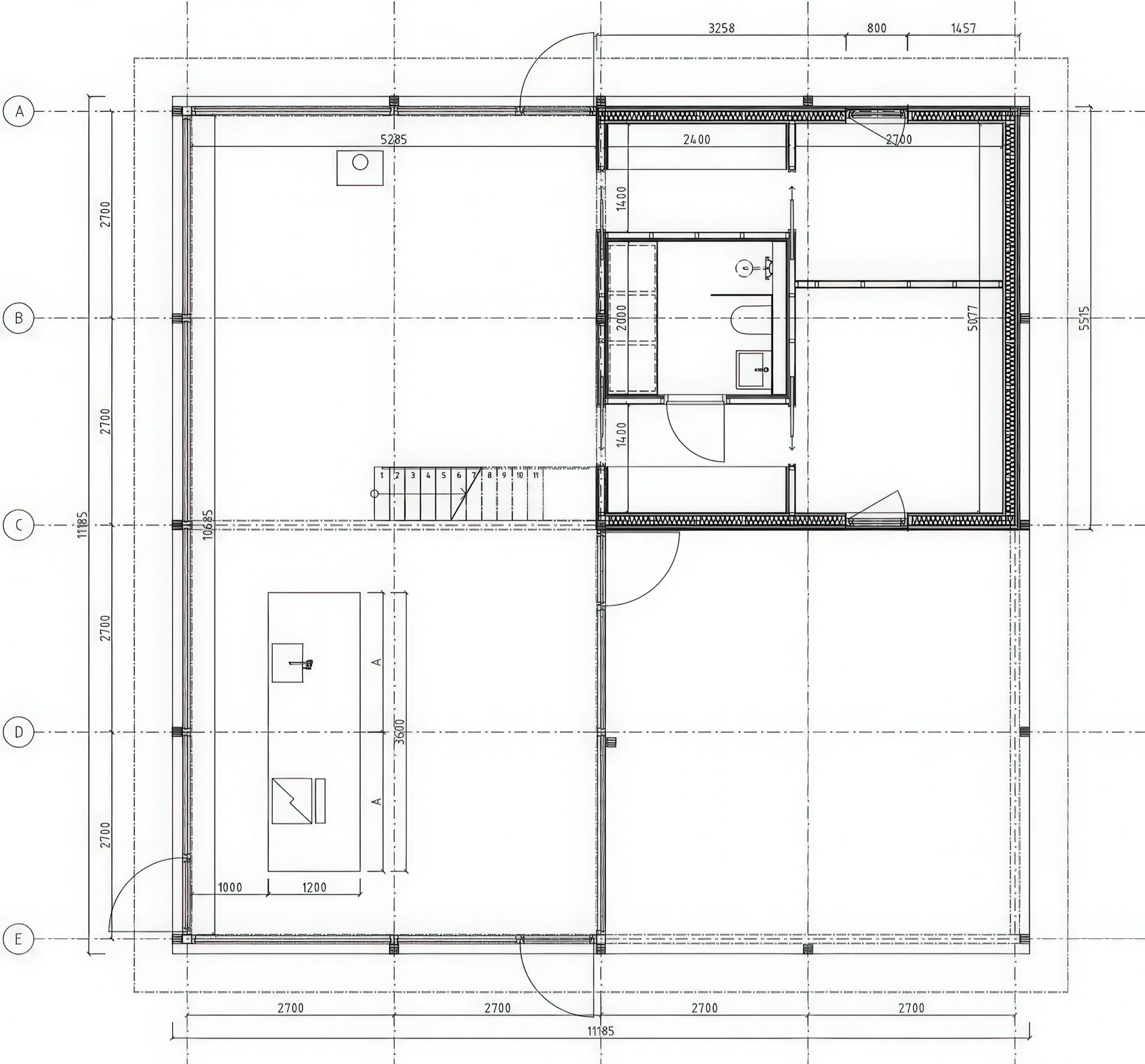
迪朱维克之家 / House in Djupvik | Arrhov Frick Arrhov Frick • 2025-12-26 下午8:51 • 住宅建筑设计, 建筑师设计, 建筑设计, 独立住宅, 独立住宅设计 迪朱维克之家由Arrhov Frick建筑事务所设计,位于瑞典厄兰岛迪朱维克地区,是一座独立住宅。项目通过简洁的方形木结构和玻璃立面,在规划限制内创造开放空间,巧妙利用阁楼设计实现海景视野。 设计: Arrhov Frick 类型: 独立住宅设计 功能: 独立住宅 风格: 现代主义 材料: 木材 玻璃 尺度: 小型建筑 地点:厄兰岛 时间: 2010年 项目概述 迪朱维克之家位于瑞典厄兰岛迪朱维克地区,是一座独立住宅项目。建筑采用方形平面布局,总面积控制在规划限制范围内,设计年份未明确标注。 设计理念 Arrhov Frick建筑事务所的设计理念源于对厄兰岛独特景观的回应,在严格的规划限制下寻求空间品质。设计通过简洁的几何形态和材料选择,营造与自然环境对话的建筑体验。 空间与功能 建筑内部设有三个阁楼空间,分别作为卧室、客厅和室外悬挂网床区域。25平方米的悬挂网床创造独特的户外休憩体验,细长的梁结构在保证空间开阔感的同时支撑阁楼功能。 材料与技术 项目采用木结构框架和玻璃幕墙系统,梁结构尽可能轻薄以实现宽敞室内空间。材料选择注重与周边环境的协调,玻璃立面增强室内外视觉联系。 项目特色与启发 迪朱维克之家的特色在于在规划限制下实现海景视野的创新解决方案,为小型住宅设计提供了如何在有限条件下创造丰富空间体验的参考范例。 设计团队 Arrhov Frick是瑞典的建筑事务所,专注于住宅和公共建筑设计,以简洁的形式语言和对场地特征的敏锐回应著称,在迪朱维克之家项目中展现了在限制条件下创造优质空间的能力。 项目概述 迪朱维克之家位于瑞典厄兰岛迪朱维克地区,是一座独立住宅项目。建筑采用方形平面布局,总面积控制在规划限制范围内,设计年份未明确标注。 设计理念 Arrhov Frick建筑事务所的设计理念源于对厄兰岛独特景观的回应,在严格的规划限制下寻求空间品质。设计通过简洁的几何形态和材料选择,营造与自然环境对话的建筑体验。 空间与功能 建筑内部设有三个阁楼空间,分别作为卧室、客厅和室外悬挂网床区域。25平方米的悬挂网床创造独特的户外休憩体验,细长的梁结构在保证空间开阔感的同时支撑阁楼功能。 材料与技术 项目采用木结构框架和玻璃幕墙系统,梁结构尽可能轻薄以实现宽敞室内空间。材料选择注重与周边环境的协调,玻璃立面增强室内外视觉联系。 项目特色与启发 迪朱维克之家的特色在于在规划限制下实现海景视野的创新解决方案,为小型住宅设计提供了如何在有限条件下创造丰富空间体验的参考范例。 设计团队 Arrhov Frick是瑞典的建筑事务所,专注于住宅和公共建筑设计,以简洁的形式语言和对场地特征的敏锐回应著称,在迪朱维克之家项目中展现了在限制条件下创造优质空间的能力。 本文来自 © Arrhov Frick, 发布于 © 建筑学院官方网站。 未经授权,禁止转载或摘编。 编辑版本版权归 © 建筑学院官方网站 所有, 设计、图纸及照片版权归设计方 © Arrhov Frick ↗ 所有。 查看作者在建筑学院发布的更多作品: Arrhov Frick @ 建筑学院官方网站 Arrhov Frickhouse-in-djupvik厄兰岛建筑独立住宅设计 Arrhov Frick事务所 & 设计师 下载原图 收藏 0 关于作者 Arrhov Frick事务所 & 设计师 关注私信 16 文章 0 评论 1 粉丝 Arrhov Frick 是由 Johan Arrhov 和 Henrik Frick 于2010年在斯德哥尔摩创立的建筑事务所。他们以清晰的建造逻辑、实用的空间规划和极简的美学著称,设计涵盖私人住宅、集合住宅及文化建筑。其官网 arrhovfrick.se 完整展示了他们的作品与实践理念。 健康疗养在哈巴纳 / Wellness Retreat in Habarana | 帕琳达·坎南加拉|Palinda Kannangara 上一篇 2025-12-26 下午8:39 亚马逊社区行业 / Amazon Community Industry | Estúdio Gustavo Utrabo 下一篇 2025-12-26 下午9:01 猜你喜欢 克拉多伊村屋 House in Campolide | 艾雷斯·马特乌斯建筑事务所|Aires Mateus 2025-10-30 公共建筑设计 汉马尔比乌花园住宅区 / Hammarby Gård Housing Block | Arrhov Frick 2026-01-22 住宅建筑设计 阿尔泰罗尼海岸上的房子 / House on the Alentejo Coast | 艾雷斯·马特乌斯建筑事务所 2025-11-09 公共建筑设计 异域宅院 / Alien House | 阿尔弗雷多·帕亚|Alfredo Payá 2025-12-02 公共建筑设计 CASA EN FONTINHA / House in Fontinha | 艾雷斯·马特乌斯建筑事务所|Aires Mateus 2025-11-14 公共建筑设计 梅诺卡的Son Parc住宅 / Son Parc House in Menorca | RCR 建筑事务所|RCR Arquitectes 2025-11-19 公共建筑设计 发表回复 请登录后评论...登录后才能评论 提交