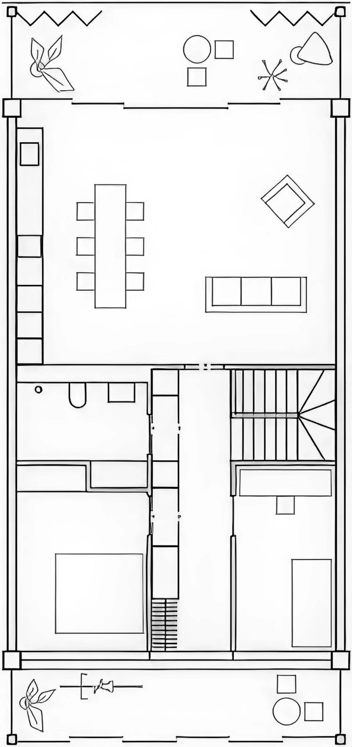
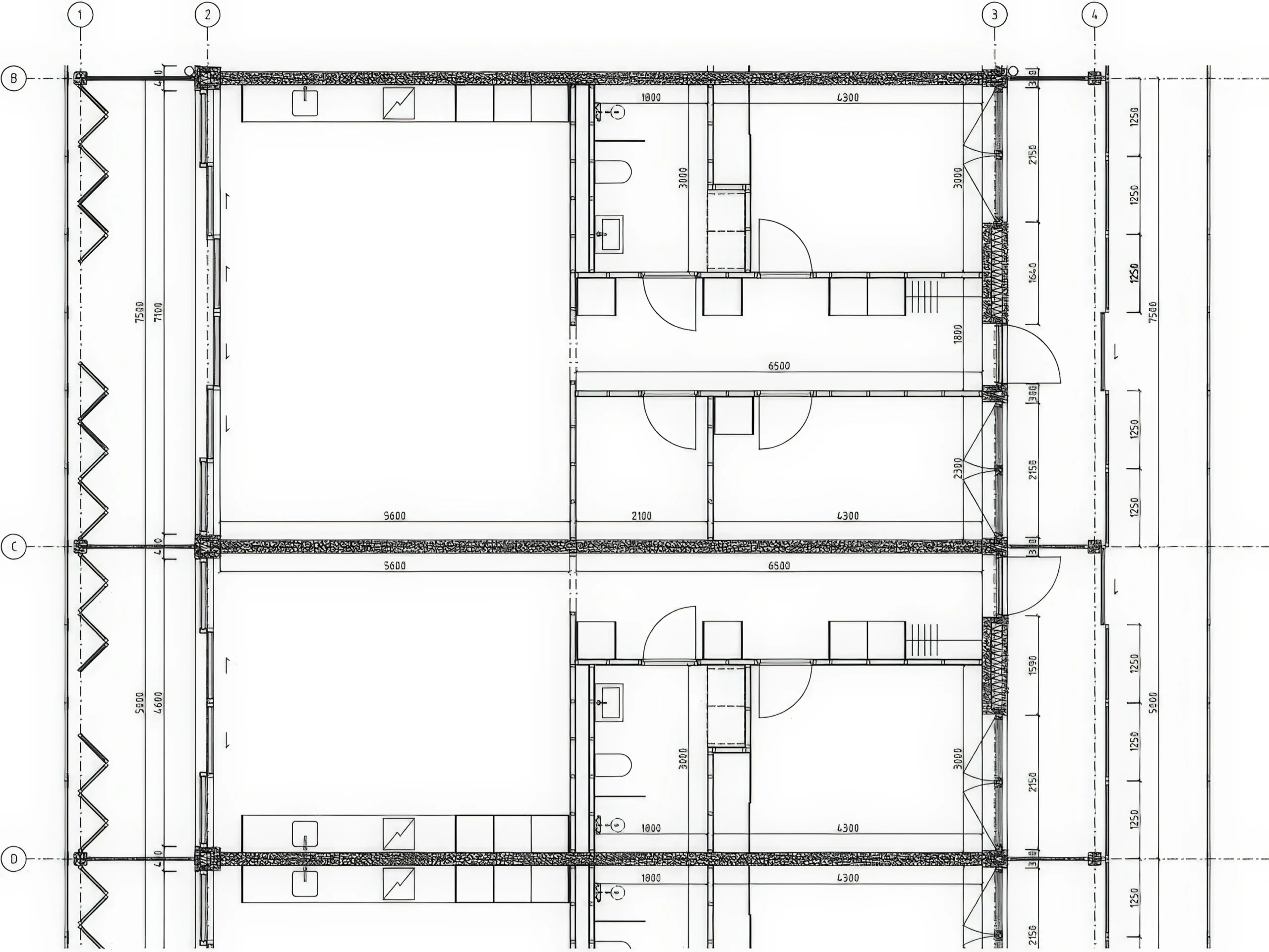
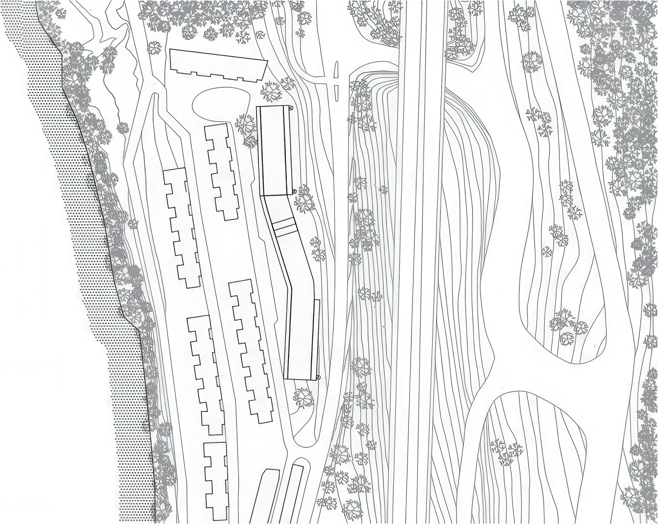
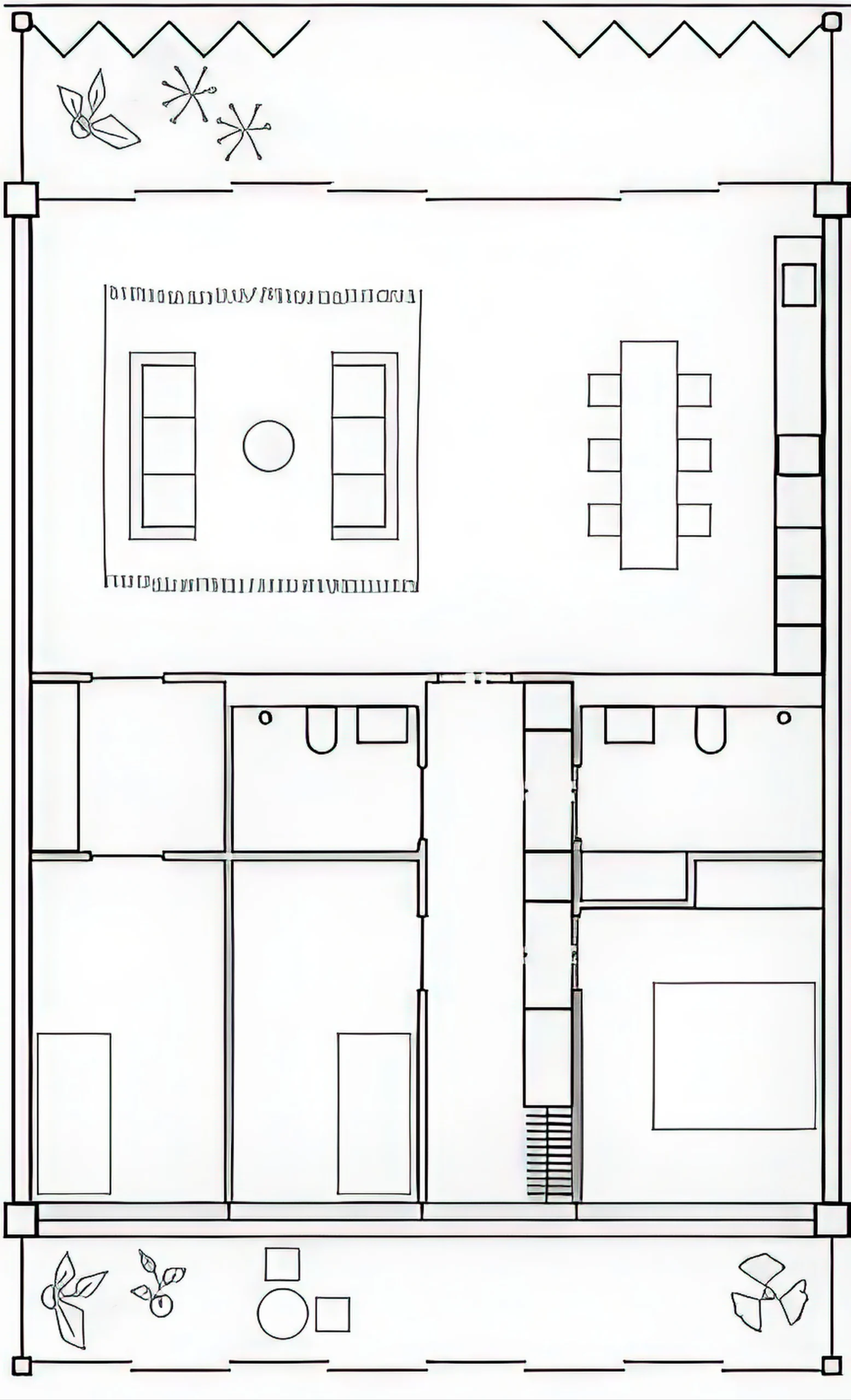
布鲁斯特波特住宅区 / Brunstorp Residential Complex | Arrhov Frick Arrhov Frick • 2026-01-04 下午7:59 • 公寓住宅设计, 建筑师 布鲁斯特波特住宅区位于瑞典延雪平市郊,由Arrhov Frick建筑事务所设计,包含90套住宅单元。项目通过最大化场地利用,创造长条形的南北向建筑体量,为每户居民提供面向韦特恩湖的全景视野,在成本控制的前提下实现高品质居住体验。 设计: Arrhov Frick 类型: 建筑师 功能: 独立住宅 风格: 现代主义 材料: 混凝土 木材 玻璃 尺度: 中型建筑 地点:延雪平 时间: 2019年 项目概述 布鲁斯特波特住宅区位于瑞典延雪平市郊的布伦斯托普地区,是一个包含90套住宅单元的综合居住项目。项目由Arrhov Frick建筑事务所设计,于2016年至2018年间完成,包括传统公寓、联排住宅和大型单元等多种住宅类型,所有单元均配备宽敞的户外空间。 设计理念 设计团队的核心构思是确保每位居民都能享有韦特恩湖的全景视野。项目充分利用场地地形,创造长条形南北向建筑体量,将卧室朝向东方,起居空间面向西方湖泊,最大化自然采光与景观视野,同时在当地市场限制下实现经济可行的住宅解决方案。 空间与功能 布鲁斯特波特住宅区根据地形分为三个区段,空间布局自然合理。项目提供多样化的住宅类型选择,包括传统公寓、联排住宅和大型单元,所有单元均设有面向湖泊的宽敞阳台和大尺寸推拉门,增强室内外空间连接。顶层还设有共享露台和小型桑拿房,延续项目对湖景视野的重视。 材料与技术 项目采用预制构件系统,与制造商密切合作开发高效灵活的建筑体系。设计过程中注重主要构造细节的优化,在保证建筑质量的同时控制成本。建筑材料选择注重实用性与耐久性,符合瑞典建筑工业的标准要求。 项目特色与启发 布鲁斯特波特住宅区展示了在预算限制下如何实现高品质住宅设计的可能性。项目通过精心规划的空间组织和景观视野设计,证明了经济适用住宅同样可以提供优越的生活品质,为类似条件下的住宅开发提供了有价值的参考。 设计团队 Arrhov Frick是瑞典知名建筑事务所,专注于住宅和公共建筑设计。事务所擅长在复杂场地条件和预算限制下创造具有特色的建筑解决方案,注重空间质量、材料表达与环境响应,在瑞典建筑界享有良好声誉。 项目概述 布鲁斯特波特住宅区位于瑞典延雪平市郊的布伦斯托普地区,是一个包含90套住宅单元的综合居住项目。项目由Arrhov Frick建筑事务所设计,于2016年至2018年间完成,包括传统公寓、联排住宅和大型单元等多种住宅类型,所有单元均配备宽敞的户外空间。 设计理念 设计团队的核心构思是确保每位居民都能享有韦特恩湖的全景视野。项目充分利用场地地形,创造长条形南北向建筑体量,将卧室朝向东方,起居空间面向西方湖泊,最大化自然采光与景观视野,同时在当地市场限制下实现经济可行的住宅解决方案。 空间与功能 布鲁斯特波特住宅区根据地形分为三个区段,空间布局自然合理。项目提供多样化的住宅类型选择,包括传统公寓、联排住宅和大型单元,所有单元均设有面向湖泊的宽敞阳台和大尺寸推拉门,增强室内外空间连接。顶层还设有共享露台和小型桑拿房,延续项目对湖景视野的重视。 材料与技术 项目采用预制构件系统,与制造商密切合作开发高效灵活的建筑体系。设计过程中注重主要构造细节的优化,在保证建筑质量的同时控制成本。建筑材料选择注重实用性与耐久性,符合瑞典建筑工业的标准要求。 项目特色与启发 布鲁斯特波特住宅区展示了在预算限制下如何实现高品质住宅设计的可能性。项目通过精心规划的空间组织和景观视野设计,证明了经济适用住宅同样可以提供优越的生活品质,为类似条件下的住宅开发提供了有价值的参考。 设计团队 Arrhov Frick是瑞典知名建筑事务所,专注于住宅和公共建筑设计。事务所擅长在复杂场地条件和预算限制下创造具有特色的建筑解决方案,注重空间质量、材料表达与环境响应,在瑞典建筑界享有良好声誉。 本文来自 © Arrhov Frick, 发布于 © 建筑学院官方网站。 未经授权,禁止转载或摘编。 编辑版本版权归 © 建筑学院官方网站 所有, 设计、图纸及照片版权归设计方 © Arrhov Frick ↗ 所有。 查看作者在建筑学院发布的更多作品: Arrhov Frick @ 建筑学院官方网站 Arrhov FrickBrunstorp Residential Complex住宅建筑设计延雪平住宅项目 Arrhov Frick事务所 & 设计师 下载原图 收藏 0 关于作者 Arrhov Frick事务所 & 设计师 关注私信 16 文章 0 评论 1 粉丝 Arrhov Frick 是由 Johan Arrhov 和 Henrik Frick 于2010年在斯德哥尔摩创立的建筑事务所。他们以清晰的建造逻辑、实用的空间规划和极简的美学著称,设计涵盖私人住宅、集合住宅及文化建筑。其官网 arrhovfrick.se 完整展示了他们的作品与实践理念。 新加伦西美制药公司大楼 / New Galenicum Pharmaceutical Company Building | HArquitectes 上一篇 2026-01-04 下午7:46 Haddon Baptist Church巴士站 / Bus Stop for Haddon Baptist Church | 安妮·霍尔特罗普|Anne Holtrop 下一篇 2026-01-04 下午8:28 猜你喜欢 霍加根的房子 / House in Hovgarden | Arrhov Frick 2025-12-25 住宅建筑设计 Bredören 住宅 / House in Bredören | Arrhov Frick 建筑事务所 2026-01-20 住宅建筑设计 别墅托维诺森 / Villa Toivonen | Arrhov Frick 2026-01-05 住宅建筑设计 施韦克弗尔根之家 / House on Schopfacker | 贝尔纳多·巴德尔|Bernardo Bader 2025-11-19 公共建筑设计 住宅建筑, 海港城 / Residential Buildings, HafenCity | +6a 建筑事务所|6a architects 2025-11-07 公共建筑设计 安东尼奥·麦卡伊公寓楼 8 / ANTONIO MACEO APARTMENT BUILDING 8 | Taller Héctor Barroso 2026-02-18 住宅建筑设计 发表回复 请登录后评论...登录后才能评论 提交