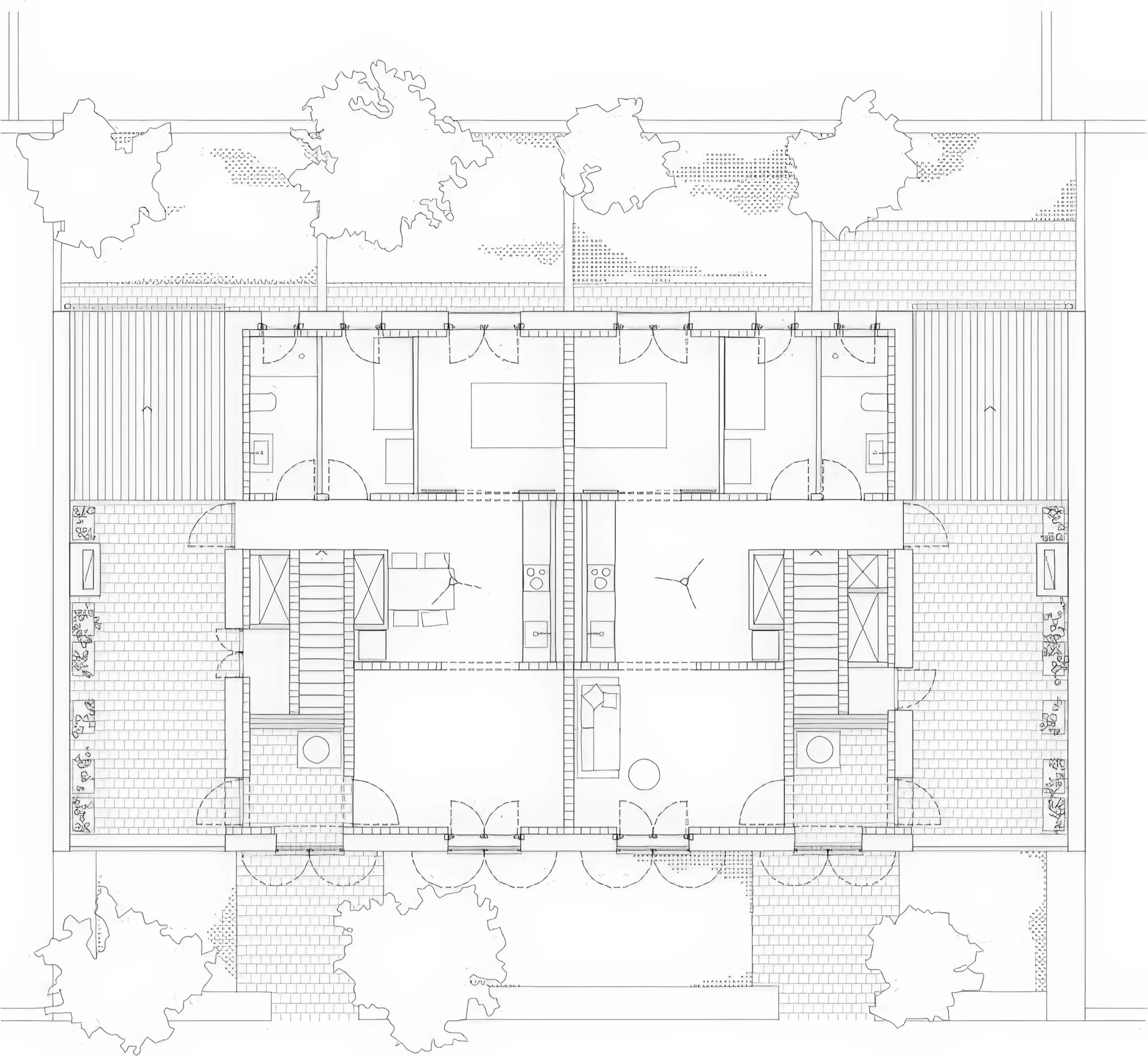
6 VPP Ses Veles / 6 Social Housing Units. Ses Veles | FORTUNY + ALVENTOSA MORELL ARQUITECTES ARQUITECTES • 2026-03-30 上午11:17 • 住宅建筑设计, 公寓住宅设计, 建筑设计 6 VPP Ses Veles 社会住宅项目由 FORTUNY + ALVENTOSA MORELL ARQUITECTES 设计,位于西班牙马略卡岛普伊格普尼恩特市 Ses Veles 新区。该项目包含6套住宅单元,采用创新的可持续设计策略,通过被动式气候调节和本土材料应用,实现建筑与周边城乡环境的和谐共生。 设计: ARQUITECTES 类型: 建筑设计 功能: 公寓住宅 风格: 当代建筑 材料: 混凝土 木材 石材 再生材料 尺度: 小型建筑 地点:普伊格普尼恩特 时间: 2021年 项目概述 6 VPP Ses Veles 社会住宅项目位于西班牙马略卡岛普伊格普尼恩特市的 Ses Veles 新区,由 FORTUNY + ALVENTOSA MORELL ARQUITECTES 设计。项目包含6套住宅单元,其中4套为一居室58平方米地面层住宅,2套为两居室83平方米上层住宅,设计始于2021年,目前仍在建设中。 设计理念 6 VPP Ses Veles 项目的设计理念源于场地作为城市与乡村交界处的特殊位置,建筑作为两种现实之间的”铰链”。设计团队通过现代建筑语言重新诠释当地传统建筑元素,在保持当代性的同时尊重地域文脉,实现新旧环境的有机融合。 空间与功能 6 VPP Ses Veles 住宅采用开放、灵活且无差别的空间组织方式,通过三个结构跨度的叠加形成空间逻辑,其中厨房作为核心空间。服务空间(浴室和洗衣房)与垂直连接集中在平面两个中心点,释放其余可用空间。所有住宅均为穿堂式布局,拥有东西双向朝向,西向临街,东向面向庭院,有效改善室内空气质量。 材料与技术 6 VPP Ses Veles 项目外墙采用石灰建造的巨石墙,使用回收软木屑作为保温材料,基础开挖的土石方直接用于立面材料。木制门窗和遮阳系统,屋顶在冬季作为集热元件,夏季作为通风空间,通过被动式策略解决建筑能耗问题,最大限度减少住宅能源消耗。 项目特色与启发 6 VPP Ses Veles 项目的特色在于其创新的可持续设计方法,通过材料循环利用和被动式气候调节技术,展示了社会住宅在环境响应性和资源效率方面的潜力。该项目为经济适用房设计提供了新的参考模式,特别是在地中海气候区的城乡过渡地带。 设计团队 FORTUNY + ALVENTOSA MORELL ARQUITECTES 是西班牙的建筑设计事务所,专注于可持续建筑与社会住宅设计。团队擅长将传统建造技艺与现代技术结合,在尊重地域文脉的同时实现建筑的环境性能优化,6 VPP Ses Veles 项目体现了其在这一领域的专业能力。 项目概述 6 VPP Ses Veles 社会住宅项目位于西班牙马略卡岛普伊格普尼恩特市的 Ses Veles 新区,由 FORTUNY + ALVENTOSA MORELL ARQUITECTES 设计。项目包含6套住宅单元,其中4套为一居室58平方米地面层住宅,2套为两居室83平方米上层住宅,设计始于2021年,目前仍在建设中。 设计理念 6 VPP Ses Veles 项目的设计理念源于场地作为城市与乡村交界处的特殊位置,建筑作为两种现实之间的”铰链”。设计团队通过现代建筑语言重新诠释当地传统建筑元素,在保持当代性的同时尊重地域文脉,实现新旧环境的有机融合。 空间与功能 6 VPP Ses Veles 住宅采用开放、灵活且无差别的空间组织方式,通过三个结构跨度的叠加形成空间逻辑,其中厨房作为核心空间。服务空间(浴室和洗衣房)与垂直连接集中在平面两个中心点,释放其余可用空间。所有住宅均为穿堂式布局,拥有东西双向朝向,西向临街,东向面向庭院,有效改善室内空气质量。 材料与技术 6 VPP Ses Veles 项目外墙采用石灰建造的巨石墙,使用回收软木屑作为保温材料,基础开挖的土石方直接用于立面材料。木制门窗和遮阳系统,屋顶在冬季作为集热元件,夏季作为通风空间,通过被动式策略解决建筑能耗问题,最大限度减少住宅能源消耗。 项目特色与启发 6 VPP Ses Veles 项目的特色在于其创新的可持续设计方法,通过材料循环利用和被动式气候调节技术,展示了社会住宅在环境响应性和资源效率方面的潜力。该项目为经济适用房设计提供了新的参考模式,特别是在地中海气候区的城乡过渡地带。 设计团队 FORTUNY + ALVENTOSA MORELL ARQUITECTES 是西班牙的建筑设计事务所,专注于可持续建筑与社会住宅设计。团队擅长将传统建造技艺与现代技术结合,在尊重地域文脉的同时实现建筑的环境性能优化,6 VPP Ses Veles 项目体现了其在这一领域的专业能力。 本文来自 © ARQUITECTES, 发布于 © 建筑学院官方网站。 未经授权,禁止转载或摘编。 编辑版本版权归 © 建筑学院官方网站 所有, 设计、图纸及照片版权归设计方 © ARQUITECTES ↗ 所有。 查看作者在建筑学院发布的更多作品: ARQUITECTES @ 建筑学院官方网站 6 Social Housing Units Ses VelesFORTUNY ALVENTOSA MORELL可持续住宅社会住宅设计马略卡建筑 ARQUITECTES事务所 & 设计师 下载原图 收藏 0 关于作者 ARQUITECTES事务所 & 设计师 关注私信 6 文章 0 评论 0 粉丝 ARQUITECTES 是来自西班牙巴塞罗那的建筑事务所,以其严谨的可持续设计哲学闻名。他们擅长城市采矿策略,改造既有建筑,创造出充满自然光与通风的诗意空间。其官网 harquitectes.com 展示了曾获密斯奖提名的众多作品,是研究当代欧洲生态建筑的重要案例库。 伊维萨与福门特拉音乐舞蹈学院 / Music and Dance Conservatory of Ibiza and Formentera | 阿尔弗雷多·帕亚|Alfredo Payá 上一篇 2026-03-29 下午9:17 两座房子 / House+House | Estúdio Gustavo Utrabo 下一篇 2026-03-30 上午11:32 猜你喜欢 43 VPP Brotad sn / 43 Social Housing Units Brotad sn | OFICI ARQUITECTURA 2026-01-20 住宅建筑设计 人类的尺度 / La Medida Humana | STEPHEN BATES 2026-01-09 住宅建筑设计 6 VPP Ses Veles / 6 Social Housing Units. Ses Veles | FORTUNY + ALVENTOSA MORELL ARQUITECTES 2025-12-19 住宅建筑设计 60个社会住宅,梅里纳克 60 Social Dwellings, Merignac | 布鲁瑟建筑事务所|Bruther 2025-11-24 公共建筑设计 32社交住宅于圣维泽德拉斯帕利戈 / 32 Social Dwellings in San Vicente del Raspeig | 阿尔弗雷多·帕亚|Alfredo Payá 2025-11-13 公共建筑设计 53号建筑 / 42 VPP Cós 49-53 | PERIS TORAL ARQUITECTES 2026-01-21 住宅建筑设计 发表回复 请登录后评论...登录后才能评论 提交