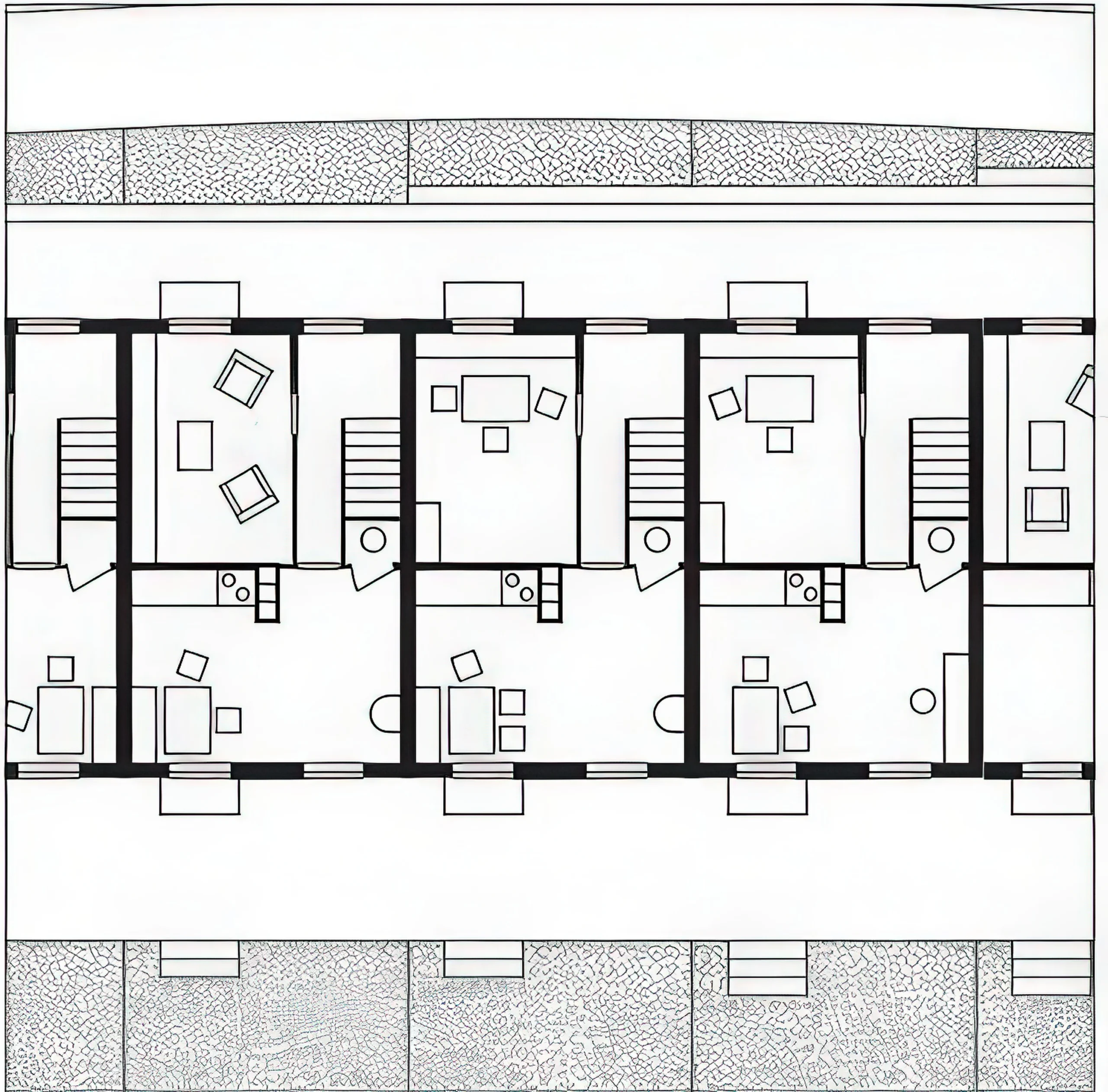
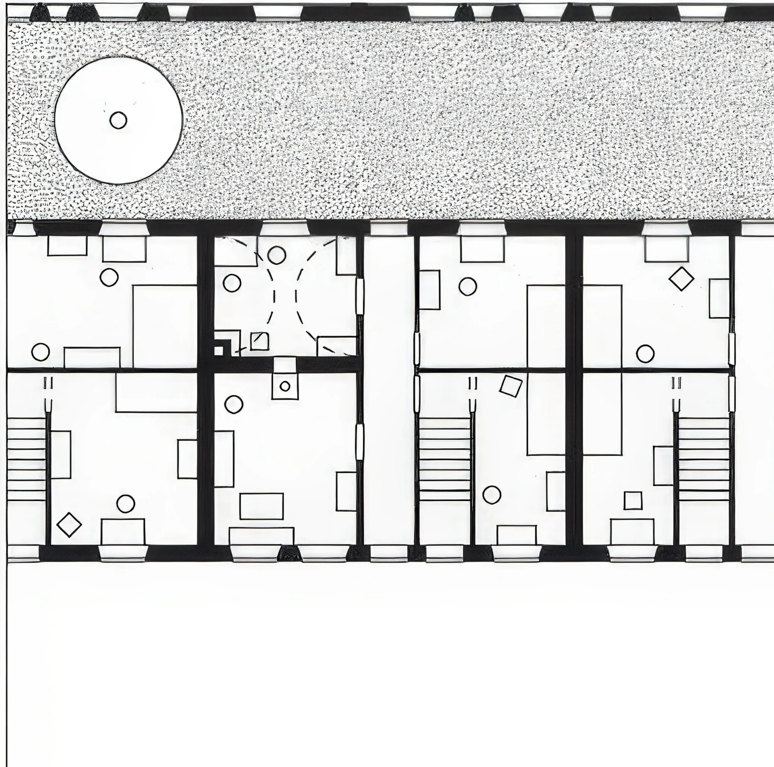
The Home at Work / A Genealogy of Housing for the Laboring Classes | Dogma Dogma • 2026-01-26 下午12:02 • 住宅建筑设计, 公寓住宅设计, 独立住宅, 独立住宅设计 《The Home at Work》是Dogma建筑事务所对工人阶级住宅历史的批判性研究项目,通过分析从古埃及到现代日本的社会住宅案例,揭示了住宅作为劳动力再生产空间的政治本质与家庭劳动性别分工问题。 设计: Dogma 类型: 独立住宅设计 功能: 独立住宅 风格: 当代建筑 材料: 混凝土 钢材 木材 玻璃 尺度: 室内空间 地点: 时间: 1970年 项目概述 《The Home at Work》是Dogma建筑事务所开展的理论研究项目,通过历史案例分析探讨工人阶级住宅的政治维度。项目跨越不同历史时期与地理区域,从古埃及工人村到现代日本团地住宅,系统梳理了住宅作为社会控制工具的发展脉络。 设计理念 项目核心在于揭示住宅空间如何成为资本主义生产体系的重要组成部分。Dogma通过批判性分析指出,住宅设计始终服务于劳动力再生产的目标,通过空间组织强化家庭劳动性别分工,将女性限定在无薪家务劳动领域。 空间与功能 研究涵盖了多种住宅类型空间组织,从Tell el-Dab’a的标准化小户型单元到Fuggerei的简约住宅,再到日本团地的nDK标准化布局。这些空间设计都体现了对家庭生活的高度控制,通过功能分区强化核心家庭模式。 材料与技术 项目重点分析了工业化住宅建造技术,特别是日本团地采用的预制混凝土建造体系。这种技术实现了住宅的大规模标准化生产,反映了住宅作为工业产品的本质特征。 项目特色与启发 该项目对建筑理论与实践具有重要启发意义,挑战了传统住宅设计的意识形态基础。Dogma的研究促使建筑师重新思考住宅空间的政治含义,为探索集体化家务劳动的新型居住模式提供了理论基础。 设计团队 Dogma是由Pier Vittorio Aureli和Martino Tattara创立的建筑研究事务所,专注于建筑与城市政治经济学研究。团队通过理论写作、教学和设计实践,探索建筑形式与社会生产关系之间的内在联系。 项目概述 《The Home at Work》是Dogma建筑事务所开展的理论研究项目,通过历史案例分析探讨工人阶级住宅的政治维度。项目跨越不同历史时期与地理区域,从古埃及工人村到现代日本团地住宅,系统梳理了住宅作为社会控制工具的发展脉络。 设计理念 项目核心在于揭示住宅空间如何成为资本主义生产体系的重要组成部分。Dogma通过批判性分析指出,住宅设计始终服务于劳动力再生产的目标,通过空间组织强化家庭劳动性别分工,将女性限定在无薪家务劳动领域。 空间与功能 研究涵盖了多种住宅类型空间组织,从Tell el-Dab’a的标准化小户型单元到Fuggerei的简约住宅,再到日本团地的nDK标准化布局。这些空间设计都体现了对家庭生活的高度控制,通过功能分区强化核心家庭模式。 材料与技术 项目重点分析了工业化住宅建造技术,特别是日本团地采用的预制混凝土建造体系。这种技术实现了住宅的大规模标准化生产,反映了住宅作为工业产品的本质特征。 项目特色与启发 该项目对建筑理论与实践具有重要启发意义,挑战了传统住宅设计的意识形态基础。Dogma的研究促使建筑师重新思考住宅空间的政治含义,为探索集体化家务劳动的新型居住模式提供了理论基础。 设计团队 Dogma是由Pier Vittorio Aureli和Martino Tattara创立的建筑研究事务所,专注于建筑与城市政治经济学研究。团队通过理论写作、教学和设计实践,探索建筑形式与社会生产关系之间的内在联系。 本文来自 © Dogma, 发布于 © 建筑学院官方网站。 未经授权,禁止转载或摘编。 编辑版本版权归 © 建筑学院官方网站 所有, 设计、图纸及照片版权归设计方 © Dogma ↗ 所有。 查看作者在建筑学院发布的更多作品: Dogma @ 建筑学院官方网站 Dogma事务所the-home-at-work工人阶级住宅研究批判性建筑研究社会住宅历史 Dogma事务所 & 设计师 下载原图 收藏 0 关于作者 Dogma事务所 & 设计师 关注私信 19 文章 0 评论 1 粉丝 DOGMA建筑事务所致力于通过设计回应居住与城市的社会性议题,其工作涵盖合作住房、社会住宅及城市转型规划。他们在深圳、巴塞尔、苏黎世、墨西哥城等地均有建成实践,并以《Living and Working》一书荣获2022年DAM建筑图书奖。访问 dogma.name 可查阅其完整作品与理论研究。 COMMUNAL VILLA / COMMUNAL VILLA | Dogma 上一篇 2026-01-26 下午12:01 多登山谷城市转型与重塑 / Dender Valley Urban Transformation and Retrofitting | Dogma 下一篇 2026-01-27 上午10:51 猜你喜欢 大学校园系统理论模型 / Theoretical Model for a System of University Campuses | Dogma 2026-01-25 概念建筑 Osong生物洼地规划 / Masterplan for the Osong Biovalley | Dogma 2026-01-28 城市规划 发表回复 请登录后评论...登录后才能评论 提交