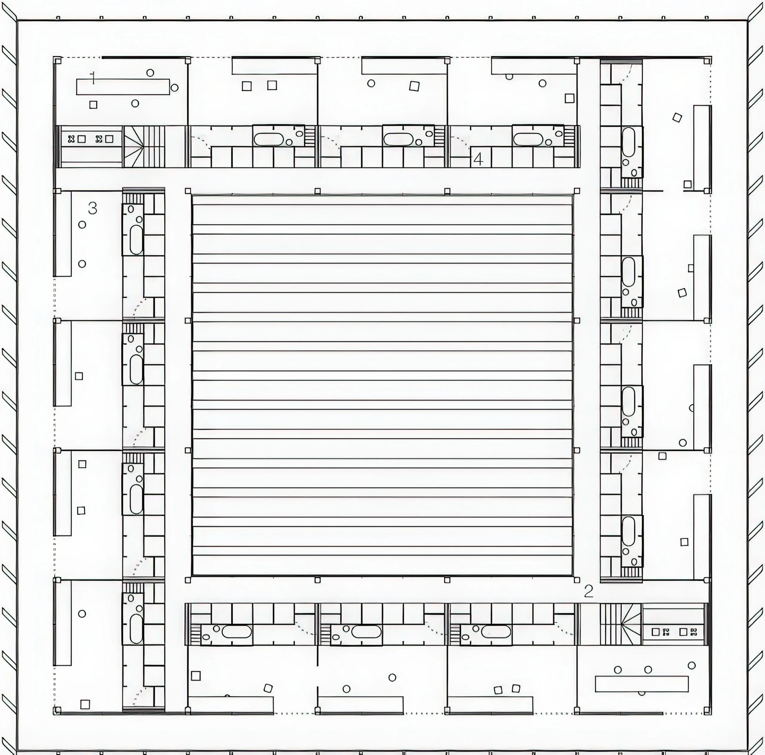
COMMUNAL VILLA / COMMUNAL VILLA | Dogma Dogma • 2026-01-26 下午12:01 • 住宅建筑设计, 公寓住宅设计, 建筑设计 COMMUNAL VILLA是由Dogma建筑事务所设计的艺术家住宅原型项目,位于德国柏林。该项目为50位艺术家提供生活与工作融合的共享空间,通过预制钢结构与模块化设计实现低成本建造,挑战传统住宅与工作空间的界限划分。 设计: Dogma 类型: 建筑设计 功能: 公寓住宅 风格: 当代建筑 材料: 钢材 木材 尺度: 中型建筑 地点:柏林 时间: 2015年 项目概述 COMMUNAL VILLA是Dogma建筑事务所为50位艺术家设计的住宅原型项目,位于德国柏林。该项目采用预制钢结构体系,基于7.5米×7.5米×5米的模块化单元构建,旨在为艺术家群体提供融合生活与创作的共享居住环境。 设计理念 COMMUNAL VILLA项目挑战传统住宅概念,打破生活与工作空间的严格界限。设计基于三个核心原则:采用德国Mietshäuser Syndikat租户联盟的非营利管理模式;利用柏林闲置的公共土地资源;通过工业化预制建造方式降低建设成本,实现经济可行的艺术家社区。 空间与功能 COMMUNAL VILLA的空间组织围绕”可居住墙体”概念展开,这些固定墙体划分私人单元与集体空间。建筑包含三层功能布局:底层设置嘈杂工作室、游泳池和桑拿等共享设施;中层为主要的集体多功能空间;上层为个人工作室和画廊空间,形成从私密到开放的空间序列。 材料与技术 项目采用预制钢结构体系,所有承重构件保持可见,便于未来改造。内部隔断使用可拆卸的木制构件,唯一固定的”可居住墙体”集成了睡眠区、卫生间和私人储物功能,体现了建筑的可适应性与灵活性。 项目特色与启发 COMMUNAL VILLA项目展示了如何通过创新的空间组织与建造方式,为艺术家群体创造经济可行的共享居住模式。该项目为城市闲置土地的有效利用和创意社区建设提供了重要参考,体现了Dogma建筑事务所在社会住宅领域的探索精神。 设计团队 Dogma建筑事务所专注于建筑理论与设计实践,致力于探索建筑与社会、政治的关系。事务所与Realism Working Group合作完成的COMMUNAL VILLA项目,体现了其在经济适用住房和集体居住模式方面的深入研究与创新实践。 项目概述 COMMUNAL VILLA是Dogma建筑事务所为50位艺术家设计的住宅原型项目,位于德国柏林。该项目采用预制钢结构体系,基于7.5米×7.5米×5米的模块化单元构建,旨在为艺术家群体提供融合生活与创作的共享居住环境。 设计理念 COMMUNAL VILLA项目挑战传统住宅概念,打破生活与工作空间的严格界限。设计基于三个核心原则:采用德国Mietshäuser Syndikat租户联盟的非营利管理模式;利用柏林闲置的公共土地资源;通过工业化预制建造方式降低建设成本,实现经济可行的艺术家社区。 空间与功能 COMMUNAL VILLA的空间组织围绕”可居住墙体”概念展开,这些固定墙体划分私人单元与集体空间。建筑包含三层功能布局:底层设置嘈杂工作室、游泳池和桑拿等共享设施;中层为主要的集体多功能空间;上层为个人工作室和画廊空间,形成从私密到开放的空间序列。 材料与技术 项目采用预制钢结构体系,所有承重构件保持可见,便于未来改造。内部隔断使用可拆卸的木制构件,唯一固定的”可居住墙体”集成了睡眠区、卫生间和私人储物功能,体现了建筑的可适应性与灵活性。 项目特色与启发 COMMUNAL VILLA项目展示了如何通过创新的空间组织与建造方式,为艺术家群体创造经济可行的共享居住模式。该项目为城市闲置土地的有效利用和创意社区建设提供了重要参考,体现了Dogma建筑事务所在社会住宅领域的探索精神。 设计团队 Dogma建筑事务所专注于建筑理论与设计实践,致力于探索建筑与社会、政治的关系。事务所与Realism Working Group合作完成的COMMUNAL VILLA项目,体现了其在经济适用住房和集体居住模式方面的深入研究与创新实践。 本文来自 © Dogma, 发布于 © 建筑学院官方网站。 未经授权,禁止转载或摘编。 编辑版本版权归 © 建筑学院官方网站 所有, 设计、图纸及照片版权归设计方 © Dogma ↗ 所有。 查看作者在建筑学院发布的更多作品: Dogma @ 建筑学院官方网站 communal villaDogma建筑事务所共享居住柏林建筑艺术家住宅设计 Dogma事务所 & 设计师 下载原图 收藏 0 关于作者 Dogma事务所 & 设计师 关注私信 19 文章 0 评论 1 粉丝 DOGMA建筑事务所致力于通过设计回应居住与城市的社会性议题,其工作涵盖合作住房、社会住宅及城市转型规划。他们在深圳、巴塞尔、苏黎世、墨西哥城等地均有建成实践,并以《Living and Working》一书荣获2022年DAM建筑图书奖。访问 dogma.name 可查阅其完整作品与理论研究。 44套社会住房单位 / Proposal for 44 Social Housing Units | Dogma 上一篇 2026-01-25 上午10:24 The Home at Work / A Genealogy of Housing for the Laboring Classes | Dogma 下一篇 2026-01-26 下午12:02 猜你喜欢 艺术家避暑所 帕特鲁加纳拉 / Artists’ Retreat in Pittugala | 帕琳达·坎南加拉|Palinda Kannangara 2025-12-25 住宅建筑设计 Bötzow啤酒厂的改造 Conversion of Bötzow Brewery | 大卫·奇珀菲尔德建筑事务所|David Chipperfield 2025-11-25 公共建筑设计 阿兹赫诺瓦尔别墅,辛特拉 / Vila Adeuzinho House, Sintra | 阿尔瓦罗·西扎|Álvaro Siza 2026-03-01 住宅建筑设计 伦敦寄宿屋原型 / Prototype for Boarding Houses in London | Dogma 2026-01-28 住宅建筑设计 两座社会住房楼项目 / Project for Two Social Housing Blocks | Dogma 2026-01-29 住宅建筑设计 阿兹赫诺瓦尔别墅,辛特拉 / Vila Adeuzinho House, Sintra | 阿尔瓦罗·西扎|Álvaro Siza 2025-12-16 住宅建筑设计 发表回复 请登录后评论...登录后才能评论 提交