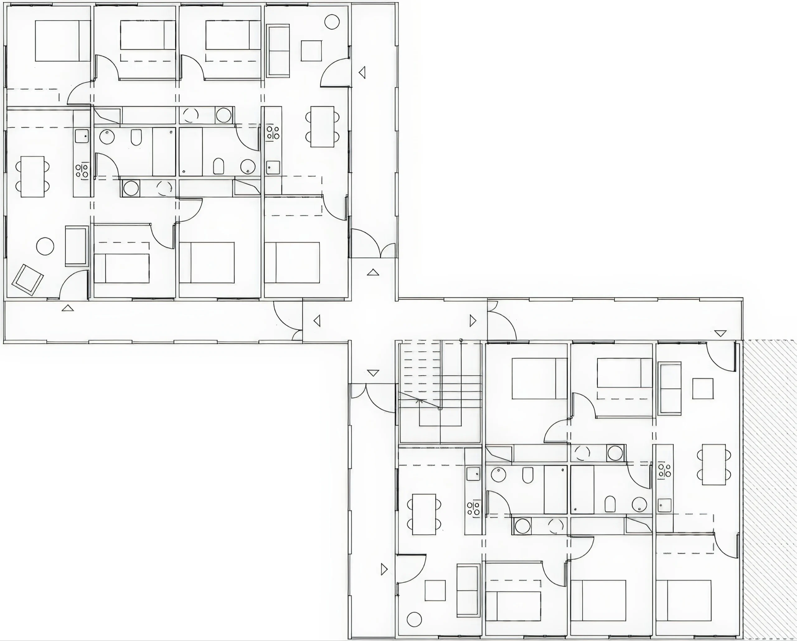
两座社会住房楼项目 / Project for Two Social Housing Blocks | Dogma Dogma • 2026-01-29 下午12:57 • 住宅建筑设计, 公寓住宅设计, 建筑设计 Dogma建筑事务所在墨西哥阿瓜斯卡连特斯设计的两座社会住房楼项目,通过棋盘式布局为每个住宅单元提供均等的空间条件。建筑采用空心砖立面与遮阳廊道系统,创造开放通风的居住环境,体现了社会住房设计的创新理念。 设计: Dogma 类型: 建筑设计 功能: 公寓住宅 风格: 当代建筑 材料: 玻璃 砖材 尺度: 中型建筑 地点:阿瓜斯卡连特斯 时间: 2018年 项目概述 两座社会住房楼项目位于墨西哥阿瓜斯卡连特斯,是大型城市街区总体规划的组成部分。该项目由Dogma建筑事务所设计,包含两栋社会住宅建筑,设计始于2018年,采用创新的棋盘式布局策略。 设计理念 Dogma建筑事务所致力于为每个住宅单元提供均等的空间条件。通过棋盘式街区布局,所有建筑都拥有三个立面直接面向广场或花园,确保每个居住单元都能与至少两个不同的公共空间建立直接联系。 空间与功能 项目将卫生间和内部流线集中在每层中心,使所有房间都能获得宽敞的外部开口。遮阳廊道系统不仅作为水平与垂直交通枢纽,还为有限面积的住宅单元提供了额外的多功能空间,可用作用餐区或工作坊等用途。 材料与技术 建筑采用空心砖立面系统,通过大型开口实现自然通风。遮阳廊道系统有效限制建筑日照暴露,使后方立面可以采用简单的玻璃门窗解决方案,体现了可持续设计策略。 项目特色与启发 两座社会住房楼项目展示了社会住宅设计的创新可能,通过空间均等化策略和灵活的多功能廊道系统,为经济适用房项目提供了新的设计范式,对城市住宅开发具有重要参考价值。 设计团队 Dogma建筑事务所专注于建筑理论与实践研究,以严谨的空间分析和创新的设计策略著称。在该项目中,Dogma与Tatiana Bilbao Estudio、Dellekamp Arquitectos等五家建筑事务所共同参与总体规划开发。 项目概述 两座社会住房楼项目位于墨西哥阿瓜斯卡连特斯,是大型城市街区总体规划的组成部分。该项目由Dogma建筑事务所设计,包含两栋社会住宅建筑,设计始于2018年,采用创新的棋盘式布局策略。 设计理念 Dogma建筑事务所致力于为每个住宅单元提供均等的空间条件。通过棋盘式街区布局,所有建筑都拥有三个立面直接面向广场或花园,确保每个居住单元都能与至少两个不同的公共空间建立直接联系。 空间与功能 项目将卫生间和内部流线集中在每层中心,使所有房间都能获得宽敞的外部开口。遮阳廊道系统不仅作为水平与垂直交通枢纽,还为有限面积的住宅单元提供了额外的多功能空间,可用作用餐区或工作坊等用途。 材料与技术 建筑采用空心砖立面系统,通过大型开口实现自然通风。遮阳廊道系统有效限制建筑日照暴露,使后方立面可以采用简单的玻璃门窗解决方案,体现了可持续设计策略。 项目特色与启发 两座社会住房楼项目展示了社会住宅设计的创新可能,通过空间均等化策略和灵活的多功能廊道系统,为经济适用房项目提供了新的设计范式,对城市住宅开发具有重要参考价值。 设计团队 Dogma建筑事务所专注于建筑理论与实践研究,以严谨的空间分析和创新的设计策略著称。在该项目中,Dogma与Tatiana Bilbao Estudio、Dellekamp Arquitectos等五家建筑事务所共同参与总体规划开发。 本文来自 © Dogma, 发布于 © 建筑学院官方网站。 未经授权,禁止转载或摘编。 编辑版本版权归 © 建筑学院官方网站 所有, 设计、图纸及照片版权归设计方 © Dogma ↗ 所有。 查看作者在建筑学院发布的更多作品: Dogma @ 建筑学院官方网站 Dogma建筑事务所project-for-two-social-housing-blocks当代住宅建筑社会住房设计阿瓜斯卡连特斯住宅 Dogma事务所 & 设计师 下载原图 收藏 0 关于作者 Dogma事务所 & 设计师 关注私信 19 文章 0 评论 1 粉丝 DOGMA建筑事务所致力于通过设计回应居住与城市的社会性议题,其工作涵盖合作住房、社会住宅及城市转型规划。他们在深圳、巴塞尔、苏黎世、墨西哥城等地均有建成实践,并以《Living and Working》一书荣获2022年DAM建筑图书奖。访问 dogma.name 可查阅其完整作品与理论研究。 伦敦寄宿屋原型 / Prototype for Boarding Houses in London | Dogma 上一篇 2026-01-28 上午9:25 Fulham住宅 House, Fulham | Sergison Bates Architects 下一篇 2026-01-30 上午9:26 猜你喜欢 办公园区转型研究 / Study for the Transformation of an Office Park | Dogma 2025-12-30 公共建筑设计 两座房子 / House+House | Estúdio Gustavo Utrabo 2026-03-30 住宅建筑设计 伦敦寄宿屋原型 / Prototype for Boarding Houses in London | Dogma 2026-01-06 住宅建筑设计 洛佩兹科尔蒂亚710公寓楼 / LÓPEZ COTILLA 710 APARTMENT BUILDING | Taller Héctor Barroso 2026-02-18 住宅建筑设计 弗朗茨·麦卡利亚街上的房子 / House on Francesc Macià Street | HArquitectes 2026-04-07 住宅建筑设计 COMMUNAL VILLA / COMMUNAL VILLA | Dogma 2026-01-01 住宅建筑设计 发表回复 请登录后评论...登录后才能评论 提交