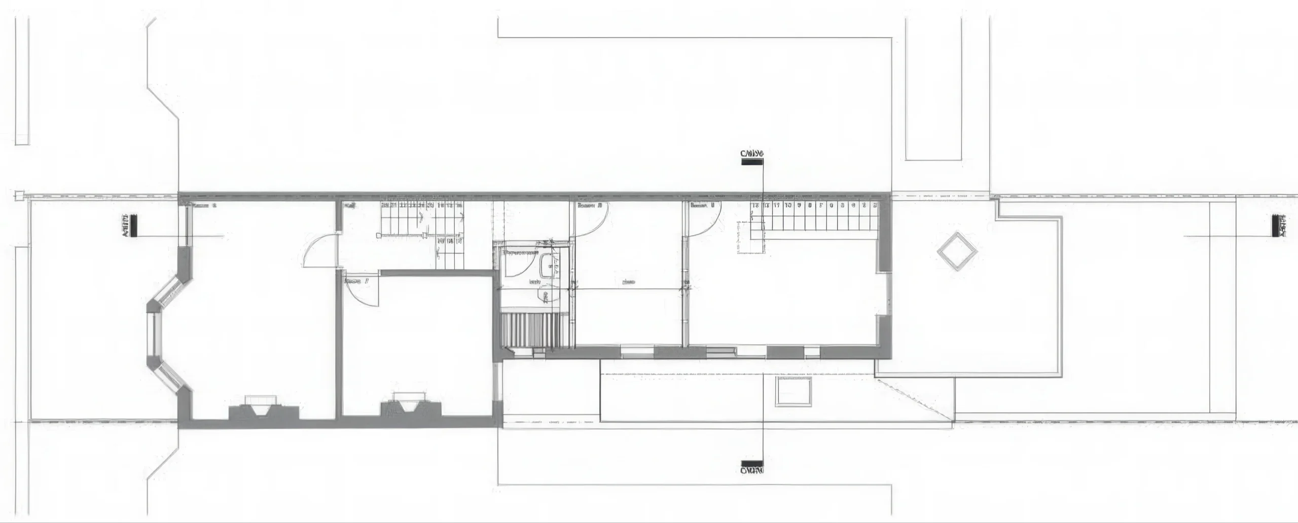
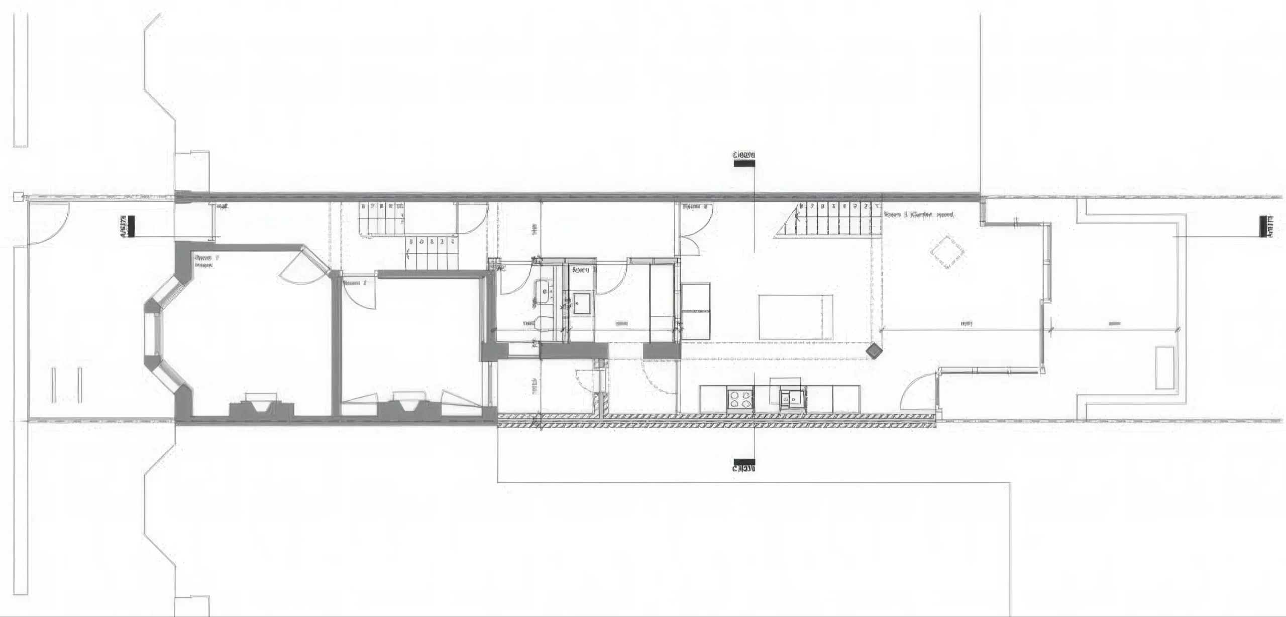
Fulham住宅 House, Fulham | Sergison Bates Architects 6a 建筑事务所|6a architects • 2026-01-30 上午9:26 • 住宅建筑设计, 建筑设计, 独立住宅设计 Fulham住宅是Sergison Bates Architects在伦敦泰晤士河畔Crabtree保护区设计的爱德华时代联排住宅改造项目。设计保留了传统街面风貌,通过后部扩建和屋顶延伸将原有两套公寓整合为单一住宅。核心特色包括受Arts and Crafts运动启发的”花园房间”概念、分层空间组织与材料精细化运用,创造了光影变化的居住体验。 设计: 6a 建筑事务所|6a architects 类型: 独立住宅设计 功能: 独立住宅 风格: 当代建筑 材料: 木材 玻璃 石材 砖材 尺度: 小型建筑 地点:伦敦Crabtree保护区 时间: 2015年 项目简介 Fulham住宅位于英国伦敦泰晤士河畔Crabtree保护区,为爱德华时代联排住宅改造项目。建筑面积通过扩建得到扩展,设计于2013年启动,2015年完工。 设计理念 设计团队在尊重传统联排住宅类型学的基础上,受Mackay Hugh Bailie Scott的”厅堂住宅”理念启发,通过空间重组创造亲密尺度与开放体量的对话。扩建部分以”花园房间”概念回应场地环境,保持街道立面完整性的同时实现内部空间创新。 空间与功能 项目将原有两套公寓整合为单一住宅,通过移除狭窄走廊、设置过渡停留空间优化动线。地面层降低450mm创造3.4米挑高客厅,厨房与花园房间分别以2.15米和3米层高形成空间对比。楼梯延伸至新建二层,保持视觉连续性。 材料与技术 采用再生桃花心木拼花地板、深色木墙板、混凝土瓷砖与石材门槛,配合浅灰色矿物涂料墙面。木结构扩建部分设置黑色染色木饰条控制采光,新建复折屋顶采用与原建筑匹配的石板瓦。 设计团队 Sergison Bates Architects是英国知名建筑事务所,以对居住建筑类型学的深入研究著称,擅长通过材料与空间处理创造具有场所感的建筑作品。 项目简介 Fulham住宅位于英国伦敦泰晤士河畔Crabtree保护区,为爱德华时代联排住宅改造项目。建筑面积通过扩建得到扩展,设计于2013年启动,2015年完工。 设计理念 设计团队在尊重传统联排住宅类型学的基础上,受Mackay Hugh Bailie Scott的”厅堂住宅”理念启发,通过空间重组创造亲密尺度与开放体量的对话。扩建部分以”花园房间”概念回应场地环境,保持街道立面完整性的同时实现内部空间创新。 空间与功能 项目将原有两套公寓整合为单一住宅,通过移除狭窄走廊、设置过渡停留空间优化动线。地面层降低450mm创造3.4米挑高客厅,厨房与花园房间分别以2.15米和3米层高形成空间对比。楼梯延伸至新建二层,保持视觉连续性。 材料与技术 采用再生桃花心木拼花地板、深色木墙板、混凝土瓷砖与石材门槛,配合浅灰色矿物涂料墙面。木结构扩建部分设置黑色染色木饰条控制采光,新建复折屋顶采用与原建筑匹配的石板瓦。 设计团队 Sergison Bates Architects是英国知名建筑事务所,以对居住建筑类型学的深入研究著称,擅长通过材料与空间处理创造具有场所感的建筑作品。 本文来自 © 6a 建筑事务所|6a architects, 发布于 © 建筑学院官方网站。 未经授权,禁止转载或摘编。 编辑版本版权归 © 建筑学院官方网站 所有, 设计、图纸及照片版权归设计方 © 6a 建筑事务所|6a architects ↗ 所有。 查看作者在建筑学院发布的更多作品: 6a 建筑事务所|6a architects @ 建筑学院官方网站 Fulham住宅Sergison Bates Architects伦敦住宅分层空间木结构与砖材联排住宅改造 6a 建筑事务所|6a architects事务所 & 设计师 下载原图 收藏 0 关于作者 6a 建筑事务所|6a architects事务所 & 设计师 关注私信 35 文章 1 评论 0 粉丝 6a architects(6a建筑事务所)是英国知名的建筑设计团队,以其对文化、艺术及教育类建筑的深刻理解而闻名。他们的作品擅长运用精巧的材料与细致的构造,在历史与现代的对话中创造宁静而富有感染力的空间。其代表作包括South London Gallery、MK Gallery改造及剑桥大学校园建筑等。 两座社会住房楼项目 / Project for Two Social Housing Blocks | Dogma 上一篇 2026-01-29 下午12:57 ONE-ROOM HOUSE / HOUSE FOR LIVING AND WORKING | Dogma 下一篇 2026-01-31 上午9:34 猜你喜欢 菲茨罗维亚房子 Fitzrovia House | 卡莫迪·格罗克建筑事务所|Carmody Groarke 2025-11-27 住宅室内设计 Care Home, Wingene Care Home, Wingene | Sergison Bates Architects 2026-02-09 公共建筑设计 发表回复 请登录后评论...登录后才能评论 提交