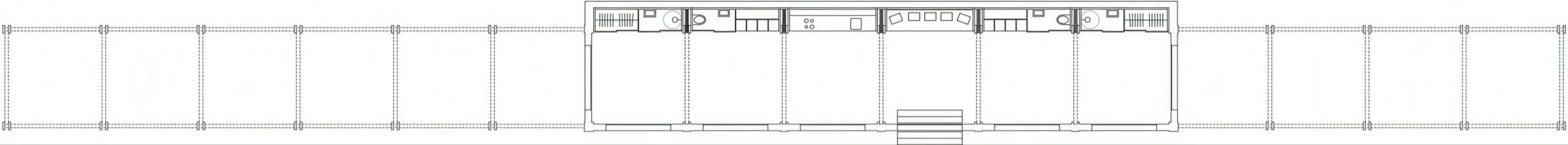
ONE-ROOM HOUSE / HOUSE FOR LIVING AND WORKING | Dogma Dogma • 2026-01-31 上午9:34 • 住宅建筑设计, 建筑设计, 独立住宅设计 ONE-ROOM HOUSE 由 Dogma 建筑事务所设计,位于德国埃德尔湖畔,是一座集居住与工作功能于一体的单空间住宅。项目通过轻质木结构围合中央区域,创造灵活多变的空间体验,重新思考现代居住与工作空间的边界。 设计: Dogma 类型: 独立住宅设计 功能: 独立住宅 风格: 现代主义 材料: 木材 玻璃 尺度: 小型建筑 地点:埃德尔湖 时间: 1970年 项目概述 ONE-ROOM HOUSE 位于德国埃德尔湖畔,是一座集居住与工作功能于一体的单空间住宅。项目由 Dogma 建筑事务所设计,于2017年建成,通过轻质木结构与灵活隔断系统,创造了一个可适应不同使用需求的开放空间。 设计理念 设计灵感来源于20世纪经典住宅案例——密斯·凡·德·罗的范斯沃斯住宅和菲利普·约翰逊的玻璃住宅。项目旨在打破传统住宅功能分区的限制,通过单一空间容纳居住与工作双重功能,回应现代生活对空间灵活性的需求。 空间与功能 建筑采用南北向延伸的凉亭形式,中央区域通过轻质木隔断围合形成主要使用空间。其余凉亭跨度作为入口、休闲区、停车区及未来扩展区域。滑动面板系统可根据需要将单一空间转换为多个功能区域,实现居住与工作模式的自由切换。 材料与技术 结构采用木梁柱构成的凉亭体系,围护结构使用预制木面板配合保温层和外部覆层。服务核心沿东侧边缘集中布置,简化管线分布并降低建造成本,体现了对建造效率与可持续性的考量。 项目特色与启发 ONE-ROOM HOUSE 重新定义了居住与工作的空间关系,为当代混合功能住宅设计提供了新思路。其灵活的空间组织和简洁的结构体系,对小型住宅设计与空间多功能利用具有重要参考价值。 设计团队 Dogma 建筑事务所专注于建筑理论与实践研究,通过项目探索建筑与城市、社会的关系。事务所在住宅设计与空间组织方面具有独特见解,致力于通过建筑回应当代生活需求。 项目概述 ONE-ROOM HOUSE 位于德国埃德尔湖畔,是一座集居住与工作功能于一体的单空间住宅。项目由 Dogma 建筑事务所设计,于2017年建成,通过轻质木结构与灵活隔断系统,创造了一个可适应不同使用需求的开放空间。 设计理念 设计灵感来源于20世纪经典住宅案例——密斯·凡·德·罗的范斯沃斯住宅和菲利普·约翰逊的玻璃住宅。项目旨在打破传统住宅功能分区的限制,通过单一空间容纳居住与工作双重功能,回应现代生活对空间灵活性的需求。 空间与功能 建筑采用南北向延伸的凉亭形式,中央区域通过轻质木隔断围合形成主要使用空间。其余凉亭跨度作为入口、休闲区、停车区及未来扩展区域。滑动面板系统可根据需要将单一空间转换为多个功能区域,实现居住与工作模式的自由切换。 材料与技术 结构采用木梁柱构成的凉亭体系,围护结构使用预制木面板配合保温层和外部覆层。服务核心沿东侧边缘集中布置,简化管线分布并降低建造成本,体现了对建造效率与可持续性的考量。 项目特色与启发 ONE-ROOM HOUSE 重新定义了居住与工作的空间关系,为当代混合功能住宅设计提供了新思路。其灵活的空间组织和简洁的结构体系,对小型住宅设计与空间多功能利用具有重要参考价值。 设计团队 Dogma 建筑事务所专注于建筑理论与实践研究,通过项目探索建筑与城市、社会的关系。事务所在住宅设计与空间组织方面具有独特见解,致力于通过建筑回应当代生活需求。 本文来自 © Dogma, 发布于 © 建筑学院官方网站。 未经授权,禁止转载或摘编。 编辑版本版权归 © 建筑学院官方网站 所有, 设计、图纸及照片版权归设计方 © Dogma ↗ 所有。 查看作者在建筑学院发布的更多作品: Dogma @ 建筑学院官方网站 ONE-ROOM HOUSE住宅与工作空间单空间住宅德国住宅设计现代住宅设计 Dogma事务所 & 设计师 下载原图 收藏 0 关于作者 Dogma事务所 & 设计师 关注私信 19 文章 0 评论 1 粉丝 DOGMA建筑事务所致力于通过设计回应居住与城市的社会性议题,其工作涵盖合作住房、社会住宅及城市转型规划。他们在深圳、巴塞尔、苏黎世、墨西哥城等地均有建成实践,并以《Living and Working》一书荣获2022年DAM建筑图书奖。访问 dogma.name 可查阅其完整作品与理论研究。 Fulham住宅 House, Fulham | Sergison Bates Architects 上一篇 2026-01-30 上午9:26 18世纪农舍修复 / Refurbishment of an 18th Century Farmhouse | HArquitectes 下一篇 2026-01-31 上午9:35 发表回复 请登录后评论...登录后才能评论 提交