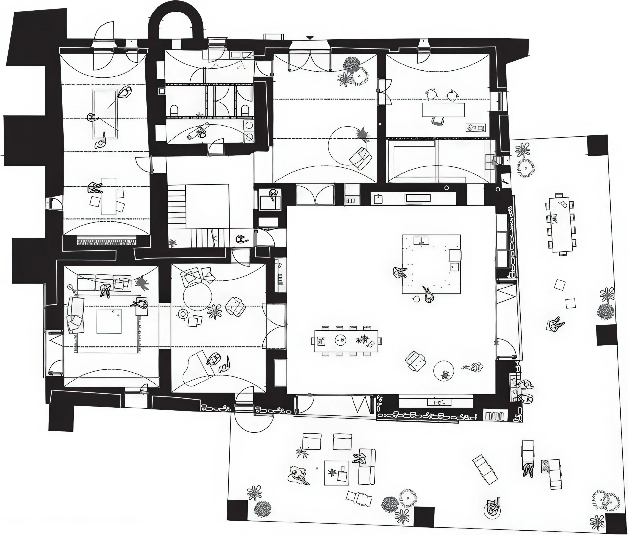
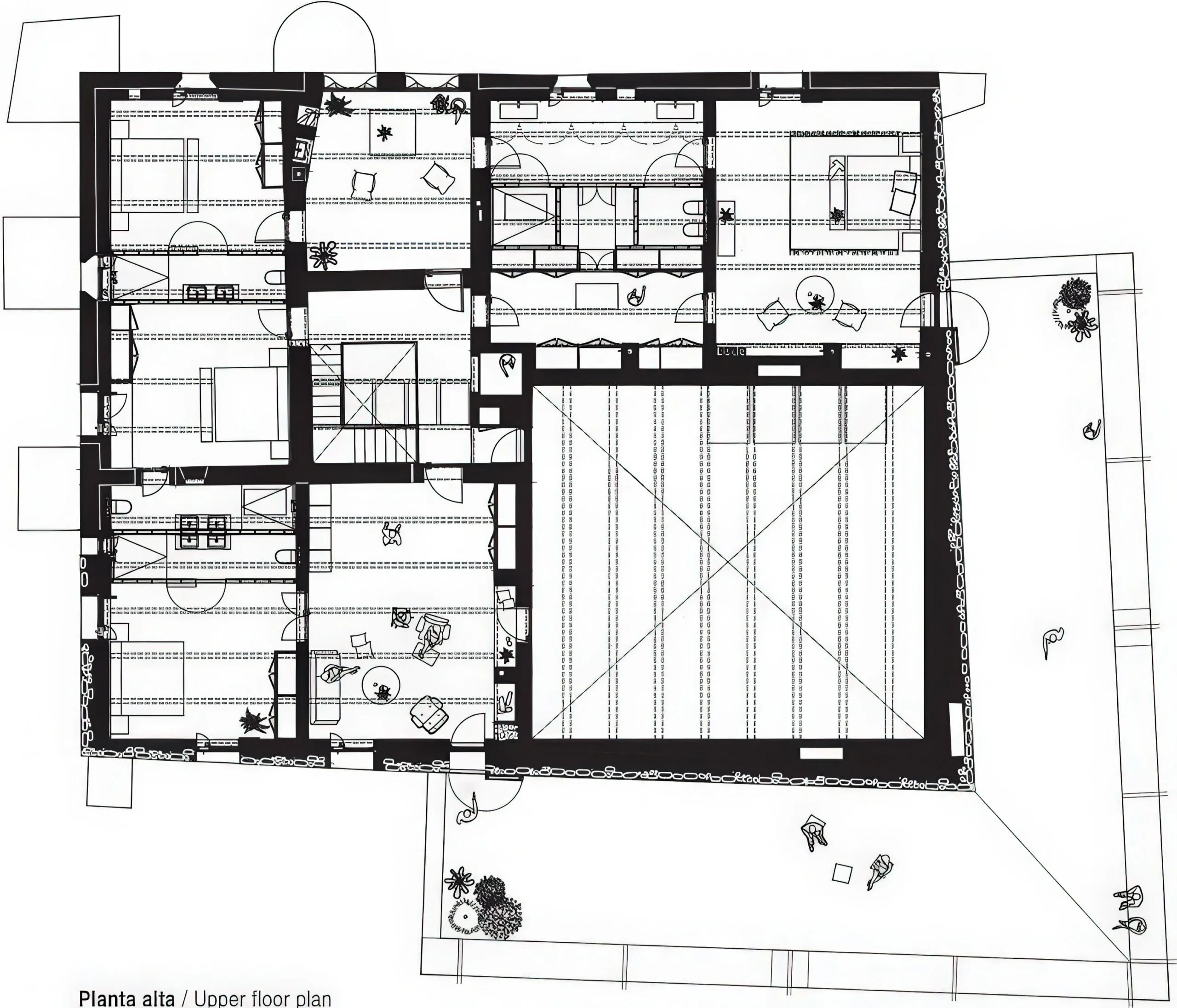
18世纪农舍修复 / Refurbishment of an 18th Century Farmhouse | HArquitectes Harquitectes 建筑师事务所|Harquitectes • 2026-01-31 上午9:35 • 住宅建筑设计, 建筑设计, 独立住宅设计 位于西班牙赫罗纳Baix Empordà地区的18世纪农舍修复项目由HArquitectes设计,通过保留原有石墙、采用回收陶瓦屋顶和粗野混凝土结构,实现了历史建筑与现代可持续设计的完美融合,展现了传统地中海农舍建筑的新生。 设计: Harquitectes 建筑师事务所|Harquitectes 类型: 独立住宅设计 功能: 独立住宅 风格: 地域主义 材料: 混凝土 木材 石材 再生材料 尺度: 小型建筑 地点:赫罗纳 时间: 2016年 项目概述 18世纪农舍修复项目位于西班牙赫罗纳Baix Empordà地区,是一座历史农舍建筑的更新改造项目。该项目由HArquitectes设计,始建于2016年,通过对原有18世纪农舍的修复与重建,实现了历史建筑保护与现代生活需求的平衡。 设计理念 HArquitectes的设计理念强调对历史建筑的文化传承与景观融合。设计团队以”恢复遗产”为核心概念,通过保留原有建筑形态与场地特征,将新建部分完美融入Baix Empordà独特的农业景观中,延续了传统农舍与自然环境的和谐关系。 空间与功能 项目采用正交网格的空间组织方式,底层设置连续的拱顶房间,二层增设面向大海的玻璃廊道空间。100平方米的双层高厨房成为住宅核心,西向葡萄园,南向花园开放。新建的大型门廊创造了地中海传统建筑特有的光影过渡空间,连接室内外环境。 材料与技术 HArquitectes保留了原有的北向和东向石墙,使用回收的陶瓦屋顶和裸露木结构。新建部分采用粗野混凝土墙体,分层浇筑并加入陶粒轻骨料提升保温性能。项目结合地热辐射地板和被动式设计策略,实现了近乎自给自足的热工性能。 项目特色与启发 18世纪农舍修复项目展示了历史建筑更新的创新路径,为建筑师在处理文化遗产项目时提供了重要参考。HArquitectes通过材料循环利用和被动式设计,证明了传统建筑智慧与现代可持续技术结合的可能性。 设计团队 HArquitectes是西班牙知名建筑事务所,专注于建筑遗产更新与可持续设计。该团队擅长将传统建造技艺与现代技术结合,在尊重场地文脉的同时创造当代建筑语言,其作品以材料真实性和环境敏感性著称。 项目概述 18世纪农舍修复项目位于西班牙赫罗纳Baix Empordà地区,是一座历史农舍建筑的更新改造项目。该项目由HArquitectes设计,始建于2016年,通过对原有18世纪农舍的修复与重建,实现了历史建筑保护与现代生活需求的平衡。 设计理念 HArquitectes的设计理念强调对历史建筑的文化传承与景观融合。设计团队以”恢复遗产”为核心概念,通过保留原有建筑形态与场地特征,将新建部分完美融入Baix Empordà独特的农业景观中,延续了传统农舍与自然环境的和谐关系。 空间与功能 项目采用正交网格的空间组织方式,底层设置连续的拱顶房间,二层增设面向大海的玻璃廊道空间。100平方米的双层高厨房成为住宅核心,西向葡萄园,南向花园开放。新建的大型门廊创造了地中海传统建筑特有的光影过渡空间,连接室内外环境。 材料与技术 HArquitectes保留了原有的北向和东向石墙,使用回收的陶瓦屋顶和裸露木结构。新建部分采用粗野混凝土墙体,分层浇筑并加入陶粒轻骨料提升保温性能。项目结合地热辐射地板和被动式设计策略,实现了近乎自给自足的热工性能。 项目特色与启发 18世纪农舍修复项目展示了历史建筑更新的创新路径,为建筑师在处理文化遗产项目时提供了重要参考。HArquitectes通过材料循环利用和被动式设计,证明了传统建筑智慧与现代可持续技术结合的可能性。 设计团队 HArquitectes是西班牙知名建筑事务所,专注于建筑遗产更新与可持续设计。该团队擅长将传统建造技艺与现代技术结合,在尊重场地文脉的同时创造当代建筑语言,其作品以材料真实性和环境敏感性著称。 本文来自 © Harquitectes 建筑师事务所|Harquitectes, 发布于 © 建筑学院官方网站。 未经授权,禁止转载或摘编。 编辑版本版权归 © 建筑学院官方网站 所有, 设计、图纸及照片版权归设计方 © Harquitectes 建筑师事务所|Harquitectes ↗ 所有。 查看作者在建筑学院发布的更多作品: Harquitectes 建筑师事务所|Harquitectes @ 建筑学院官方网站 18th-century-farmhousefarmhouse-renovationHarquitectesheritage-architecturesustainable-design Harquitectes 建筑师事务所|Harquitectes事务所 & 设计师 下载原图 收藏 0 关于作者 Harquitectes 建筑师事务所|Harquitectes事务所 & 设计师 关注私信 12 文章 0 评论 0 粉丝 Harquitectes是西班牙备受赞誉的建筑师事务所,以其对环境、材料和建造逻辑的深刻洞察而闻名。其官网harquitectes.com展示了众多获奖作品,涵盖学校、住宅及公共建筑。他们擅长运用本土、可持续的策略,创造舒适、高效且充满诗意的空间。 ONE-ROOM HOUSE / HOUSE FOR LIVING AND WORKING | Dogma 上一篇 2026-01-31 上午9:34 UAB ICPRC研究中心 / ICP Research Centre. UAB | HArquitectes 下一篇 2026-02-01 下午5:13 猜你喜欢 Mas Geli 酒庄 / Mas Geli Winery | HArquitectes 2026-02-12 工业建筑 25 DOT Lope de Vega 3 / 25 Temporary Cohousing Units | HARQUITECTES 2026-02-09 住宅建筑设计 新加伦西美制药公司大楼 / New Galenicum Pharmaceutical Company Building | HArquitectes 2026-01-04 公共建筑设计 帕劳Solità岛Plegamans的住宅 / House in Palau Solità i Plegamans | HArquitectes 2026-02-12 住宅建筑设计 1014号房屋,格兰多尔斯 House 1014, Granollers | Harquitectes 建筑师事务所|Harquitectes 2025-10-26 公共建筑设计 马德雷德萨里亚街上的房子 / House on Major de Sarrià Street | HArquitectes 2026-01-03 住宅建筑设计 发表回复 请登录后评论...登录后才能评论 提交