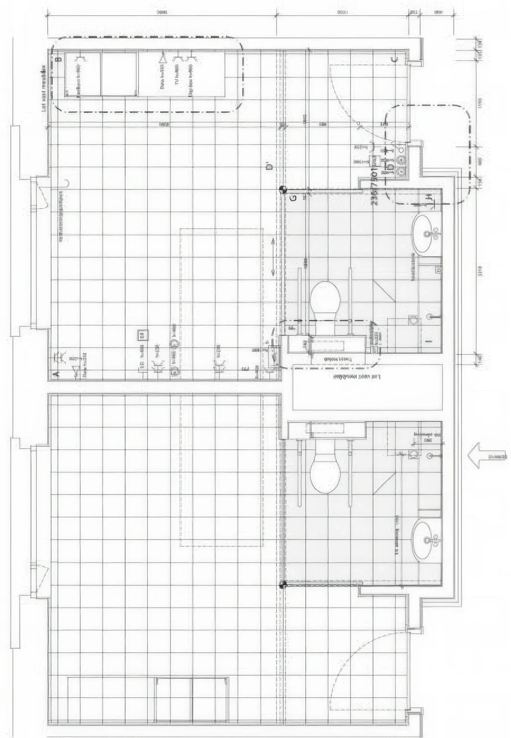
Care Home, Wingene Care Home, Wingene | Sergison Bates Architects 6a 建筑事务所|6a architects • 2026-02-09 下午1:26 • 公共建筑设计, 公共空间设计, 医疗建筑, 医疗空间设计, 室内设计 Wingene养老院是Sergison Bates Architects在比利时温赫纳设计的医疗建筑项目。这座三层楼高的紧凑型建筑采用庭院式布局,通过削减体量形成半围合庭院,确保内部空间自然采光。设计巧妙融入当地农舍建筑语言,使用红砖和手工彩绘陶瓷瓦片,创造亲切的社区氛围。项目于2016年建成,为周边地区提供综合性养老服务。 设计: 6a 建筑事务所|6a architects 类型: 室内设计 功能: 医院 风格: 地域主义 材料: 砖材 金属板 陶瓷 尺度: 中型建筑 地点:比利时温赫纳 时间: 2016年 项目简介 Wingene养老院位于比利时温赫纳,是一座综合性医疗建筑。项目建筑面积未明确,为三层紧凑型建筑,设计于2011年,2016年建成。建筑采用庭院式布局,包含145间客房及公共服务中心。 设计理念 Sergison Bates Architects将项目视为社区新焦点,通过紧凑的”地毯式”建筑体量与周边景观建立亲密关系。设计灵感来自当地农舍建筑,采用坡屋顶形式和阶梯状平面,减少建筑体量感,创造系列化空间体验。 空间与功能 地面层设置公共服务设施,包括本地服务中心和日间护理中心,各有独立入口。上层145间客房按15间一组组织成”家庭单元”,每两个单元形成30间房的部门。宽阔的走廊连接公共区域,成为居民社交和用餐的聚集空间。 材料与技术 采用当地红砖和粘土瓦回应规划要求,通过特殊砌筑工艺创造织物般质感。艺术家Benoit van Innes设计的手工彩绘陶瓷瓦片装饰窗框,每立面使用不同背景色。石灰砂浆宽缝砌筑结合小尺度砖块,铝制收边细节提升建筑精致度。 设计团队 Sergison Bates Architects是伦敦知名建筑事务所,专注于住宅、教育和文化建筑。他们以对材料、细节和地域文脉的细致处理著称,擅长将传统建筑元素转化为当代设计语言。 项目简介 Wingene养老院位于比利时温赫纳,是一座综合性医疗建筑。项目建筑面积未明确,为三层紧凑型建筑,设计于2011年,2016年建成。建筑采用庭院式布局,包含145间客房及公共服务中心。 设计理念 Sergison Bates Architects将项目视为社区新焦点,通过紧凑的”地毯式”建筑体量与周边景观建立亲密关系。设计灵感来自当地农舍建筑,采用坡屋顶形式和阶梯状平面,减少建筑体量感,创造系列化空间体验。 空间与功能 地面层设置公共服务设施,包括本地服务中心和日间护理中心,各有独立入口。上层145间客房按15间一组组织成”家庭单元”,每两个单元形成30间房的部门。宽阔的走廊连接公共区域,成为居民社交和用餐的聚集空间。 材料与技术 采用当地红砖和粘土瓦回应规划要求,通过特殊砌筑工艺创造织物般质感。艺术家Benoit van Innes设计的手工彩绘陶瓷瓦片装饰窗框,每立面使用不同背景色。石灰砂浆宽缝砌筑结合小尺度砖块,铝制收边细节提升建筑精致度。 设计团队 Sergison Bates Architects是伦敦知名建筑事务所,专注于住宅、教育和文化建筑。他们以对材料、细节和地域文脉的细致处理著称,擅长将传统建筑元素转化为当代设计语言。 本文来自 © 6a 建筑事务所|6a architects, 发布于 © 建筑学院官方网站。 未经授权,禁止转载或摘编。 编辑版本版权归 © 建筑学院官方网站 所有, 设计、图纸及照片版权归设计方 © 6a 建筑事务所|6a architects ↗ 所有。 查看作者在建筑学院发布的更多作品: 6a 建筑事务所|6a architects @ 建筑学院官方网站 Sergison Bates ArchitectsWingene养老院医疗建筑设计庭院式布局比利时温赫纳红砖陶瓷瓦 6a 建筑事务所|6a architects事务所 & 设计师 下载原图 收藏 0 关于作者 6a 建筑事务所|6a architects事务所 & 设计师 关注私信 35 文章 1 评论 0 粉丝 6a architects(6a建筑事务所)是英国知名的建筑设计团队,以其对文化、艺术及教育类建筑的深刻理解而闻名。他们的作品擅长运用精巧的材料与细致的构造,在历史与现代的对话中创造宁静而富有感染力的空间。其代表作包括South London Gallery、MK Gallery改造及剑桥大学校园建筑等。 科尔尼亚文化中心 / Cultural Centre in Colina | Pezo Von Ellrichshausen 上一篇 2026-02-07 上午9:40 凯林眼镜新总部大楼 / Kering Eyewear New Headquarters | SANAA 下一篇 2026-02-09 下午1:29 猜你喜欢 Fulham住宅 House, Fulham | Sergison Bates Architects 2026-01-30 住宅建筑设计 ICTAM 医院 / ICTAM Hospital | MGM 建筑师事务所 2026-04-27 公共空间设计 圣巴特斯马格丽达中心 / Maggie’s Centre at St. Barts | 霍尔 Steven Holl 2025-11-30 公共建筑设计 发表回复 请登录后评论...登录后才能评论 提交