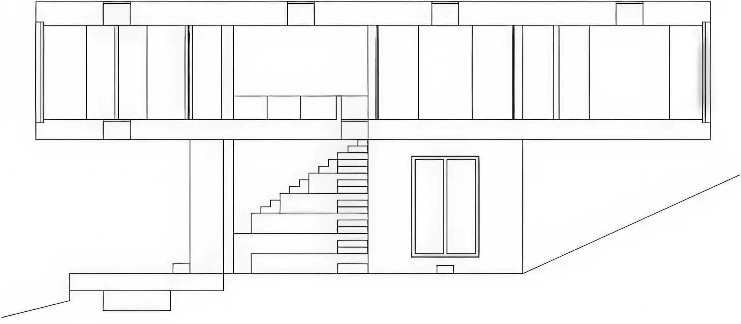
圣皮埃德拉帕斯的房屋 / House in San Pedro de la Paz | Pezo Von Ellrichshausen Pezo Von Ellrichshausen • 2026-02-03 上午9:42 • 住宅建筑设计, 建筑设计, 独立住宅设计 圣皮埃德拉帕斯的房屋由智利Pezo Von Ellrichshausen建筑事务所设计,位于智利第八大区圣佩德罗德拉克鲁斯,是一座独特的独立住宅。项目通过混凝土体块与地形的巧妙对话,创造了悬浮于湖湾之上的居住体验。 设计: Pezo Von Ellrichshausen 类型: 独立住宅设计 功能: 独立住宅 风格: 现代主义 材料: 混凝土 尺度: 小型建筑 地点:圣佩德罗德拉克鲁斯 时间: 1970年 项目概述 圣皮埃德拉帕斯的房屋位于智利第八大区圣佩德罗德拉克鲁斯,是一座独立住宅项目。建筑占地狭窄,设计于2010年至2014年间完成,通过上下两层不同尺度的体量组合,巧妙回应了陡峭山坡与尤加利树林的场地特征。 设计理念 Pezo Von Ellrichshausen建筑事务所以”力量的冲突结晶化”为概念,通过单块混凝土棱柱体量调和地形矛盾。上层20米见方的体量悬浮于8.5米见方的底层之上,形成强烈的几何对比,同时通过中央庭院建立内外空间的连续性。 空间与功能 建筑采用严格的网格布局,上层围绕中央庭院组织卧室空间,四个角落通过辅助模块连接交通流线。每个房间顶部设有天窗,强化垂直维度并引入自然光线。底层容纳日常家居功能,布局相对灵活,与上层形成功能与形式的鲜明对比。 材料与技术 项目主要采用现浇混凝土结构,表面保留模板的粗糙纹理并施以稀释黑色涂层。上层四个庭院墙体作为Vierendeel梁平衡支撑于底层基座上,展现了结构力学的精确表达。建筑通过悬挑设计和中央庭院实现自然通风与采光。 项目特色与启发 圣皮埃德拉帕斯的房屋展示了Pezo Von Ellrichshausen对地形与建筑关系的深刻理解,其严谨的几何秩序与场地特征的巧妙融合,为山地住宅设计提供了创新范例。项目的结构表达与空间组织方式对当代住宅设计具有重要参考价值。 设计团队 Pezo Von Ellrichshausen是智利知名建筑事务所,由Mauricio Pezo和Sofia von Ellrichshausen共同创立。事务所以严谨的几何研究和对场地文脉的敏感回应著称,在住宅与艺术建筑领域具有国际影响力。 项目概述 圣皮埃德拉帕斯的房屋位于智利第八大区圣佩德罗德拉克鲁斯,是一座独立住宅项目。建筑占地狭窄,设计于2010年至2014年间完成,通过上下两层不同尺度的体量组合,巧妙回应了陡峭山坡与尤加利树林的场地特征。 设计理念 Pezo Von Ellrichshausen建筑事务所以”力量的冲突结晶化”为概念,通过单块混凝土棱柱体量调和地形矛盾。上层20米见方的体量悬浮于8.5米见方的底层之上,形成强烈的几何对比,同时通过中央庭院建立内外空间的连续性。 空间与功能 建筑采用严格的网格布局,上层围绕中央庭院组织卧室空间,四个角落通过辅助模块连接交通流线。每个房间顶部设有天窗,强化垂直维度并引入自然光线。底层容纳日常家居功能,布局相对灵活,与上层形成功能与形式的鲜明对比。 材料与技术 项目主要采用现浇混凝土结构,表面保留模板的粗糙纹理并施以稀释黑色涂层。上层四个庭院墙体作为Vierendeel梁平衡支撑于底层基座上,展现了结构力学的精确表达。建筑通过悬挑设计和中央庭院实现自然通风与采光。 项目特色与启发 圣皮埃德拉帕斯的房屋展示了Pezo Von Ellrichshausen对地形与建筑关系的深刻理解,其严谨的几何秩序与场地特征的巧妙融合,为山地住宅设计提供了创新范例。项目的结构表达与空间组织方式对当代住宅设计具有重要参考价值。 设计团队 Pezo Von Ellrichshausen是智利知名建筑事务所,由Mauricio Pezo和Sofia von Ellrichshausen共同创立。事务所以严谨的几何研究和对场地文脉的敏感回应著称,在住宅与艺术建筑领域具有国际影响力。 本文来自 © Pezo Von Ellrichshausen, 发布于 © 建筑学院官方网站。 未经授权,禁止转载或摘编。 编辑版本版权归 © 建筑学院官方网站 所有, 设计、图纸及照片版权归设计方 © Pezo Von Ellrichshausen ↗ 所有。 查看作者在建筑学院发布的更多作品: Pezo Von Ellrichshausen @ 建筑学院官方网站 house in san pedro de la pazPezo von Ellrichshausen智利住宅建筑独立住宅设计现代主义住宅 Pezo Von Ellrichshausen事务所 & 设计师 下载原图 收藏 0 关于作者 Pezo Von Ellrichshausen事务所 & 设计师 关注私信 22 文章 0 评论 0 粉丝 Pezo Von Ellrichshausen是智利知名建筑事务所,由Mauricio Pezo与Sofia von Ellrichshausen创立。其作品以强烈的雕塑感、对几何形态的探索和材料的诗意运用而闻名,涵盖住宅、艺术装置与展览设计。事务所曾多次参展威尼斯建筑双年展,是南美当代建筑的重要代表。访问官网pezo.cl,探索其深邃而独特的设计世界。 托马斯之家 / House in Tome | Pezo Von Ellrichshausen 上一篇 2026-02-03 上午9:42 Rise Areal 高层住宅 / Rise Areal High-Rise | Roger Boltshauser 下一篇 2026-02-04 上午9:10 猜你喜欢 花园小屋 / Garden House | 安妮·霍尔特罗普|Anne Holtrop 2025-12-20 住宅建筑设计 开罗住宅 House in Keremma | 拉卡东与瓦萨尔建筑师事务所|Lacaton & Vassal 2025-11-13 公共建筑设计 弗斯特纳布尔克的库伯尔之家 / Kübler House in Fürstenaubruck | 吉翁·A·卡米纳达|Gion A. Caminada 2026-03-25 住宅建筑设计 CASA ESPINAL / Spinal House | 帕琳达·坎南加拉|Palinda Kannangara 2026-01-07 住宅建筑设计 马略阿的房子 / House in Maia | 阿尔瓦罗·西扎 & 安东尼奥·马杜雷拉 2026-01-12 住宅建筑设计 塞塔克戈特-德-瓦利斯区的房屋 / House in Sant Cugat del Vallés | HArquitectes 2026-04-07 住宅建筑设计 发表回复 请登录后评论...登录后才能评论 提交