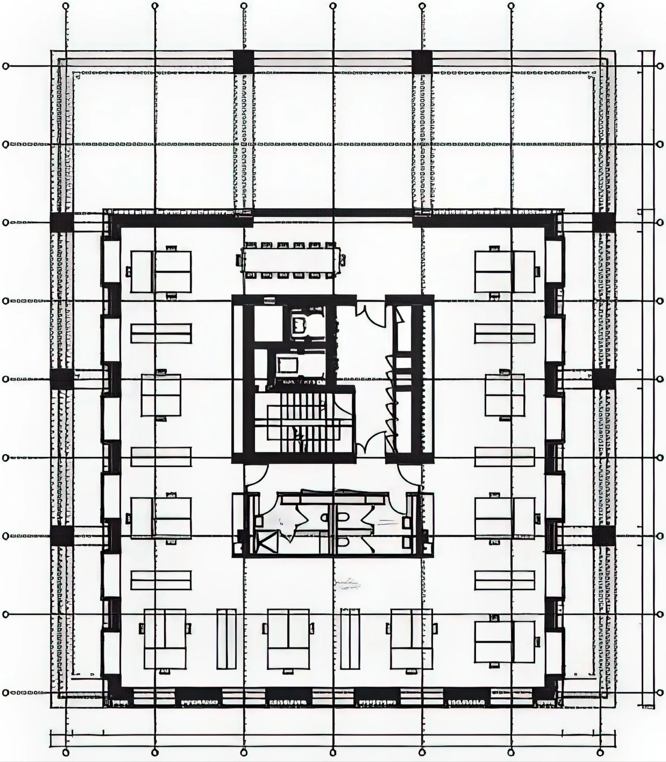
Rise Areal 高层住宅 / Rise Areal High-Rise | Roger Boltshauser Roger Boltshauser • 2026-02-04 上午9:10 • 住宅建筑设计, 公寓住宅设计, 建筑设计 Rise Areal 高层住宅由 Roger Boltshauser 设计,位于瑞士苏黎世附近的 Regensdorf,是一座24层混合结构住宅建筑。该项目采用创新的木结构与混凝土基础结合,光伏立面系统提供能源,展现了当代可持续高层住宅的设计理念。 设计: Roger Boltshauser 类型: 建筑设计 功能: 公寓住宅 风格: 当代建筑 材料: 混凝土 木材 玻璃 金属板 尺度: 大型建筑 地点:Regensdorf 时间: 2019年 项目概述 Rise Areal 高层住宅位于瑞士苏黎世附近的 Regensdorf,是 Bahnhof Nord 开发区的重要组成部分。这座24层建筑由 Roger Boltshauser 设计,采用创新的混合结构体系,包含150个灵活住宅单元及公共功能空间,设计始于2019年。 设计理念 Roger Boltshauser 的设计理念强调结构与空间的清晰表达,通过精致的木结构与厚重的混凝土基座形成鲜明对比。建筑以75米高的体量回应城市尺度,同时通过拱廊空间建立与周边环境的联系,体现了现代高层建筑与城市肌理的融合。 空间与功能 Rise Areal 高层住宅的空间组织遵循结构逻辑:底层设置接待区、小酒馆和共享办公空间,三层以上为150个灵活住宅单元。社区楼层配备双层会议室和宽敞的露台,室内材料保持原始质感,木结构和梁柱裸露可见,营造简约而温暖的空间氛围。 材料与技术 建筑采用创新的混合结构体系:地下室和基座为混凝土骨架结构,上部楼层采用木结构。立面采用精致的金属幕墙系统,集成水平布置的光伏板,既提供能源又作为遮阳系统。相比传统混凝土结构,木结构部分在60年生命周期内减少约670吨二氧化碳排放。 项目特色与启发 Rise Areal 高层住宅展示了当代可持续高层建筑的发展方向,其创新的木混结构体系和集成光伏立面为绿色建筑实践提供了重要参考。Roger Boltshauser 的设计在结构表达、能源效率和空间品质之间取得了平衡,对未来的城市住宅设计具有启发意义。 设计团队 Roger Boltshauser 是瑞士知名建筑师,以其对材料、结构和可持续性的深入研究而闻名。他的作品常常探索传统与现代建筑技术的结合,在住宅和公共建筑领域有着丰富的实践经验,Rise Areal 高层住宅体现了其独特的设计理念和技术创新。 项目概述 Rise Areal 高层住宅位于瑞士苏黎世附近的 Regensdorf,是 Bahnhof Nord 开发区的重要组成部分。这座24层建筑由 Roger Boltshauser 设计,采用创新的混合结构体系,包含150个灵活住宅单元及公共功能空间,设计始于2019年。 设计理念 Roger Boltshauser 的设计理念强调结构与空间的清晰表达,通过精致的木结构与厚重的混凝土基座形成鲜明对比。建筑以75米高的体量回应城市尺度,同时通过拱廊空间建立与周边环境的联系,体现了现代高层建筑与城市肌理的融合。 空间与功能 Rise Areal 高层住宅的空间组织遵循结构逻辑:底层设置接待区、小酒馆和共享办公空间,三层以上为150个灵活住宅单元。社区楼层配备双层会议室和宽敞的露台,室内材料保持原始质感,木结构和梁柱裸露可见,营造简约而温暖的空间氛围。 材料与技术 建筑采用创新的混合结构体系:地下室和基座为混凝土骨架结构,上部楼层采用木结构。立面采用精致的金属幕墙系统,集成水平布置的光伏板,既提供能源又作为遮阳系统。相比传统混凝土结构,木结构部分在60年生命周期内减少约670吨二氧化碳排放。 项目特色与启发 Rise Areal 高层住宅展示了当代可持续高层建筑的发展方向,其创新的木混结构体系和集成光伏立面为绿色建筑实践提供了重要参考。Roger Boltshauser 的设计在结构表达、能源效率和空间品质之间取得了平衡,对未来的城市住宅设计具有启发意义。 设计团队 Roger Boltshauser 是瑞士知名建筑师,以其对材料、结构和可持续性的深入研究而闻名。他的作品常常探索传统与现代建筑技术的结合,在住宅和公共建筑领域有着丰富的实践经验,Rise Areal 高层住宅体现了其独特的设计理念和技术创新。 本文来自 © Roger Boltshauser, 发布于 © 建筑学院官方网站。 未经授权,禁止转载或摘编。 编辑版本版权归 © 建筑学院官方网站 所有, 设计、图纸及照片版权归设计方 © Roger Boltshauser ↗ 所有。 查看作者在建筑学院发布的更多作品: Roger Boltshauser @ 建筑学院官方网站 Regensdorf住宅Rise Areal High-RiseRoger Boltshauser可持续建筑高层住宅设计 Roger Boltshauser事务所 & 设计师 下载原图 收藏 0 关于作者 Roger Boltshauser事务所 & 设计师 关注私信 13 文章 0 评论 0 粉丝 Roger Boltshauser是瑞士著名建筑师,以其对可持续建筑的深刻实践和对传统材料(尤其是夯土技术)的现代创新而闻名。他的作品融合了精准的构造逻辑与独特的材料质感,在住宅与文化建筑领域成就卓著,是当代探索建筑生态性与地域性的重要代表。访问官网boltshauser.ch,探索其深邃的建筑理念与作品全貌。 圣皮埃德拉帕斯的房屋 / House in San Pedro de la Paz | Pezo Von Ellrichshausen 上一篇 2026-02-03 上午9:42 ETH研究楼,GLC / GLC Research Building, ETH | Roger Boltshauser 下一篇 2026-02-04 上午9:11 猜你喜欢 窑塔,砖工博物馆所在地 / Kiln Tower for the Brickworks Museum, Cham | Roger Boltshauser 2026-02-06 公共建筑设计 新DTB运营大厦 / New DTB Operations Building | Roger Boltshauser 2026-02-06 工业建筑 住宅开发阿尔特维森 / Residential Development Altwiesen | Roger Boltshauser 2026-02-06 住宅建筑设计 花园餐厅 / Restaurant in a Garden | Estúdio Gustavo Utrabo 2026-03-31 商业与综合建筑 鲍夫德尔欧洲大道 Baufeld F Europaallee / Baufeld F Europaallee | Roger Boltshauser 2026-01-09 商业与综合建筑 悉尼中央公园 One Central Park, Sydney | 让·努维尔建筑事务所|Jean Nouvel 2025-11-13 公共建筑设计 发表回复 请登录后评论...登录后才能评论 提交