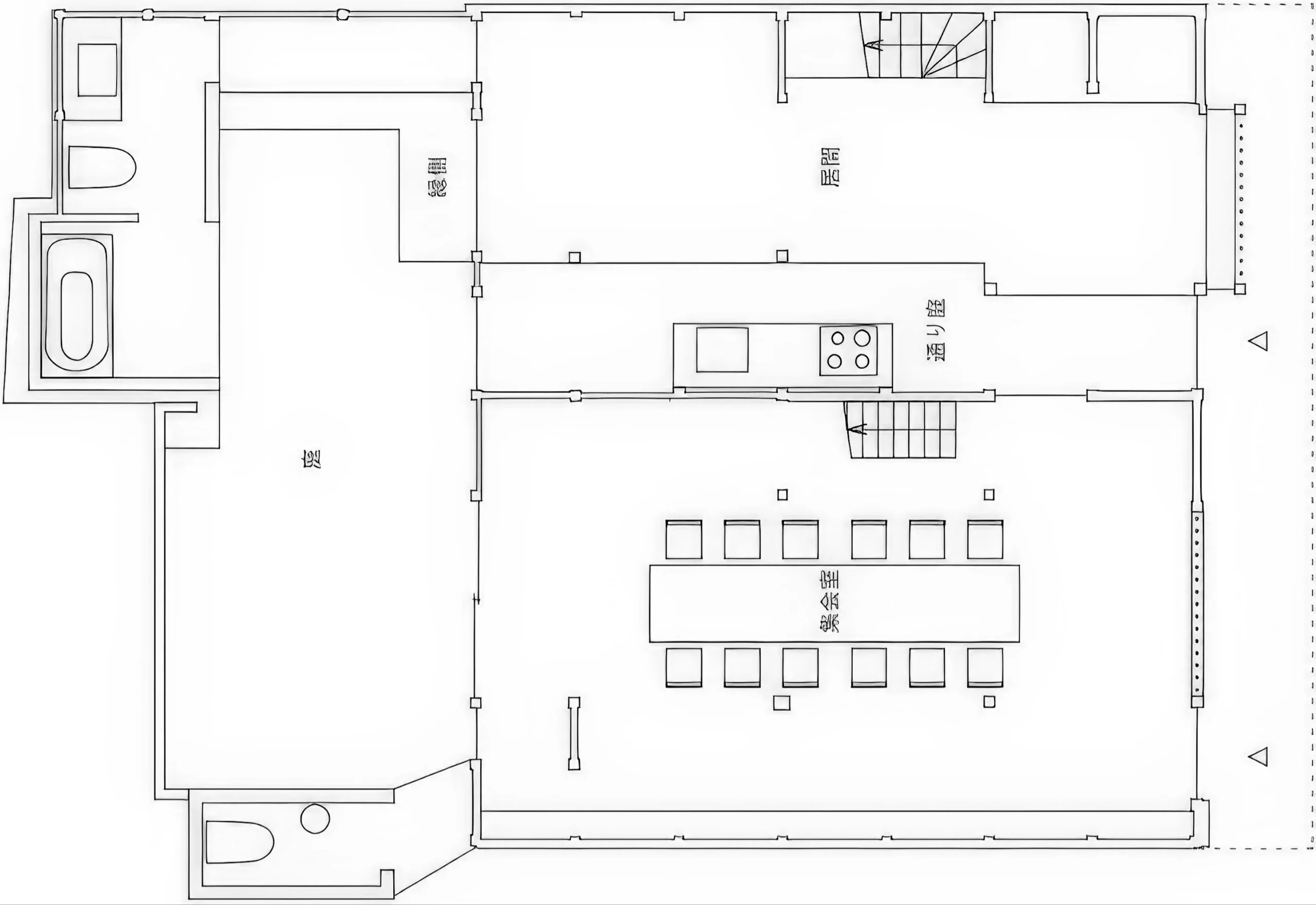
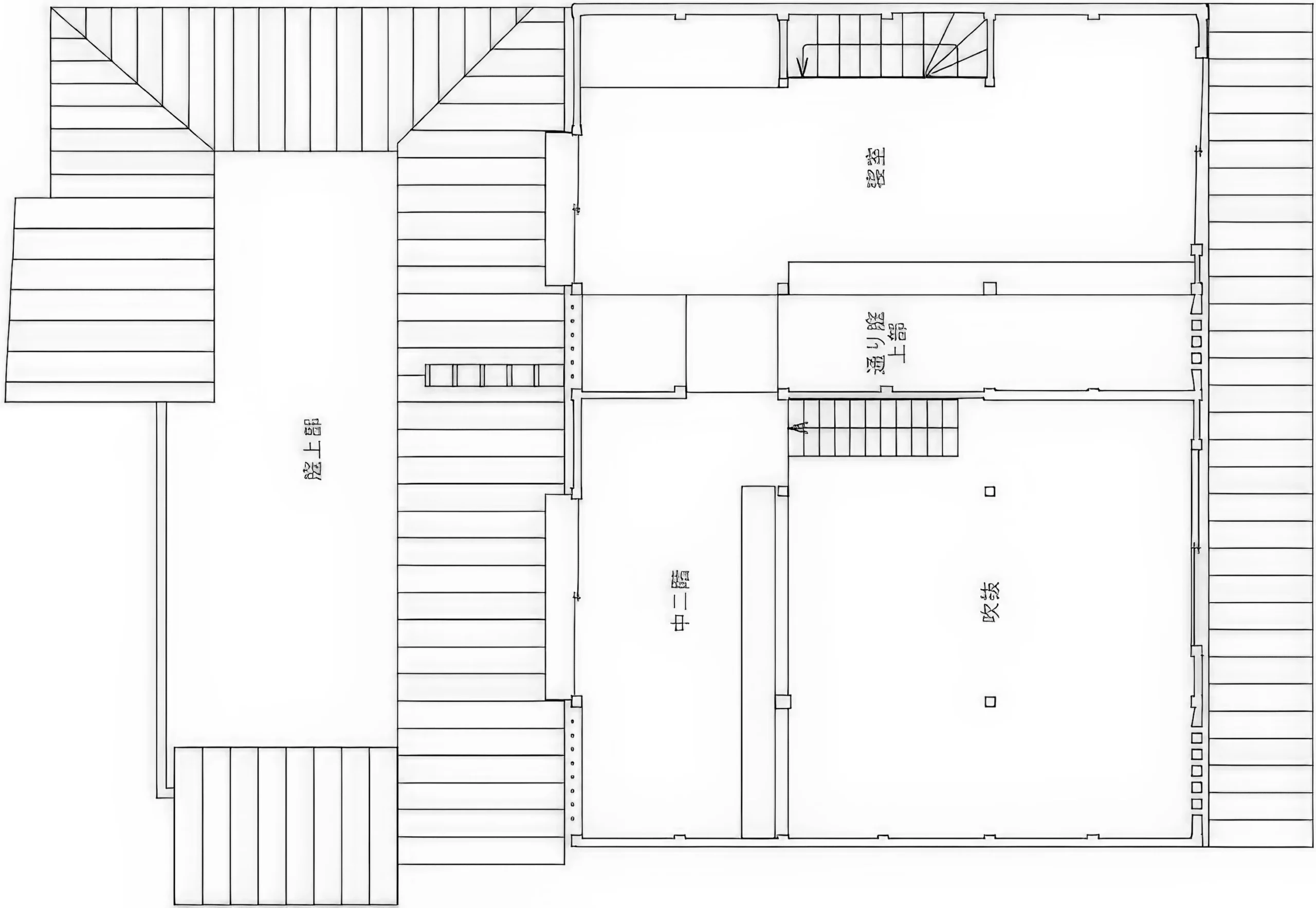
Tokuda 住宅 / Tokuda House | SANAA SANAA • 2026-02-08 上午9:47 • 住宅建筑设计, 建筑设计, 独立住宅设计 Tokuda 住宅是SANAA建筑事务所在日本京都完成的町屋改造项目,通过拆除南楼二层楼板创造双层通高空间,修复传统鸟庭景观,在保留传统建筑元素的同时实现了居住与社交功能的灵活转换。 设计: SANAA 类型: 独立住宅设计 功能: 独立住宅 风格: 当代建筑 材料: 木材 玻璃 尺度: 小型建筑 地点:京都 时间: 2016年 项目概述 Tokuda 住宅位于日本京都,是一座传统町屋的改造项目。这座近百年的建筑原为京町屋格局,SANAA建筑事务所于2015-2016年间完成改造,保留了传统建筑特色同时注入了现代生活功能。 设计理念 SANAA的设计理念在于平衡传统与创新,通过保留传统町屋的空间特质如格子窗、鸟庭等元素,同时引入现代空间组织方式,创造能够适应不同生活场景的灵活居住环境。 空间与功能 项目将南北两栋建筑通过中墙开口连接,南楼创造双层通高空间作为公共聚会区,北楼保留居住功能并修复传统鸟庭景观。空间布局可根据使用需求灵活转换,既可形成整体居住空间,也可分隔为公共与私密区域。 材料与技术 设计保留了原有木结构体系,采用传统工艺修复格子窗等细部。通过拆除楼板创造通高空间,利用屋顶天窗引入自然光线,实现传统材料与现代空间技术的有机结合。 项目特色与启发 Tokuda 住宅展示了传统建筑现代化改造的典范,为历史建筑保护与再利用提供了创新思路,体现了SANAA在空间灵活性与传统元素保护方面的设计智慧。 设计团队 SANAA是由妹岛和世与西泽立卫创立的国际知名建筑事务所,以极简主义风格和空间流动性著称,在文化建筑与住宅设计领域享有盛誉。 项目概述 Tokuda 住宅位于日本京都,是一座传统町屋的改造项目。这座近百年的建筑原为京町屋格局,SANAA建筑事务所于2015-2016年间完成改造,保留了传统建筑特色同时注入了现代生活功能。 设计理念 SANAA的设计理念在于平衡传统与创新,通过保留传统町屋的空间特质如格子窗、鸟庭等元素,同时引入现代空间组织方式,创造能够适应不同生活场景的灵活居住环境。 空间与功能 项目将南北两栋建筑通过中墙开口连接,南楼创造双层通高空间作为公共聚会区,北楼保留居住功能并修复传统鸟庭景观。空间布局可根据使用需求灵活转换,既可形成整体居住空间,也可分隔为公共与私密区域。 材料与技术 设计保留了原有木结构体系,采用传统工艺修复格子窗等细部。通过拆除楼板创造通高空间,利用屋顶天窗引入自然光线,实现传统材料与现代空间技术的有机结合。 项目特色与启发 Tokuda 住宅展示了传统建筑现代化改造的典范,为历史建筑保护与再利用提供了创新思路,体现了SANAA在空间灵活性与传统元素保护方面的设计智慧。 设计团队 SANAA是由妹岛和世与西泽立卫创立的国际知名建筑事务所,以极简主义风格和空间流动性著称,在文化建筑与住宅设计领域享有盛誉。 本文来自 © SANAA, 发布于 © 建筑学院官方网站。 未经授权,禁止转载或摘编。 编辑版本版权归 © 建筑学院官方网站 所有, 设计、图纸及照片版权归设计方 © SANAA ↗ 所有。 查看作者在建筑学院发布的更多作品: SANAA @ 建筑学院官方网站 SANAAtokuda-house京都住宅设计传统建筑更新町屋改造 SANAA事务所 & 设计师 下载原图 收藏 0 关于作者 SANAA事务所 & 设计师 关注私信 52 文章 0 评论 0 粉丝 科尔尼亚文化中心 / Cultural Centre in Colina | Pezo Von Ellrichshausen 上一篇 2026-02-07 上午9:40 Oyagi 住宅 / Oyagi House | SANAA 下一篇 2026-02-08 上午9:48 猜你喜欢 日本女子大学学生食堂 / Student Cafeteria Japan Women’s University | SANAA 2026-03-06 公共建筑设计 新高速列车 Laview / New Express Train Laview | SANAA 2026-02-22 交通建筑设计 Esselunga 福利院 / Esselunga Welfare Project | SANAA 2026-03-21 公共建筑设计 日本津市住宿计划 Inujima ‘Stay Project’ / Inujima Stay Project | SANAA 2026-03-08 住宅建筑设计 新高知県体育馆 / New Kagawa Prefectural Gymnasium | SANAA 2026-02-22 体育建筑 尼康株式会社横浜研究センター / Nichia Corporation Yokohama Research Centre | SANAA 2026-02-10 公共建筑设计 发表回复 请登录后评论...登录后才能评论 提交