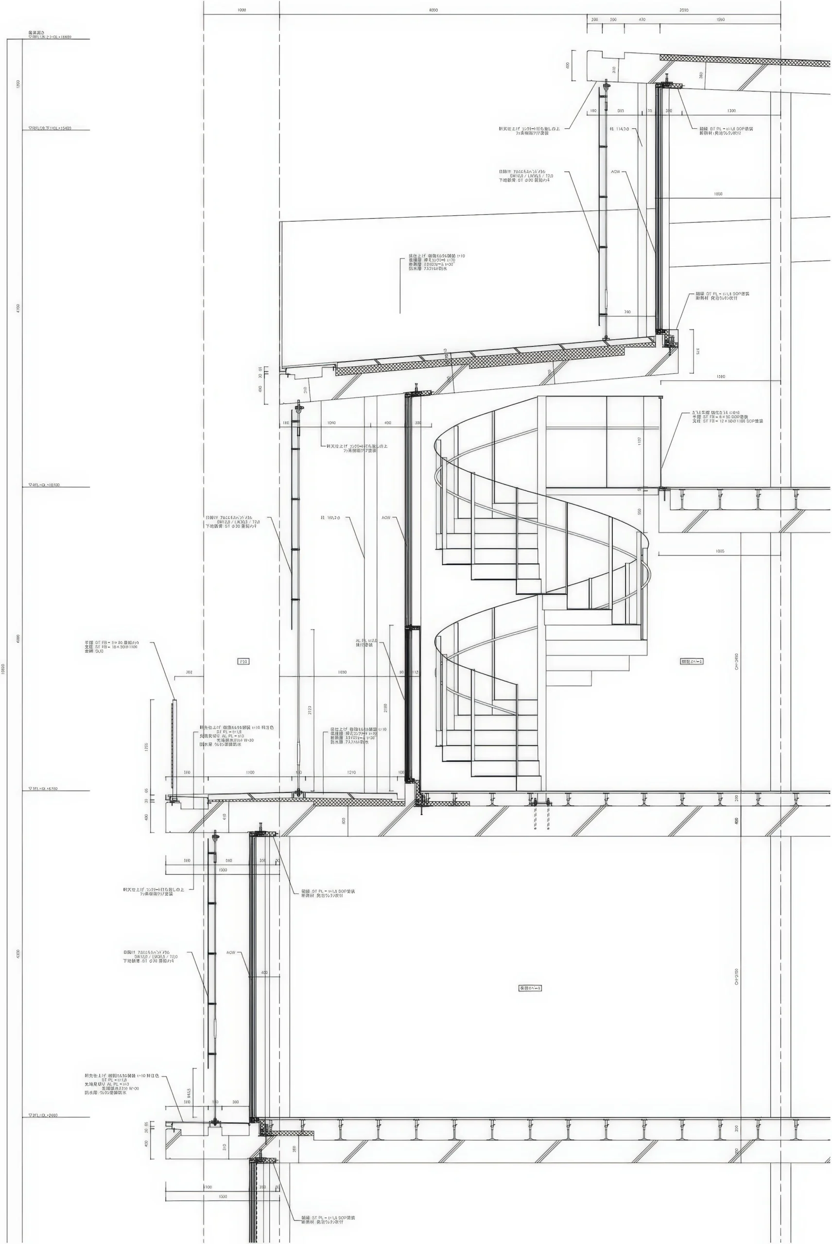
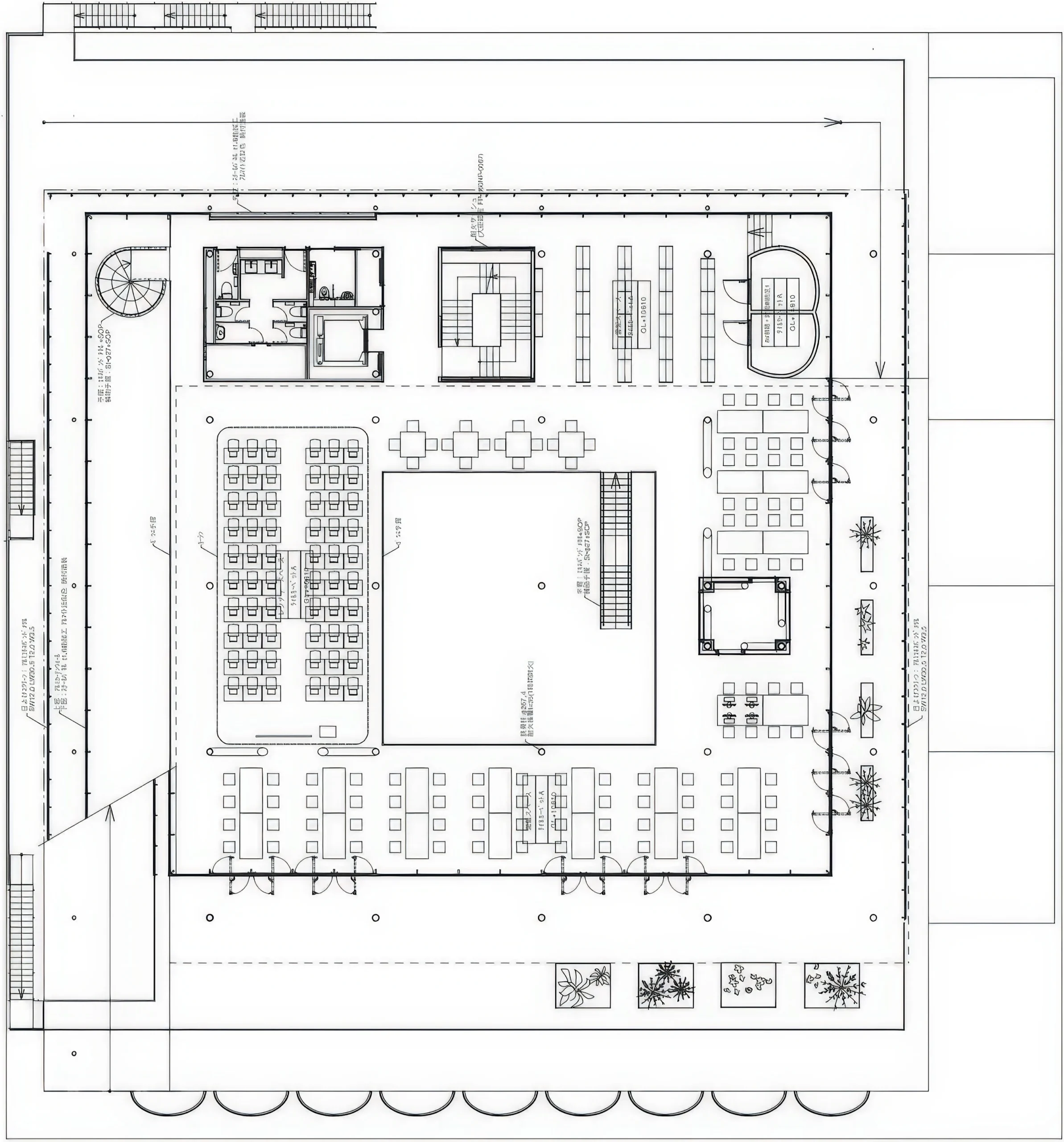
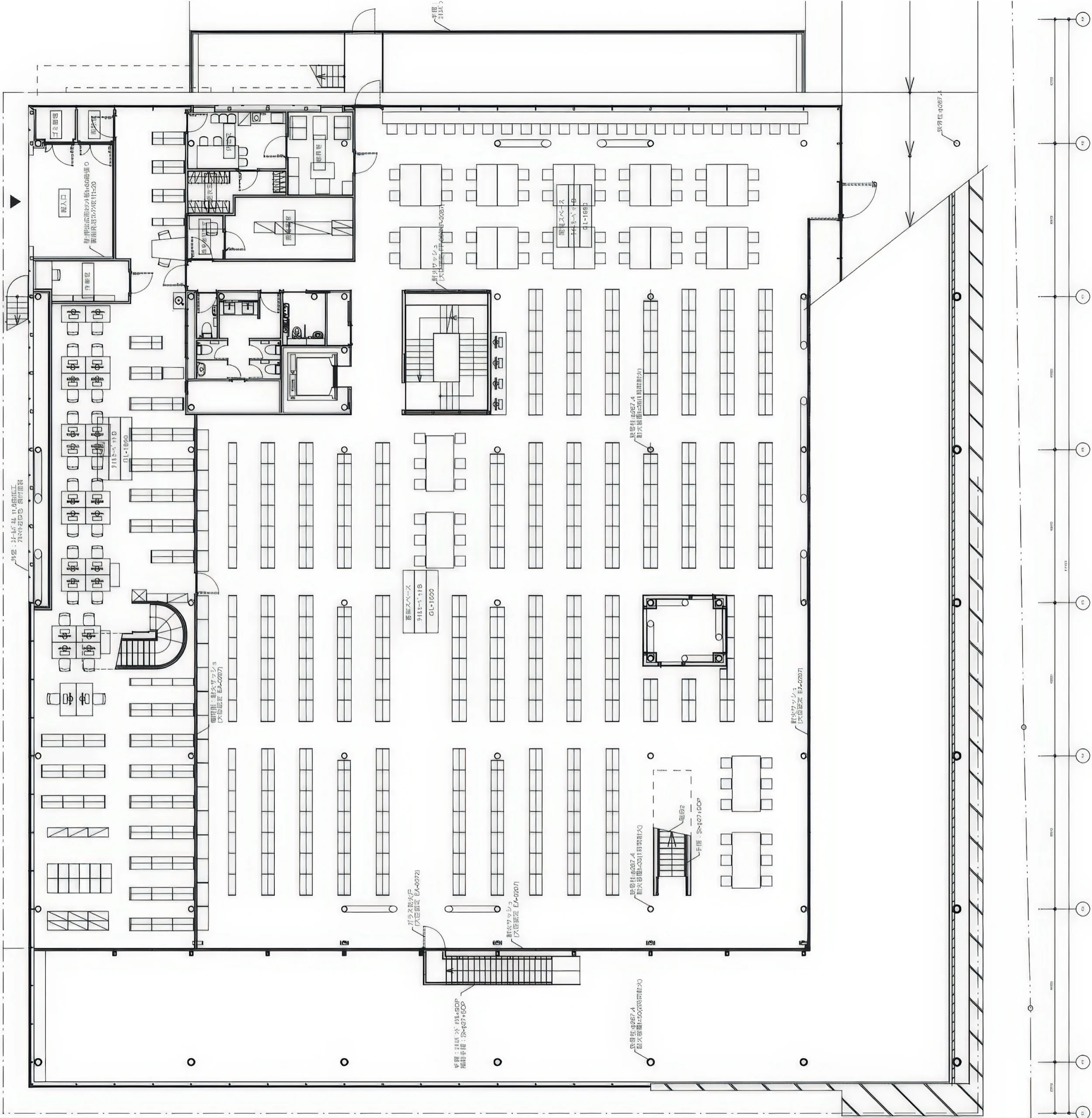
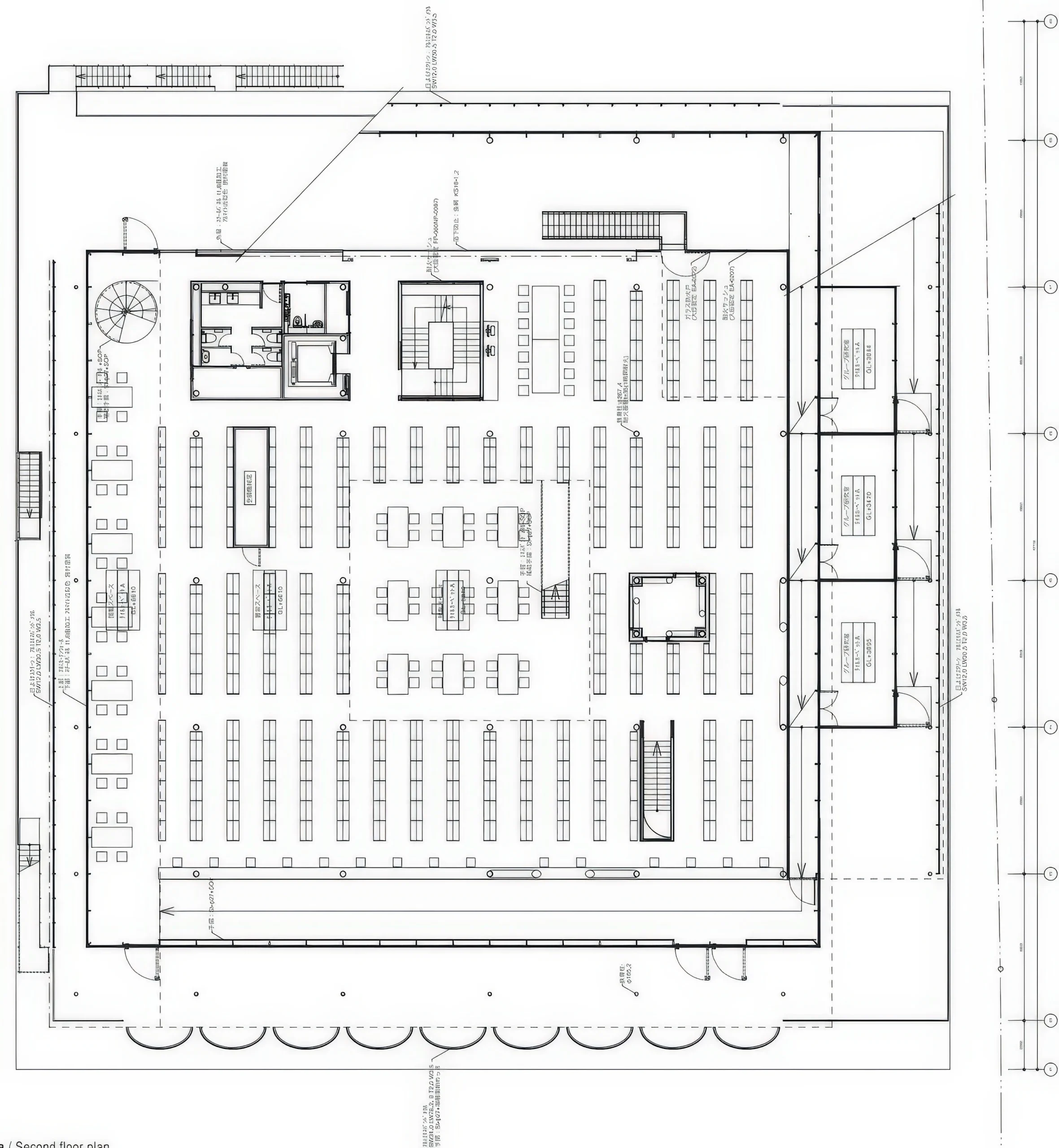
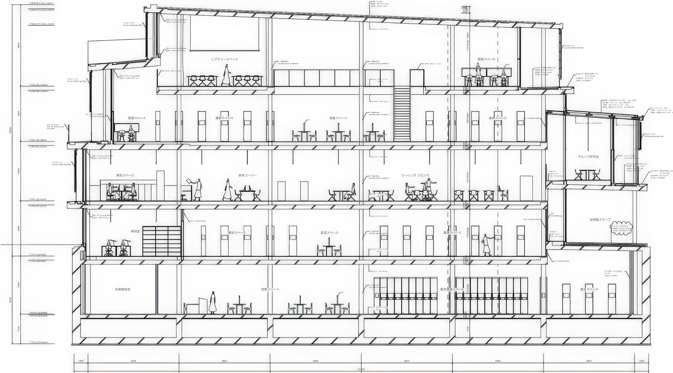
新图书馆,日本女子大学 / New Library, Japan Women’s University | SANAA SANAA • 2026-02-15 上午9:00 • 公共建筑设计, 建筑设计, 教育建筑设计 日本女子大学新图书馆由SANAA建筑事务所设计,位于东京目白区,是该大学总体规划更新的首期项目。设计采用螺旋坡道连接各楼层,创造连续流动的空间体验,将移动书架、阅读区和社交空间无缝整合,成为校园新标志性建筑。 设计: SANAA 类型: 教育建筑设计 功能: 独立住宅 风格: 当代建筑 材料: 混凝土 钢材 玻璃 尺度: 中型建筑 地点:东京 时间: 1970年 项目概述 日本女子大学新图书馆位于东京目白区,是该大学120周年校庆总体规划的首期项目。SANAA建筑事务所于2016-2019年间完成了这座教育建筑的设计与建造,通过创新的空间组织重新定义了传统图书馆的功能模式。 设计理念 SANAA的设计理念旨在打破传统图书馆的层叠式布局,采用螺旋上升的坡道系统连接各楼层。这一概念不仅呼应了场地的自然坡度,更创造了连续流动的空间体验,促进学生学习与社交活动的自然融合。 空间与功能 图书馆内部空间采用开放式布局,移动书架区、固定书架区、阅读区和网络浏览区相互连接,形成一个完整的大空间。坡道系统贯穿建筑各层,连接室内外空间,为学生提供多样化的学习与交流场所。 材料与技术 建筑主要采用玻璃、钢材和混凝土材料,通过精确的结构设计实现大跨度空间。立面采用大面积玻璃幕墙,确保充足的自然采光,同时营造建筑与周围环境的视觉联系。 项目特色与启发 日本女子大学新图书馆以其创新的坡道设计和连续空间概念,为当代教育建筑提供了新的范式。该项目展示了如何通过建筑语言促进学术社区的互动与交流,对未来的图书馆设计具有重要参考价值。 设计团队 SANAA是由妹岛和世与西泽立卫创立的国际知名建筑事务所,以其轻盈透明的建筑语言和创新的空间处理手法闻名。事务所在文化建筑和教育建筑领域拥有丰富经验,日本女子大学新图书馆体现了其一贯的设计理念与精湛的技术执行力。 项目概述 日本女子大学新图书馆位于东京目白区,是该大学120周年校庆总体规划的首期项目。SANAA建筑事务所于2016-2019年间完成了这座教育建筑的设计与建造,通过创新的空间组织重新定义了传统图书馆的功能模式。 设计理念 SANAA的设计理念旨在打破传统图书馆的层叠式布局,采用螺旋上升的坡道系统连接各楼层。这一概念不仅呼应了场地的自然坡度,更创造了连续流动的空间体验,促进学生学习与社交活动的自然融合。 空间与功能 图书馆内部空间采用开放式布局,移动书架区、固定书架区、阅读区和网络浏览区相互连接,形成一个完整的大空间。坡道系统贯穿建筑各层,连接室内外空间,为学生提供多样化的学习与交流场所。 材料与技术 建筑主要采用玻璃、钢材和混凝土材料,通过精确的结构设计实现大跨度空间。立面采用大面积玻璃幕墙,确保充足的自然采光,同时营造建筑与周围环境的视觉联系。 项目特色与启发 日本女子大学新图书馆以其创新的坡道设计和连续空间概念,为当代教育建筑提供了新的范式。该项目展示了如何通过建筑语言促进学术社区的互动与交流,对未来的图书馆设计具有重要参考价值。 设计团队 SANAA是由妹岛和世与西泽立卫创立的国际知名建筑事务所,以其轻盈透明的建筑语言和创新的空间处理手法闻名。事务所在文化建筑和教育建筑领域拥有丰富经验,日本女子大学新图书馆体现了其一贯的设计理念与精湛的技术执行力。 本文来自 © SANAA, 发布于 © 建筑学院官方网站。 未经授权,禁止转载或摘编。 编辑版本版权归 © 建筑学院官方网站 所有, 设计、图纸及照片版权归设计方 © SANAA ↗ 所有。 查看作者在建筑学院发布的更多作品: SANAA @ 建筑学院官方网站 Japan Women's University LibrarySANAA东京建筑当代建筑教育建筑设计 SANAA事务所 & 设计师 下载原图 收藏 0 关于作者 SANAA事务所 & 设计师 关注私信 52 文章 0 评论 0 粉丝 伊瓦之家 No. 3 / SHISHI-IWA HOUSE N.3 KARUIZAWA | SANAA 上一篇 2026-02-14 下午10:26 新日铁市厅 / The New Hitachi City Hall | SANAA 下一篇 2026-02-15 上午9:00 猜你喜欢 科尔姆奥文化中心 / Cultural Centre in Coliumo | Pezo Von Ellrichshausen 2026-03-27 公共建筑设计 墨田北斋博物馆 / Sumida Hokusai Museum | SANAA 2026-03-15 公共建筑设计 Esselunga 福利院 / Esselunga Welfare Project | SANAA 2026-03-21 公共建筑设计 科琳斯多杜罗葡萄酒庄园 / Colinas do Douro Winery | 德·莫拉建筑事务所 2026-03-20 工业建筑 舞与文本设计学院的扩展,伯尔尼 / Extension for the School of Dance and Textile Design, Bern | 巴罗齐与维加建筑事务所|Barozzi Veiga 2025-11-14 公共建筑设计 尼康株式会社横浜研究センター / Nichia Corporation Yokohama Research Centre | SANAA 2026-02-10 公共建筑设计 发表回复 请登录后评论...登录后才能评论 提交