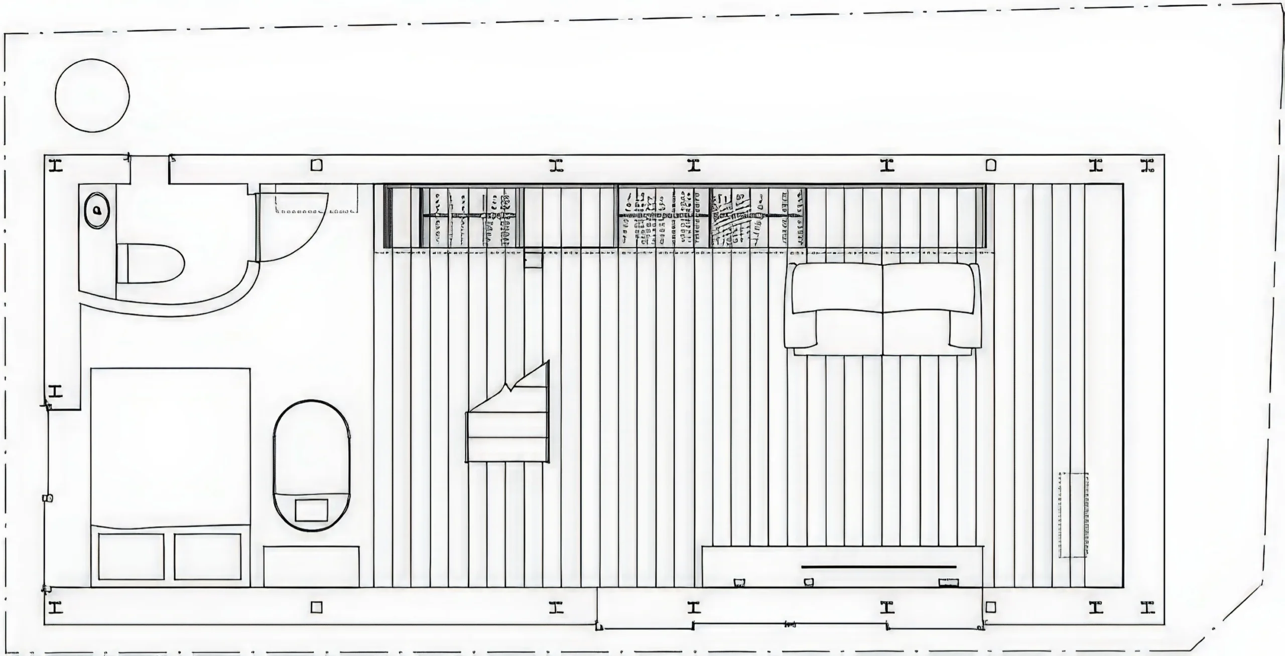
Oyagi 住宅 / Oyagi House | SANAA SANAA • 2026-02-08 上午9:48 • 住宅建筑设计, 建筑设计, 独立住宅设计 Oyagi 住宅由SANAA建筑事务所设计,位于东京市中心的山顶住宅区,是一座阶梯式住宅建筑。项目通过巧妙的空间组织实现了自然采光与通风,创造了连接室内外的通透生活空间,展现了SANAA对现代住宅设计的独特理解。 设计: SANAA 类型: 独立住宅设计 功能: 独立住宅 风格: 现代主义 材料: 混凝土 玻璃 尺度: 小型建筑 地点:东京 时间: 2018年 项目概述 Oyagi 住宅是SANAA建筑事务所在日本东京设计的独立住宅项目,建于2018年。这座阶梯式住宅包含两层及半地下室,总建筑面积充分利用了场地容积率,通过创新的空间布局实现了丰富的功能需求。 设计理念 SANAA的设计理念强调空间的连通性与通透性,通过阶梯式体量最大化利用建筑规范允许的容积。设计回应了业主对光线、通风和视野的需求,创造了柔和日光与清新微风自由流动的居住环境。 空间与功能 Oyagi 住宅的空间组织独具特色:半地下室设有家庭起居室、卧室和浴室;首层8.6米挑高的厨房餐厅空间面向街道,配备天窗采光;屋顶平台提供10米高度的城市景观视野。各功能区域通过精心设计的流线相互连接。 材料与技术 项目采用简洁的材料语言,以白色墙面、玻璃和混凝土为主要材料。天窗设计与阶梯式屋顶不仅创造了丰富的空间体验,还优化了自然采光与通风性能,体现了可持续设计理念。 项目特色与启发 Oyagi 住宅展示了SANAA在小型住宅项目中保持设计一致性的能力,其阶梯式体量解决方案为高密度城市环境中的住宅设计提供了创新范例,对当代住宅建筑设计具有重要参考价值。 设计团队 SANAA是由妹岛和世与西泽立卫创立的国际知名建筑事务所,以轻盈、透明的建筑语言著称。事务所在文化建筑、住宅设计等领域均有杰出作品,曾获普利兹克建筑奖等国际殊荣。 项目概述 Oyagi 住宅是SANAA建筑事务所在日本东京设计的独立住宅项目,建于2018年。这座阶梯式住宅包含两层及半地下室,总建筑面积充分利用了场地容积率,通过创新的空间布局实现了丰富的功能需求。 设计理念 SANAA的设计理念强调空间的连通性与通透性,通过阶梯式体量最大化利用建筑规范允许的容积。设计回应了业主对光线、通风和视野的需求,创造了柔和日光与清新微风自由流动的居住环境。 空间与功能 Oyagi 住宅的空间组织独具特色:半地下室设有家庭起居室、卧室和浴室;首层8.6米挑高的厨房餐厅空间面向街道,配备天窗采光;屋顶平台提供10米高度的城市景观视野。各功能区域通过精心设计的流线相互连接。 材料与技术 项目采用简洁的材料语言,以白色墙面、玻璃和混凝土为主要材料。天窗设计与阶梯式屋顶不仅创造了丰富的空间体验,还优化了自然采光与通风性能,体现了可持续设计理念。 项目特色与启发 Oyagi 住宅展示了SANAA在小型住宅项目中保持设计一致性的能力,其阶梯式体量解决方案为高密度城市环境中的住宅设计提供了创新范例,对当代住宅建筑设计具有重要参考价值。 设计团队 SANAA是由妹岛和世与西泽立卫创立的国际知名建筑事务所,以轻盈、透明的建筑语言著称。事务所在文化建筑、住宅设计等领域均有杰出作品,曾获普利兹克建筑奖等国际殊荣。 本文来自 © SANAA, 发布于 © 建筑学院官方网站。 未经授权,禁止转载或摘编。 编辑版本版权归 © 建筑学院官方网站 所有, 设计、图纸及照片版权归设计方 © SANAA ↗ 所有。 查看作者在建筑学院发布的更多作品: SANAA @ 建筑学院官方网站 oyagi-houseSANAA东京住宅独立住宅设计现代主义 SANAA事务所 & 设计师 下载原图 收藏 0 关于作者 SANAA事务所 & 设计师 关注私信 52 文章 0 评论 0 粉丝 Tokuda 住宅 / Tokuda House | SANAA 上一篇 2026-02-08 上午9:47 25 DOT Lope de Vega 3 / 25 Temporary Cohousing Units | HARQUITECTES 下一篇 2026-02-09 下午1:27 猜你喜欢 弗斯特纳布尔克的库伯尔之家 / Kübler House in Fürstenaubruck | 吉翁·A·卡米纳达|Gion A. Caminada 2025-12-28 住宅建筑设计 克罗地亚兹戈尔单体住宅 / Single Family House in Zagreb | 德·莫拉|de Moura 2026-03-17 住宅建筑设计 塞塔克戈特-德-瓦利斯区的房屋 / House in Sant Cugat del Vallés | HArquitectes 2026-04-07 住宅建筑设计 新高速列车 Laview / New Express Train Laview | SANAA 2026-02-22 交通建筑设计 洛杉矶维尔奥斯的房子 / House in Los Vilos | SANAA 2026-02-10 住宅建筑设计 码房 Barcode House / Barcode House | MVRDV 建筑事务所 2025-11-15 公共建筑设计 发表回复 请登录后评论...登录后才能评论 提交