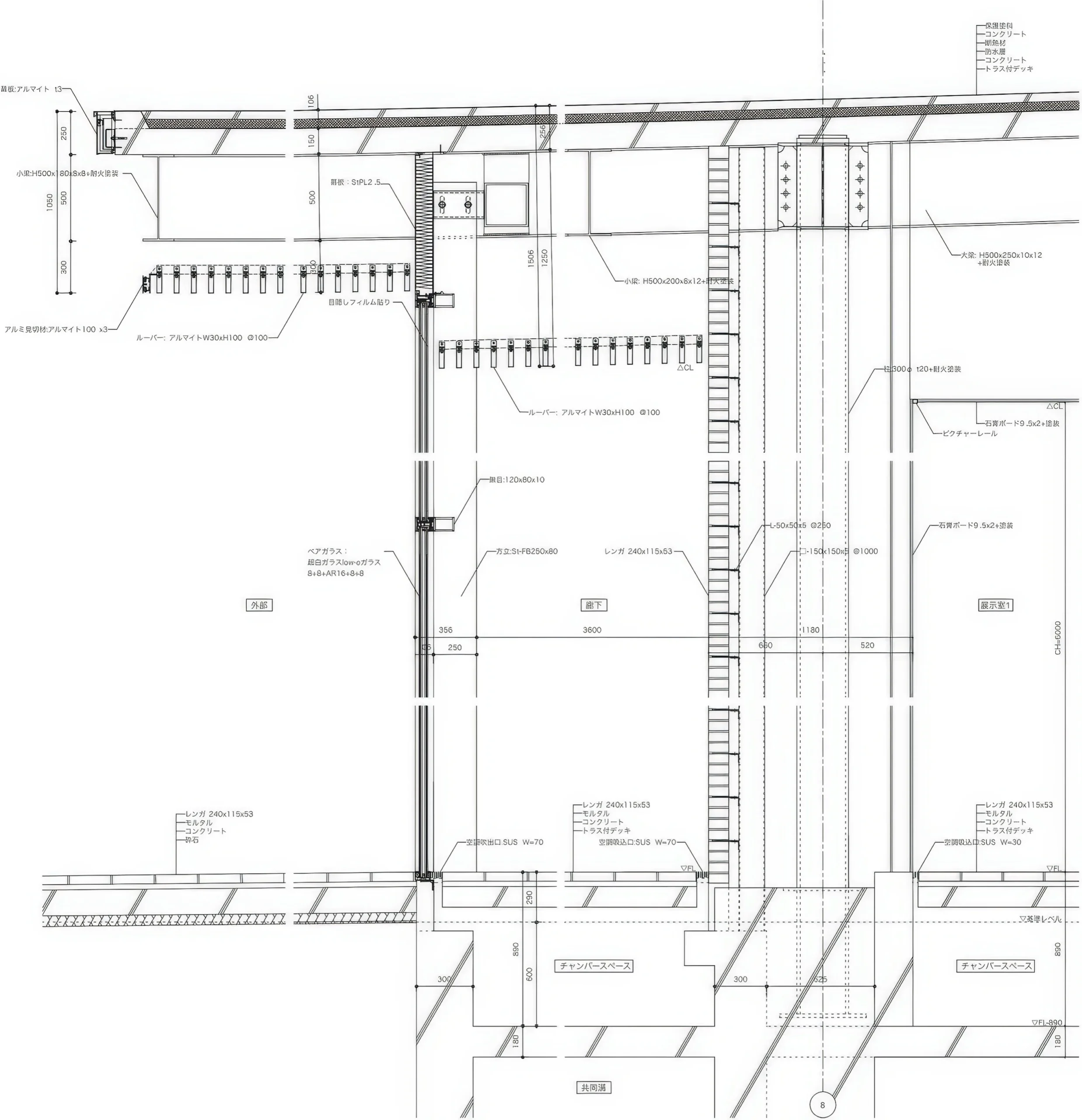
济宁艺术博物馆 / Jining Art Museum | SANAA SANAA • 2026-03-21 下午9:26 • 公共建筑设计, 建筑设计, 文化建筑设计 济宁艺术博物馆由SANAA设计,位于中国山东省济宁市,是一座融合自然景观的文化建筑。项目通过有机曲线屋顶与公园环境无缝衔接,创造半室外空间与透明庭院,展现建筑与自然的和谐对话。 设计: SANAA 类型: 文化建筑设计 功能: 文化中心 风格: 当代建筑 材料: 钢材 玻璃 砖材 尺度: 中型建筑 地点:济宁 时间: 2018年 项目概述 济宁艺术博物馆位于中国山东省济宁市,是一座集展览、休闲、商业功能于一体的文化建筑。项目包含博物馆、公园和咖啡馆,建筑面积未明确,设计年份未明确,是济宁市新兴文化区的重要组成部分。 设计理念 SANAA设计团队以”建筑与自然融合”为核心概念,通过有机曲线屋顶呼应公园景观,创造建筑与环境的和谐关系。设计旨在将博物馆融入自然,成为公园的有机组成部分。 空间与功能 济宁艺术博物馆空间分为展览区与休闲区,采用独立展厅布局,通过玻璃走廊连接形成庭院。空间组织灵活多变,包含咖啡厅、休息区、书店等多功能区域,屋顶檐下形成半室外空间,增强与公园的互动。 材料与技术 项目采用钢框架结构支撑有机曲面屋顶,高度从4米渐变至13米。材料选用当地传统砖材与现代玻璃结合,既体现地域特色又展现现代性,创造光影对比的丰富空间体验。 项目特色与启发 济宁艺术博物馆通过建筑与自然的深度融合,为文化建筑设计提供了新思路。项目展示了如何通过有机形态和空间组织创造建筑与环境的和谐关系,对当代文化建筑设计具有重要参考价值。 设计团队 SANAA是国际知名建筑事务所,以极简主义设计和空间流动性著称。事务所在文化建筑领域拥有丰富经验,擅长通过细腻的材料运用和空间处理创造独特的建筑体验。 项目概述 济宁艺术博物馆位于中国山东省济宁市,是一座集展览、休闲、商业功能于一体的文化建筑。项目包含博物馆、公园和咖啡馆,建筑面积未明确,设计年份未明确,是济宁市新兴文化区的重要组成部分。 设计理念 SANAA设计团队以”建筑与自然融合”为核心概念,通过有机曲线屋顶呼应公园景观,创造建筑与环境的和谐关系。设计旨在将博物馆融入自然,成为公园的有机组成部分。 空间与功能 济宁艺术博物馆空间分为展览区与休闲区,采用独立展厅布局,通过玻璃走廊连接形成庭院。空间组织灵活多变,包含咖啡厅、休息区、书店等多功能区域,屋顶檐下形成半室外空间,增强与公园的互动。 材料与技术 项目采用钢框架结构支撑有机曲面屋顶,高度从4米渐变至13米。材料选用当地传统砖材与现代玻璃结合,既体现地域特色又展现现代性,创造光影对比的丰富空间体验。 项目特色与启发 济宁艺术博物馆通过建筑与自然的深度融合,为文化建筑设计提供了新思路。项目展示了如何通过有机形态和空间组织创造建筑与环境的和谐关系,对当代文化建筑设计具有重要参考价值。 设计团队 SANAA是国际知名建筑事务所,以极简主义设计和空间流动性著称。事务所在文化建筑领域拥有丰富经验,擅长通过细腻的材料运用和空间处理创造独特的建筑体验。 本文来自 © SANAA, 发布于 © 建筑学院官方网站。 未经授权,禁止转载或摘编。 编辑版本版权归 © 建筑学院官方网站 所有, 设计、图纸及照片版权归设计方 © SANAA ↗ 所有。 查看作者在建筑学院发布的更多作品: SANAA @ 建筑学院官方网站 jining art museumSANAA当代建筑文化建筑设计济宁文化建筑 SANAA事务所 & 设计师 下载原图 收藏 0 关于作者 SANAA事务所 & 设计师 关注私信 52 文章 0 评论 0 粉丝 Tegia da Vaut – Domat的森林小屋 / Tegia da Vaut – Forest Hut in Domat | 吉翁·A·卡米纳达|Gion A. Caminada 上一篇 2026-03-20 上午10:04 格蕾丝农场 / Grace Farms | SANAA 下一篇 2026-03-21 下午9:26 猜你喜欢 克劳斯住房区块 / Kraus Housing Blocks | Arrhov Frick 建筑事务所 2026-01-22 住宅建筑设计 日本女子大学学生食堂 / Student Cafeteria Japan Women’s University | SANAA 2026-03-06 公共建筑设计 巴黎圣母院大教堂 Grand Magasin La Samaritaine / Grand Magasin La Samaritaine | SANAA 2026-02-08 商业建筑 Casa de Navidad / House in Navidad | Pezo Von Ellrichshausen 2026-02-05 住宅建筑设计 卢塞斯艺术学院 / Sint-Lucas School of Fine Arts | Xaveer de Geyter 2026-02-28 公共建筑设计 卢森堡大学云计算礼堂 / The Cloud Auditorium for Luxembourg University | SANAA 2026-03-03 公共建筑设计 发表回复 请登录后评论...登录后才能评论 提交