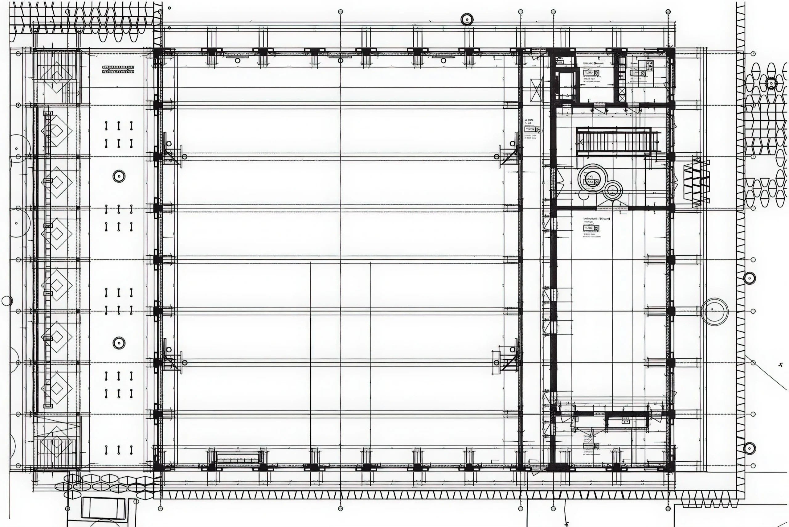
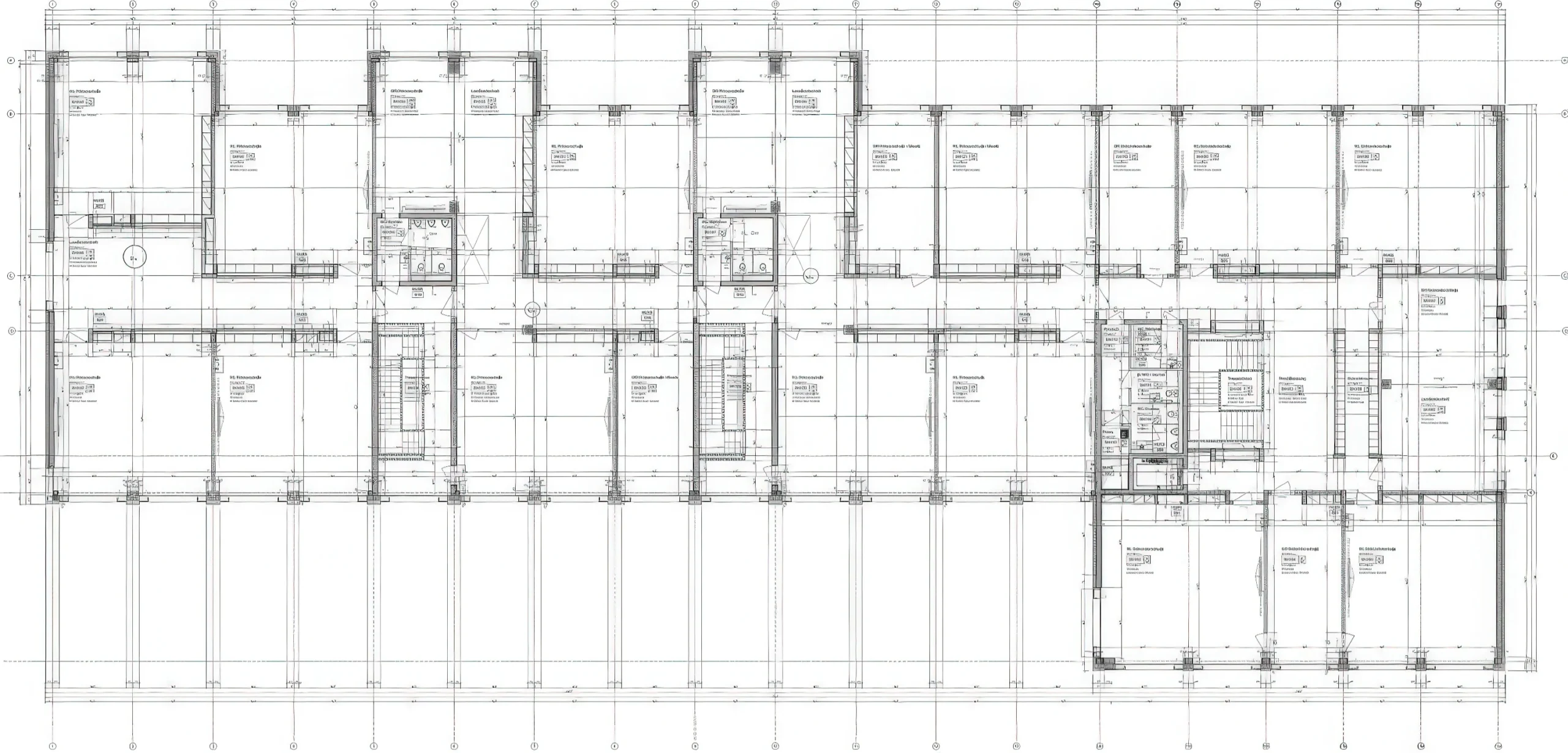
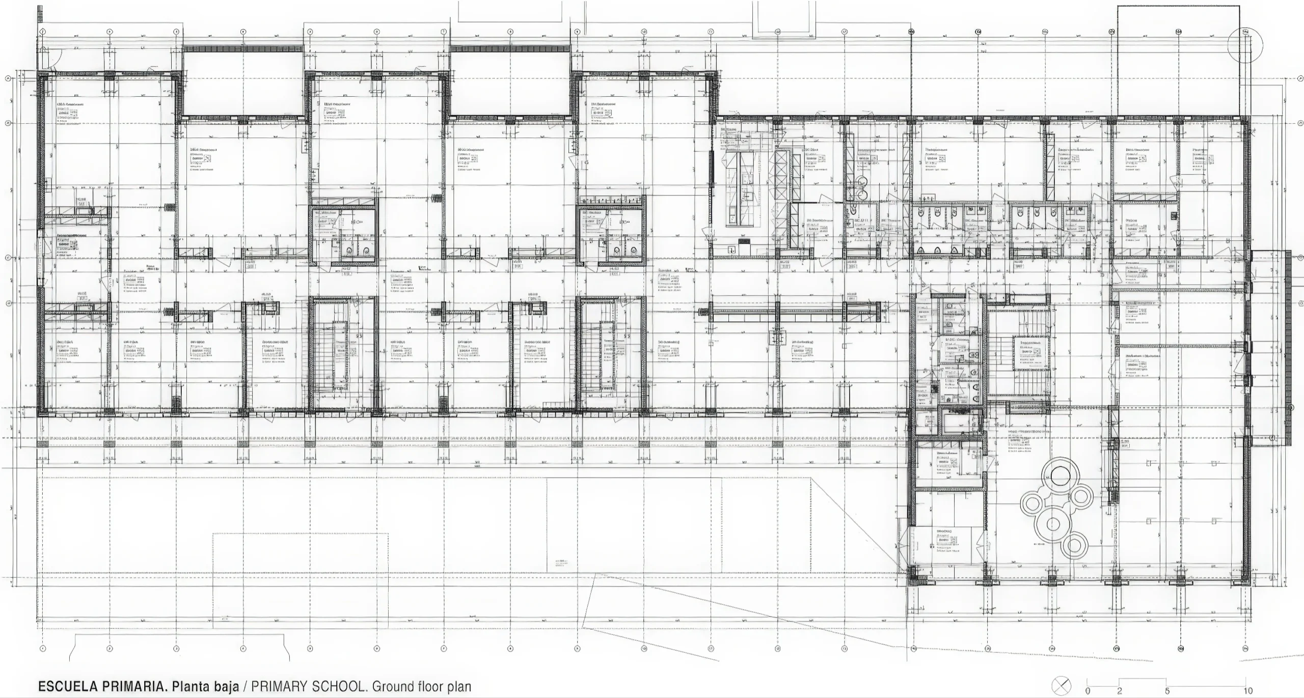
克拉默阿克尔小学 / Krämeracker Primary School | Roger Boltshauser Roger Boltshauser • 2026-03-22 下午8:02 • 公共建筑设计, 建筑设计, 教育建筑设计 设计: Roger Boltshauser 类型: 教育建筑设计 功能: 学校 风格: 当代建筑 材料: 混凝土 玻璃 陶瓷 尺度: 中型建筑 地点:乌斯特 时间: 1970年 项目概述 供水发电站 Zug 办公室和基础设施建筑位于瑞士楚格市 Chollerstrasse 工业区,是一座集办公空间与技术基础设施于一体的多功能建筑。项目采用两阶段建设策略,首期建成三层梳状体量建筑,总建筑面积约 — 平方米,设计始于2016年,建成于2021年。 设计理念 Roger Boltshauser 的设计回应了工业区环境特征,通过梳状体量组织与光伏立面系统,将可持续性融入建筑本质。设计强调功能性与经济性,以清晰的构件分离与设备可见性表达工业建筑的诚实美学,同时参考周边工业环境的纹理与尺度。 空间与功能 建筑地下层容纳瑞士最大有线网络公司的技术基础设施与停车场,地面层通过顶部采光中庭连接客户服务中心,雕塑般螺旋楼梯引导至上层办公空间。办公楼层采用模块化布局,支持灵活分隔以适应不同租户需求,流线组织清晰高效。 项目概述 克拉默阿克尔小学位于瑞士乌斯特,是 Krameracker 中学的扩建项目,包括新建小学教学楼和体育馆。项目于2014年获得竞赛一等奖,2018年建成,采用预制混凝土骨架结构,通过棋盘式布局组织建筑体量,形成多样化的室外活动空间。 设计理念 Roger Boltshauser 的设计理念强调建筑与周边环境的对话关系。新建建筑通过精细的垂直和水平体量位移,与现有中学建筑及邻近住宅区建立空间联系。棋盘式的布局不仅创造了丰富的室外空间,也体现了建筑与城市肌理的有机融合。 空间与功能 小学教学楼呈长条形,与现有中学平行布置。建筑头部集中布置公共空间,包括宽敞的门厅、图书馆、专用教室和教师办公室。长条部分底层设置幼儿园和课后托管中心,上层为可灵活组合的教室群,通过活动隔墙实现空间的多功能使用。体育馆前设有多功能厅,可通过入口门厅独立进入。 材料与技术 建筑采用预制混凝土柱的骨架结构体系,立面融合混凝土构件、石灰抹灰表面、赤陶格栅和窗户等元素。被动式建筑措施体现可持续性,黏土抹灰墙面调节室内湿度,立面石灰材料来自当地并使用天然添加剂。特别开发的赤陶元素作为内外装饰亮点,通风格栅确保必要的交叉通风。 项目特色与启发 克拉默阿克尔小学项目展示了教育建筑在空间灵活性和环境性能方面的创新实践。Roger Boltshauser 通过预制建造技术和可持续材料应用,创造了适应未来教育需求的学习环境,为当代教育建筑设计提供了重要参考。 设计团队 Roger Boltshauser 是瑞士知名建筑师,其作品以精致的材料运用和可持续设计策略著称。在本项目中,团队通过创新的结构体系和细致的空间处理,成功实现了建筑与环境的和谐共生,体现了其对教育建筑设计的深刻理解。 项目概述 供水发电站 Zug 办公室和基础设施建筑位于瑞士楚格市 Chollerstrasse 工业区,是一座集办公空间与技术基础设施于一体的多功能建筑。项目采用两阶段建设策略,首期建成三层梳状体量建筑,总建筑面积约 — 平方米,设计始于2016年,建成于2021年。 设计理念 Roger Boltshauser 的设计回应了工业区环境特征,通过梳状体量组织与光伏立面系统,将可持续性融入建筑本质。设计强调功能性与经济性,以清晰的构件分离与设备可见性表达工业建筑的诚实美学,同时参考周边工业环境的纹理与尺度。 空间与功能 建筑地下层容纳瑞士最大有线网络公司的技术基础设施与停车场,地面层通过顶部采光中庭连接客户服务中心,雕塑般螺旋楼梯引导至上层办公空间。办公楼层采用模块化布局,支持灵活分隔以适应不同租户需求,流线组织清晰高效。 项目概述 克拉默阿克尔小学位于瑞士乌斯特,是 Krameracker 中学的扩建项目,包括新建小学教学楼和体育馆。项目于2014年获得竞赛一等奖,2018年建成,采用预制混凝土骨架结构,通过棋盘式布局组织建筑体量,形成多样化的室外活动空间。 设计理念 Roger Boltshauser 的设计理念强调建筑与周边环境的对话关系。新建建筑通过精细的垂直和水平体量位移,与现有中学建筑及邻近住宅区建立空间联系。棋盘式的布局不仅创造了丰富的室外空间,也体现了建筑与城市肌理的有机融合。 空间与功能 小学教学楼呈长条形,与现有中学平行布置。建筑头部集中布置公共空间,包括宽敞的门厅、图书馆、专用教室和教师办公室。长条部分底层设置幼儿园和课后托管中心,上层为可灵活组合的教室群,通过活动隔墙实现空间的多功能使用。体育馆前设有多功能厅,可通过入口门厅独立进入。 材料与技术 建筑采用预制混凝土柱的骨架结构体系,立面融合混凝土构件、石灰抹灰表面、赤陶格栅和窗户等元素。被动式建筑措施体现可持续性,黏土抹灰墙面调节室内湿度,立面石灰材料来自当地并使用天然添加剂。特别开发的赤陶元素作为内外装饰亮点,通风格栅确保必要的交叉通风。 项目特色与启发 克拉默阿克尔小学项目展示了教育建筑在空间灵活性和环境性能方面的创新实践。Roger Boltshauser 通过预制建造技术和可持续材料应用,创造了适应未来教育需求的学习环境,为当代教育建筑设计提供了重要参考。 设计团队 Roger Boltshauser 是瑞士知名建筑师,其作品以精致的材料运用和可持续设计策略著称。在本项目中,团队通过创新的结构体系和细致的空间处理,成功实现了建筑与环境的和谐共生,体现了其对教育建筑设计的深刻理解。 本文来自 © Roger Boltshauser, 发布于 © 建筑学院官方网站。 未经授权,禁止转载或摘编。 编辑版本版权归 © 建筑学院官方网站 所有, 设计、图纸及照片版权归设计方 © Roger Boltshauser ↗ 所有。 查看作者在建筑学院发布的更多作品: Roger Boltshauser @ 建筑学院官方网站 Krämeracker Primary SchoolRoger Boltshauser乌斯特教育建筑可持续建筑教育建筑设计 Roger Boltshauser事务所 & 设计师 下载原图 收藏 0 关于作者 Roger Boltshauser事务所 & 设计师 关注私信 13 文章 0 评论 0 粉丝 Roger Boltshauser是瑞士著名建筑师,以其对可持续建筑的深刻实践和对传统材料(尤其是夯土技术)的现代创新而闻名。他的作品融合了精准的构造逻辑与独特的材料质感,在住宅与文化建筑领域成就卓著,是当代探索建筑生态性与地域性的重要代表。访问官网boltshauser.ch,探索其深邃的建筑理念与作品全貌。 Esselunga 福利院 / Esselunga Welfare Project | SANAA 上一篇 2026-03-21 下午9:26 希尔根巴赫瑞斯建筑 / Rise Buildings in Hirzenbach | Roger Boltshauser 下一篇 2026-03-22 下午8:03 猜你喜欢 25 DOT Lope de Vega 3 / 25 Temporary Cohousing Units | HARQUITECTES 2026-02-09 住宅建筑设计 舞与文本设计学院的扩展,伯尔尼 / Extension for the School of Dance and Textile Design, Bern | 巴罗齐与维加建筑事务所|Barozzi Veiga 2026-04-17 公共建筑设计 Ararat住宅 / SJB:澳大利亚阿拉拉特1950年代砖房改造 | 可持续家庭住宅典范 2025-05-20 住宅建筑设计 钢屋案例研究 / Steel House Case Study | Roger Boltshauser 2026-03-15 商业与综合建筑 鲍夫德尔欧洲大道 Baufeld F Europaallee / Baufeld F Europaallee | Roger Boltshauser 2026-03-22 住宅建筑设计 UAB ICPRC研究中心 / ICP Research Centre. UAB | HArquitectes 2026-02-01 公共建筑设计 发表回复 请登录后评论...登录后才能评论 提交