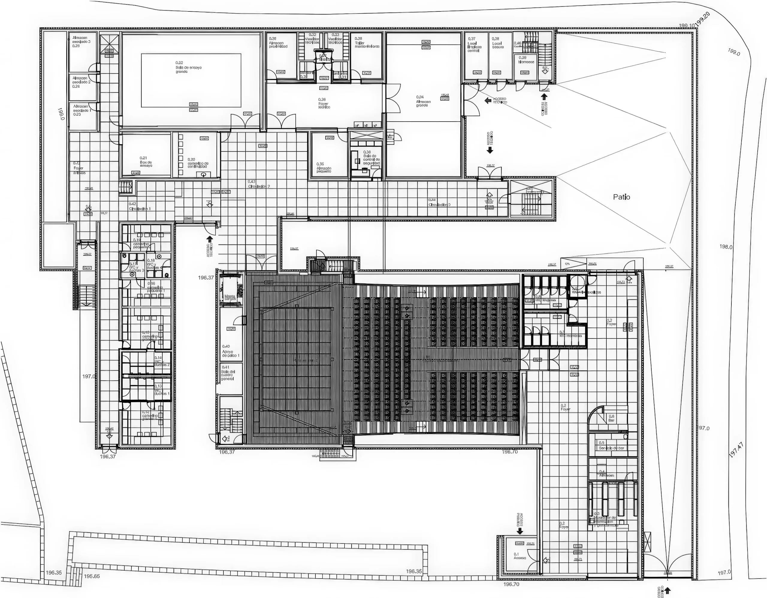
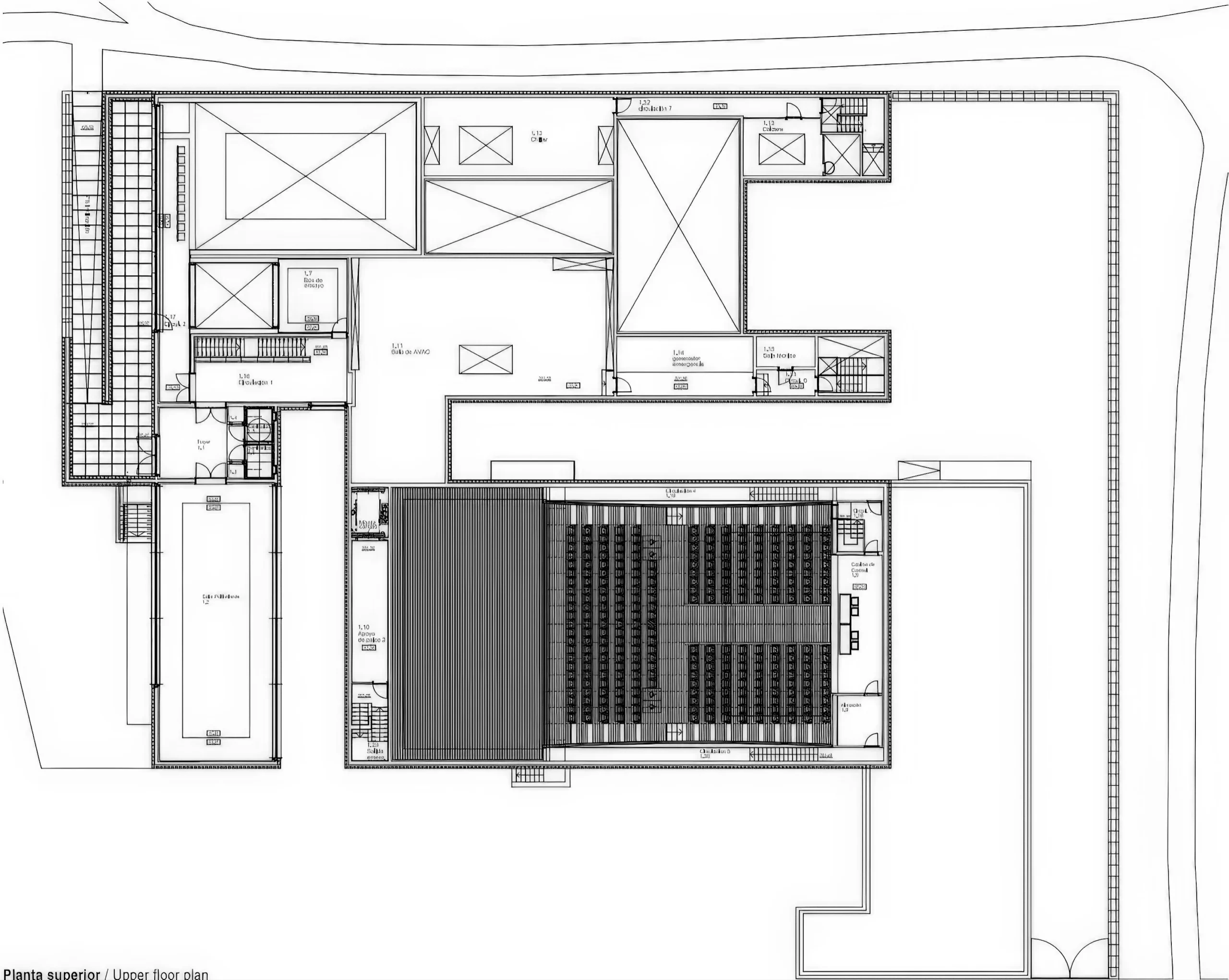
大剧院 Auditorium / Teatro-Auditorio | 阿尔瓦罗·西扎|Álvaro Siza 阿尔瓦罗·西扎|Alvaro Siza • 2026-03-02 上午11:56 • 公共建筑设计, 建筑设计, 文化建筑设计 大剧院 Auditorium 位于西班牙 Llinars del Vallès 市,由阿尔瓦罗·西扎设计,是一座集剧场、音乐厅与社区活动功能于一体的文化建筑。项目巧妙融入城市公园环境,保留原有林地与溪流,以舞台空间为核心组织功能布局,为300名观众提供优质表演与文化活动场所。 设计: 阿尔瓦罗·西扎|Alvaro Siza 类型: 文化建筑设计 功能: 独立住宅 风格: 现代主义 材料: 混凝土 钢材 玻璃 尺度: 中型建筑 地点:Llinars del Vallès 时间: 1970年 项目概述 大剧院 Auditorium 位于西班牙 Llinars del Vallès 市,是一座多功能文化建筑,包含300座剧场、音乐厅、排练室及社区活动空间。项目基于 Can Marqués 部分规划在公共土地上建设,设计与周边公园环境和 Can Marqués 林地形成有机联系。 设计理念 阿尔瓦罗·西扎的设计充分尊重场地特征,保留成熟林地与溪流,将建筑置于 Ronda Sant Antoni 主路旁,既避免干扰森林生态,又利用林间视觉轴线建立建筑与环境的对话。设计强调文化设施与社区生活的融合,创造开放包容的公共文化空间。 空间与功能 大剧院 Auditorium 以舞台空间为核心组织功能布局,围绕舞台设置观众席、排练室、化妆间、储藏室及管理区域。建筑通过庭院连接不同功能体量,形成清晰的流线分离:演员、技术人员与观众各有独立通道,同时保证功能使用的灵活性与同时性。 材料与技术 建筑采用混凝土、玻璃和钢材等现代材料,体量表达清晰明确。不同功能空间在外部形态上各有特色,通过庭院实现自然采光与通风。结构设计充分考虑舞台设备需求,同时注重建筑与周边公园环境的视觉与空间联系。 项目特色与启发 大剧院 Auditorium 展现了阿尔瓦罗·西扎在文化建筑设计中的环境敏感性与功能整合能力。项目成功平衡了建筑性能、社区需求与生态保护,为中小型文化设施设计提供了优秀范例,体现了当代文化建筑的开放性与适应性。 设计团队 阿尔瓦罗·西扎是葡萄牙著名建筑师,普利兹克奖得主,以其在现代建筑中的诗意表达和对场地文脉的深刻理解而闻名。他的作品涵盖文化、住宅、公共建筑等多个领域,大剧院 Auditorium 体现了其在文化建筑设计中一贯的简洁形式与细腻的空间处理。 项目概述 大剧院 Auditorium 位于西班牙 Llinars del Vallès 市,是一座多功能文化建筑,包含300座剧场、音乐厅、排练室及社区活动空间。项目基于 Can Marqués 部分规划在公共土地上建设,设计与周边公园环境和 Can Marqués 林地形成有机联系。 设计理念 阿尔瓦罗·西扎的设计充分尊重场地特征,保留成熟林地与溪流,将建筑置于 Ronda Sant Antoni 主路旁,既避免干扰森林生态,又利用林间视觉轴线建立建筑与环境的对话。设计强调文化设施与社区生活的融合,创造开放包容的公共文化空间。 空间与功能 大剧院 Auditorium 以舞台空间为核心组织功能布局,围绕舞台设置观众席、排练室、化妆间、储藏室及管理区域。建筑通过庭院连接不同功能体量,形成清晰的流线分离:演员、技术人员与观众各有独立通道,同时保证功能使用的灵活性与同时性。 材料与技术 建筑采用混凝土、玻璃和钢材等现代材料,体量表达清晰明确。不同功能空间在外部形态上各有特色,通过庭院实现自然采光与通风。结构设计充分考虑舞台设备需求,同时注重建筑与周边公园环境的视觉与空间联系。 项目特色与启发 大剧院 Auditorium 展现了阿尔瓦罗·西扎在文化建筑设计中的环境敏感性与功能整合能力。项目成功平衡了建筑性能、社区需求与生态保护,为中小型文化设施设计提供了优秀范例,体现了当代文化建筑的开放性与适应性。 设计团队 阿尔瓦罗·西扎是葡萄牙著名建筑师,普利兹克奖得主,以其在现代建筑中的诗意表达和对场地文脉的深刻理解而闻名。他的作品涵盖文化、住宅、公共建筑等多个领域,大剧院 Auditorium 体现了其在文化建筑设计中一贯的简洁形式与细腻的空间处理。 本文来自 © 阿尔瓦罗·西扎|Alvaro Siza, 发布于 © 建筑学院官方网站。 未经授权,禁止转载或摘编。 编辑版本版权归 © 建筑学院官方网站 所有, 设计、图纸及照片版权归设计方 © 阿尔瓦罗·西扎|Alvaro Siza ↗ 所有。 查看作者在建筑学院发布的更多作品: 阿尔瓦罗·西扎|Alvaro Siza @ 建筑学院官方网站 Llinars del Vallès 文化设施Teatro-Auditorio文化建筑现代主义阿尔瓦罗·西扎 阿尔瓦罗·西扎|Alvaro Siza事务所 & 设计师 下载原图 收藏 0 关于作者 阿尔瓦罗·西扎|Alvaro Siza事务所 & 设计师 关注私信 36 文章 0 评论 2 粉丝 阿尔瓦罗·西扎(Álvaro Siza)是葡萄牙著名建筑师,1992年普利兹克奖得主。他以融合葡萄牙建筑传统与国际现代主义的“诗意现代主义”风格闻名,代表作包括勒萨德帕梅拉游泳池等。 阿兹赫诺瓦尔别墅,辛特拉 / Vila Adeuzinho House, Sintra | 阿尔瓦罗·西扎|Álvaro Siza 上一篇 2026-03-01 下午8:54 德勒兰·雅克·德勒兰教堂 / de-la-Lande Jacques-de-la-Lande Church | 阿尔瓦罗·西扎|Álvaro Siza 下一篇 2026-03-02 下午12:16 猜你喜欢 罗马别墅博物馆 Museum for a Roman Villa | 卡鲁索·圣约翰建筑事务所|Caruso St John 2025-12-04 公共建筑设计 加拉尔特住宅小区 / Residential Complex in Gallarate | 阿尔瓦罗·西扎|Álvaro Siza 2025-12-21 住宅建筑设计 圣卢西亚路公寓 / Apartments on Rua da Senhora da Luz | 德·莫拉建筑事务所 2026-03-20 住宅建筑设计 知识之屋维拉维德 / Vila Verde House of Knowledge | 德·莫拉建筑事务所 2026-03-18 公共建筑设计 江南水陆工厂 / The Building on the Water Shilien Chemical Industrial Factory | 阿尔瓦罗·西扎 & 卡洛斯·卡斯塔涅拉 2026-03-04 工业建筑 兰登贝格豪斯剧院 Landenberghaus Theater | Karamuk Kuo 建筑事务所|Karamuk Kuo 2025-12-16 公共建筑设计 发表回复 请登录后评论...登录后才能评论 提交