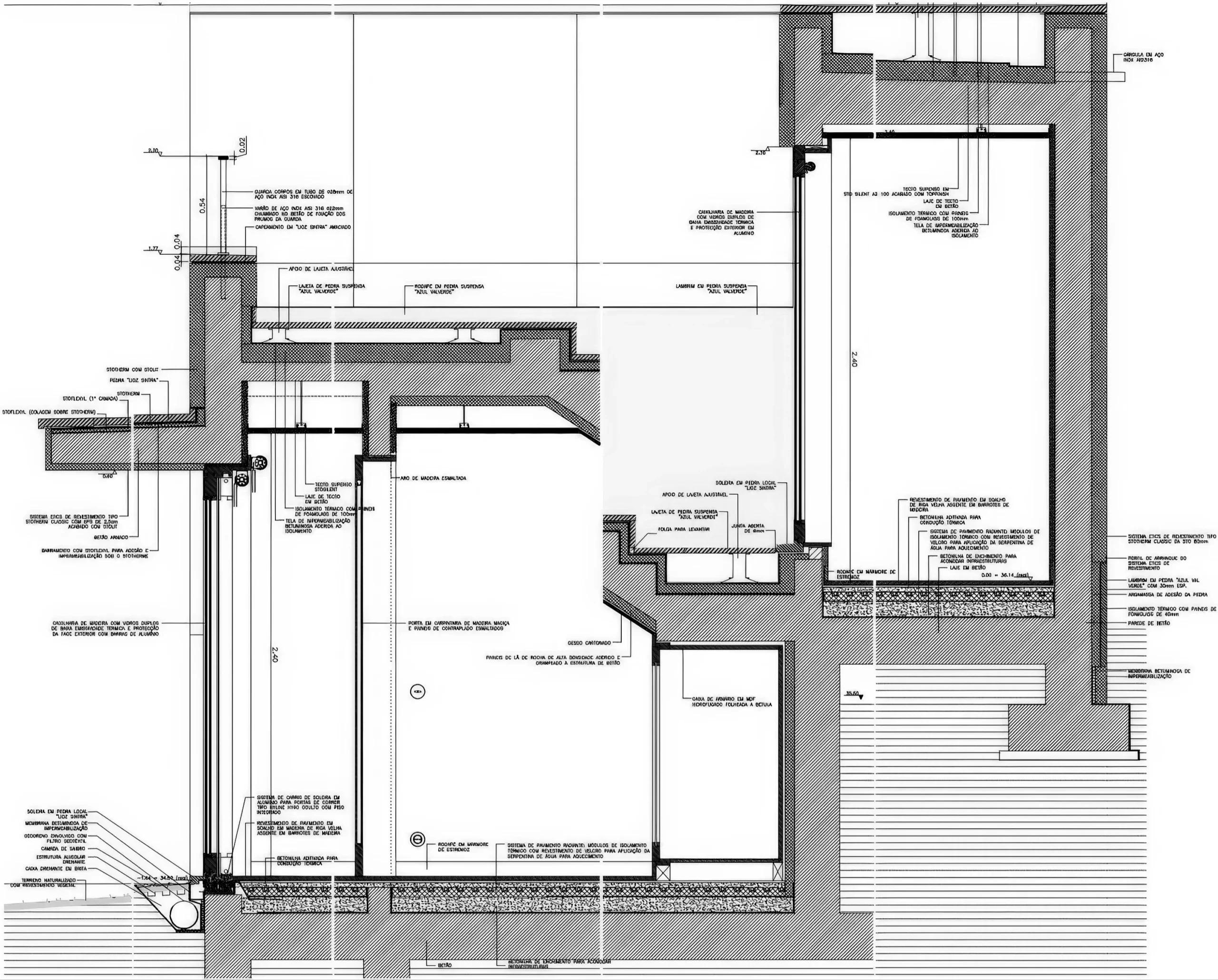
阿兹赫诺瓦尔别墅,辛特拉 / Vila Adeuzinho House, Sintra | 阿尔瓦罗·西扎|Álvaro Siza 阿尔瓦罗·西扎|Alvaro Siza • 2026-03-01 下午8:54 • 住宅建筑设计, 建筑设计, 独立住宅设计 阿兹赫诺瓦尔别墅位于葡萄牙辛特拉,由著名建筑师阿尔瓦罗·西扎设计,是一座艺术家住宅与工作室。项目巧妙利用地形高差,通过L形布局和分层空间组织,创造出面向大西洋的连续视野与灵活功能分区,体现了西扎对场地文脉与建筑形态的精妙掌控。 设计: 阿尔瓦罗·西扎|Alvaro Siza 类型: 独立住宅设计 功能: 独立住宅 风格: 现代主义 材料: 混凝土 木材 玻璃 尺度: 小型建筑 地点:辛特拉 时间: 1970年 项目概述 阿兹赫诺瓦尔别墅(Vila Adeuzinho House)位于葡萄牙辛特拉,是一座艺术家住宅与工作室综合体。项目占地约1501平方米,建在原有住宅基址上,采用L形布局与分层空间设计,充分利用地形高差创造独特的空间体验。 设计理念 阿尔瓦罗·西扎的设计回应了海岸管理规划的限制条件,保留了场地原有的地形地貌与植被特征。设计通过规整的立方体量和L形布局,在严格遵守建筑高度限制的同时,创造出与自然环境和谐共生的建筑形态。 空间与功能 阿兹赫诺瓦尔别墅采用单层双标高设计,宽翼部分设置接待区、餐厅和小厨房,窄翼部分容纳卧室和浴室。空间通过家具布置和地面高差定义功能,10.1米宽的海景开口将室内外视野无缝连接,形成连续流动的空间体验。 材料与技术 建筑采用钢筋混凝土板墙结构,外墙使用岩棉板保温系统,表面为石灰基增强抹灰饰面。木制漆面门窗与当地建筑色彩相协调,屋顶设计为可通行的绿化屋面,体现了可持续设计理念。 项目特色与启发 阿兹赫诺瓦尔别墅展示了如何在严格规划限制下实现建筑创新,其分层空间组织和地形利用策略为坡地住宅设计提供了重要参考。西扎对当地文脉的尊重与当代建筑语言的融合,体现了地域主义建筑的现代诠释。 设计团队 阿尔瓦罗·西扎是葡萄牙著名建筑师,普利兹克奖得主,以其对现代主义建筑的深刻理解和独特的地域性表达闻名于世。他的作品注重场地特征、光线控制和空间体验,在住宅设计中展现出卓越的形态掌控能力。 项目概述 阿兹赫诺瓦尔别墅(Vila Adeuzinho House)位于葡萄牙辛特拉,是一座艺术家住宅与工作室综合体。项目占地约1501平方米,建在原有住宅基址上,采用L形布局与分层空间设计,充分利用地形高差创造独特的空间体验。 设计理念 阿尔瓦罗·西扎的设计回应了海岸管理规划的限制条件,保留了场地原有的地形地貌与植被特征。设计通过规整的立方体量和L形布局,在严格遵守建筑高度限制的同时,创造出与自然环境和谐共生的建筑形态。 空间与功能 阿兹赫诺瓦尔别墅采用单层双标高设计,宽翼部分设置接待区、餐厅和小厨房,窄翼部分容纳卧室和浴室。空间通过家具布置和地面高差定义功能,10.1米宽的海景开口将室内外视野无缝连接,形成连续流动的空间体验。 材料与技术 建筑采用钢筋混凝土板墙结构,外墙使用岩棉板保温系统,表面为石灰基增强抹灰饰面。木制漆面门窗与当地建筑色彩相协调,屋顶设计为可通行的绿化屋面,体现了可持续设计理念。 项目特色与启发 阿兹赫诺瓦尔别墅展示了如何在严格规划限制下实现建筑创新,其分层空间组织和地形利用策略为坡地住宅设计提供了重要参考。西扎对当地文脉的尊重与当代建筑语言的融合,体现了地域主义建筑的现代诠释。 设计团队 阿尔瓦罗·西扎是葡萄牙著名建筑师,普利兹克奖得主,以其对现代主义建筑的深刻理解和独特的地域性表达闻名于世。他的作品注重场地特征、光线控制和空间体验,在住宅设计中展现出卓越的形态掌控能力。 本文来自 © 阿尔瓦罗·西扎|Alvaro Siza, 发布于 © 建筑学院官方网站。 未经授权,禁止转载或摘编。 编辑版本版权归 © 建筑学院官方网站 所有, 设计、图纸及照片版权归设计方 © 阿尔瓦罗·西扎|Alvaro Siza ↗ 所有。 查看作者在建筑学院发布的更多作品: 阿尔瓦罗·西扎|Alvaro Siza @ 建筑学院官方网站 Vila Adeuzinho House现代住宅艺术家住宅设计辛特拉建筑阿尔瓦罗·西扎作品 阿尔瓦罗·西扎|Alvaro Siza事务所 & 设计师 下载原图 收藏 0 关于作者 阿尔瓦罗·西扎|Alvaro Siza事务所 & 设计师 关注私信 36 文章 0 评论 2 粉丝 阿尔瓦罗·西扎(Álvaro Siza)是葡萄牙著名建筑师,1992年普利兹克奖得主。他以融合葡萄牙建筑传统与国际现代主义的“诗意现代主义”风格闻名,代表作包括勒萨德帕梅拉游泳池等。 斯特拉斯堡经济学院 / Faculty of Economics, Strasbourg | Xaveer de Geyter 上一篇 2026-02-28 下午2:26 大剧院 Auditorium / Teatro-Auditorio | 阿尔瓦罗·西扎|Álvaro Siza 下一篇 2026-03-02 上午11:56 猜你喜欢 别墅托维诺森 / Villa Toivonen | Arrhov Frick 2026-01-24 住宅建筑设计 COMMUNAL VILLA / COMMUNAL VILLA | Dogma 2026-01-26 住宅建筑设计 DDH房子扩建和翻新 / DDH HOUSE ENLARGEMENT AND RENOVATION | Taller Héctor Barroso 2026-02-21 住宅建筑设计 陶土展馆 / Clay Pavilion in Oaxaca | 阿尔瓦罗·西扎|Álvaro Siza 2026-03-05 公共建筑设计 艺术家避暑所 帕特鲁加纳拉 / Artists’ Retreat in Pittugala | 帕琳达·坎南加拉|Palinda Kannangara 2025-12-25 住宅建筑设计 Porch House / Porch House | MARKLEE 建筑事务所 2025-11-02 公共建筑设计 发表回复 请登录后评论...登录后才能评论 提交