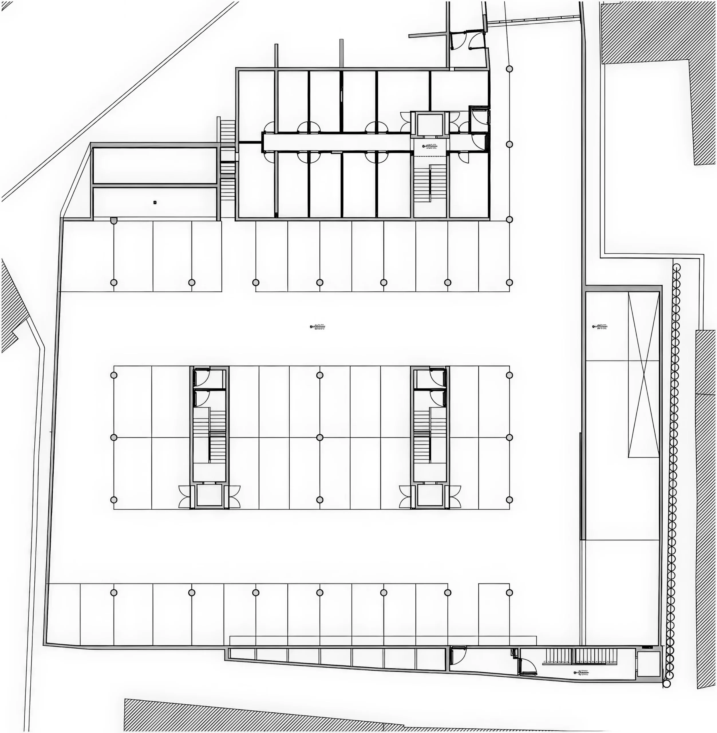
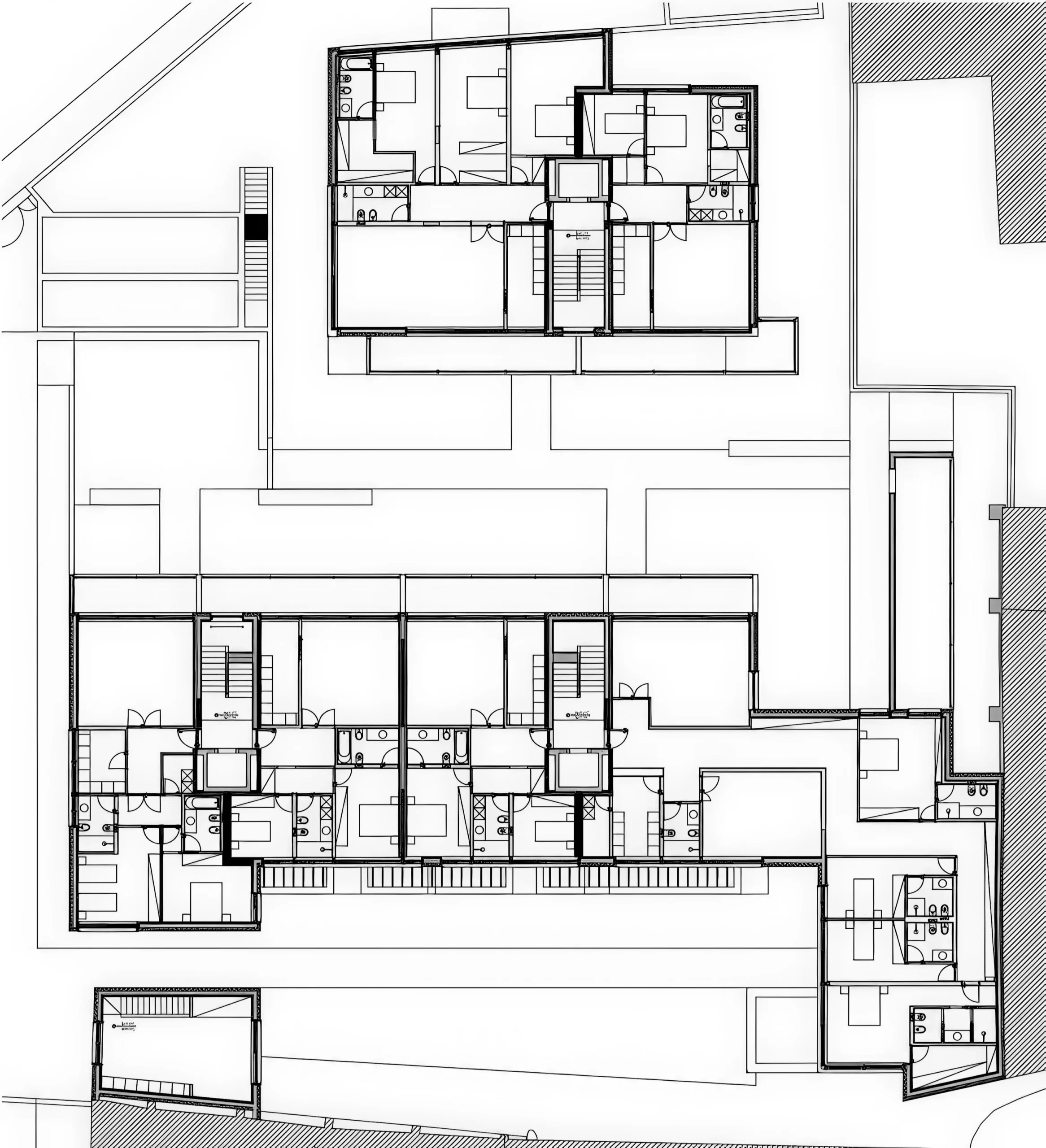
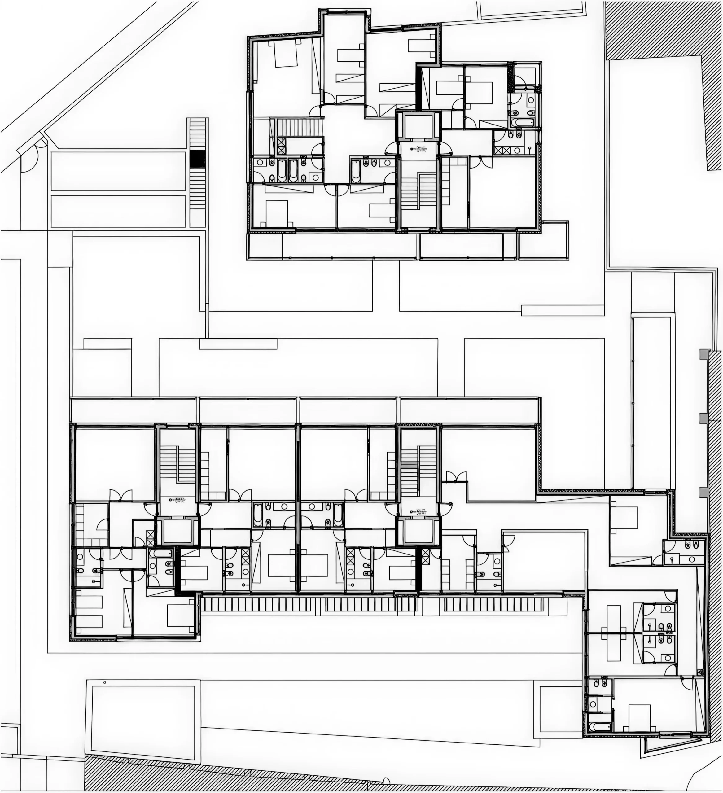
加拉尔特住宅小区 / Residential Complex in Gallarate | 阿尔瓦罗·西扎|Álvaro Siza 阿尔瓦罗·西扎|Alvaro Siza • 2026-03-04 上午9:50 • 公寓住宅设计, 建筑设计 加拉尔特住宅小区由阿尔瓦罗·西扎设计,位于意大利加拉尔特市中心,包含20套公寓及配套设施。项目通过现代建筑语言重新诠释传统伦巴第庭院空间,在历史城区与自然景观之间建立和谐连接,展现了西扎对城市文脉与居住品质的深度思考。 设计: 阿尔瓦罗·西扎|Alvaro Siza 类型: 建筑设计 功能: 公寓住宅 风格: 现代主义 材料: 混凝土 玻璃 石材 尺度: 中型建筑 地点:加拉尔特 时间: 2018年 项目概述 加拉尔特住宅小区位于意大利加拉尔特市中心,毗邻罗马大街与波斯特波尔塔大街。项目占地约50×60米,包含20套公寓(面积75-270平方米)、94个停车位及20个储藏室。建筑采用四层地上结构与两层地下空间,设计充分尊重历史城区肌理,在传统与现代之间寻求平衡。 设计理念 阿尔瓦罗·西扎的设计核心在于延续城市文脉,通过重新诠释传统伦巴第庭院与古老街巷空间,创造具有当代性的居住环境。项目巧妙连接历史中心与自由风格时期建筑区,将城市景观与提契诺公园自然景观纳入设计考量,形成独特的空间叙事。 空间与功能 项目由两栋建筑围合出矩形中央庭院,形成明确的公共与私密空间层次。公寓采用东西双向布局确保交叉通风与最佳采光,上层复式单元配备宽敞露台俯瞰城市景观。设计包含市政停车场与公共步行通道,使城市能够渗透进入建筑群内部,增强社区开放性。 材料与技术 建筑采用后张拉混凝土结构,外墙全面覆盖石灰华石材,延续至地下室通风庭院。室外道路采用砾石铺装配石灰华路缘石,屋顶几乎完全绿化。项目集成光伏板与地热探针,为地暖系统与生活热水提供可再生能源,体现可持续设计理念。 项目特色与启发 加拉尔特住宅小区展现了西扎在都市更新项目中平衡传统与现代的卓越能力。项目通过重新定义庭院空间类型学,为高密度城市居住环境提供了创新解决方案,对当代住宅设计具有重要参考价值。 设计团队 阿尔瓦罗·西扎是葡萄牙著名建筑师,普利兹克奖得主,以其对现代主义建筑的深刻理解和独特的地域性表达闻名。西扎的建筑作品注重场地文脉、空间体验与材料质感,在全球范围内享有盛誉。 项目概述 加拉尔特住宅小区位于意大利加拉尔特市中心,毗邻罗马大街与波斯特波尔塔大街。项目占地约50×60米,包含20套公寓(面积75-270平方米)、94个停车位及20个储藏室。建筑采用四层地上结构与两层地下空间,设计充分尊重历史城区肌理,在传统与现代之间寻求平衡。 设计理念 阿尔瓦罗·西扎的设计核心在于延续城市文脉,通过重新诠释传统伦巴第庭院与古老街巷空间,创造具有当代性的居住环境。项目巧妙连接历史中心与自由风格时期建筑区,将城市景观与提契诺公园自然景观纳入设计考量,形成独特的空间叙事。 空间与功能 项目由两栋建筑围合出矩形中央庭院,形成明确的公共与私密空间层次。公寓采用东西双向布局确保交叉通风与最佳采光,上层复式单元配备宽敞露台俯瞰城市景观。设计包含市政停车场与公共步行通道,使城市能够渗透进入建筑群内部,增强社区开放性。 材料与技术 建筑采用后张拉混凝土结构,外墙全面覆盖石灰华石材,延续至地下室通风庭院。室外道路采用砾石铺装配石灰华路缘石,屋顶几乎完全绿化。项目集成光伏板与地热探针,为地暖系统与生活热水提供可再生能源,体现可持续设计理念。 项目特色与启发 加拉尔特住宅小区展现了西扎在都市更新项目中平衡传统与现代的卓越能力。项目通过重新定义庭院空间类型学,为高密度城市居住环境提供了创新解决方案,对当代住宅设计具有重要参考价值。 设计团队 阿尔瓦罗·西扎是葡萄牙著名建筑师,普利兹克奖得主,以其对现代主义建筑的深刻理解和独特的地域性表达闻名。西扎的建筑作品注重场地文脉、空间体验与材料质感,在全球范围内享有盛誉。 本文来自 © 阿尔瓦罗·西扎|Alvaro Siza, 发布于 © 建筑学院官方网站。 未经授权,禁止转载或摘编。 编辑版本版权归 © 建筑学院官方网站 所有, 设计、图纸及照片版权归设计方 © 阿尔瓦罗·西扎|Alvaro Siza ↗ 所有。 查看作者在建筑学院发布的更多作品: 阿尔瓦罗·西扎|Alvaro Siza @ 建筑学院官方网站 Residential Complex in Gallarate公寓住宅设计城市住宅更新现代主义住宅阿尔瓦罗·西扎 阿尔瓦罗·西扎|Alvaro Siza事务所 & 设计师 下载原图 收藏 0 关于作者 阿尔瓦罗·西扎|Alvaro Siza事务所 & 设计师 关注私信 36 文章 0 评论 1 粉丝 阿尔瓦罗·西扎(Álvaro Siza)是葡萄牙著名建筑师,1992年普利兹克奖得主。他以融合葡萄牙建筑传统与国际现代主义的“诗意现代主义”风格闻名,代表作包括勒萨德帕梅拉游泳池等。 直岛港候船室 / Naoshima Port Terminal | SANAA 上一篇 2026-03-03 下午1:09 马略阿的房子 / House in Maia | 阿尔瓦罗·西扎 & 安东尼奥·马杜雷拉 下一篇 2026-03-05 上午10:18 猜你喜欢 米尔吉纳教堂 / Chapel in Miljana | 阿尔瓦罗·西扎|Álvaro Siza 2026-03-05 公共建筑设计 奥斯特鲁姆的套房和别墅 / Suites and Villas, Estremoz | 阿尔瓦罗·西扎|Álvaro Siza 2025-12-20 公共建筑设计 卡帕尔达摩纳哥,卢戈斯 / Capela do Monte, Lagos | 阿尔瓦罗·西扎|Álvaro Siza 2026-03-04 公共空间设计 上海石库沟住宅 / Shochikucho House | SANAA 2026-02-23 住宅建筑设计 国际当代雕塑博物馆 MIEC / International Museum of Contemporary Sculpture [MIEC] | 阿尔瓦罗·西扎|Álvaro Siza 2026-03-09 公共建筑设计 江南水陆工厂 / The Building on the Water Shilien Chemical Industrial Factory | 阿尔瓦罗·西扎 & 卡洛斯·卡斯塔涅拉 2026-03-04 工业建筑 发表回复 请登录后评论...登录后才能评论 提交