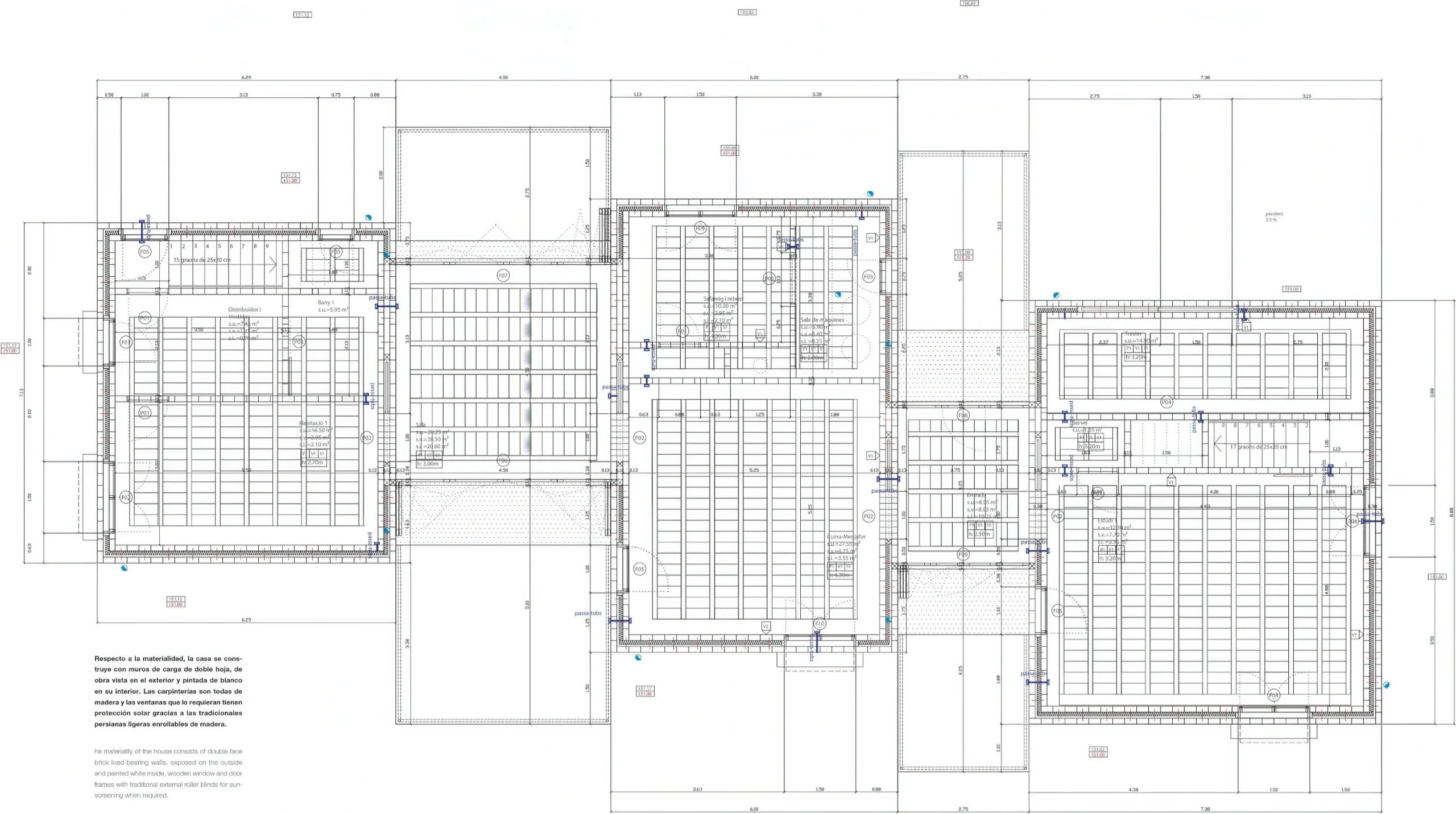
塞塔克戈特-德-瓦利斯区的房屋 / House in Sant Cugat del Vallés | HArquitectes Harquitectes 建筑师事务所|Harquitectes • 2026-04-07 下午9:47 • 住宅建筑设计, 建筑设计, 独立住宅设计 塞塔克戈特-德-瓦利斯区的房屋由HArquitectes设计,位于西班牙巴塞罗那的圣库加特住宅区。该项目通过三个砖砌体块的巧妙布局,实现了住宅与花园的紧密融合,为艺术收藏家打造了一个兼具私密性与开放性的居住空间。 设计: Harquitectes 建筑师事务所|Harquitectes 类型: 独立住宅设计 功能: 独立住宅 风格: 现代主义 材料: 混凝土 木材 玻璃 砖材 尺度: 小型建筑 地点:巴塞罗那 时间: 1970年 项目概述 塞塔克戈特-德-瓦利斯区的房屋位于西班牙巴塞罗那圣库加特住宅区,是一座为艺术收藏家设计的独立住宅。项目由HArquitectes事务所设计,于2011年至2013年间完成,通过三个砖砌体块的组合创造了独特的空间体验。 设计理念 HArquitectes的设计理念强调建筑与自然的共生关系,通过三个平行排列的体块在场地中的巧妙布局,实现了住宅与花园的相互延伸。设计避免了传统的大面积玻璃幕墙,而是采用实体墙面来营造私密感,同时通过间隙空间建立室内外的连续性。 空间与功能 塞塔克戈特-德-瓦利斯区的房屋采用三个功能分明的体块:东侧体块包含儿童卧室和游戏室,中央体块设有5米高的厨房和壁炉,西侧体块为父母区域。体块之间的间隙空间形成了入口大厅和客厅,这些空间通过大型折叠窗与花园相连,在冬季成为温室,夏季则转变为凉廊。 材料与技术 建筑采用双面承重砖墙结构,外部为裸露砖面,内部涂白。木制门窗框架配合传统卷帘遮阳系统,间隙空间采用混凝土板覆盖和木质折叠玻璃门。材料选择注重耐久性与自然质感,体现了HArquitectes对传统建造工艺的现代诠释。 项目特色与启发 塞塔克戈特-德-瓦利斯区的房屋展示了如何通过简单的体块组合创造丰富的空间层次。HArquitectes的设计在保持建筑实体感的同时,实现了与自然的无缝连接,为当代住宅设计提供了关于空间组织与场地回应的创新思路。 设计团队 HArquitectes是西班牙知名建筑事务所,以其对材料、环境和建造工艺的深入研究而著称。团队擅长通过简洁的建筑语言创造富有诗意的空间,在住宅设计中注重可持续性与地域文脉的回应。 项目概述 塞塔克戈特-德-瓦利斯区的房屋位于西班牙巴塞罗那圣库加特住宅区,是一座为艺术收藏家设计的独立住宅。项目由HArquitectes事务所设计,于2011年至2013年间完成,通过三个砖砌体块的组合创造了独特的空间体验。 设计理念 HArquitectes的设计理念强调建筑与自然的共生关系,通过三个平行排列的体块在场地中的巧妙布局,实现了住宅与花园的相互延伸。设计避免了传统的大面积玻璃幕墙,而是采用实体墙面来营造私密感,同时通过间隙空间建立室内外的连续性。 空间与功能 塞塔克戈特-德-瓦利斯区的房屋采用三个功能分明的体块:东侧体块包含儿童卧室和游戏室,中央体块设有5米高的厨房和壁炉,西侧体块为父母区域。体块之间的间隙空间形成了入口大厅和客厅,这些空间通过大型折叠窗与花园相连,在冬季成为温室,夏季则转变为凉廊。 材料与技术 建筑采用双面承重砖墙结构,外部为裸露砖面,内部涂白。木制门窗框架配合传统卷帘遮阳系统,间隙空间采用混凝土板覆盖和木质折叠玻璃门。材料选择注重耐久性与自然质感,体现了HArquitectes对传统建造工艺的现代诠释。 项目特色与启发 塞塔克戈特-德-瓦利斯区的房屋展示了如何通过简单的体块组合创造丰富的空间层次。HArquitectes的设计在保持建筑实体感的同时,实现了与自然的无缝连接,为当代住宅设计提供了关于空间组织与场地回应的创新思路。 设计团队 HArquitectes是西班牙知名建筑事务所,以其对材料、环境和建造工艺的深入研究而著称。团队擅长通过简洁的建筑语言创造富有诗意的空间,在住宅设计中注重可持续性与地域文脉的回应。 本文来自 © Harquitectes 建筑师事务所|Harquitectes, 发布于 © 建筑学院官方网站。 未经授权,禁止转载或摘编。 编辑版本版权归 © 建筑学院官方网站 所有, 设计、图纸及照片版权归设计方 © Harquitectes 建筑师事务所|Harquitectes ↗ 所有。 查看作者在建筑学院发布的更多作品: Harquitectes 建筑师事务所|Harquitectes @ 建筑学院官方网站 HarquitectesHouse in Sant Cugat del Vallés巴塞罗那住宅独立住宅设计现代主义住宅 Harquitectes 建筑师事务所|Harquitectes事务所 & 设计师 下载原图 收藏 0 关于作者 Harquitectes 建筑师事务所|Harquitectes事务所 & 设计师 关注私信 24 文章 0 评论 0 粉丝 Harquitectes是西班牙备受赞誉的建筑师事务所,以其对环境、材料和建造逻辑的深刻洞察而闻名。其官网harquitectes.com展示了众多获奖作品,涵盖学校、住宅及公共建筑。他们擅长运用本土、可持续的策略,创造舒适、高效且充满诗意的空间。 新巴塞罗那中央档案馆 / New Barcelona Central Archives | HArquitectes 上一篇 2026-04-06 下午6:39 弗朗茨·麦卡利亚街上的房子 / House on Francesc Macià Street | HArquitectes 下一篇 2026-04-07 下午9:48 猜你喜欢 圣达霍拉的房子 House in Sra. da Hora | 德莫拉建筑事务所|De Mora 2025-11-24 公共建筑设计 CASA EN FONTINHA / House in Fontinha | 艾雷斯·马特乌斯建筑事务所|Aires Mateus 2025-11-14 公共建筑设计 荷兰私人住宅,霍伊莱特 / Private house, Hoeilaart | Xaveer de Geyter 2026-02-26 住宅建筑设计 异域宅院 / Alien House | 阿尔弗雷多·帕亚|Alfredo Payá 2025-12-02 公共建筑设计 阿赫玛德巴德住宅 Ahmedabad Residence | 孟买工作室(Studio Mumbai)|Studio Mumbai 2026-01-15 住宅室内设计 洛杉矶四座房子 / FOUR HOUSES IN LOS HELECHOS | Taller Héctor Barroso 2026-02-18 住宅建筑设计 发表回复 请登录后评论...登录后才能评论 提交