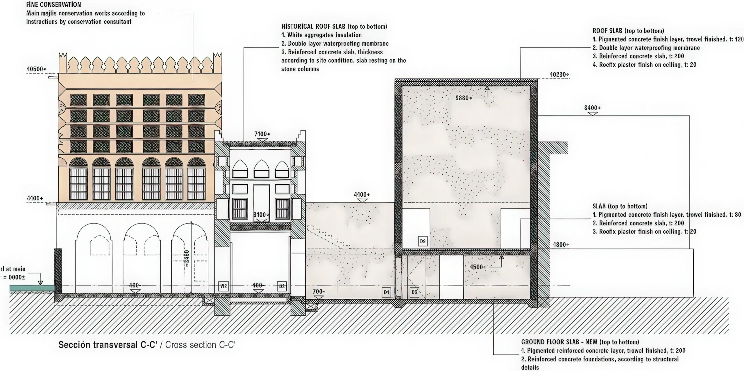
石岐珍珠博物馆 / Siyadi Pearl Museum | 安妮·霍尔特罗普|Anne Holtrop 安妮·霍尔特罗普|Anne Holtrop • 2026-03-13 上午11:39 • 公共建筑设计, 建筑设计, 文化建筑设计 石岐珍珠博物馆由安妮·霍尔特罗普工作室设计,位于巴林穆哈拉克,通过对历史建筑的修复与扩建,将传统珍珠贸易场所转化为当代文化展示空间,展现了建筑遗产保护与创新的完美结合。 设计: 安妮·霍尔特罗普|Anne Holtrop 类型: 文化建筑设计 功能: 文化中心 风格: 当代建筑 材料: 石材 尺度: 小型建筑 地点:穆哈拉克 时间: 2016年 项目概述 石岐珍珠博物馆位于巴林穆哈拉克,是一座由历史建筑改造而成的文化展示空间。项目包括对原有Siyadi Majlis和清真寺的修复以及新建展览区域,设计始于2016年,旨在保护和展示巴林珍珠贸易文化遗产。 设计理念 设计团队以尊重历史文脉为核心,通过去除后期不当加建,恢复建筑原始形态,同时采用创新的抹灰技术区分新旧部分,既保持了历史建筑特征,又赋予空间新的当代功能。 空间与功能 博物馆空间组织清晰,7米高的主展厅用于展示珍珠珠宝,新建区域与历史建筑通过墙体延伸自然衔接。流线设计考虑了参观体验,在保护历史空间的同时创造了连贯的展览路径。 材料与技术 项目采用珊瑚石作为主要建筑材料,配以石灰基抹灰。创新性地开发了双层抹灰技术,让新旧墙面层次分明。主展厅墙面使用银箔饰面,随时间氧化产生独特质感。 项目特色与启发 石岐珍珠博物馆展示了如何在保护历史建筑的同时实现功能更新,为文化遗产建筑改造提供了创新范例,对建筑师在处理历史建筑与现代功能融合方面具有重要参考价值。 设计团队 安妮·霍尔特罗普工作室以对材料、工艺和场地特性的深入研究著称,擅长将传统建造技艺与现代设计语言相结合,在石岐珍珠博物馆项目中展现了卓越的历史建筑改造能力。 项目概述 石岐珍珠博物馆位于巴林穆哈拉克,是一座由历史建筑改造而成的文化展示空间。项目包括对原有Siyadi Majlis和清真寺的修复以及新建展览区域,设计始于2016年,旨在保护和展示巴林珍珠贸易文化遗产。 设计理念 设计团队以尊重历史文脉为核心,通过去除后期不当加建,恢复建筑原始形态,同时采用创新的抹灰技术区分新旧部分,既保持了历史建筑特征,又赋予空间新的当代功能。 空间与功能 博物馆空间组织清晰,7米高的主展厅用于展示珍珠珠宝,新建区域与历史建筑通过墙体延伸自然衔接。流线设计考虑了参观体验,在保护历史空间的同时创造了连贯的展览路径。 材料与技术 项目采用珊瑚石作为主要建筑材料,配以石灰基抹灰。创新性地开发了双层抹灰技术,让新旧墙面层次分明。主展厅墙面使用银箔饰面,随时间氧化产生独特质感。 项目特色与启发 石岐珍珠博物馆展示了如何在保护历史建筑的同时实现功能更新,为文化遗产建筑改造提供了创新范例,对建筑师在处理历史建筑与现代功能融合方面具有重要参考价值。 设计团队 安妮·霍尔特罗普工作室以对材料、工艺和场地特性的深入研究著称,擅长将传统建造技艺与现代设计语言相结合,在石岐珍珠博物馆项目中展现了卓越的历史建筑改造能力。 本文来自 © 安妮·霍尔特罗普|Anne Holtrop, 发布于 © 建筑学院官方网站。 未经授权,禁止转载或摘编。 编辑版本版权归 © 建筑学院官方网站 所有, 设计、图纸及照片版权归设计方 © 安妮·霍尔特罗普|Anne Holtrop ↗ 所有。 查看作者在建筑学院发布的更多作品: 安妮·霍尔特罗普|Anne Holtrop @ 建筑学院官方网站 Siyadi Pearl Museum博物馆设计历史建筑改造安妮·霍尔特罗普穆哈拉克文化建筑 安妮·霍尔特罗普|Anne Holtrop事务所 & 设计师 下载原图 收藏 0 关于作者 安妮·霍尔特罗普|Anne Holtrop事务所 & 设计师 关注私信 23 文章 0 评论 0 粉丝 安妮·霍尔特罗普(Anne Holtrop)作为备受瞩目的当代建筑师,其事务所Studio Anne Holtrop以对材料与空间的独特探索闻名。霍尔特罗普于2009年成立个人工作室,目前事务所活跃于巴林穆哈拉格与荷兰阿姆斯特丹。其代表作包括巴林国家展馆(2015米兰世博会)、穆哈拉格绿色角落建筑及西雅迪珍珠博物馆。他善于从地质与材料本质出发,通过创新的建造方式塑造极具诗意的建筑空间,曾荣获夏洛特·科勒奖(2007年)、雅科夫·切尔尼霍夫国际奖(2016年)及阿迦汗建筑奖(2019年)。 莫迪克城堡博物馆 / Museum Fort Vechten | 安妮·霍尔特罗普|Anne Holtrop 上一篇 2026-03-12 上午9:34 Trail House / Trail House | 安妮·霍尔特罗普|Anne Holtrop 下一篇 2026-03-13 上午11:45 猜你喜欢 曼萨中央邮政局 / Manama Central Post Office | 安妮·霍尔特罗普|Anne Holtrop 2026-03-12 公共建筑设计 Obernau村酒店 / Guesthouse in Obernau | 吉翁·A·卡米纳达|Gion A. Caminada 2026-03-23 商业与综合建筑 兰登贝格豪斯剧院 Landenberghaus Theater | Karamuk Kuo 建筑事务所 2025-10-29 公共建筑设计 莫迪克城堡博物馆 / Museum Fort Vechten | 安妮·霍尔特罗普|Anne Holtrop 2026-01-05 公共建筑设计 Haddon Baptist Church巴士站 / Bus Stop for Haddon Baptist Church | 安妮·霍尔特罗普|Anne Holtrop 2026-01-04 交通建筑 Trail House / Trail House | 安妮·霍尔特罗普|Anne Holtrop 2026-01-06 住宅建筑设计 发表回复 请登录后评论...登录后才能评论 提交