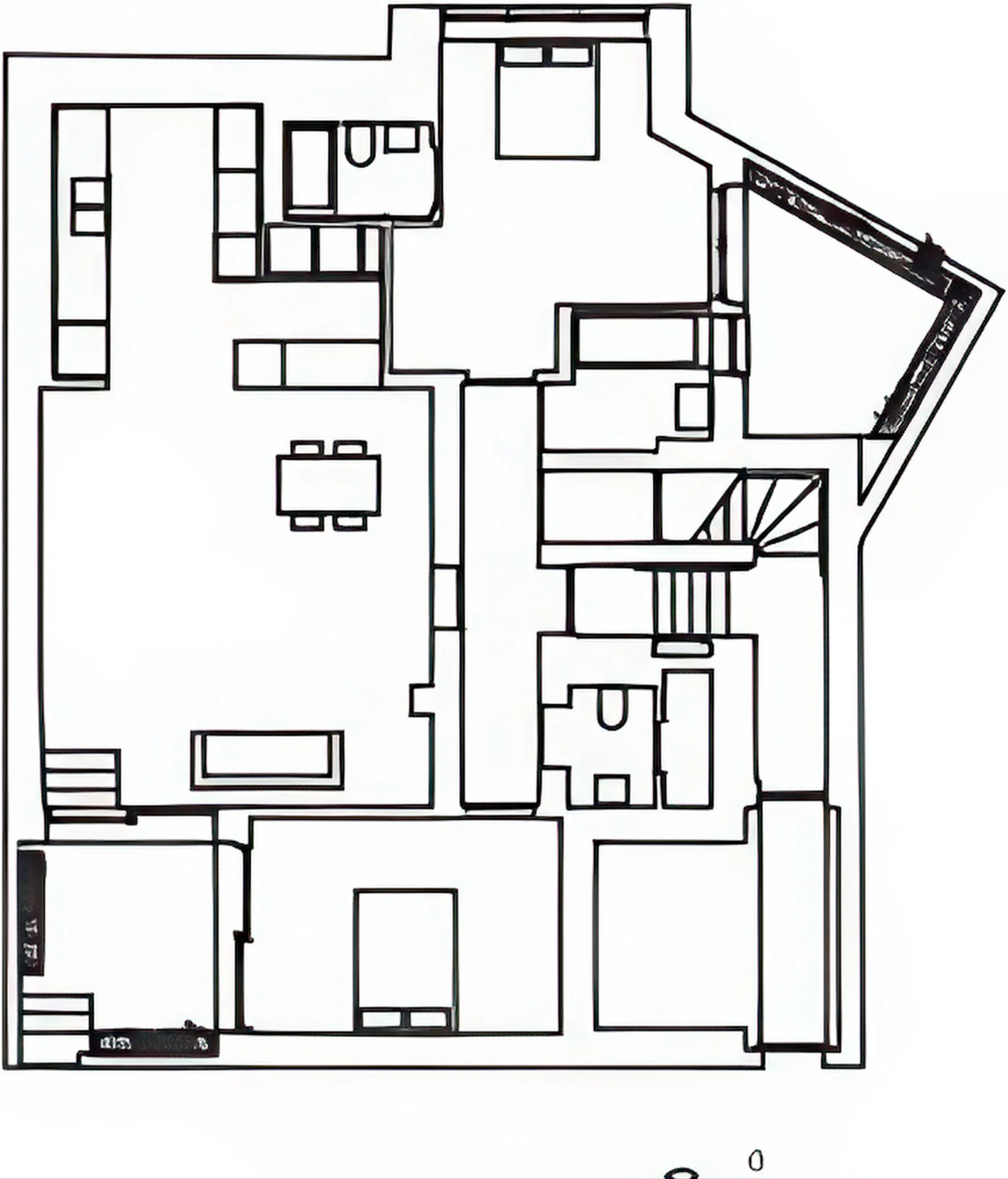
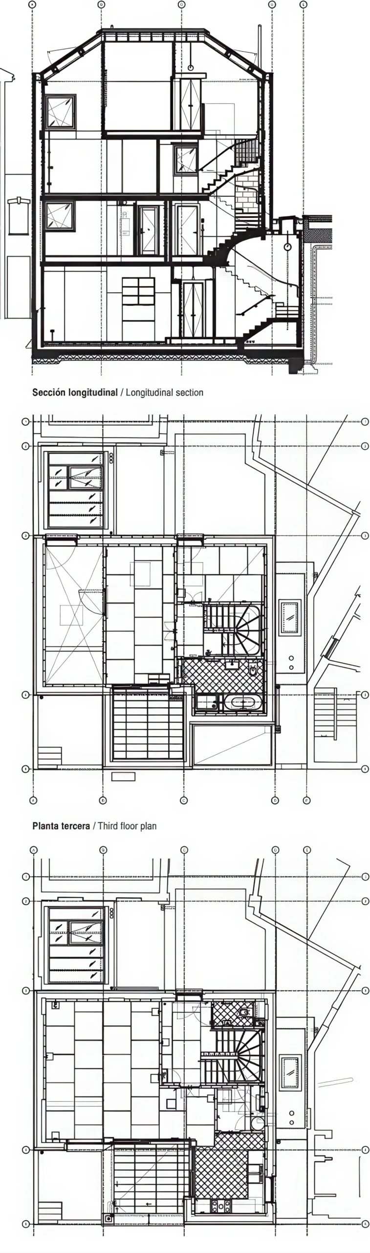
黑石大厦 / Black Stone Building | 6a 建筑事务所|6a architects 6a 建筑事务所|6a architects • 2026-04-19 下午8:12 • 住宅建筑设计, 公寓住宅设计, 建筑设计 黑石大厦由 +6a 建筑事务所设计,位于伦敦北部的不规则转角地块,包含三套双层公寓。项目通过混凝土框架与空间堆叠策略,在有限场地内创造丰富空间体验,融合历史文脉与当代居住需求。 设计: 6a 建筑事务所|6a architects 类型: 建筑设计 功能: 公寓住宅 风格: 当代建筑 材料: 混凝土 木材 金属板 尺度: 小型建筑 地点:伦敦 时间: 1970年 项目概述 黑石大厦(Black Stone Building)位于英国伦敦北部,是一座包含三套双层公寓的住宅建筑。项目占地面积约300平方米,每套公寓面积约100平方米,设计充分利用不规则转角地块特征,通过四层空间组织回应复杂场地条件。 设计理念 +6a 建筑事务所从业主的艺术摄影作品中获得灵感,采用重复与调整的设计策略,在奇特几何形态的场地内创造有机空间序列。设计延续了场地历史记忆——曾作为砖厂、肉铺、修车厂和钟表店,以当代建筑语言重新诠释日常生活的堆叠美学。 空间与功能 四层空间通过两根贯穿建筑的混凝土柱体连接,定义了主要的矩形起居空间,其他房间依场地形态展开布局。每套双层公寓均设有双高客厅、卧室、厨房及专属露台,半地下公寓通过顶部采光的双高厨房引入自然光线,首层公寓则以黄铜饰面凉廊替代传统阳台。 材料与技术 建筑采用混凝土框架结构作为基础,墙面使用石灰抹灰,搭配道格拉斯冷杉胶合板和手工陶瓷。材料组合营造出温暖质感,黄铜饰面凉廊、秘密庭院等细节处理丰富了空间层次,开窗设计巧妙引入多样景观视野。 项目特色与启发 黑石大厦展示了在复杂城市环境中创造高品质住宅的可行性,其空间堆叠策略为高密度城市更新提供了参考。项目在有限场地内实现了个性化居住体验,体现了+6a 建筑事务所在空间塑造与材料运用上的专业能力。 设计团队 +6a 建筑事务所是一家位于伦敦的建筑实践,以精致细腻的空间设计和材料运用著称。事务所在文化建筑、住宅和教育建筑领域有着丰富经验,擅长通过深入研究场地文脉和使用需求,创造出具有独特品质的建筑作品。 项目概述 黑石大厦(Black Stone Building)位于英国伦敦北部,是一座包含三套双层公寓的住宅建筑。项目占地面积约300平方米,每套公寓面积约100平方米,设计充分利用不规则转角地块特征,通过四层空间组织回应复杂场地条件。 设计理念 +6a 建筑事务所从业主的艺术摄影作品中获得灵感,采用重复与调整的设计策略,在奇特几何形态的场地内创造有机空间序列。设计延续了场地历史记忆——曾作为砖厂、肉铺、修车厂和钟表店,以当代建筑语言重新诠释日常生活的堆叠美学。 空间与功能 四层空间通过两根贯穿建筑的混凝土柱体连接,定义了主要的矩形起居空间,其他房间依场地形态展开布局。每套双层公寓均设有双高客厅、卧室、厨房及专属露台,半地下公寓通过顶部采光的双高厨房引入自然光线,首层公寓则以黄铜饰面凉廊替代传统阳台。 材料与技术 建筑采用混凝土框架结构作为基础,墙面使用石灰抹灰,搭配道格拉斯冷杉胶合板和手工陶瓷。材料组合营造出温暖质感,黄铜饰面凉廊、秘密庭院等细节处理丰富了空间层次,开窗设计巧妙引入多样景观视野。 项目特色与启发 黑石大厦展示了在复杂城市环境中创造高品质住宅的可行性,其空间堆叠策略为高密度城市更新提供了参考。项目在有限场地内实现了个性化居住体验,体现了+6a 建筑事务所在空间塑造与材料运用上的专业能力。 设计团队 +6a 建筑事务所是一家位于伦敦的建筑实践,以精致细腻的空间设计和材料运用著称。事务所在文化建筑、住宅和教育建筑领域有着丰富经验,擅长通过深入研究场地文脉和使用需求,创造出具有独特品质的建筑作品。 本文来自 © 6a 建筑事务所|6a architects, 发布于 © 建筑学院官方网站。 未经授权,禁止转载或摘编。 编辑版本版权归 © 建筑学院官方网站 所有, 设计、图纸及照片版权归设计方 © 6a 建筑事务所|6a architects ↗ 所有。 查看作者在建筑学院发布的更多作品: 6a 建筑事务所|6a architects @ 建筑学院官方网站 +6a建筑事务所black-stone-building伦敦住宅建筑公寓住宅设计城市更新住宅 6a 建筑事务所|6a architects事务所 & 设计师 下载原图 收藏 0 关于作者 6a 建筑事务所|6a architects事务所 & 设计师 关注私信 35 文章 1 评论 0 粉丝 6a architects(6a建筑事务所)是英国知名的建筑设计团队,以其对文化、艺术及教育类建筑的深刻理解而闻名。他们的作品擅长运用精巧的材料与细致的构造,在历史与现代的对话中创造宁静而富有感染力的空间。其代表作包括South London Gallery、MK Gallery改造及剑桥大学校园建筑等。 MK美术馆 / MK Gallery | 6a 建筑事务所 上一篇 2026-04-18 下午10:00 上公园的房子 / House on the Park | 6a 建筑事务所 下一篇 2026-04-19 下午8:19 猜你喜欢 Sierra Mimbre公寓建筑 / SIERRA MIMBRES APARTMENT BUILDING | Taller Héctor Barroso 2026-02-21 住宅建筑设计 住宅建筑, 海港城 / Residential Buildings, HafenCity | +6a 建筑事务所|6a architects 2025-11-07 公共建筑设计 加拉尔特住宅小区 / Residential Complex in Gallarate | 阿尔瓦罗·西扎|Álvaro Siza 2026-03-04 公寓住宅设计 维多利亚与阿伯特博物馆时尚画廊 / V&A Fashion Galleries | +6a 建筑事务所|6a architects 2025-11-04 公共建筑设计 六号奥斯特塔 / 6a OHSt | +6a 建筑事务所|6a architects 2025-11-04 公共建筑设计 乔治城大厦 / Georgetown Building | 德·莫拉建筑事务所 2026-03-18 住宅建筑设计 发表回复 请登录后评论...登录后才能评论 提交