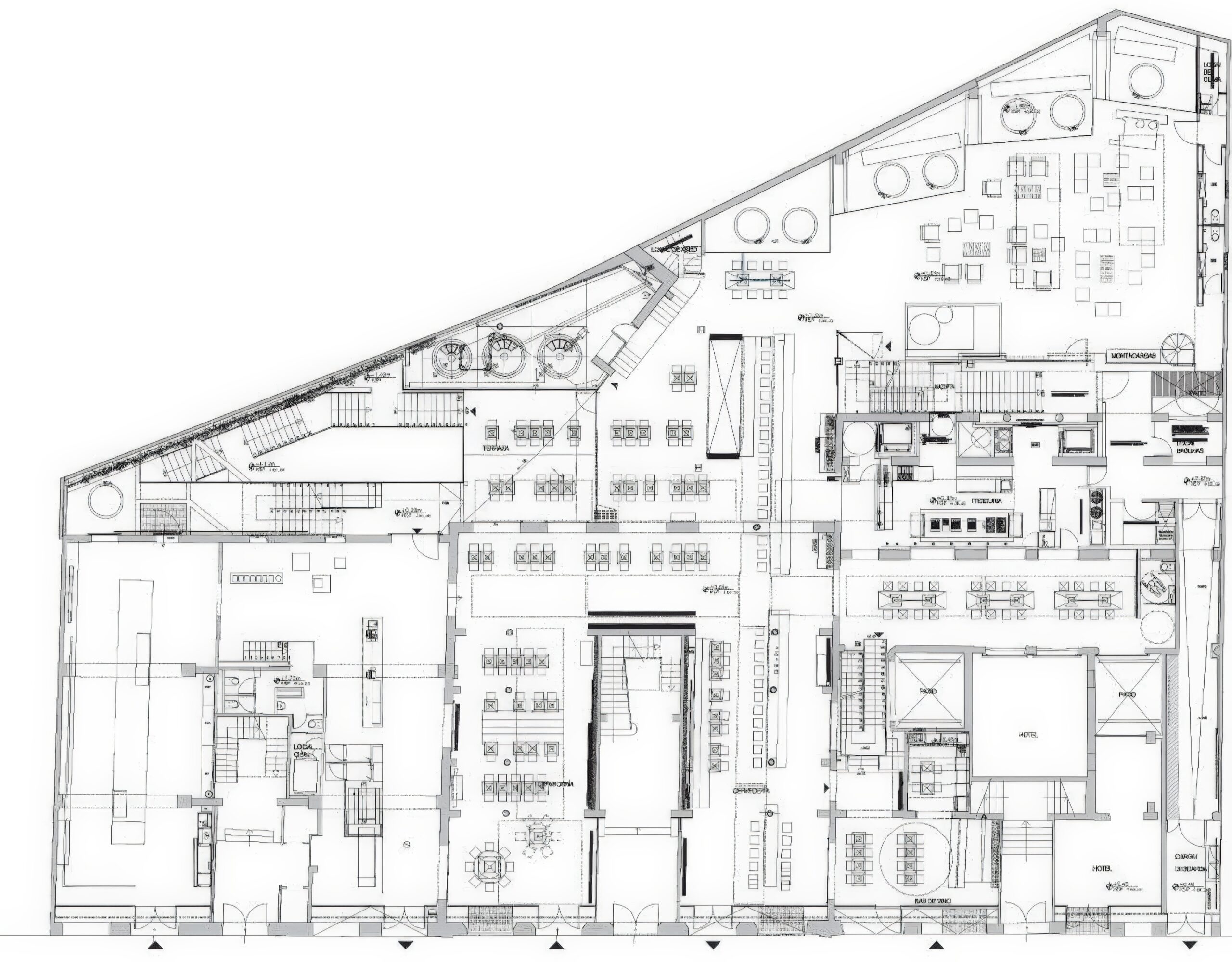
莫里茨啤酒厂改建项目 Renovation of Moritz Brewery | 让·努维尔建筑事务所|Jean Nouvel 让·努维尔建筑事务所|Jean Nouvel • 2025-12-05 上午8:50 • 公共建筑设计, 建筑师, 建筑设计, 文化建筑设计 莫里茨啤酒厂改建项目位于西班牙巴塞罗那,由让·努维尔建筑事务所设计。该项目将19世纪工业建筑改造为现代化啤酒厂综合体,包含微型啤酒厂、餐厅、酒吧、商店和博物馆。设计保留了原有工业建筑特色,同时融入现代元素,展现了历史与现代的完美融合。 设计: 让·努维尔建筑事务所|Jean Nouvel 类型: 文化建筑设计 功能: 工业厂房 风格: 当代建筑 材料: 混凝土 钢材 木材 玻璃 砖材 尺度: 微型建筑与装置 地点:巴塞罗那 时间: 2007年 项目简介 莫里茨啤酒厂改建项目位于西班牙巴塞罗那,是一座工业建筑改造项目。项目建筑面积未明确,设计时间为21世纪初,将原有19世纪啤酒厂改造为现代化多功能综合体。 设计理念 设计团队旨在重新诠释工业遗产的价值,通过保留历史痕迹与注入现代功能,让建筑重新适应21世纪巴塞罗那的城市生活。设计强调新旧对比与时代叠加,展现工业建筑的美学价值。 空间与功能 项目包含微型啤酒厂、餐厅、酒吧、葡萄酒专卖店、精品店、专业面包店、多媒体室和博物馆。空间组织保留了原有工业布局,同时通过现代设计手法创造丰富的使用体验,满足日间与夜间不同客群需求。 材料与技术 设计保留了原有砖墙、钢材、软木墙面、混凝土罐体和古老机械,同时引入不锈钢啤酒罐、大型玻璃板、镜面、透明树脂地板和LED显示屏。绿色植物墙为混凝土表面注入生机,照明设计巧妙呼应啤酒文化。 设计团队 让·努维尔建筑事务所是国际知名建筑设计事务所,以创新的建筑设计理念和对场地文脉的深刻理解著称,在文化建筑和城市更新项目方面具有丰富经验。 项目简介 莫里茨啤酒厂改建项目位于西班牙巴塞罗那,是一座工业建筑改造项目。项目建筑面积未明确,设计时间为21世纪初,将原有19世纪啤酒厂改造为现代化多功能综合体。 设计理念 设计团队旨在重新诠释工业遗产的价值,通过保留历史痕迹与注入现代功能,让建筑重新适应21世纪巴塞罗那的城市生活。设计强调新旧对比与时代叠加,展现工业建筑的美学价值。 空间与功能 项目包含微型啤酒厂、餐厅、酒吧、葡萄酒专卖店、精品店、专业面包店、多媒体室和博物馆。空间组织保留了原有工业布局,同时通过现代设计手法创造丰富的使用体验,满足日间与夜间不同客群需求。 材料与技术 设计保留了原有砖墙、钢材、软木墙面、混凝土罐体和古老机械,同时引入不锈钢啤酒罐、大型玻璃板、镜面、透明树脂地板和LED显示屏。绿色植物墙为混凝土表面注入生机,照明设计巧妙呼应啤酒文化。 设计团队 让·努维尔建筑事务所是国际知名建筑设计事务所,以创新的建筑设计理念和对场地文脉的深刻理解著称,在文化建筑和城市更新项目方面具有丰富经验。 本文来自 © 让·努维尔建筑事务所|Jean Nouvel, 发布于 © 建筑学院官方网站。 未经授权,禁止转载或摘编。 编辑版本版权归 © 建筑学院官方网站 所有, 设计、图纸及照片版权归设计方 © 让·努维尔建筑事务所|Jean Nouvel ↗ 所有。 查看作者在建筑学院发布的更多作品: 让·努维尔建筑事务所|Jean Nouvel @ 建筑学院官方网站 啤酒厂设计工业建筑改造巴塞罗那建筑莫里茨啤酒厂改建让·努维尔 让·努维尔建筑事务所|Jean Nouvel事务所 & 设计师 下载原图 收藏 0 关于作者 让·努维尔建筑事务所|Jean Nouvel事务所 & 设计师 关注私信 17 文章 0 评论 0 粉丝 让·努维尔是法国当代建筑大师,2008年普利兹克奖得主。其事务所以语境主义设计哲学著称,擅长运用钢、玻璃与光线,使每座建筑都能独特回应其所在地的历史、文化与环境。代表作包括巴黎阿拉伯世界研究所与阿布扎比卢浮宫,前者荣获阿卡汗奖。其作品拒绝自我复制,在全球范围内以光影实验和在地叙事拓展了建筑边界。 伊维萨与福门特拉音乐舞蹈学院 / Music and Dance Conservatory of Ibiza and Formentera | 阿尔弗雷多·帕亚|Alfredo Payá 上一篇 2025-12-04 上午9:50 弗拉门卡尔海滩中学 / ‘Playa Flamenca’ Secondary School | 阿尔弗雷多·帕亚|Alfredo Payá 下一篇 2025-12-05 下午6:31 猜你喜欢 东京宫,巴黎 Palais de Tokyo, Paris | 拉卡东与瓦萨尔建筑师事务所|Lacaton & Vassal 2025-11-09 公共建筑设计 加州大学洛杉矶分校马戈雷文研究生艺术工作室 / UCLA Margo Leavin Graduate Art Studios | MARKLEE 建筑事务所 2025-11-08 公共建筑设计 布丁码头大厦复合体 Les Bains des Docks Complex | 让·努维尔建筑事务所|Jean Nouvel 2025-11-28 公共建筑设计 巴达伦萨35座房屋 / 35 Homes in Badalona | 托尼·希罗内斯|Toni Gironès 2025-11-16 公共建筑设计 新巴塞罗那中央档案馆 / New Barcelona Central Archives | HArquitectes 2026-04-06 公共建筑设计 蒙彼利埃市政厅 City Hall, Montpellier | 让·努维尔建筑事务所|Jean Nouvel 2025-11-22 公共建筑设计 发表回复 请登录后评论...登录后才能评论 提交