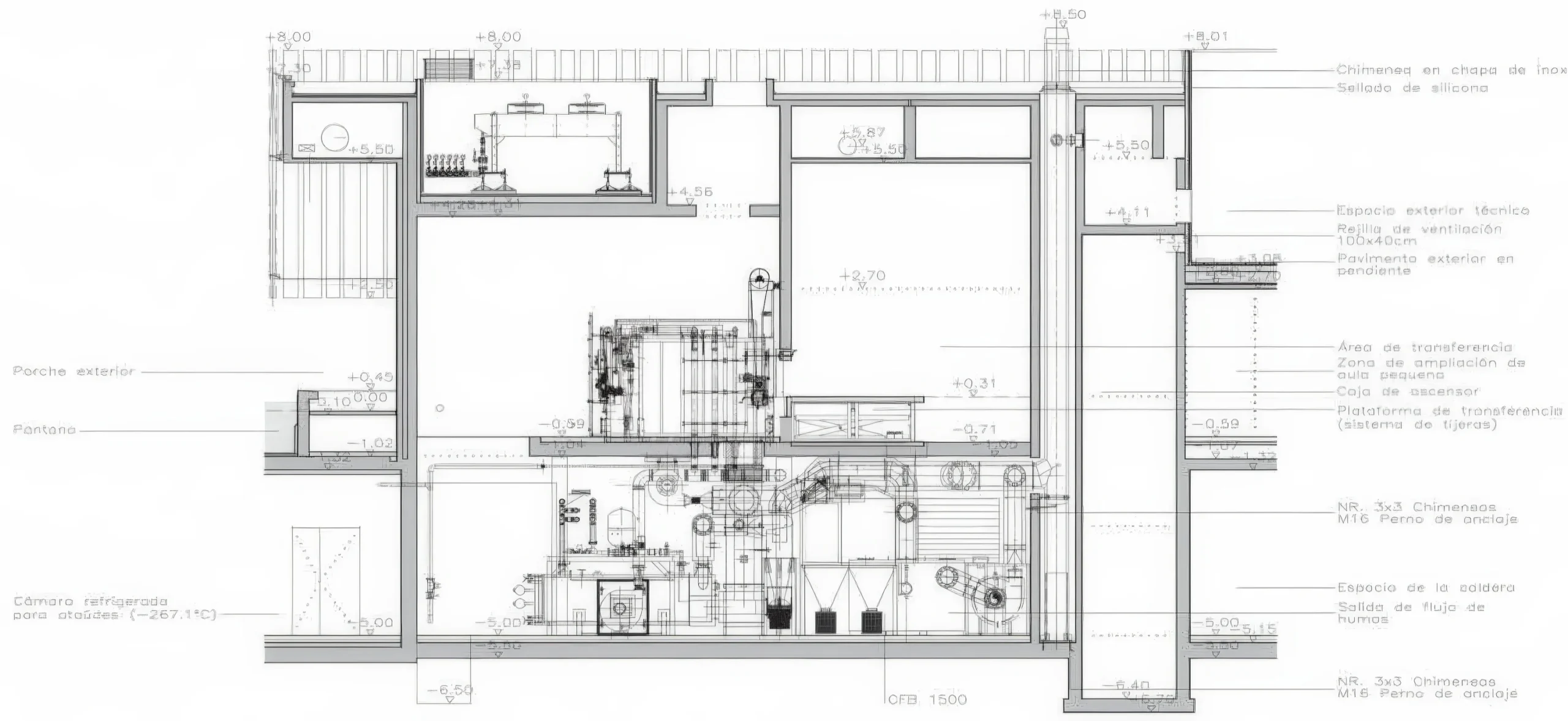
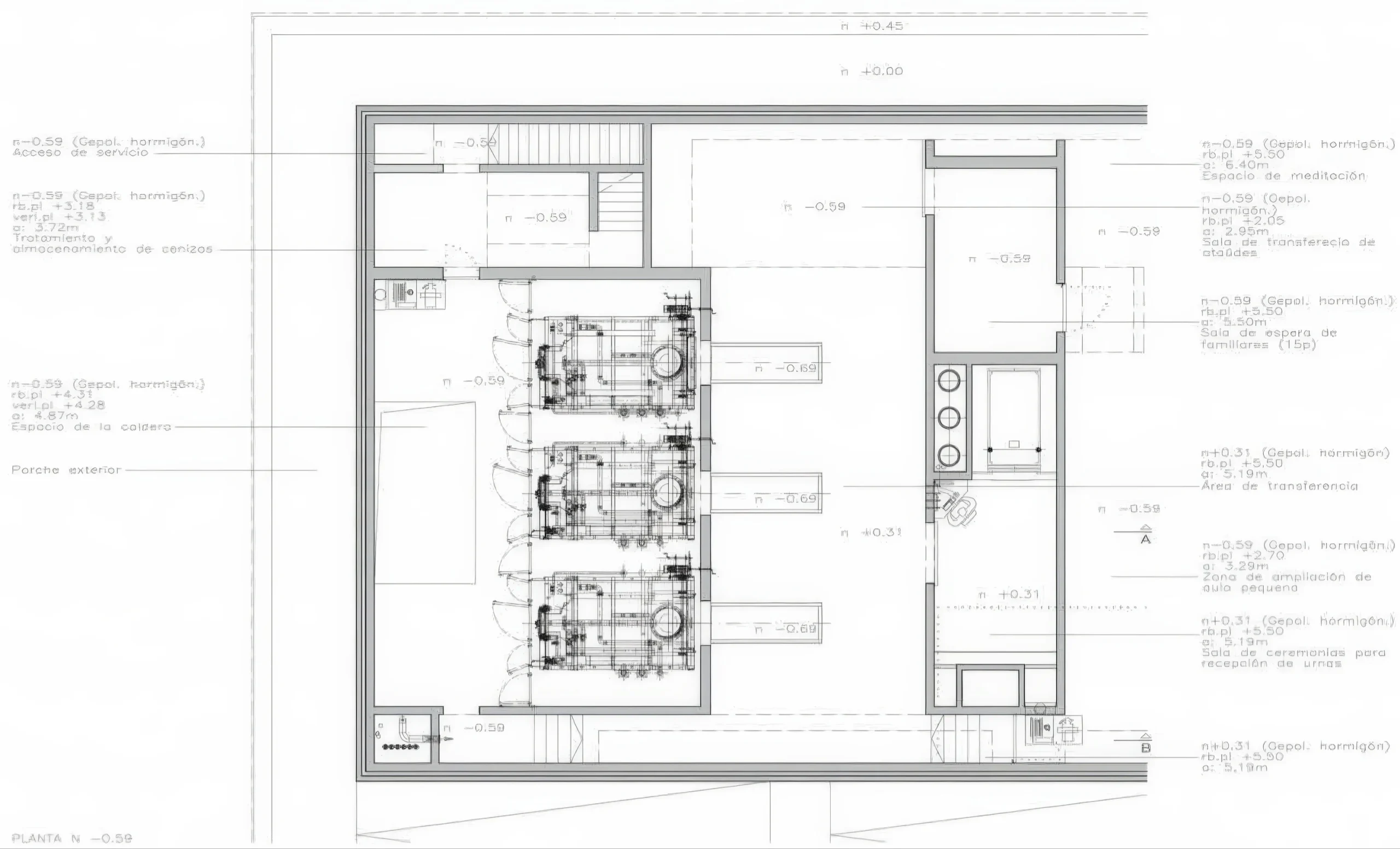
霍夫海德陵园 / Crematorium Hofheide | RCR 建筑事务所 RCR Architect • 2025-11-02 上午8:50 • 公共建筑设计, 建筑师设计, 建筑设计, 文化建筑设计 霍夫海德陵园由 RCR 建筑事务所设计,位于比利时霍夫海德,是一座融合自然景观与纪念功能的火葬场建筑。项目通过精心组织的空间序列与材料表达,创造了一个与沼泽湿地环境和谐共生的悼念场所。 设计: RCR Architect 类型: 文化建筑设计 功能: 纪念馆 风格: 当代建筑 材料: 混凝土 钢材 玻璃 尺度: 微型建筑与装置 地点:比利时 时间: 1997年 项目概述 霍夫海德陵园位于比利时霍夫海德,是一座集火葬场、仪式厅、等候室和咖啡餐厅于一体的纪念性建筑。项目由RCR建筑事务所设计,通过建筑与自然景观的深度融合,为悼念活动提供了一个宁静而庄严的场所。 设计理念 RCR建筑事务所将建筑视为自然景观的延伸,通过柔和的沼泽盆地形态强化场地特征。设计强调人与自然的内在联系,创造了一个不受既定文化约束的悼念空间,让情感得以自然流露。 空间与功能 建筑空间围绕中央庭院组织,形成清晰的流线序列。地面层设置仪式厅、等候区和咖啡餐厅,地下层容纳火葬设施与行政管理。通过连廊、门厅和冥想空间的交替,营造出漫步、陪伴与静思的多元体验。 材料与技术 项目大量使用耐候钢板、玻璃和混凝土等材料,通过精确的构造细节展现材料的原始质感。耐候钢板立面随时间的风化与周围植被形成对话,玻璃幕墙则将自然光线引入室内,强化空间与景观的视觉联系。 项目特色与启发 霍夫海德陵园展现了纪念性建筑与自然环境的诗意融合,为当代殡葬建筑提供了新的设计范式。项目在材料表达、空间序列与景观整合方面的创新,对公共建筑的情感营造具有重要参考价值。 设计团队 RCR建筑事务所由Rafael Aranda、Carme Pigem和Ramon Vilalta于1988年创立,以对场地、材料与光线的敏锐感知著称。事务所擅长将建筑融入自然景观,其作品多次获得国际奖项,包括2017年普利兹克建筑奖。 项目概述 霍夫海德陵园位于比利时霍夫海德,是一座集火葬场、仪式厅、等候室和咖啡餐厅于一体的纪念性建筑。项目由RCR建筑事务所设计,通过建筑与自然景观的深度融合,为悼念活动提供了一个宁静而庄严的场所。 设计理念 RCR建筑事务所将建筑视为自然景观的延伸,通过柔和的沼泽盆地形态强化场地特征。设计强调人与自然的内在联系,创造了一个不受既定文化约束的悼念空间,让情感得以自然流露。 空间与功能 建筑空间围绕中央庭院组织,形成清晰的流线序列。地面层设置仪式厅、等候区和咖啡餐厅,地下层容纳火葬设施与行政管理。通过连廊、门厅和冥想空间的交替,营造出漫步、陪伴与静思的多元体验。 材料与技术 项目大量使用耐候钢板、玻璃和混凝土等材料,通过精确的构造细节展现材料的原始质感。耐候钢板立面随时间的风化与周围植被形成对话,玻璃幕墙则将自然光线引入室内,强化空间与景观的视觉联系。 项目特色与启发 霍夫海德陵园展现了纪念性建筑与自然环境的诗意融合,为当代殡葬建筑提供了新的设计范式。项目在材料表达、空间序列与景观整合方面的创新,对公共建筑的情感营造具有重要参考价值。 设计团队 RCR建筑事务所由Rafael Aranda、Carme Pigem和Ramon Vilalta于1988年创立,以对场地、材料与光线的敏锐感知著称。事务所擅长将建筑融入自然景观,其作品多次获得国际奖项,包括2017年普利兹克建筑奖。 本文来自 © RCR Architect, 发布于 © 建筑学院官方网站。 未经授权,禁止转载或摘编。 编辑版本版权归 © 建筑学院官方网站 所有, 设计、图纸及照片版权归设计方 © RCR Architect ↗ 所有。 查看作者在建筑学院发布的更多作品: RCR Architect @ 建筑学院官方网站 Crematorium HofheideRCR Arquitectes火葬场设计纪念性建筑 RCR Architect事务所 & 设计师 下载原图 收藏 0 关于作者 RCR Architect事务所 & 设计师 关注私信 8 文章 0 评论 1 粉丝 https://www.rcrarquitectes.es 波格乔·高洛威酒厂 Poggio Golo Winery | MARKLEE 建筑事务所 上一篇 2025-11-02 上午8:50 摄影工作室,Juergen Teller 设计 / Photography Studio for Juergen Teller | +6a 建筑事务所|6a architects 下一篇 2025-11-02 上午8:50 猜你喜欢 梅诺卡的Son Parc住宅 / Son Parc House in Menorca | RCR 建筑事务所|RCR Arquitectes 2025-11-19 公共建筑设计 克罗洛克图书馆 / De Krook Library | RCR 建筑事务所|RCR Arquitectes 2025-11-15 公共建筑设计 室内游泳池在塔拉德尔 Indoor Pool in Taradell | RCR 建筑事务所|RCR Arquitectes 2025-10-30 公共建筑设计 谜餐厅 Enigma Restaurant | RCR 建筑事务所 2025-11-19 室内设计 悬挂花园在洛尔蒙特 / Le Jardin Suspendu in Lormont | RCR 建筑事务所 2025-11-17 公共建筑设计 男卡泽住宅 / Malecaze House | RCR 建筑事务所 2025-11-17 公共建筑设计 发表回复 请登录后评论...登录后才能评论 提交