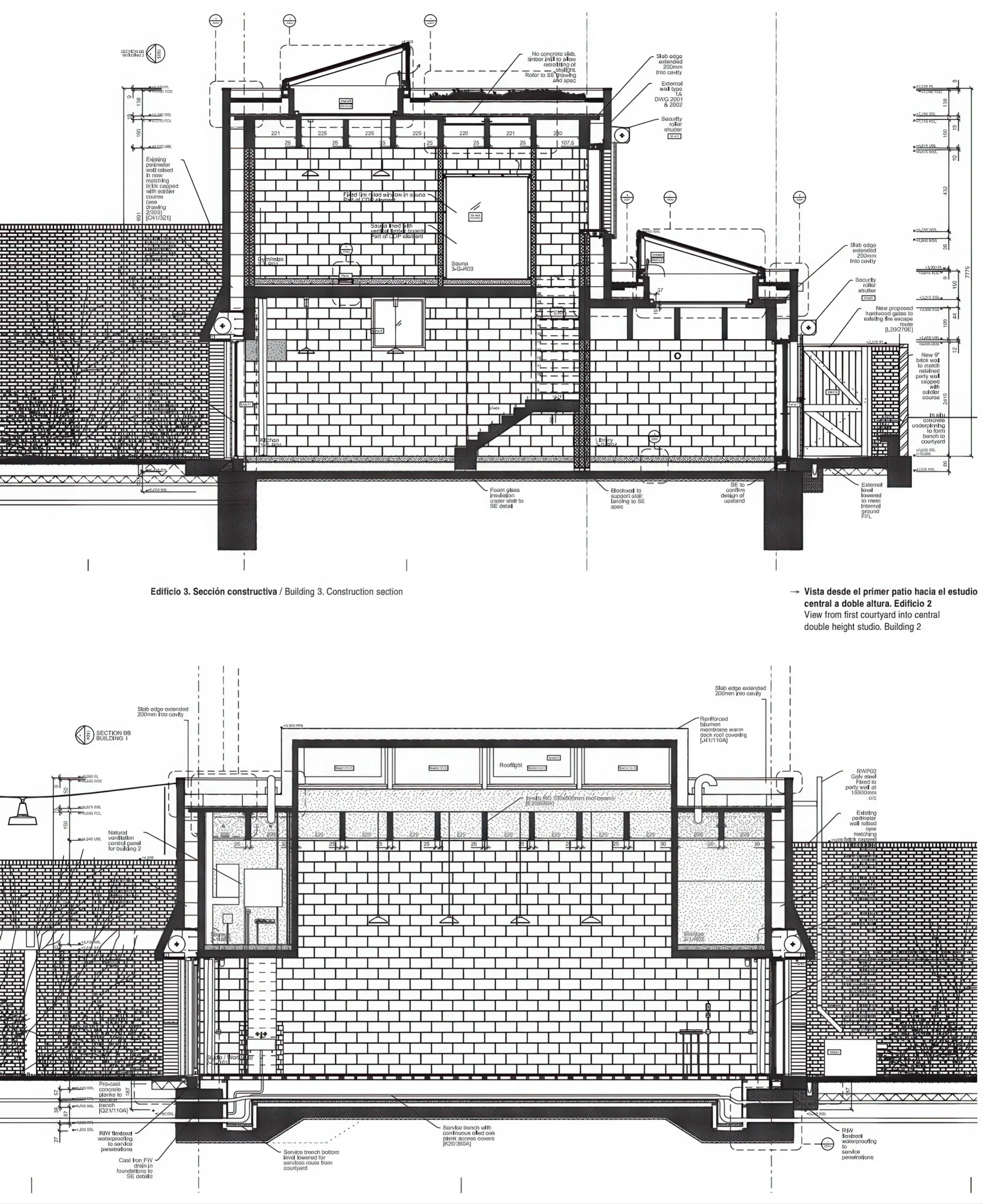
摄影工作室,Juergen Teller 设计 / Photography Studio for Juergen Teller | +6a 建筑事务所|6a architects 6a 建筑事务所|6a architects • 2025-11-02 上午8:50 • 公共建筑设计, 建筑师设计, 建筑设计, 文化建筑设计 +6a 建筑事务所为著名时尚摄影师 Juergen Teller 设计的伦敦摄影工作室,通过三个建筑体量与三个花园的交替布局,在狭长地块中创造出一系列室内外空间序列。项目采用纤细混凝土梁结构控制自然采光,结合粗犷材料与精致细节,展现了工作室空间与自然环境的独特对话。 设计: 6a 建筑事务所|6a architects 类型: 文化建筑设计 功能: 文化中心 风格: 当代建筑 材料: 混凝土 钢材 玻璃 金属板 尺度: 中型建筑 地点:伦敦 时间: 2015年 项目概述 Juergen Teller 摄影工作室位于伦敦西部,由 +6a 建筑事务所设计,是一个集摄影工作室、办公、档案库、餐饮及辅助功能于一体的文化建筑。项目占地60米长的狭长地块,通过三个建筑体量与三个花园的交替布局,创造了丰富的空间体验。 设计理念 设计灵感来源于城市中自然生长的花园与 Sir John Soane 博物馆的光影处理。建筑师通过混凝土梁的节奏性排列控制自然光线,营造出从公共到私密的空间过渡。三个由 Dan Pearson Studio 设计的花园与建筑空间相互渗透,呼应了伦敦自然历史与场地记忆。 空间与功能 中央建筑为核心的双层高摄影工作室,两侧分别设置办公区、档案库、厨房餐厅、图书馆及辅助空间。空间序列从临街入口向场地深处延伸,私密性逐渐增强。全宽开口连接室内与围墙花园,混凝土储藏舱位于空间上部,形成独特的空间层次。 材料与技术 项目采用简约的未加工材料:现浇混凝土墙与原有边界残留融合,木板标记的混凝土表面与周边伦敦砖墙高度一致。白色混凝土砌块与石灰砂浆构成承重墙,黄铜栏杆与铸铁模具为简约材料调色板增添精致感。 项目特色与启发 Juergen Teller 摄影工作室展示了如何在城市限制性场地中创造灵活的工作环境。项目通过材料真实性、光线控制与自然元素的整合,为创意工作室设计提供了新范式,对城市更新与文化空间设计具有重要参考价值。 设计团队 +6a 建筑事务所是伦敦知名建筑设计团队,以对材料、光线与空间关系的敏锐把握著称。事务所在文化建筑、住宅与改造项目领域有着丰富经验,擅长通过简约设计语言创造富有诗意的建筑体验。 项目概述 Juergen Teller 摄影工作室位于伦敦西部,由 +6a 建筑事务所设计,是一个集摄影工作室、办公、档案库、餐饮及辅助功能于一体的文化建筑。项目占地60米长的狭长地块,通过三个建筑体量与三个花园的交替布局,创造了丰富的空间体验。 设计理念 设计灵感来源于城市中自然生长的花园与 Sir John Soane 博物馆的光影处理。建筑师通过混凝土梁的节奏性排列控制自然光线,营造出从公共到私密的空间过渡。三个由 Dan Pearson Studio 设计的花园与建筑空间相互渗透,呼应了伦敦自然历史与场地记忆。 空间与功能 中央建筑为核心的双层高摄影工作室,两侧分别设置办公区、档案库、厨房餐厅、图书馆及辅助空间。空间序列从临街入口向场地深处延伸,私密性逐渐增强。全宽开口连接室内与围墙花园,混凝土储藏舱位于空间上部,形成独特的空间层次。 材料与技术 项目采用简约的未加工材料:现浇混凝土墙与原有边界残留融合,木板标记的混凝土表面与周边伦敦砖墙高度一致。白色混凝土砌块与石灰砂浆构成承重墙,黄铜栏杆与铸铁模具为简约材料调色板增添精致感。 项目特色与启发 Juergen Teller 摄影工作室展示了如何在城市限制性场地中创造灵活的工作环境。项目通过材料真实性、光线控制与自然元素的整合,为创意工作室设计提供了新范式,对城市更新与文化空间设计具有重要参考价值。 设计团队 +6a 建筑事务所是伦敦知名建筑设计团队,以对材料、光线与空间关系的敏锐把握著称。事务所在文化建筑、住宅与改造项目领域有着丰富经验,擅长通过简约设计语言创造富有诗意的建筑体验。 本文来自 © 6a 建筑事务所|6a architects, 发布于 © 建筑学院官方网站。 未经授权,禁止转载或摘编。 编辑版本版权归 © 建筑学院官方网站 所有, 设计、图纸及照片版权归设计方 © 6a 建筑事务所|6a architects ↗ 所有。 查看作者在建筑学院发布的更多作品: 6a 建筑事务所|6a architects @ 建筑学院官方网站 +6a 建筑事务所Photography Studio for Juergen Teller伦敦文化建筑摄影工作室设计 6a 建筑事务所|6a architects事务所 & 设计师 下载原图 收藏 0 关于作者 6a 建筑事务所|6a architects事务所 & 设计师 关注私信 20 文章 1 评论 0 粉丝 6a architects(6a建筑事务所)是英国知名的建筑设计团队,以其对文化、艺术及教育类建筑的深刻理解而闻名。他们的作品擅长运用精巧的材料与细致的构造,在历史与现代的对话中创造宁静而富有感染力的空间。其代表作包括South London Gallery、MK Gallery改造及剑桥大学校园建筑等。 霍夫海德陵园 / Crematorium Hofheide | RCR 建筑事务所 上一篇 2025-11-02 上午8:50 树屋 Tree House | +6a 建筑事务所|6a architects 下一篇 2025-11-02 上午8:50 猜你喜欢 维多利亚与阿尔伯特博物馆 E20 / Victoria & Albert Museum E20 | 6a 建筑事务所 2025-11-04 公共建筑设计 罗马尼工作室 / Romney’s Studio | +6a 建筑事务所|6a architects 2025-12-11 公共建筑设计 维多利亚与阿伯特博物馆时尚画廊 / V&A Fashion Galleries | +6a 建筑事务所|6a architects 2025-11-04 公共建筑设计 发表回复 请登录后评论...登录后才能评论 提交