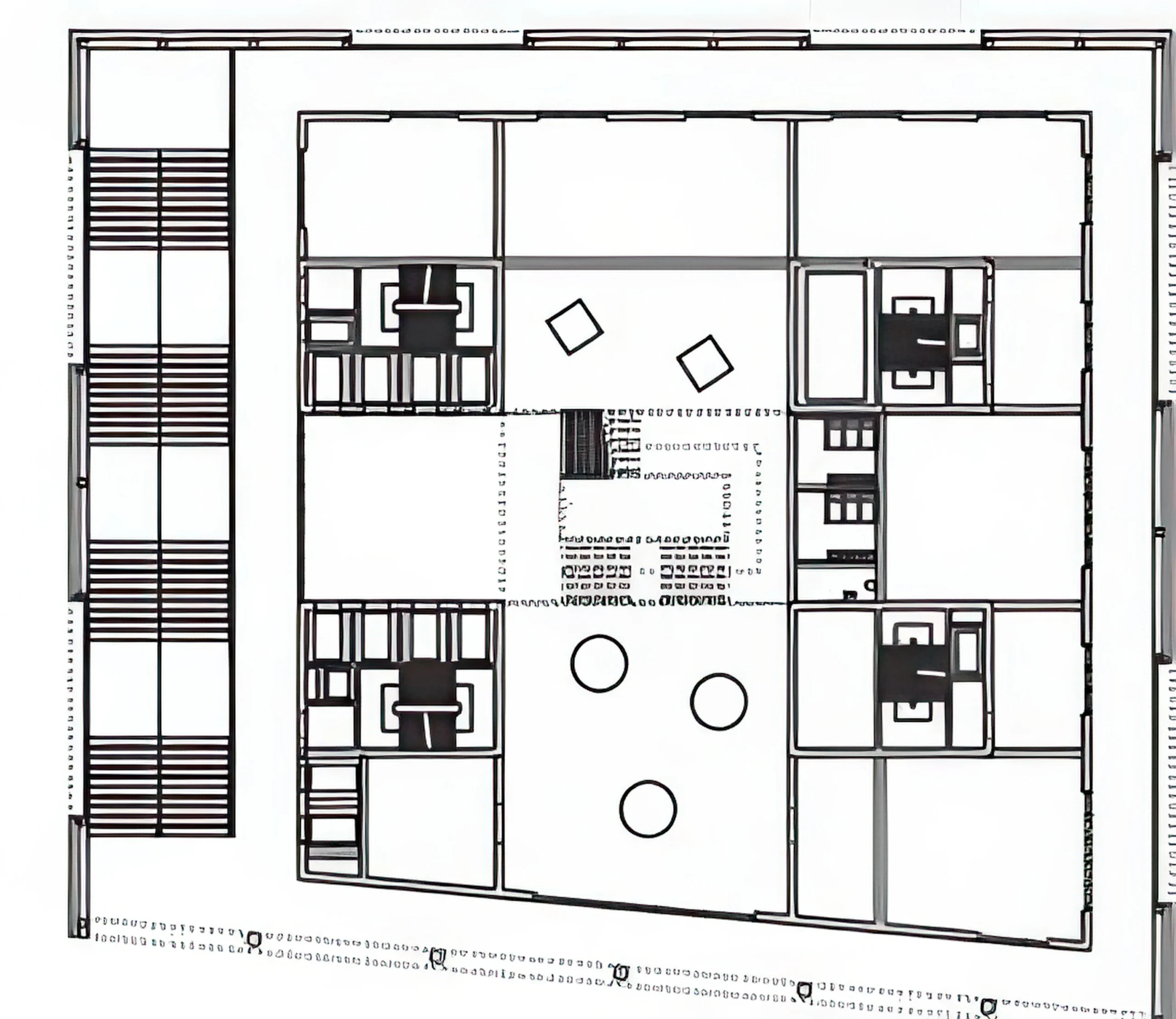
维多利亚与阿尔伯特博物馆 E20 / Victoria & Albert Museum E20 | 6a 建筑事务所 6a 建筑事务所|6a architects • 2025-11-04 上午8:50 • 公共建筑设计, 建筑师设计, 建筑设计, 文化建筑设计 维多利亚与阿尔伯特博物馆 E20 由 6a 建筑事务所与 OFFICE Kersten Geers David Van Severen 及 Baumschlager Eberle 合作设计,位于伦敦东部伊丽莎白女王奥林匹克公园区。这座文化建筑以独特的预制砖板立面为特色,创造了一个集收藏、展示、研究与公共功能于一体的博物馆仓库。 设计: 6a 建筑事务所|6a architects 类型: 文化建筑设计 功能: 博物馆 风格: 当代建筑 材料: 混凝土 钢材 玻璃 尺度: 中型建筑 地点:伦敦 时间: 2023年 项目概述 维多利亚与阿尔伯特博物馆 E20 位于英国伦敦东部伊丽莎白女王奥林匹克公园区,是一座集文化、教育功能于一体的博物馆建筑。项目占地60米×40米,高80米,共11层,包含画廊、档案馆、工作室、餐厅及零售空间,设计旨在重新定义传统博物馆的收藏与展示模式。 设计理念 6a 建筑事务所与合作团队以”博物馆仓库”为核心理念,打破19世纪以来传统博物馆的等级制度,创造一个既能适应未来需求又保持开放性的文化机构。设计通过清晰的几何体量与中央中庭组织空间,强化建筑与斯特拉特福水岸及周边奥运公园区域的联系。 空间与功能 维多利亚与阿尔伯特博物馆 E20 的空间组织围绕中央中庭展开,通过宏伟楼梯连接各楼层。十一层空间分别容纳画廊、档案馆、修复工作室、办公区、餐厅和商业空间,形成垂直的文化综合体。流线设计注重参观体验与功能分区的平衡,创造灵活多变的使用可能。 材料与技术 建筑外墙采用预制砖板网格系统,对角线图案抽象表达内部结构支撑,形成包裹整个立面的装饰性肌理。这种技术创新既满足结构需求,又创造独特的建筑表情,体现6a 建筑事务所在材料运用上的专业造诣。 项目特色与启发 维多利亚与阿尔伯特博物馆 E20 以前瞻性的”博物馆仓库”概念重新思考文化机构的未来,为当代博物馆设计提供新范式。项目在空间组织、材料创新与城市融合方面的探索,对文化建筑设计与城市更新具有重要参考价值。 设计团队 6a 建筑事务所是英国知名建筑设计团队,以文化建筑与城市更新项目著称。事务所擅长通过细致的材料研究与空间组织,创造与场地深度对话的建筑作品。在本项目中,6a 建筑事务所与 OFFICE Kersten Geers David Van Severen 及 Baumschlager Eberle 合作,共同完成这一重要的文化地标。 项目概述 维多利亚与阿尔伯特博物馆 E20 位于英国伦敦东部伊丽莎白女王奥林匹克公园区,是一座集文化、教育功能于一体的博物馆建筑。项目占地60米×40米,高80米,共11层,包含画廊、档案馆、工作室、餐厅及零售空间,设计旨在重新定义传统博物馆的收藏与展示模式。 设计理念 6a 建筑事务所与合作团队以”博物馆仓库”为核心理念,打破19世纪以来传统博物馆的等级制度,创造一个既能适应未来需求又保持开放性的文化机构。设计通过清晰的几何体量与中央中庭组织空间,强化建筑与斯特拉特福水岸及周边奥运公园区域的联系。 空间与功能 维多利亚与阿尔伯特博物馆 E20 的空间组织围绕中央中庭展开,通过宏伟楼梯连接各楼层。十一层空间分别容纳画廊、档案馆、修复工作室、办公区、餐厅和商业空间,形成垂直的文化综合体。流线设计注重参观体验与功能分区的平衡,创造灵活多变的使用可能。 材料与技术 建筑外墙采用预制砖板网格系统,对角线图案抽象表达内部结构支撑,形成包裹整个立面的装饰性肌理。这种技术创新既满足结构需求,又创造独特的建筑表情,体现6a 建筑事务所在材料运用上的专业造诣。 项目特色与启发 维多利亚与阿尔伯特博物馆 E20 以前瞻性的”博物馆仓库”概念重新思考文化机构的未来,为当代博物馆设计提供新范式。项目在空间组织、材料创新与城市融合方面的探索,对文化建筑设计与城市更新具有重要参考价值。 设计团队 6a 建筑事务所是英国知名建筑设计团队,以文化建筑与城市更新项目著称。事务所擅长通过细致的材料研究与空间组织,创造与场地深度对话的建筑作品。在本项目中,6a 建筑事务所与 OFFICE Kersten Geers David Van Severen 及 Baumschlager Eberle 合作,共同完成这一重要的文化地标。 本文来自 © 6a 建筑事务所|6a architects, 发布于 © 建筑学院官方网站。 未经授权,禁止转载或摘编。 编辑版本版权归 © 建筑学院官方网站 所有, 设计、图纸及照片版权归设计方 © 6a 建筑事务所|6a architects ↗ 所有。 查看作者在建筑学院发布的更多作品: 6a 建筑事务所|6a architects @ 建筑学院官方网站 6a建筑事务所Victoria & Albert Museum E20伦敦文化建筑博物馆建筑设计 6a 建筑事务所|6a architects事务所 & 设计师 下载原图 收藏 0 关于作者 6a 建筑事务所|6a architects事务所 & 设计师 关注私信 16 文章 1 评论 0 粉丝 6a architects(6a建筑事务所)是英国知名的建筑设计团队,以其对文化、艺术及教育类建筑的深刻理解而闻名。他们的作品擅长运用精巧的材料与细致的构造,在历史与现代的对话中创造宁静而富有感染力的空间。其代表作包括South London Gallery、MK Gallery改造及剑桥大学校园建筑等。 IST脚手架 / IST Footbridge | RCR 建筑事务所 上一篇 2025-11-03 下午12:50 维多利亚与阿伯特博物馆时尚画廊 / V&A Fashion Galleries | +6a 建筑事务所|6a architects 下一篇 2025-11-04 上午8:50 猜你喜欢 南伦敦美术馆 South London Gallery | 6a 建筑事务所|6a architects 2025-10-28 公共建筑设计 维多利亚与阿伯特博物馆时尚画廊 / V&A Fashion Galleries | +6a 建筑事务所|6a architects 2025-11-04 公共建筑设计 摄影工作室,Juergen Teller 设计 / Photography Studio for Juergen Teller | +6a 建筑事务所|6a architects 2025-11-02 公共建筑设计 A Mews Collection | 6a 建筑事务所 2025-10-22 建筑师设计 MK美术馆 MK Gallery | 6a 建筑事务所 2025-10-23 公共建筑设计 格林威治设计区 A2_B2 | 6a 建筑事务所|6a architects 2025-10-26 公共建筑设计 发表回复 请登录后评论...登录后才能评论 提交