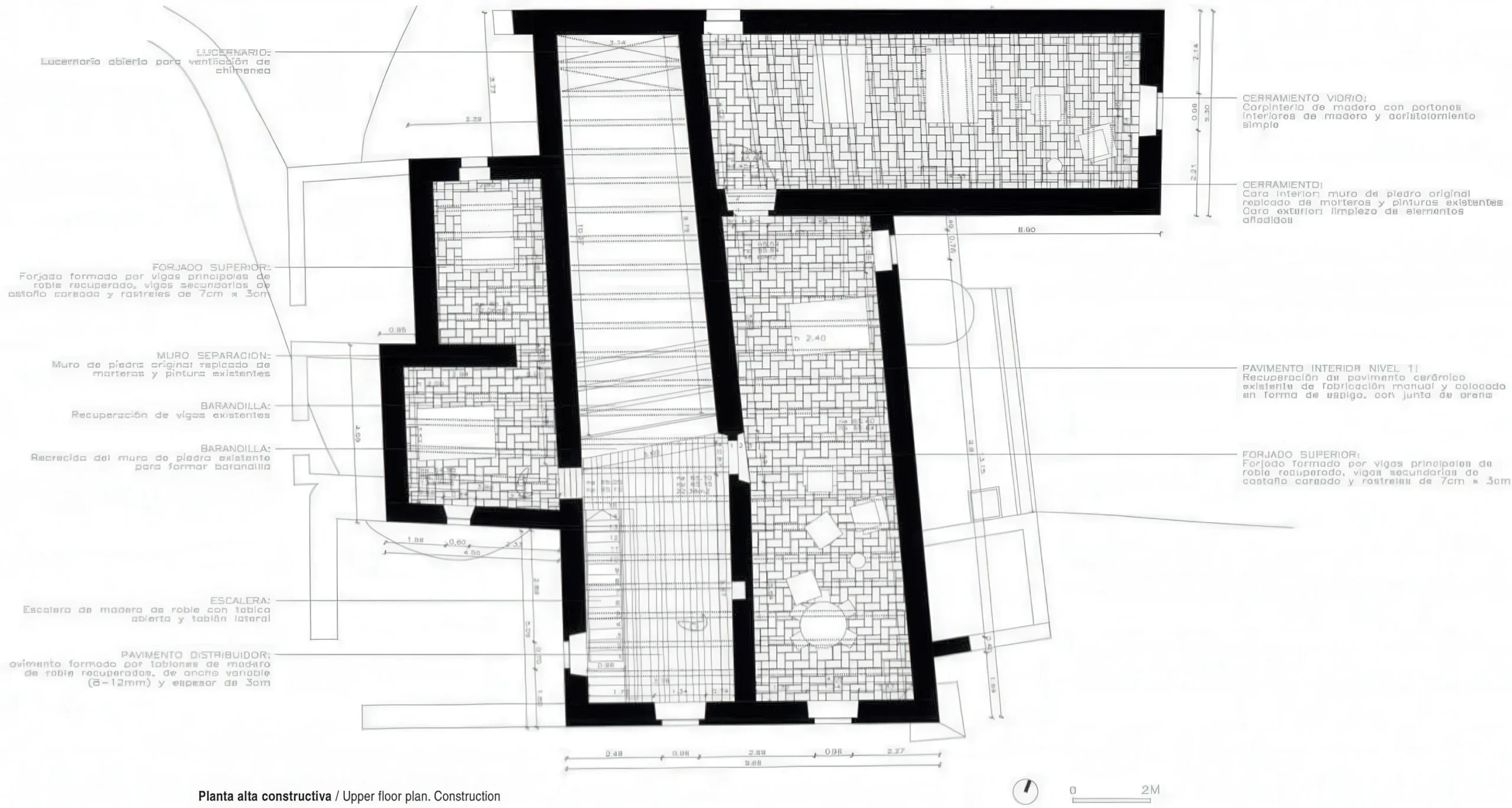
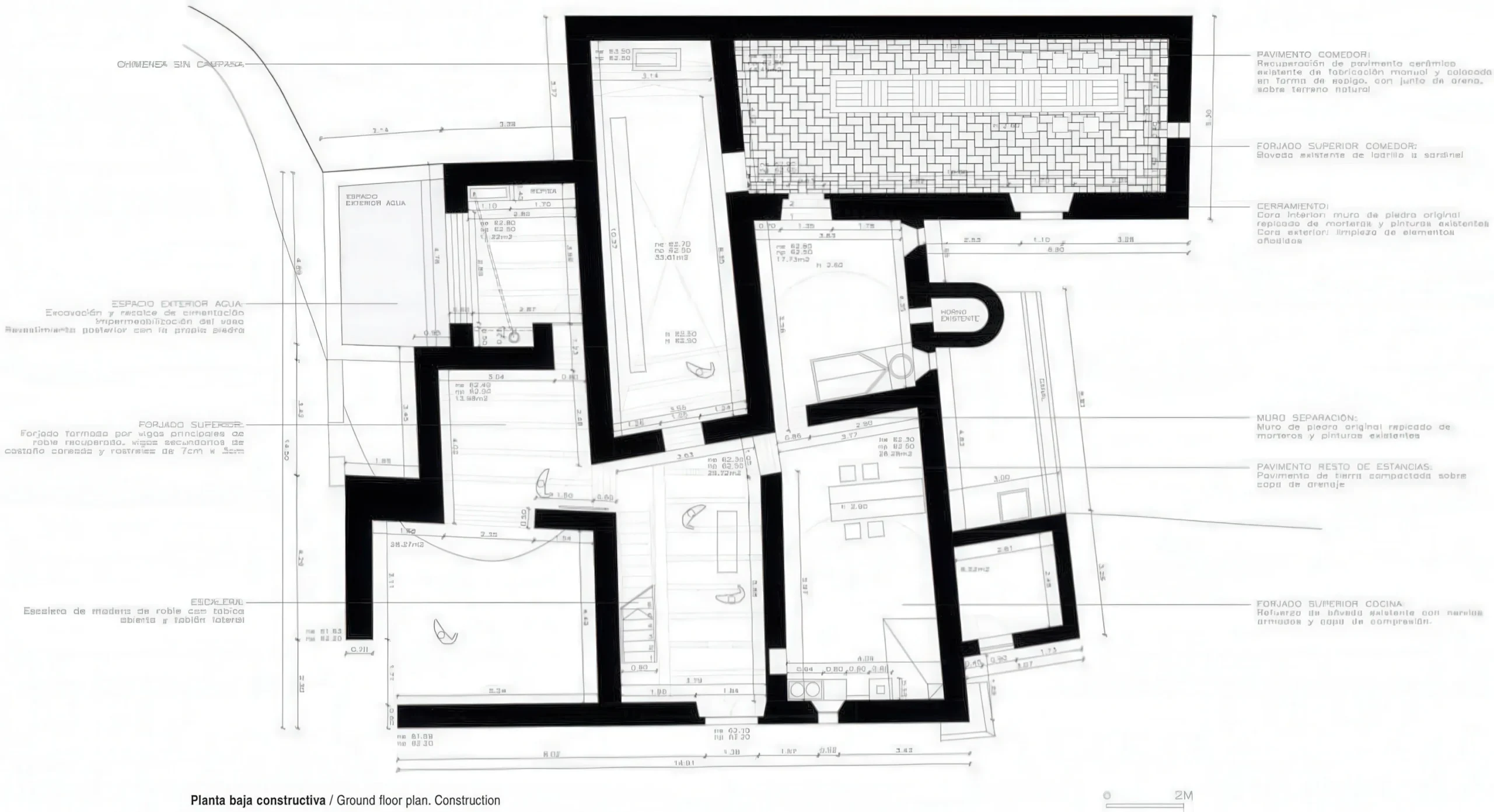
Mas Salvà 农家小屋 / Mas Salvà Farm House | +RCR 建筑事务所|RCR Arquitectes RCR 建筑事务所|RCR Arquitectes • 2025-11-03 下午12:50 • 公共建筑设计, 建筑师设计, 建筑设计, 文化建筑设计 Mas Salvà 农家小屋由+RCR 建筑事务所设计,通过最小干预策略改造废弃农舍,恢复其乡村住宅本质。项目强调感官体验与自然的原始联系,以开放式空间布局强化建筑与外部环境的对话。 设计: RCR 建筑事务所|RCR Arquitectes 类型: 文化建筑设计 功能: 独立住宅 风格: 极简主义 材料: 木材 玻璃 石材 尺度: 小型建筑 地点:西班牙 时间: 2018年 项目概述 Mas Salvà 农家小屋位于西班牙乡村,是一座由废弃农舍改造而成的独立住宅。+RCR 建筑事务所以最小干预的设计理念,保留了建筑原始结构特征,通过空间重组强化了建筑与自然的联系。 设计理念 设计团队以”恢复农舍灵魂”为核心概念,通过剥离多余装饰,让建筑回归最本质的庇护所功能。项目强调感官体验与自然的原始联系,以开放式布局创造建筑与环境的持续对话。 空间与功能 空间组织围绕生活核心展开,包含浴室、带天窗壁炉的客厅、厨房、工作室和艺术空间。流线设计强化了室内外连通,每个功能区域都与自然环境建立直接视觉与空间联系。 材料与技术 项目采用原有石墙、木材等本土材料,结合现代玻璃元素,形成新旧材料的诚实对话。结构体系保留原始农舍骨架,通过精准的局部加固确保建筑稳定性与耐久性。 项目特色与启发 Mas Salvà 农家小屋展示了如何通过最小干预实现建筑再生,为乡村建筑改造提供了重要参考。项目体现了+RCR 建筑事务所对场地文脉的尊重,对当代建筑如何回应传统具有启发意义。 设计团队 +RCR 建筑事务所由Rafael Aranda、Carme Pigem和Ramon Vilalta于1988年创立,以对场地敏感的设计手法闻名。团队擅长通过材料与光线的精确运用,创造建筑与环境的诗意对话,曾获普利兹克建筑奖。 项目概述 Mas Salvà 农家小屋位于西班牙乡村,是一座由废弃农舍改造而成的独立住宅。+RCR 建筑事务所以最小干预的设计理念,保留了建筑原始结构特征,通过空间重组强化了建筑与自然的联系。 设计理念 设计团队以”恢复农舍灵魂”为核心概念,通过剥离多余装饰,让建筑回归最本质的庇护所功能。项目强调感官体验与自然的原始联系,以开放式布局创造建筑与环境的持续对话。 空间与功能 空间组织围绕生活核心展开,包含浴室、带天窗壁炉的客厅、厨房、工作室和艺术空间。流线设计强化了室内外连通,每个功能区域都与自然环境建立直接视觉与空间联系。 材料与技术 项目采用原有石墙、木材等本土材料,结合现代玻璃元素,形成新旧材料的诚实对话。结构体系保留原始农舍骨架,通过精准的局部加固确保建筑稳定性与耐久性。 项目特色与启发 Mas Salvà 农家小屋展示了如何通过最小干预实现建筑再生,为乡村建筑改造提供了重要参考。项目体现了+RCR 建筑事务所对场地文脉的尊重,对当代建筑如何回应传统具有启发意义。 设计团队 +RCR 建筑事务所由Rafael Aranda、Carme Pigem和Ramon Vilalta于1988年创立,以对场地敏感的设计手法闻名。团队擅长通过材料与光线的精确运用,创造建筑与环境的诗意对话,曾获普利兹克建筑奖。 本文来自 © RCR 建筑事务所|RCR Arquitectes, 发布于 © 建筑学院官方网站。 未经授权,禁止转载或摘编。 编辑版本版权归 © 建筑学院官方网站 所有, 设计、图纸及照片版权归设计方 © RCR 建筑事务所|RCR Arquitectes ↗ 所有。 查看作者在建筑学院发布的更多作品: RCR 建筑事务所|RCR Arquitectes @ 建筑学院官方网站 +RCR 建筑事务所Mas Salvà Farm House独立住宅设计西班牙乡村建筑 RCR 建筑事务所|RCR Arquitectes事务所 & 设计师 下载原图 收藏 0 关于作者 RCR 建筑事务所|RCR Arquitectes事务所 & 设计师 关注私信 14 文章 0 评论 0 粉丝 RCR建筑事务所由拉斐尔·阿兰达、卡莫·皮格姆和拉蒙·比拉尔塔于1988年在西班牙奥洛特创立。他们于2017年共同荣获普利兹克建筑奖,其作品以根植本土、心向世界而闻名。事务所擅长运用耐候钢、玻璃等现代材料,将建筑与自然景观深度融合,创造出充满诗意与永恒感的空间。其代表作包括法国苏拉吉博物馆、里拉剧院户外空间等。 森林里的Pilotis / Pilotis in a Forest | 长谷川豪建筑事务所 上一篇 2025-11-03 上午8:50 店号2,厅室 / Store No.2, Chamber | +MOS 建筑事务所 下一篇 2025-11-03 下午12:50 猜你喜欢 CASA EN FONTINHA / House in Fontinha | 艾雷斯·马特乌斯建筑事务所|Aires Mateus 2025-11-14 公共建筑设计 帕拉蒂之家 / House in Paraty | Estúdio Gustavo Utrabo 2026-04-01 住宅建筑设计 阿赫玛德巴德住宅 Ahmedabad Residence | 孟买工作室(Studio Mumbai)|Studio Mumbai 2026-01-15 住宅室内设计 海岛住宅 Island Houses | 谭姆与维德高德建筑事务所|Tham & Videgård 2025-11-12 公共建筑设计 开罗住宅 House in Keremma | 拉卡东与瓦萨尔建筑师事务所|Lacaton & Vassal 2025-11-13 公共建筑设计 断层式住宅 / Striated House | 帕琳达·坎南加拉|Palinda Kannangara 2025-12-21 住宅建筑设计 发表回复 请登录后评论...登录后才能评论 提交