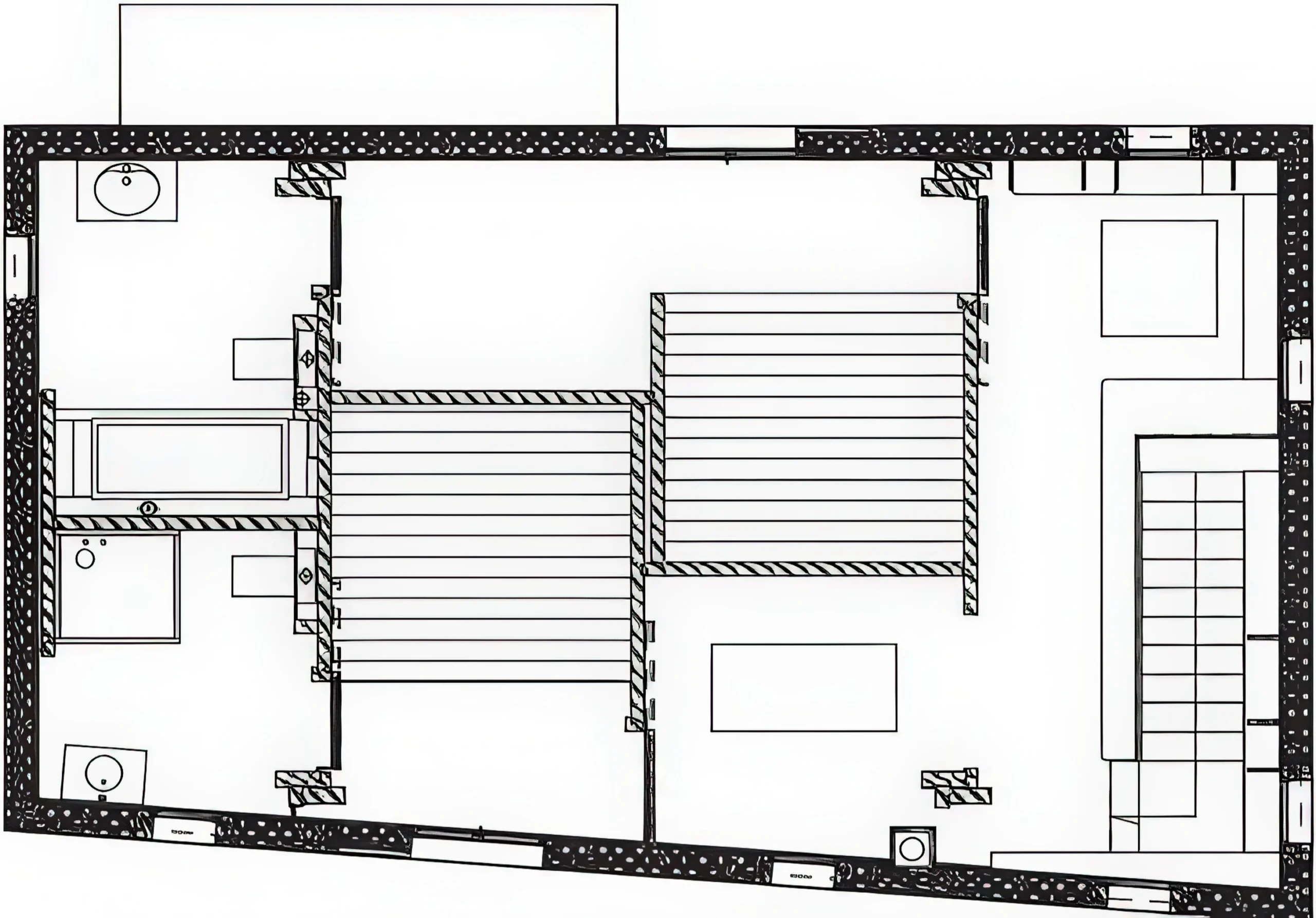
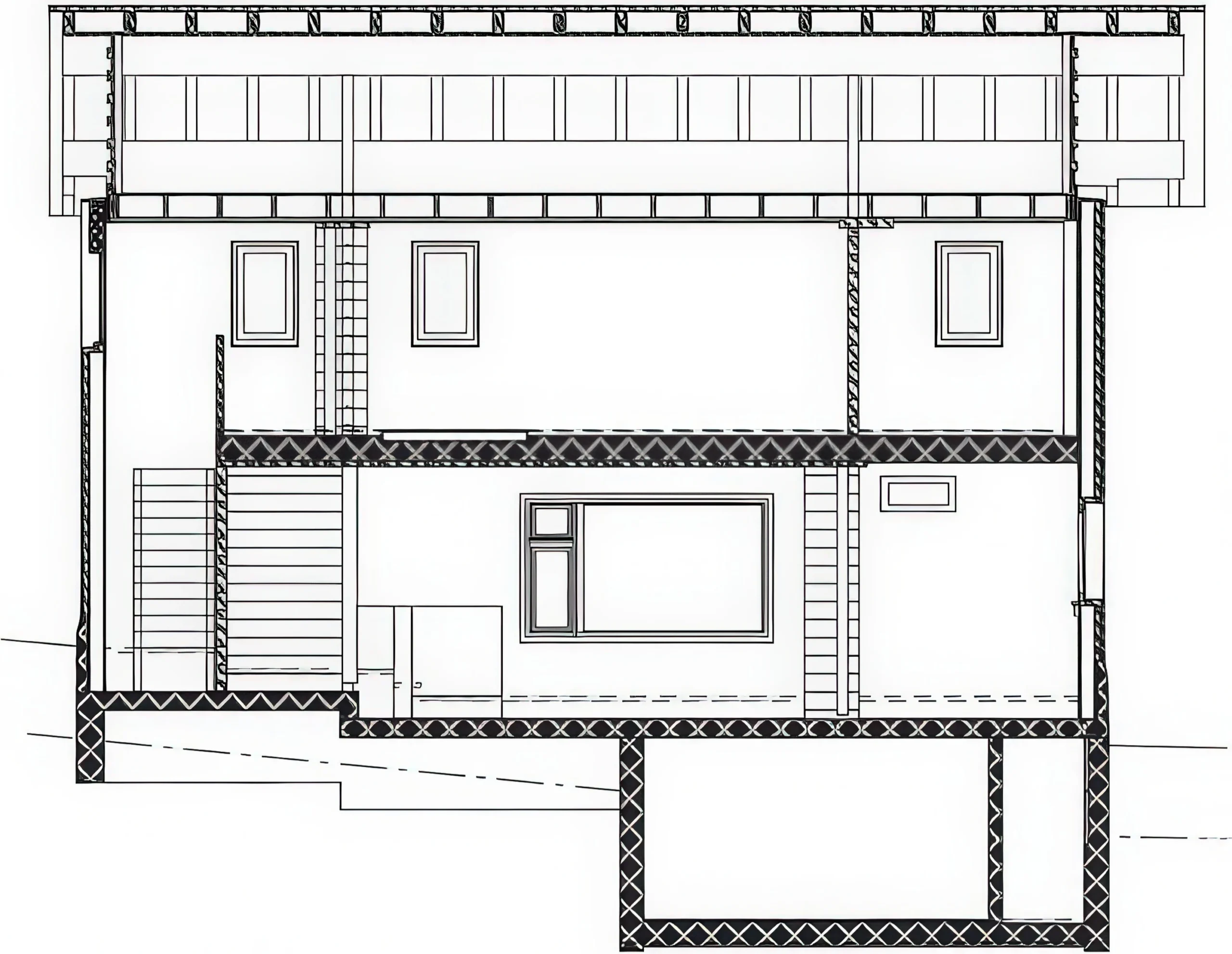
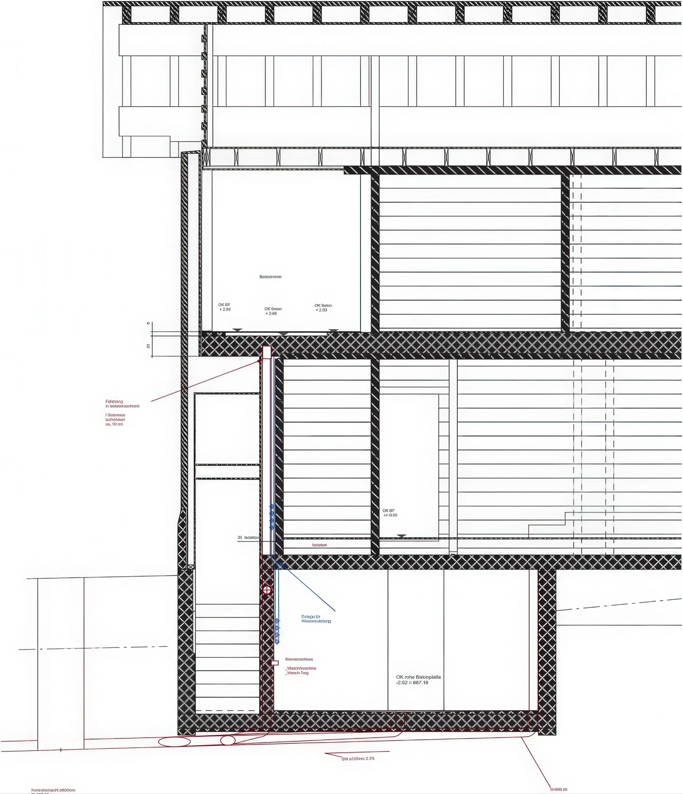
弗斯特纳布尔克的库伯尔之家 / Kübler House in Fürstenaubruck | 吉翁·A·卡米纳达|Gion A. Caminada 吉翁·A·卡米纳达|Gion A Caminada • 2025-12-28 下午7:56 • 住宅建筑设计, 建筑设计, 独立住宅, 独立住宅设计 弗斯特纳布尔克的库伯尔之家由吉翁·A·卡米纳达设计,位于瑞士Fürstenaubruck村入口处,是一座独立住宅。设计通过厚实木墙创造独特的空间引力场,重新诠释传统木构建筑的可能性,展现当代木构住宅的轻盈与活力。 设计: 吉翁·A·卡米纳达|Gion A Caminada 类型: 独立住宅设计 功能: 独立住宅 风格: 当代建筑 材料: 混凝土 木材 尺度: 小型建筑 地点:瑞士 时间: 2006年 项目概述 弗斯特纳布尔克的库伯尔之家位于瑞士Fürstenaubruck村入口处,是一座独立住宅项目。建筑后退于道路,坐落于小型果园后方,设计于2004年,建成于2006年。这座住宅以创新的木构方式重新定义传统居住空间。 设计理念 吉翁·A·卡米纳达的设计理念旨在接近传统木屋的内在力量,同时摆脱传统木构建筑的刻板印象。设计采用更加随性、甜美且生动的方式,如同果树般自然生长,创造出一个既具保护性又充满活力的居住环境。 空间与功能 入口处的厚实木墙形成引力场,引导使用者向前或向后移动。空间组织提供两种路径选择:沿墙缓慢移动并逐渐上升至上层卧室区域,或退回门厅穿过唯一的光线开口。木墙界定出舒适的角落空间,营造出坚实的空间存在感。 材料与技术 项目采用实木榫接技术,充分发挥木材的结构潜力。厚重的木墙不仅承担结构功能,更成为空间组织的核心元素。通过移动木墙并开发其全部潜力,实现了空间的开放性,无需额外封闭空间。 项目特色与启发 弗斯特纳布尔克的库伯尔之家展示了木构建筑在现代住宅设计中的创新应用。项目突破了传统木屋的固有形式,为当代木构住宅设计提供了新的思路,对建筑师在材料表达与空间组织方面具有重要参考价值。 设计团队 吉翁·A·卡米纳达是瑞士知名建筑师,以其对传统建筑技艺的现代表达而闻名。他的作品常常探索材料本质与空间体验的关系,在木构建筑领域具有独特的设计语言和实践经验。 项目概述 弗斯特纳布尔克的库伯尔之家位于瑞士Fürstenaubruck村入口处,是一座独立住宅项目。建筑后退于道路,坐落于小型果园后方,设计于2004年,建成于2006年。这座住宅以创新的木构方式重新定义传统居住空间。 设计理念 吉翁·A·卡米纳达的设计理念旨在接近传统木屋的内在力量,同时摆脱传统木构建筑的刻板印象。设计采用更加随性、甜美且生动的方式,如同果树般自然生长,创造出一个既具保护性又充满活力的居住环境。 空间与功能 入口处的厚实木墙形成引力场,引导使用者向前或向后移动。空间组织提供两种路径选择:沿墙缓慢移动并逐渐上升至上层卧室区域,或退回门厅穿过唯一的光线开口。木墙界定出舒适的角落空间,营造出坚实的空间存在感。 材料与技术 项目采用实木榫接技术,充分发挥木材的结构潜力。厚重的木墙不仅承担结构功能,更成为空间组织的核心元素。通过移动木墙并开发其全部潜力,实现了空间的开放性,无需额外封闭空间。 项目特色与启发 弗斯特纳布尔克的库伯尔之家展示了木构建筑在现代住宅设计中的创新应用。项目突破了传统木屋的固有形式,为当代木构住宅设计提供了新的思路,对建筑师在材料表达与空间组织方面具有重要参考价值。 设计团队 吉翁·A·卡米纳达是瑞士知名建筑师,以其对传统建筑技艺的现代表达而闻名。他的作品常常探索材料本质与空间体验的关系,在木构建筑领域具有独特的设计语言和实践经验。 本文来自 © 吉翁·A·卡米纳达|Gion A Caminada, 发布于 © 建筑学院官方网站。 未经授权,禁止转载或摘编。 编辑版本版权归 © 建筑学院官方网站 所有, 设计、图纸及照片版权归设计方 © 吉翁·A·卡米纳达|Gion A Caminada ↗ 所有。 查看作者在建筑学院发布的更多作品: 吉翁·A·卡米纳达|Gion A Caminada @ 建筑学院官方网站 kubler-house-furstenaubruck木构建筑独立住宅设计瑞士住宅 吉翁·A·卡米纳达|Gion A Caminada事务所 & 设计师 下载原图 收藏 0 关于作者 吉翁·A·卡米纳达|Gion A Caminada事务所 & 设计师 关注私信 22 文章 0 评论 0 粉丝 瑞士建筑师吉翁·A·卡米纳达(Gion A. Caminada)以其对传统木结构的现代诠释与乡村建筑复兴而闻名。他的官方网站 theaficionados.com 系统展示其代表作、设计哲学及对乡土文化的深刻思考。访问该站可深入了解其如何将地方传统转化为当代可持续的建筑语言。 阿瓜斯多港口实验室 / Águas do Porto Laboratory | 德·莫拉建筑事务所 上一篇 2025-12-28 下午7:42 朱法纳风力发电站工作人员居住楼 / Staff Quarters for Wind Power Plant in Jaffna | 帕琳达·坎南加拉|Palinda Kannangara 下一篇 2025-12-28 下午8:08 猜你喜欢 公交站位于维林 / Bus Stop in Vrin | 吉翁·A·卡米纳达|Gion A. Caminada 2026-03-24 交通建筑设计 CASA EN FONTINHA / House in Fontinha | 艾雷斯·马特乌斯建筑事务所|Aires Mateus 2025-11-14 公共建筑设计 花园小屋 / Garden House | 安妮·霍尔特罗普|Anne Holtrop 2026-03-11 住宅建筑设计 viggsö 楼屋 / House in Viggsö | Arrhov Frick 2026-01-23 住宅建筑设计 Gotanda的房子 / House in Gotanda | 长谷川豪建筑事务所 2025-11-25 公共建筑设计 沃尔彭之家 / Walpen House | 吉翁·A·卡米纳达|Gion A. Caminada 2026-03-25 住宅建筑设计 发表回复 请登录后评论...登录后才能评论 提交