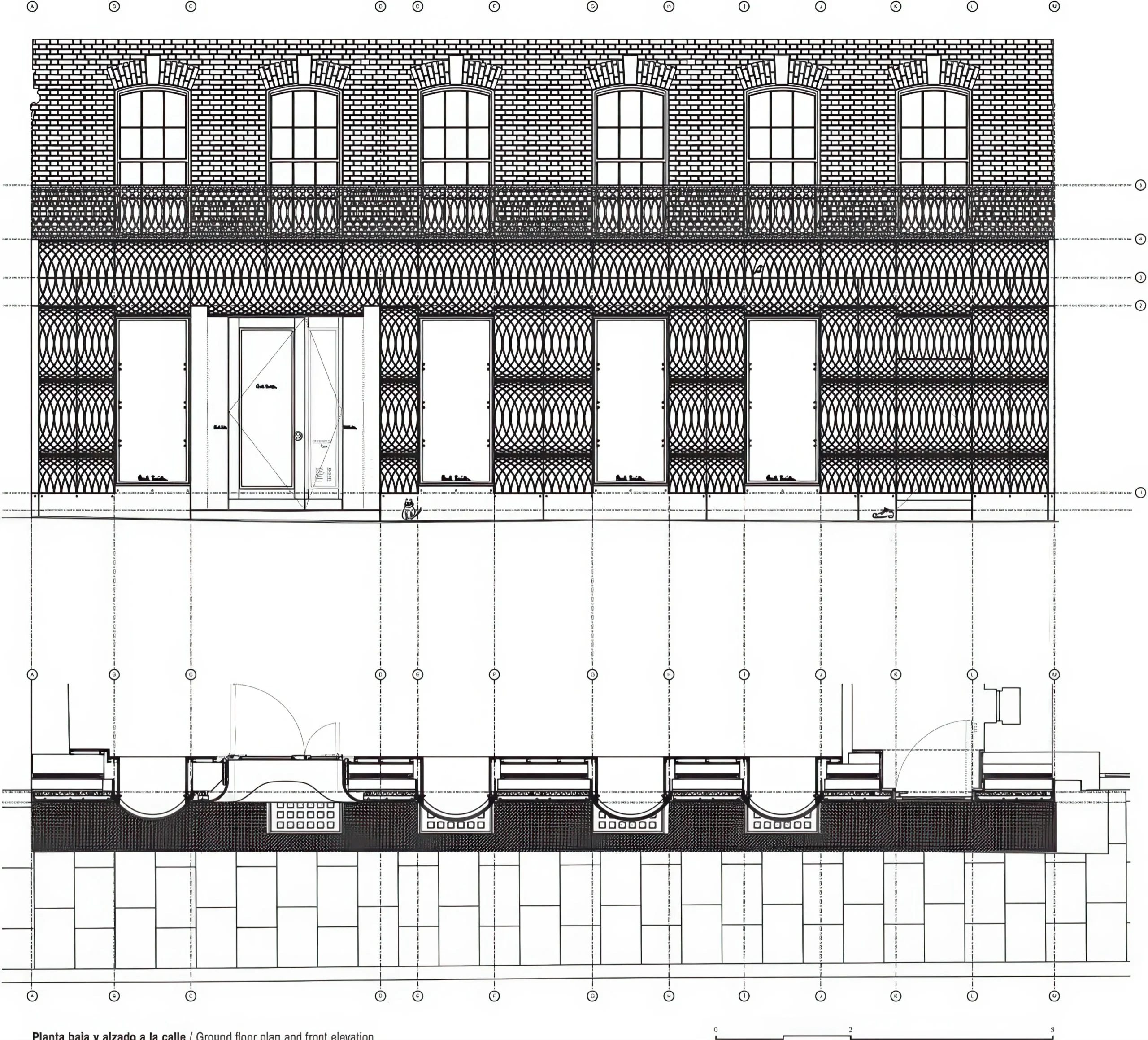
保罗·史密斯商店前脸 | 6a 建筑事务所 6a 建筑事务所|6a architects • 2026-04-24 下午6:41 • 商业与综合建筑, 商业建筑设计 南伦敦美术馆是位于伦敦佩克汉姆区的艺术展览空间,经过6a建筑事务所12年的改造更新,从单一维多利亚时期画廊扩展为包含多个建筑与花园的艺术园区。项目保留了原有建筑特色,新增教育工作室、艺术家驻留公寓和花园空间,通过砖材、木材和水泥板等材料延续场地历史文脉,成为连接社区的艺术文化枢纽。 设计: 6a 建筑事务所|6a architects 类型: 商业建筑设计 功能: 商场 风格: 当代建筑 材料: 玻璃 金属板 尺度: 中型建筑 地点:伦敦 时间: 1970年 项目简介 保罗·史密斯商店前脸位于英国伦敦梅菲尔区,是一座商业建筑立面改造项目。建筑面积约50平方米,设计于2015年,2016年建成。 设计理念 设计团队从伦敦传统铸铁装饰中汲取灵感,重新诠释摄政时期的装饰语言,通过相互连接的铸铁圆环图案,创造出既具历史传承又富现代感的建筑表皮。 空间与功能 项目包含商店入口、展示橱窗和防护栏杆等功能。弧形展示窗向外突出,形成明亮的展示空间,为商品陈列提供最佳视觉效果。 材料与技术 采用传统砂模铸造工艺制作铸铁面板,表面保留铸造痕迹和自然铜绿。边缘采用斜角处理增强刚性,弧形玻璃由汽车挡风玻璃制造商定制。 设计团队 6a建筑事务所是伦敦知名建筑设计工作室,专注于文化、商业和住宅项目,以对材料、工艺和历史文脉的细致处理而闻名。 项目简介 保罗·史密斯商店前脸位于英国伦敦梅菲尔区,是一座商业建筑立面改造项目。建筑面积约50平方米,设计于2015年,2016年建成。 设计理念 设计团队从伦敦传统铸铁装饰中汲取灵感,重新诠释摄政时期的装饰语言,通过相互连接的铸铁圆环图案,创造出既具历史传承又富现代感的建筑表皮。 空间与功能 项目包含商店入口、展示橱窗和防护栏杆等功能。弧形展示窗向外突出,形成明亮的展示空间,为商品陈列提供最佳视觉效果。 材料与技术 采用传统砂模铸造工艺制作铸铁面板,表面保留铸造痕迹和自然铜绿。边缘采用斜角处理增强刚性,弧形玻璃由汽车挡风玻璃制造商定制。 设计团队 6a建筑事务所是伦敦知名建筑设计工作室,专注于文化、商业和住宅项目,以对材料、工艺和历史文脉的细致处理而闻名。 本文来自 © 6a 建筑事务所|6a architects, 发布于 © 建筑学院官方网站。 未经授权,禁止转载或摘编。 编辑版本版权归 © 建筑学院官方网站 所有, 设计、图纸及照片版权归设计方 © 6a 建筑事务所|6a architects ↗ 所有。 查看作者在建筑学院发布的更多作品: 6a 建筑事务所|6a architects @ 建筑学院官方网站 6a建筑事务所伦敦建筑保罗·史密斯商店前脸商业建筑立面摄政风格铸铁材料 6a 建筑事务所|6a architects事务所 & 设计师 下载原图 收藏 0 关于作者 6a 建筑事务所|6a architects事务所 & 设计师 关注私信 35 文章 1 评论 0 粉丝 6a architects(6a建筑事务所)是英国知名的建筑设计团队,以其对文化、艺术及教育类建筑的深刻理解而闻名。他们的作品擅长运用精巧的材料与细致的构造,在历史与现代的对话中创造宁静而富有感染力的空间。其代表作包括South London Gallery、MK Gallery改造及剑桥大学校园建筑等。 格林威治设计区 A2_B2 | 6a 建筑事务所|6a architects 上一篇 2026-04-21 下午8:37 弗雷赫纳尔德拉谢拉酒店 / Hotel in Fregenal de la Sierra | +MGM 建筑师事务所|MGM 下一篇 2026-04-27 上午9:27 猜你喜欢 皇家咖啡馆酒店 Hotel Café Royal | 大卫·奇珀菲尔德建筑事务所|David Chipperfield 2025-11-08 商业与综合建筑 上公园的房子 / House on the Park | 6a 建筑事务所 2026-04-19 住宅建筑设计 维多利亚与阿尔伯特博物馆 E20 / Victoria & Albert Museum E20 | 6a 建筑事务所 2025-11-04 公共建筑设计 伦敦新金融城 One New Change, London | 让·努维尔建筑事务所|Jean Nouvel 2025-11-30 公共建筑设计 A Mews Collection A Mews Collection | 6a 建筑事务所|6a architects 2025-12-11 公共建筑设计 格林威治设计区 A2_B2 | 6a 建筑事务所|6a architects 2025-10-26 公共建筑设计 发表回复 请登录后评论...登录后才能评论 提交