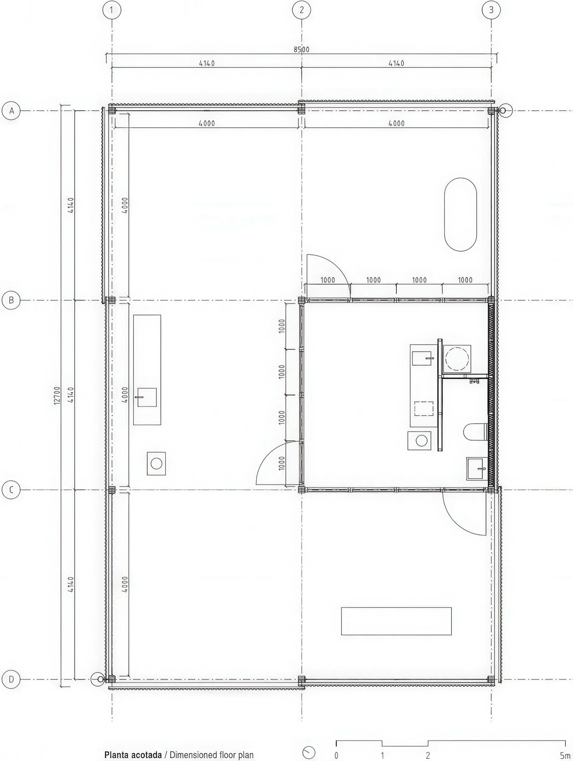
霍加根的房子 / House in Hovgarden | Arrhov Frick Arrhov Frick • 2025-12-25 上午8:49 • 住宅建筑设计, 建筑师, 建筑设计, 独立住宅, 独立住宅设计 霍加根的房子由Arrhov Frick建筑事务所设计,位于瑞典阿德尔索的湖畔坡地,是一座应对复杂地形与材料价格波动的轻型独立住宅,展现了极简建造与自然环境融合的设计智慧。 设计: Arrhov Frick 类型: 独立住宅设计 功能: 独立住宅 风格: 极简主义 材料: 混凝土 钢材 木材 玻璃纤维复合材料 尺度: 小型建筑 地点:阿德尔索 时间: 2020年 项目概述 霍加根的房子位于瑞典阿德尔索的霍加根地区,毗邻梅拉伦湖,是一座独立住宅项目。建筑占地面积约96平方米,采用轻型木结构体系,设计始于2020年,目前仍在建设中。该项目巧妙应对了南向坡地、缺乏基础设施的场地挑战。 设计理念 Arrhov Frick建筑事务所以”极简建造”为核心设计理念,回应了疫情期间建筑材料价格剧烈波动的现实条件。设计团队将建筑视为一个持续发展的过程,强调如何用最简单的方式建造和生活,在有限的预算内实现建筑与自然的和谐共生。 空间与功能 建筑内部空间8×12米,采用开放式布局,混凝土地面覆盖30平方米,其余区域保留肥沃土壤。空间组织灵活多变,包含技术设备区、卫生间、水槽等基本功能,未来可根据需求增建独立空间。大型推拉门实现空间的多向开放,模糊室内外界限。 材料与技术 主要采用标准尺寸木材构建框架,使用L型钢材和螺栓连接,实现零浪费建造。结构覆盖玻璃纤维材料,兼具经济性、耐久性和优美的光线过滤效果。建筑充分利用太阳能取暖,配备集水系统,体现了可持续设计策略。 项目特色与启发 霍加根的房子展示了在复杂经济环境下如何通过简化建造流程实现高品质居住空间。该项目为建筑师提供了在预算限制下保持设计完整性的实践参考,体现了当代住宅设计对资源效率和环境适应的深度思考。 设计团队 Arrhov Frick是瑞典知名建筑事务所,以简洁现代的设计语言和对材料本质的探索著称。他们在住宅设计中注重空间体验与环境回应,霍加根的房子延续了其一贯的设计理念,展现了在挑战性场地条件下的创新解决方案。 项目概述 霍加根的房子位于瑞典阿德尔索的霍加根地区,毗邻梅拉伦湖,是一座独立住宅项目。建筑占地面积约96平方米,采用轻型木结构体系,设计始于2020年,目前仍在建设中。该项目巧妙应对了南向坡地、缺乏基础设施的场地挑战。 设计理念 Arrhov Frick建筑事务所以”极简建造”为核心设计理念,回应了疫情期间建筑材料价格剧烈波动的现实条件。设计团队将建筑视为一个持续发展的过程,强调如何用最简单的方式建造和生活,在有限的预算内实现建筑与自然的和谐共生。 空间与功能 建筑内部空间8×12米,采用开放式布局,混凝土地面覆盖30平方米,其余区域保留肥沃土壤。空间组织灵活多变,包含技术设备区、卫生间、水槽等基本功能,未来可根据需求增建独立空间。大型推拉门实现空间的多向开放,模糊室内外界限。 材料与技术 主要采用标准尺寸木材构建框架,使用L型钢材和螺栓连接,实现零浪费建造。结构覆盖玻璃纤维材料,兼具经济性、耐久性和优美的光线过滤效果。建筑充分利用太阳能取暖,配备集水系统,体现了可持续设计策略。 项目特色与启发 霍加根的房子展示了在复杂经济环境下如何通过简化建造流程实现高品质居住空间。该项目为建筑师提供了在预算限制下保持设计完整性的实践参考,体现了当代住宅设计对资源效率和环境适应的深度思考。 设计团队 Arrhov Frick是瑞典知名建筑事务所,以简洁现代的设计语言和对材料本质的探索著称。他们在住宅设计中注重空间体验与环境回应,霍加根的房子延续了其一贯的设计理念,展现了在挑战性场地条件下的创新解决方案。 本文来自 © Arrhov Frick, 发布于 © 建筑学院官方网站。 未经授权,禁止转载或摘编。 编辑版本版权归 © 建筑学院官方网站 所有, 设计、图纸及照片版权归设计方 © Arrhov Frick ↗ 所有。 查看作者在建筑学院发布的更多作品: Arrhov Frick @ 建筑学院官方网站 Arrhov Frickhouse-in-hovgarden独立住宅设计瑞典住宅建筑 Arrhov Frick事务所 & 设计师 下载原图 收藏 0 关于作者 Arrhov Frick事务所 & 设计师 关注私信 16 文章 0 评论 1 粉丝 Arrhov Frick 是由 Johan Arrhov 和 Henrik Frick 于2010年在斯德哥尔摩创立的建筑事务所。他们以清晰的建造逻辑、实用的空间规划和极简的美学著称,设计涵盖私人住宅、集合住宅及文化建筑。其官网 arrhovfrick.se 完整展示了他们的作品与实践理念。 艺术家避暑所 帕特鲁加纳拉 / Artists’ Retreat in Pittugala | 帕琳达·坎南加拉|Palinda Kannangara 上一篇 2025-12-25 上午8:40 杜雷尔走廊 / Durrës Corridor | Dogma 下一篇 2025-12-25 上午9:04 猜你喜欢 城市切片住宅 / Urban Slice House | 帕琳达·坎南加拉|Palinda Kannangara 2025-12-19 住宅建筑设计 帕劳Solità岛Plegamans的住宅 / House in Palau Solità i Plegamans | HArquitectes 2026-02-12 住宅建筑设计 山上的房子 House on a Hill | 谭姆与维德高德建筑事务所|Tham & Videgård 2025-11-07 公共建筑设计 莫利波之家 / Morimoto House | SANAA 2026-02-10 住宅建筑设计 时光之家 / House in Time | 艾雷斯·马特乌斯建筑事务所 2025-11-09 住宅室内设计 弗斯特纳布尔克的库伯尔之家 / Kübler House in Fürstenaubruck | 吉翁·A·卡米纳达|Gion A. Caminada 2026-03-25 住宅建筑设计 发表回复 请登录后评论...登录后才能评论 提交