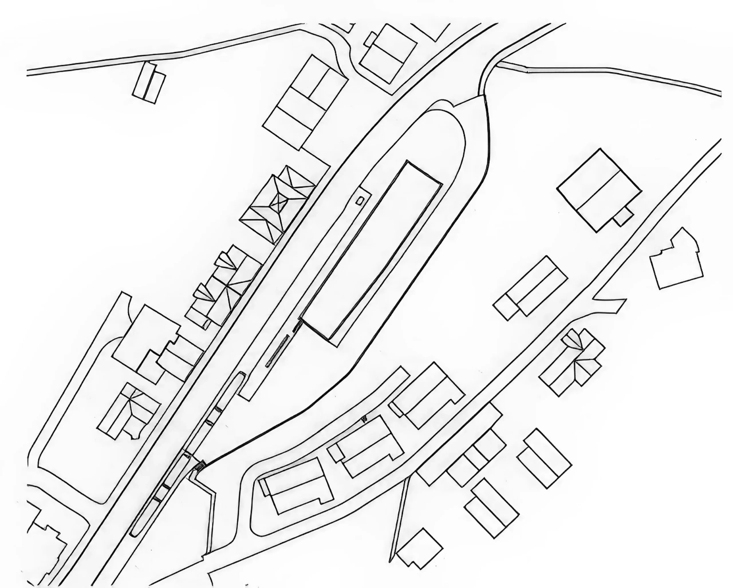
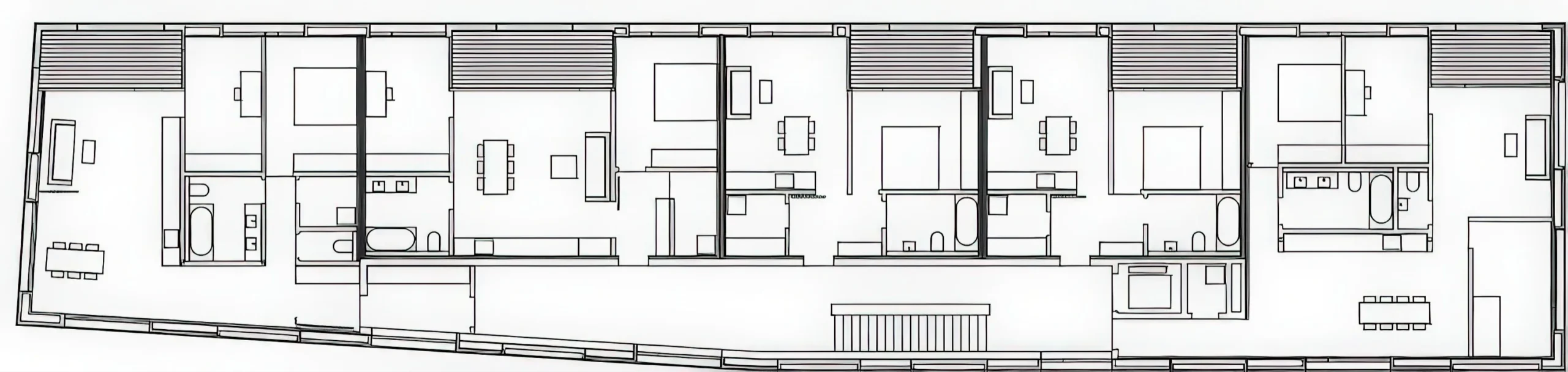
特龙根铁路站 / Trogen Railway Station | 贝尔纳多·巴德尔|Bernardo Bader 贝尔纳多·巴德尔|Bernardo Bader • 2025-11-05 下午12:50 • 公共建筑设计, 建筑师设计, 建筑设计, 文化建筑设计 特龙根铁路站由贝尔纳多·巴德尔设计,位于瑞士阿彭策尔特龙根,是一座现代交通建筑。该项目通过独立站房设计与周边环境融合,创造新的城市空间连接,以精致的木结构语言回应地域特征,塑造优雅而自信的建筑形象。 设计: 贝尔纳多·巴德尔|Bernardo Bader 类型: 文化建筑设计 功能: 独立住宅 风格: 当代建筑 材料: 混凝土 木材 尺度: 小型建筑 地点:特龙根 时间: 2003年 项目概述 特龙根铁路站位于瑞士阿彭策尔特龙根,是一座现代交通建筑。项目通过竞赛获得一等奖,设计始于2013年,预计2017年后建成。建筑采用独立站房形式,与周边环境共同创造新的城市公共空间。 设计理念 贝尔纳多·巴德尔的设计理念强调建筑作为”城市的恰当片段”,通过新的交通路线组织,充分利用场地深度。设计回应地形特征,南侧柔和的曲线呼应后方山坡地形,使建筑在保持现代性的同时尊重地方文脉。 空间与功能 特龙根铁路站的空间组织注重流动性与连续性。地面层确保人流顺畅通过,上层提供租赁住宅空间。建筑与邮政大楼之间的区域将延伸为城市广场,创造欢迎来自斯派赫尔方向访客的前庭空间。 材料与技术 建筑采用木结构体系,坐落于坚实的混凝土基座上。精致的木立面纹理展现现代工艺,同时呼应地方建筑传统。结构元素、立面构件和材料选择都是设计重点,体现对建构逻辑的重视。 项目特色与启发 特龙根铁路站的特色在于将交通功能与城市公共空间完美结合,通过优雅的建筑形态和精致的材料处理,为小型交通建筑提供了设计范例。项目展示了如何通过现代建筑语言回应地域特征,为类似规模的交通设施设计提供参考。 设计团队 贝尔纳多·巴德尔是一位专注于地域建筑实践的瑞士建筑师,其作品以对材料、构造和场地文脉的细致处理著称。在特龙根铁路站项目中,团队展现了将现代建筑需求与地方传统相融合的设计能力。 项目概述 特龙根铁路站位于瑞士阿彭策尔特龙根,是一座现代交通建筑。项目通过竞赛获得一等奖,设计始于2013年,预计2017年后建成。建筑采用独立站房形式,与周边环境共同创造新的城市公共空间。 设计理念 贝尔纳多·巴德尔的设计理念强调建筑作为”城市的恰当片段”,通过新的交通路线组织,充分利用场地深度。设计回应地形特征,南侧柔和的曲线呼应后方山坡地形,使建筑在保持现代性的同时尊重地方文脉。 空间与功能 特龙根铁路站的空间组织注重流动性与连续性。地面层确保人流顺畅通过,上层提供租赁住宅空间。建筑与邮政大楼之间的区域将延伸为城市广场,创造欢迎来自斯派赫尔方向访客的前庭空间。 材料与技术 建筑采用木结构体系,坐落于坚实的混凝土基座上。精致的木立面纹理展现现代工艺,同时呼应地方建筑传统。结构元素、立面构件和材料选择都是设计重点,体现对建构逻辑的重视。 项目特色与启发 特龙根铁路站的特色在于将交通功能与城市公共空间完美结合,通过优雅的建筑形态和精致的材料处理,为小型交通建筑提供了设计范例。项目展示了如何通过现代建筑语言回应地域特征,为类似规模的交通设施设计提供参考。 设计团队 贝尔纳多·巴德尔是一位专注于地域建筑实践的瑞士建筑师,其作品以对材料、构造和场地文脉的细致处理著称。在特龙根铁路站项目中,团队展现了将现代建筑需求与地方传统相融合的设计能力。 本文来自 © 贝尔纳多·巴德尔|Bernardo Bader, 发布于 © 建筑学院官方网站。 未经授权,禁止转载或摘编。 编辑版本版权归 © 建筑学院官方网站 所有, 设计、图纸及照片版权归设计方 © 贝尔纳多·巴德尔|Bernardo Bader ↗ 所有。 查看作者在建筑学院发布的更多作品: 贝尔纳多·巴德尔|Bernardo Bader @ 建筑学院官方网站 Trogen Railway Station交通建筑设计木结构建筑瑞士火车站 贝尔纳多·巴德尔|Bernardo Bader事务所 & 设计师 下载原图 收藏 0 关于作者 贝尔纳多·巴德尔|Bernardo Bader事务所 & 设计师 关注私信 21 文章 0 评论 0 粉丝 贝尔纳多·巴德尔(Bernardo Bader)是一位出生于布雷根策瓦尔的奥地利建筑师-2。他于2003年创立自己的事务所,其作品深深植根于地域性,以精巧的细节和对自然与文化关系的独特诠释而闻名。巴德尔曾多次获奖,包括2007年青年建筑Weissenhof奖、2012年及2017年的Piranesi奖,并在2013年荣获著名的阿卡汗建筑奖。 柏林新二十世纪艺术博物馆 New Museum of the 20th Century, Berlin | 布鲁瑟建筑事务所|Bruther 上一篇 2025-11-05 下午12:50 爱茉莉太平洋总部 Amorepacific Headquarters | 大卫·奇珀菲尔德建筑事务所|David Chipperfield 下一篇 2025-11-05 下午12:50 猜你喜欢 新高速列车 Laview / New Express Train Laview | SANAA 2026-02-22 交通建筑设计 Haddon Baptist Church巴士站 / Bus Stop for Haddon Baptist Church | 安妮·霍尔特罗普|Anne Holtrop 2026-01-04 交通建筑 VRIN 多功能厅 / Vrin Multi-purpose Hall | 吉翁·A·卡米纳达|Gion A. Caminada 2026-03-24 公共建筑设计 马术项目 Equestrian Project | 曼努埃尔·塞万提斯|Manuel Cervantes 2025-12-08 公共建筑设计 迪森尼斯修道院农场 / Disentis Monastery Farm | 吉翁·A·卡米纳达|Gion A. Caminada 2026-03-25 公共空间设计 京都站苏拉卡瓦出口广场 / Kumamoto Station. Sirakawa Exit Plaza | SANAA 2026-03-03 交通建筑设计 发表回复 请登录后评论...登录后才能评论 提交