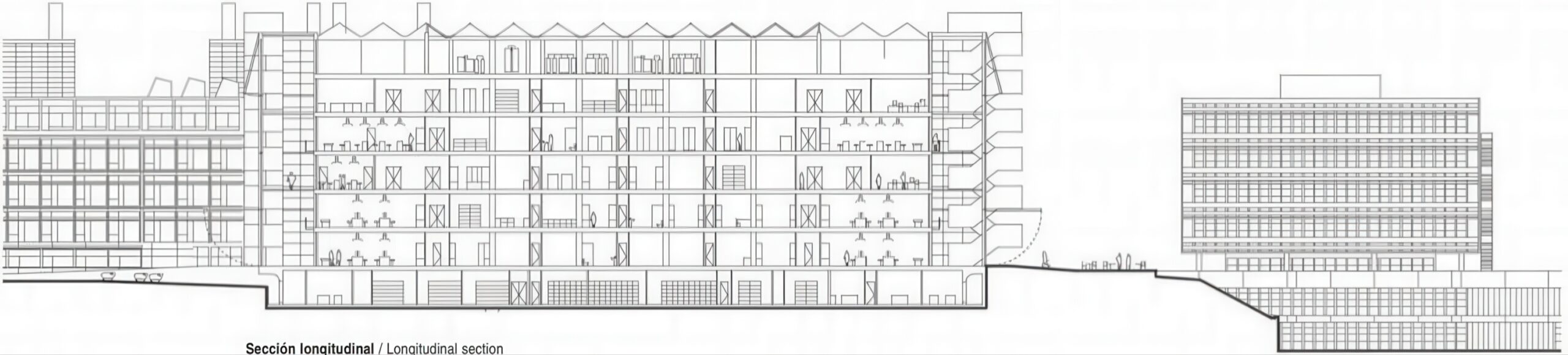
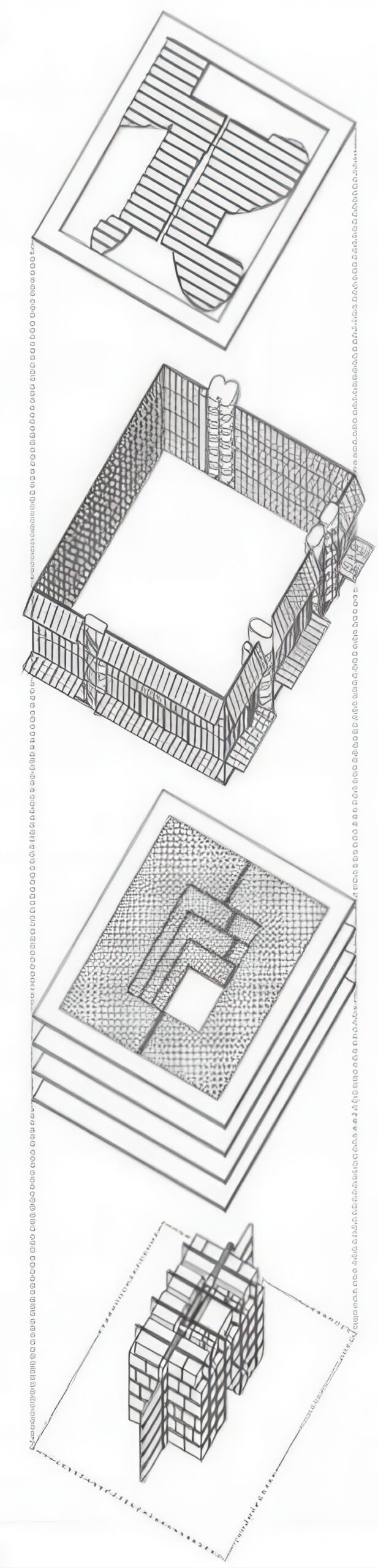
生命科学大楼 New Life Science Building | 布鲁瑟建筑事务所|Bruther 布鲁瑟建筑事务所|Bruther • 2025-11-06 上午8:50 • 公共建筑设计, 建筑师设计, 建筑设计, 文化建筑设计 生命科学大楼是瑞士洛桑联邦理工学院校园内的新建科研建筑,由布鲁瑟建筑事务所设计。项目采用紧凑的平行六面体造型,巧妙融合校园东西两侧不同的空间逻辑。设计通过中央交通带分隔教学与研究功能,周边设置宽敞的”非程序化”空间,利用玻璃材质营造通透氛围,实现科研功能与景观视野的完美平衡。 设计: 布鲁瑟建筑事务所|Bruther 类型: 文化建筑设计 功能: 研究中心 风格: 现代主义 材料: 混凝土 钢材 玻璃 金属板 尺度: 中型建筑 地点:瑞士 时间: 2016年 项目简介 生命科学大楼位于瑞士洛桑联邦理工学院校园,是一座科研教育建筑,建筑面积约4600平方米,采用72.60×63.80米的近方形平面,设计始于2016年。 设计理念 布鲁瑟建筑事务所采用双逻辑应对策略,既连接校园东部基础设施轴线,又呼应西部独立馆群布局。设计拒绝纯粹功能主义,通过同心圆组织原则创造灵活可适应的科研环境。 空间与功能 建筑核心集中布置无需自然光的科研空间,外围设置办公室和教室,最外层为实验室的视觉延伸空间。中央宽阔交通带有效分隔教学与研究功能,三层双高空间营造宏伟尺度感。 材料与技术 项目大量运用玻璃材质,包括幕墙和乳光玻璃地砖,营造通透氛围。8.80米结构网格确保空间灵活性,三部分立面设计分别采用提升门、法式开启窗和倾斜遮阳板,实现生物气候控制。 设计团队 布鲁瑟建筑事务所是法国知名建筑设计团队,以理性主义与现代主义融合著称,擅长通过精确的结构逻辑和材料运用创造高品质建筑空间。 项目简介 生命科学大楼位于瑞士洛桑联邦理工学院校园,是一座科研教育建筑,建筑面积约4600平方米,采用72.60×63.80米的近方形平面,设计始于2016年。 设计理念 布鲁瑟建筑事务所采用双逻辑应对策略,既连接校园东部基础设施轴线,又呼应西部独立馆群布局。设计拒绝纯粹功能主义,通过同心圆组织原则创造灵活可适应的科研环境。 空间与功能 建筑核心集中布置无需自然光的科研空间,外围设置办公室和教室,最外层为实验室的视觉延伸空间。中央宽阔交通带有效分隔教学与研究功能,三层双高空间营造宏伟尺度感。 材料与技术 项目大量运用玻璃材质,包括幕墙和乳光玻璃地砖,营造通透氛围。8.80米结构网格确保空间灵活性,三部分立面设计分别采用提升门、法式开启窗和倾斜遮阳板,实现生物气候控制。 设计团队 布鲁瑟建筑事务所是法国知名建筑设计团队,以理性主义与现代主义融合著称,擅长通过精确的结构逻辑和材料运用创造高品质建筑空间。 本文来自 © 布鲁瑟建筑事务所|Bruther, 发布于 © 建筑学院官方网站。 未经授权,禁止转载或摘编。 编辑版本版权归 © 建筑学院官方网站 所有, 设计、图纸及照片版权归设计方 © 布鲁瑟建筑事务所|Bruther ↗ 所有。 查看作者在建筑学院发布的更多作品: 布鲁瑟建筑事务所|Bruther @ 建筑学院官方网站 布鲁瑟建筑事务所洛桑玻璃幕墙生命科学大楼科研建筑 布鲁瑟建筑事务所|Bruther事务所 & 设计师 下载原图 收藏 0 关于作者 布鲁瑟建筑事务所|Bruther事务所 & 设计师 关注私信 20 文章 0 评论 1 粉丝 布鲁瑟建筑事务所(Bruther)由亚历克西斯·博德与斯蒂芬妮·布鲁诺创立于巴黎,是当代极具前瞻性的先锋建筑团队。他们以“动态功能”与“空间灵活性”为核心,作品横跨文化、教育及研究建筑领域,以前瞻性思维与技术精确性,创造出开放、适应性强且充满张力的建筑,持续拓展建筑实践的边界,重新定义当代建筑语言。 镜像,风景的补白 / 地方工作室 上一篇 2025-11-05 下午8:13 多功能展览馆,维亚纳多塞托尔 Multipurpose Pavilion,Viana do Castelo | 德莫拉建筑事务所|De Mora 下一篇 2025-11-06 上午8:50 猜你喜欢 瑞士洛桑艺术博物馆 Fine Arts Museum, Lausanne | 巴罗齐与维加建筑事务所|Barozzi Veiga 2025-10-29 公共建筑设计 勒哈弗多功能社会文化体育设施 Multifunction Sociocultural and Sports Facility, Le Havre | 布鲁瑟建筑事务所|Bruther 2025-11-24 公共建筑设计 蓬皮奥购物中心修复项目 Renovation of Galeries Lafayette, Pau | 布鲁瑟建筑事务所|Bruther 2025-11-10 公共建筑设计 框架媒体大厦 Frame, Media House | 布鲁瑟建筑事务所|Bruther 2025-11-20 公共建筑设计 新一代科研中心 New Generation Research Centre | 布鲁瑟建筑事务所|Bruther 2025-11-11 公共建筑设计 安格莱特工程学校伊斯兰建筑大楼 Isalab Building,Engineering School in Anglet | 布鲁瑟建筑事务所 2025-11-20 公共建筑设计 发表回复 请登录后评论...登录后才能评论 提交