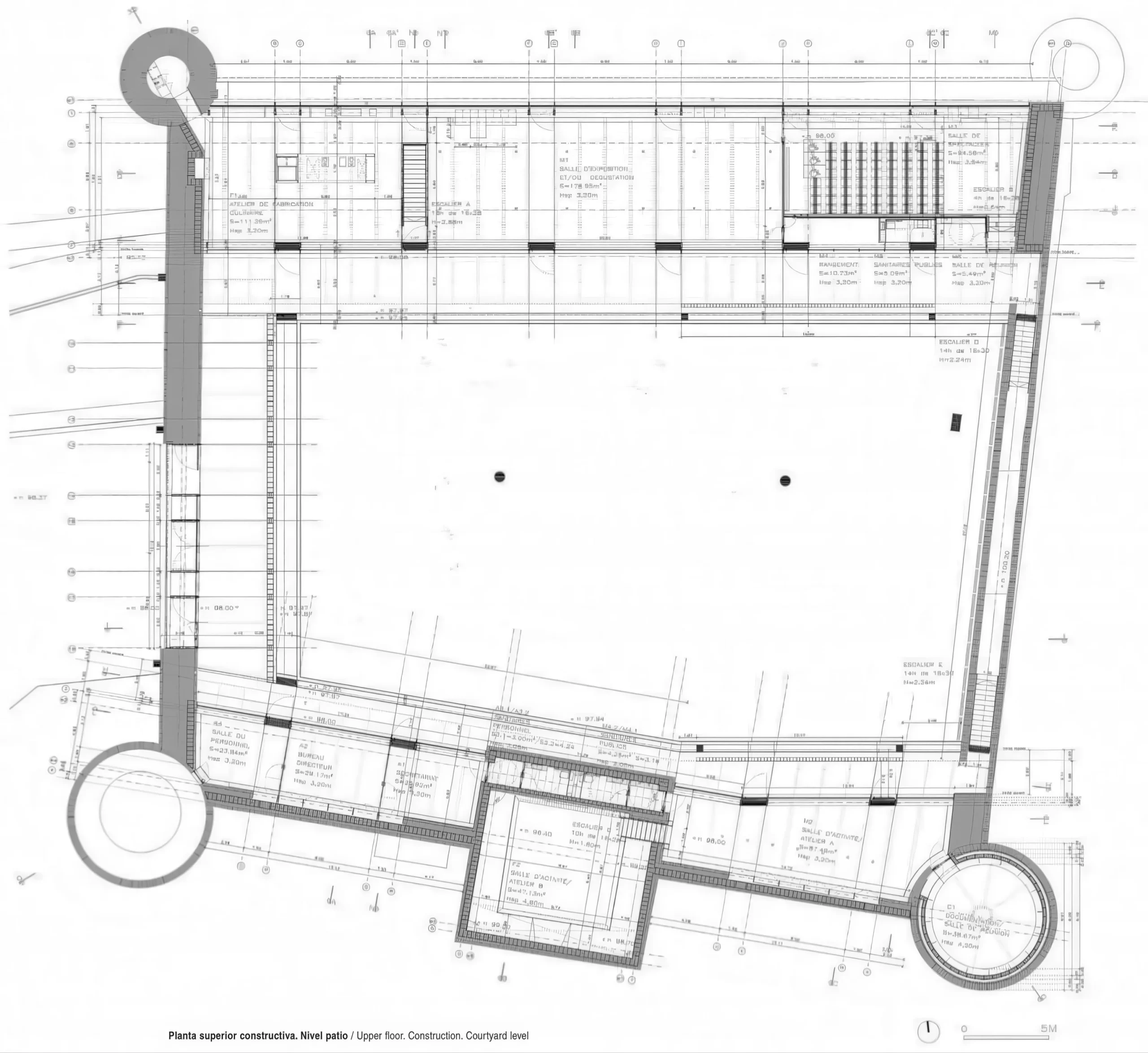
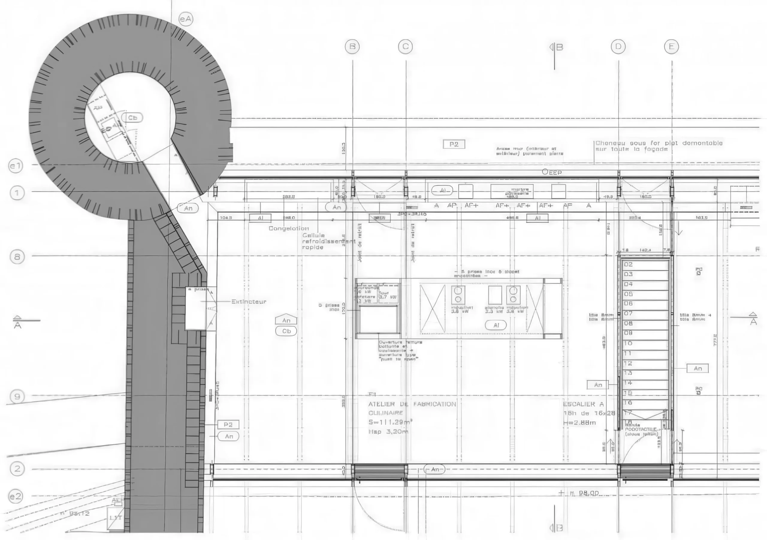
艺术烹饪中心 / La Cuisine Art Centre | RCR 建筑事务所 RCR 建筑事务所|RCR Arquitectes • 2025-11-19 上午8:50 • 公共建筑设计, 建筑师设计, 建筑设计, 文化建筑设计 艺术烹饪中心由 RCR 建筑事务所设计,位于法国纳雅克,通过修复城堡遗址并植入烹饪主题文化功能,以”嫁接建筑”理念重新激活历史空间,创造新旧共生的独特文化场所。 设计: RCR 建筑事务所|RCR Arquitectes 类型: 文化建筑设计 功能: 文化中心 风格: 当代建筑 材料: 混凝土 钢材 玻璃 砖材 尺度: 中型建筑 地点:纳雅克 时间: 2018年 项目概述 艺术烹饪中心位于法国纳雅克,是在一座中世纪城堡遗址上改造而成的文化建筑。项目包含展览空间、烹饪工作坊、剧场、行政办公等功能,通过修复与新建相结合的方式,将历史遗迹转化为当代文化场所。 设计理念 RCR 建筑事务所采用”嫁接建筑”的设计理念,强调新旧元素之间的坦诚对话。设计不是简单地并置或回避历史遗迹,而是让新建部分与遗址共同存在、相互成就,创造出既尊重历史又面向未来的建筑景观。 空间与功能 项目围绕城堡庭院组织空间,入口通过原有门廊进入。东侧设置厨房、展览厅和放映厅,西侧布置艺术家工作室、儿童工作坊和行政区域。庭院作为核心空间,既连接各功能区,又可举办节庆活动,形成视线交汇与空间流动的体验。 材料与技术 设计保留城堡原有的石材墙体与圆形塔楼,新建部分采用钢材与玻璃等现代材料,形成材质对比。结构上巧妙整合原有遗址,通过精确的构造节点实现新旧建筑的有机结合,展现精湛的施工工艺。 项目特色与启发 艺术烹饪中心展示了历史建筑改造的创新路径,为建筑师在处理遗址保护与功能更新时提供了重要参考。项目证明,通过恰当的介入策略,历史遗迹可以焕发新的生命力,成为社区文化活动的活跃场所。 设计团队 RCR 建筑事务所由拉斐尔·阿兰达、卡梅·皮格姆和拉蒙·比拉尔塔于1988年创立,以对场地敏感性和材料真实性的深刻理解著称。该团队擅长将建筑融入景观,创造与环境和历史对话的空间作品,并于2017年获得普利兹克建筑奖。 项目概述 艺术烹饪中心位于法国纳雅克,是在一座中世纪城堡遗址上改造而成的文化建筑。项目包含展览空间、烹饪工作坊、剧场、行政办公等功能,通过修复与新建相结合的方式,将历史遗迹转化为当代文化场所。 设计理念 RCR 建筑事务所采用”嫁接建筑”的设计理念,强调新旧元素之间的坦诚对话。设计不是简单地并置或回避历史遗迹,而是让新建部分与遗址共同存在、相互成就,创造出既尊重历史又面向未来的建筑景观。 空间与功能 项目围绕城堡庭院组织空间,入口通过原有门廊进入。东侧设置厨房、展览厅和放映厅,西侧布置艺术家工作室、儿童工作坊和行政区域。庭院作为核心空间,既连接各功能区,又可举办节庆活动,形成视线交汇与空间流动的体验。 材料与技术 设计保留城堡原有的石材墙体与圆形塔楼,新建部分采用钢材与玻璃等现代材料,形成材质对比。结构上巧妙整合原有遗址,通过精确的构造节点实现新旧建筑的有机结合,展现精湛的施工工艺。 项目特色与启发 艺术烹饪中心展示了历史建筑改造的创新路径,为建筑师在处理遗址保护与功能更新时提供了重要参考。项目证明,通过恰当的介入策略,历史遗迹可以焕发新的生命力,成为社区文化活动的活跃场所。 设计团队 RCR 建筑事务所由拉斐尔·阿兰达、卡梅·皮格姆和拉蒙·比拉尔塔于1988年创立,以对场地敏感性和材料真实性的深刻理解著称。该团队擅长将建筑融入景观,创造与环境和历史对话的空间作品,并于2017年获得普利兹克建筑奖。 本文来自 © RCR 建筑事务所|RCR Arquitectes, 发布于 © 建筑学院官方网站。 未经授权,禁止转载或摘编。 编辑版本版权归 © 建筑学院官方网站 所有, 设计、图纸及照片版权归设计方 © RCR 建筑事务所|RCR Arquitectes ↗ 所有。 查看作者在建筑学院发布的更多作品: RCR 建筑事务所|RCR Arquitectes @ 建筑学院官方网站 La Cuisine Art CentreRCR Arquitectes城堡修复项目文化建筑改造 RCR 建筑事务所|RCR Arquitectes事务所 & 设计师 下载原图 收藏 0 关于作者 RCR 建筑事务所|RCR Arquitectes事务所 & 设计师 关注私信 14 文章 0 评论 0 粉丝 RCR建筑事务所由拉斐尔·阿兰达、卡莫·皮格姆和拉蒙·比拉尔塔于1988年在西班牙奥洛特创立。他们于2017年共同荣获普利兹克建筑奖,其作品以根植本土、心向世界而闻名。事务所擅长运用耐候钢、玻璃等现代材料,将建筑与自然景观深度融合,创造出充满诗意与永恒感的空间。其代表作包括法国苏拉吉博物馆、里拉剧院户外空间等。 Salgenreute 教堂 / Salgenreute Chapel | 贝尔纳多·巴德尔|Bernardo Bader 上一篇 2025-11-19 上午8:50 太平洋新天地观光厅 / Wutopia Lab 下一篇 2025-11-19 上午9:00 猜你喜欢 波格乔·高洛威酒厂 Poggio Golo Winery | MARKLEE 建筑事务所 2025-11-02 公共建筑设计 Art Collection Siedle / COLECCION DE ARTE SIEDLE | 布兰德胡伯建筑事务所|Brandlhuber 2025-12-25 公共建筑设计 室内游泳池在塔拉德尔 Indoor Pool in Taradell | RCR 建筑事务所|RCR Arquitectes 2025-10-30 公共建筑设计 梅诺卡的Son Parc住宅 / Son Parc House in Menorca | RCR 建筑事务所|RCR Arquitectes 2025-11-19 公共建筑设计 霍夫海德陵园 / Crematorium Hofheide | RCR 建筑事务所 2025-11-02 公共建筑设计 塞维利亚文化中心和教室 / Cultural Centre and Classrooms in Ceuta | 托尼·希罗内斯|Toni Gironès 2025-11-07 公共建筑设计 发表回复 请登录后评论...登录后才能评论 提交