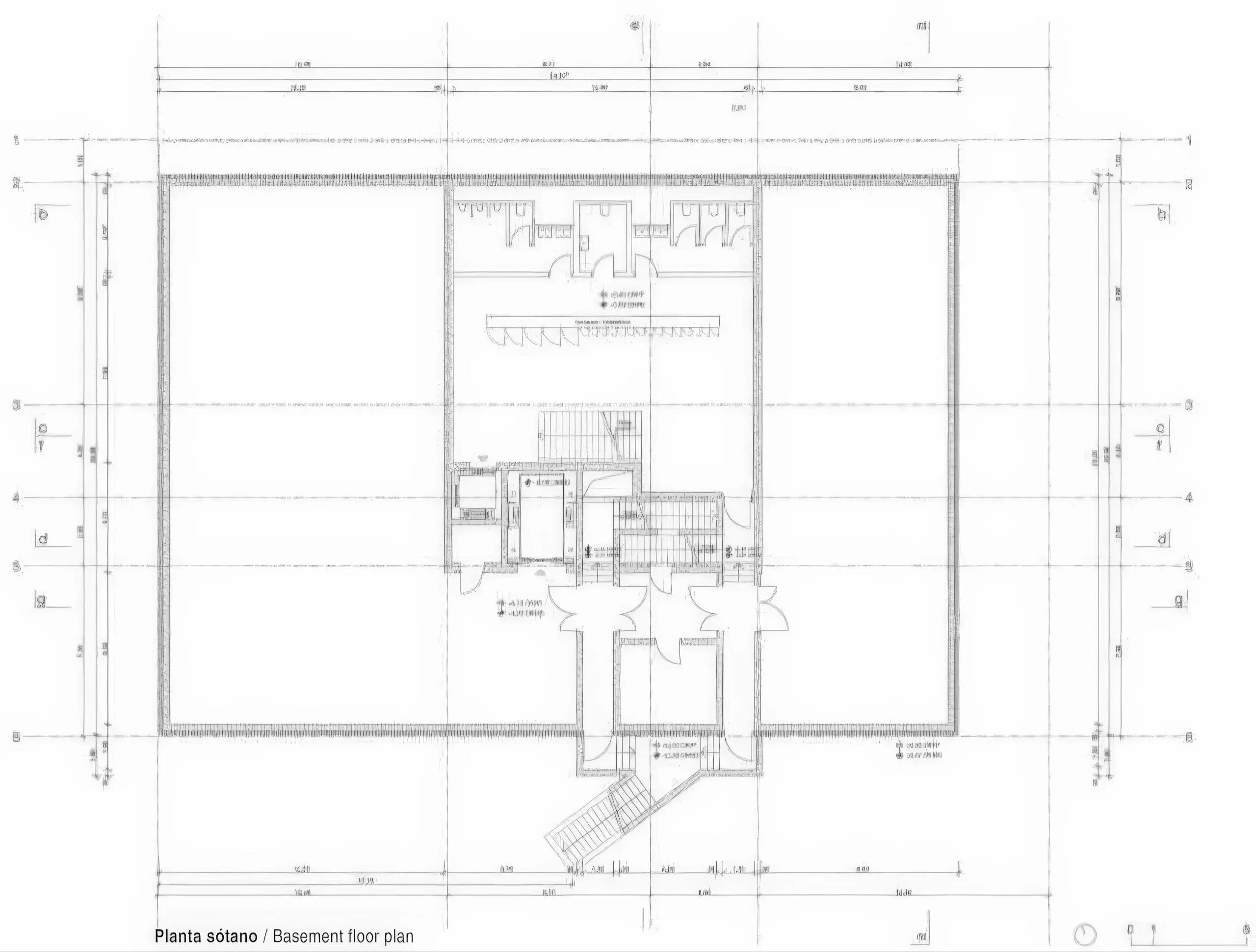
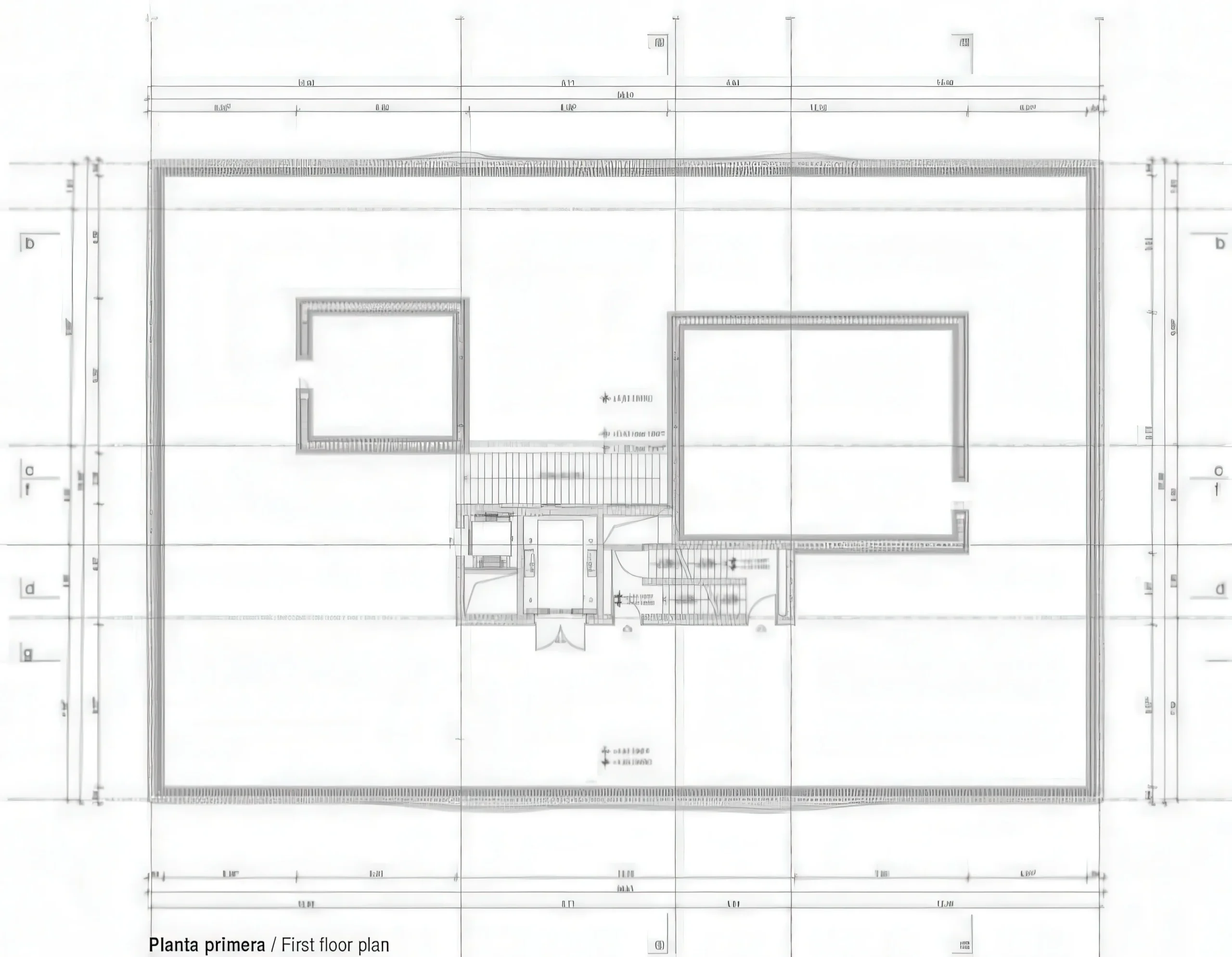
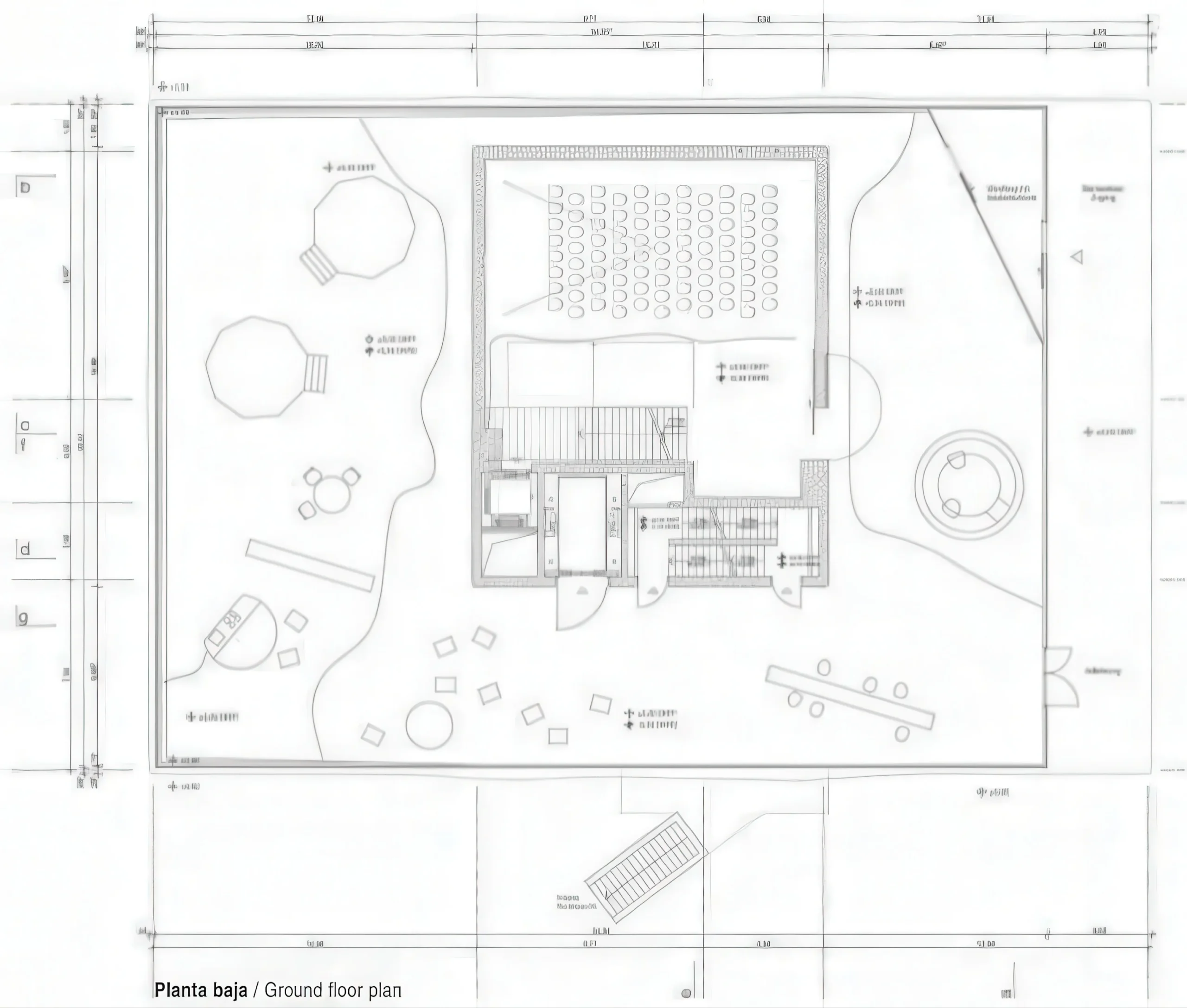
Art Collection Siedle / COLECCION DE ARTE SIEDLE | 布兰德胡伯建筑事务所|Brandlhuber 布兰德胡伯建筑事务所|Brandlhuber • 2025-12-25 上午11:45 • 公共建筑设计, 建筑师, 建筑设计, 文化建筑设计 Art Collection Siedle 艺术收藏馆位于德国黑森林地区的富特旺根,由布兰德胡伯建筑事务所设计。该项目通过创新的混凝土浇筑技术,将废弃建筑的木瓦纹理永久印刻在新建筑核心中,创造独特的艺术展示空间,同时延续场地历史记忆。 设计: 布兰德胡伯建筑事务所|Brandlhuber 类型: 文化建筑设计 功能: 美术馆 风格: 当代建筑 材料: 混凝土 木材 玻璃 尺度: 中型建筑 地点:富特旺根 时间: 2014年 项目概述 Art Collection Siedle 艺术收藏馆位于德国黑森林地区的富特旺根,由布兰德胡伯建筑事务所设计。该项目总尺寸为34.50米×25.40米,包含800平方米展览空间,采用混凝土与玻璃结构,设计始于2014年,旨在为霍斯特与加布里埃尔·西德尔艺术基金会提供永久收藏展示场所。 设计理念 布兰德胡伯建筑事务所的设计理念源于对场地历史与家族传承的深度回应。项目巧妙地将废弃的木质瓦片房屋作为混凝土浇筑模板,使历史建筑的纹理永久烙印在新建筑核心中。这种设计策略不仅延续了西德尔家族从钟表制造到通信技术的产业变迁,更通过建筑语言将不同时代的历史脉络融合于单一艺术展示空间。 空间与功能 Art Collection Siedle 艺术收藏馆采用经典的现代主义抬升地面层设计。透明底层空间无隔断划分,提供最大灵活性,可作为门厅、活动厅、商店或展览区使用。上部体量悬挑13米,容纳私人艺术收藏的公共展示空间,精确复制原有收藏室布局,既作为展览分区又承担结构传力功能。 材料与技术 建筑主要采用混凝土与玻璃材料,核心技术创新在于利用废弃建筑的木瓦墙面作为混凝土浇筑模板。结构设计采用非常规混凝土配置,通过外部加厚而非增加钢筋来应对结构应力,使受力状态在建筑形态中直观呈现。保温玻璃、泡沫玻璃隔热层等材料确保建筑的环境性能。 项目特色与启发 Art Collection Siedle 艺术收藏馆的独特价值在于将建筑工艺与历史记忆完美融合。项目展示了如何通过创新建造技术实现历史保护与当代设计的平衡,为文化建筑改造提供了新思路。布兰德胡伯建筑事务所在本项目中的结构可视化策略,对建筑师在处理历史语境与现代功能结合时具有重要参考意义。 设计团队 布兰德胡伯建筑事务所以其创新的建筑方法和对社会政治议题的关注而闻名。事务所在住宅、文化建筑领域具有丰富经验,擅长通过建筑表达历史与当代的对话。在Art Collection Siedle项目中,团队展现了将传统工艺与现代技术融合的独特设计能力。 项目概述 Art Collection Siedle 艺术收藏馆位于德国黑森林地区的富特旺根,由布兰德胡伯建筑事务所设计。该项目总尺寸为34.50米×25.40米,包含800平方米展览空间,采用混凝土与玻璃结构,设计始于2014年,旨在为霍斯特与加布里埃尔·西德尔艺术基金会提供永久收藏展示场所。 设计理念 布兰德胡伯建筑事务所的设计理念源于对场地历史与家族传承的深度回应。项目巧妙地将废弃的木质瓦片房屋作为混凝土浇筑模板,使历史建筑的纹理永久烙印在新建筑核心中。这种设计策略不仅延续了西德尔家族从钟表制造到通信技术的产业变迁,更通过建筑语言将不同时代的历史脉络融合于单一艺术展示空间。 空间与功能 Art Collection Siedle 艺术收藏馆采用经典的现代主义抬升地面层设计。透明底层空间无隔断划分,提供最大灵活性,可作为门厅、活动厅、商店或展览区使用。上部体量悬挑13米,容纳私人艺术收藏的公共展示空间,精确复制原有收藏室布局,既作为展览分区又承担结构传力功能。 材料与技术 建筑主要采用混凝土与玻璃材料,核心技术创新在于利用废弃建筑的木瓦墙面作为混凝土浇筑模板。结构设计采用非常规混凝土配置,通过外部加厚而非增加钢筋来应对结构应力,使受力状态在建筑形态中直观呈现。保温玻璃、泡沫玻璃隔热层等材料确保建筑的环境性能。 项目特色与启发 Art Collection Siedle 艺术收藏馆的独特价值在于将建筑工艺与历史记忆完美融合。项目展示了如何通过创新建造技术实现历史保护与当代设计的平衡,为文化建筑改造提供了新思路。布兰德胡伯建筑事务所在本项目中的结构可视化策略,对建筑师在处理历史语境与现代功能结合时具有重要参考意义。 设计团队 布兰德胡伯建筑事务所以其创新的建筑方法和对社会政治议题的关注而闻名。事务所在住宅、文化建筑领域具有丰富经验,擅长通过建筑表达历史与当代的对话。在Art Collection Siedle项目中,团队展现了将传统工艺与现代技术融合的独特设计能力。 本文来自 © 布兰德胡伯建筑事务所|Brandlhuber, 发布于 © 建筑学院官方网站。 未经授权,禁止转载或摘编。 编辑版本版权归 © 建筑学院官方网站 所有, 设计、图纸及照片版权归设计方 © 布兰德胡伯建筑事务所|Brandlhuber ↗ 所有。 查看作者在建筑学院发布的更多作品: 布兰德胡伯建筑事务所|Brandlhuber @ 建筑学院官方网站 Art Collection Siedle布兰德胡伯建筑事务所文化建筑改造艺术收藏馆设计 布兰德胡伯建筑事务所|Brandlhuber事务所 & 设计师 下载原图 收藏 0 关于作者 布兰德胡伯建筑事务所|Brandlhuber事务所 & 设计师 关注私信 8 文章 0 评论 0 粉丝 布兰德胡伯建筑事务所(Brandlhuber+)由阿尔诺·布兰德胡伯(Arno Brandlhuber)于2006年在柏林创立。事务所以其协作性、研究驱动的实践而闻名,工作涵盖建筑、研究项目、展览、出版物及政治介入。其标志性项目“Antivilla”(由废弃内衣工厂改造而成)体现了其对现有建筑改造、可持续性及成本效益的独特探索,并擅长运用混凝土等材料创造灵活、开放的空间。 帕拉蒂之家 / House in Paraty | Estúdio Gustavo Utrabo 上一篇 2025-12-25 上午9:46 圣卢西亚路公寓 / Apartments on Rua da Senhora da Luz | 德·莫拉建筑事务所 下一篇 2025-12-26 下午7:44 猜你喜欢 科隆壁板公寓和办公楼 / Kölner Brett, Apartment and Office Building | 布兰德胡伯建筑事务所|Brandlhuber 2025-11-09 住宅室内设计 哥伦比亚艺术 Columbian Art | 斯米里扬·拉迪奇|Smiljan Radić 2025-12-08 公共建筑设计 尼安德特人博物馆 / Neanderthal Museum | 布兰德胡伯建筑事务所|Brandlhuber 2025-11-05 公共建筑设计 论坛博物馆岛 Forum Museumsinsel | 大卫·奇珀菲尔德建筑事务所|David Chipperfield 2025-11-04 公共建筑设计 Art Collection Siedle / COLECCION DE ARTE SIEDLE | 布兰德胡伯建筑事务所|Brandlhuber 2025-11-08 公共建筑设计 格塞尔斯特大街,工作室与庭院式住宅 Geisselstrasse, Atelier and Courtyard House | 布兰德胡伯建筑事务所|Brandlhuber 2025-10-30 公共建筑设计 发表回复 请登录后评论...登录后才能评论 提交