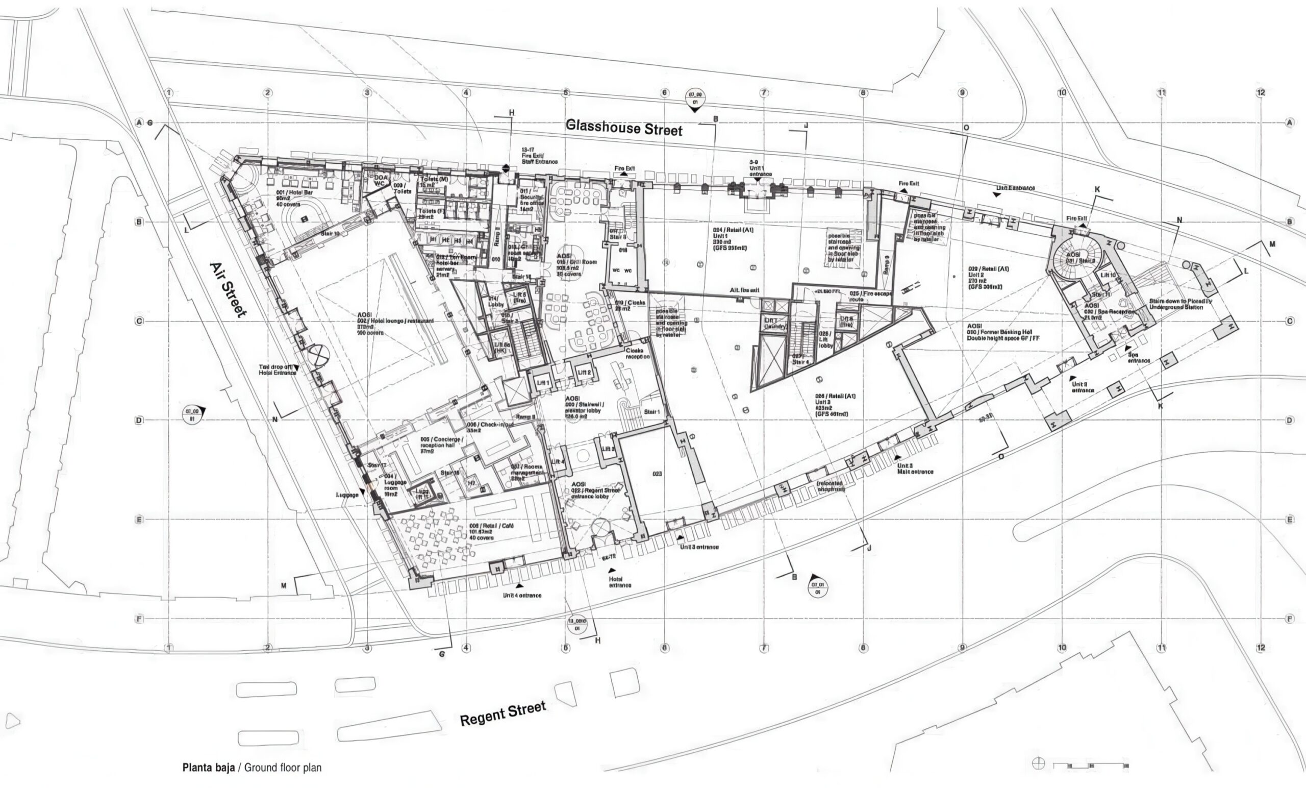
皇家咖啡馆酒店 Hotel Café Royal | 大卫·奇珀菲尔德建筑事务所|David Chipperfield David Chipperfield Architects • 2025-11-08 上午8:50 • 商业与综合建筑, 商业空间设计, 室内设计, 建筑设计, 酒店建筑设计, 酒店空间设计 皇家咖啡馆酒店位于伦敦皮卡迪利广场,由大卫·奇珀菲尔德建筑事务所设计。项目将三座二级保护历史建筑改造为豪华酒店,包含166间客房、5间套房及水疗中心。设计通过重新诠释历史材料与装饰元素,实现新旧建筑的和谐融合,展现了精湛的建筑修复与更新技艺。 设计: 大卫·奇珀菲尔德建筑事务所|David Chipperfield 类型: 酒店空间设计 功能: 酒店 风格: 现代主义 材料: 木材 玻璃 石材 金属板 尺度: 微型建筑与装置 地点:伦敦 时间: 2017年 项目简介 皇家咖啡馆酒店位于英国伦敦皮卡迪利广场,是一座由三座二级保护历史建筑改造而成的豪华酒店。项目建筑面积未公开,设计团队为大卫·奇珀菲尔德建筑事务所,项目于近年完成改造。 设计理念 设计团队与历史建筑修复专家合作,采用最小干预策略,通过重新诠释历史材料、装饰细节和色彩方案,实现新旧建筑的有机融合。设计尊重原有建筑特征,同时注入现代功能需求。 空间与功能 酒店保留摄政街主入口,增设艾尔街车辆入口。公共区域包括酒吧、餐厅和咖啡馆分布于底层至二层,五层以上设置166间客房和5间豪华套房。地下两层设有灵感源自古典浴场的18米长泳池水疗中心。 材料与技术 项目广泛使用Giallo Sienna大理石、橡木等传统材料,以现代手法重新演绎。设计面临复杂场地条件,包括地铁线路和繁忙交通,采用精密结构解决方案确保历史建筑完整性。 设计团队 大卫·奇珀菲尔德建筑事务所是国际知名建筑设计机构,以精致细腻的设计语言和对历史文脉的尊重著称,在文化建筑、城市更新和酒店设计领域具有丰富经验。 项目简介 皇家咖啡馆酒店位于英国伦敦皮卡迪利广场,是一座由三座二级保护历史建筑改造而成的豪华酒店。项目建筑面积未公开,设计团队为大卫·奇珀菲尔德建筑事务所,项目于近年完成改造。 设计理念 设计团队与历史建筑修复专家合作,采用最小干预策略,通过重新诠释历史材料、装饰细节和色彩方案,实现新旧建筑的有机融合。设计尊重原有建筑特征,同时注入现代功能需求。 空间与功能 酒店保留摄政街主入口,增设艾尔街车辆入口。公共区域包括酒吧、餐厅和咖啡馆分布于底层至二层,五层以上设置166间客房和5间豪华套房。地下两层设有灵感源自古典浴场的18米长泳池水疗中心。 材料与技术 项目广泛使用Giallo Sienna大理石、橡木等传统材料,以现代手法重新演绎。设计面临复杂场地条件,包括地铁线路和繁忙交通,采用精密结构解决方案确保历史建筑完整性。 设计团队 大卫·奇珀菲尔德建筑事务所是国际知名建筑设计机构,以精致细腻的设计语言和对历史文脉的尊重著称,在文化建筑、城市更新和酒店设计领域具有丰富经验。 本文来自 © David Chipperfield Architects, 发布于 © 建筑学院官方网站。 未经授权,禁止转载或摘编。 编辑版本版权归 © 建筑学院官方网站 所有, 设计、图纸及照片版权归设计方 © David Chipperfield Architects ↗ 所有。 查看作者在建筑学院发布的更多作品: David Chipperfield Architects @ 建筑学院官方网站 伦敦建筑历史建筑改造大卫·奇珀菲尔德皇家咖啡馆酒店豪华酒店设计 David Chipperfield Architects事务所 & 设计师 下载原图 收藏 0 关于作者 David Chipperfield Architects事务所 & 设计师 关注私信 2 文章 0 评论 0 粉丝 西安国际足球中心 / 扎哈事务所新作 上一篇 2025-11-07 下午10:54 哥本哈根大学新建建筑 New Buildings for the University of Gothenburg | 谭姆与维德高德建筑事务所|Tham & Videgård 下一篇 2025-11-09 上午8:50 猜你喜欢 Turner Contemporary | 大卫·奇珀菲尔德建筑事务所|David Chipperfield 2025-11-27 公共建筑设计 纽约街艺术博物馆 Newport Street Gallery | 卡鲁索·圣约翰建筑事务所|Caruso St John 2025-12-02 公共建筑设计 弗雷纳尔德萨米酒店 Hotel in Fregenal de la Sierra | MGM 建筑师事务所|MGM 2025-10-31 公共建筑设计 Obernau村酒店 / Guesthouse in Obernau | 吉翁·A·卡米纳达|Gion A. Caminada 2026-03-23 商业与综合建筑 奥斯特鲁姆的套房和别墅 / Suites and Villas, Estremoz | 阿尔瓦罗·西扎|Álvaro Siza 2026-03-01 商业与综合建筑 维勒花园住宅区 De Vere Gardens Residential | 大卫·奇珀菲尔德建筑事务所|David Chipperfield 2025-11-18 公共建筑设计 发表回复 请登录后评论...登录后才能评论 提交