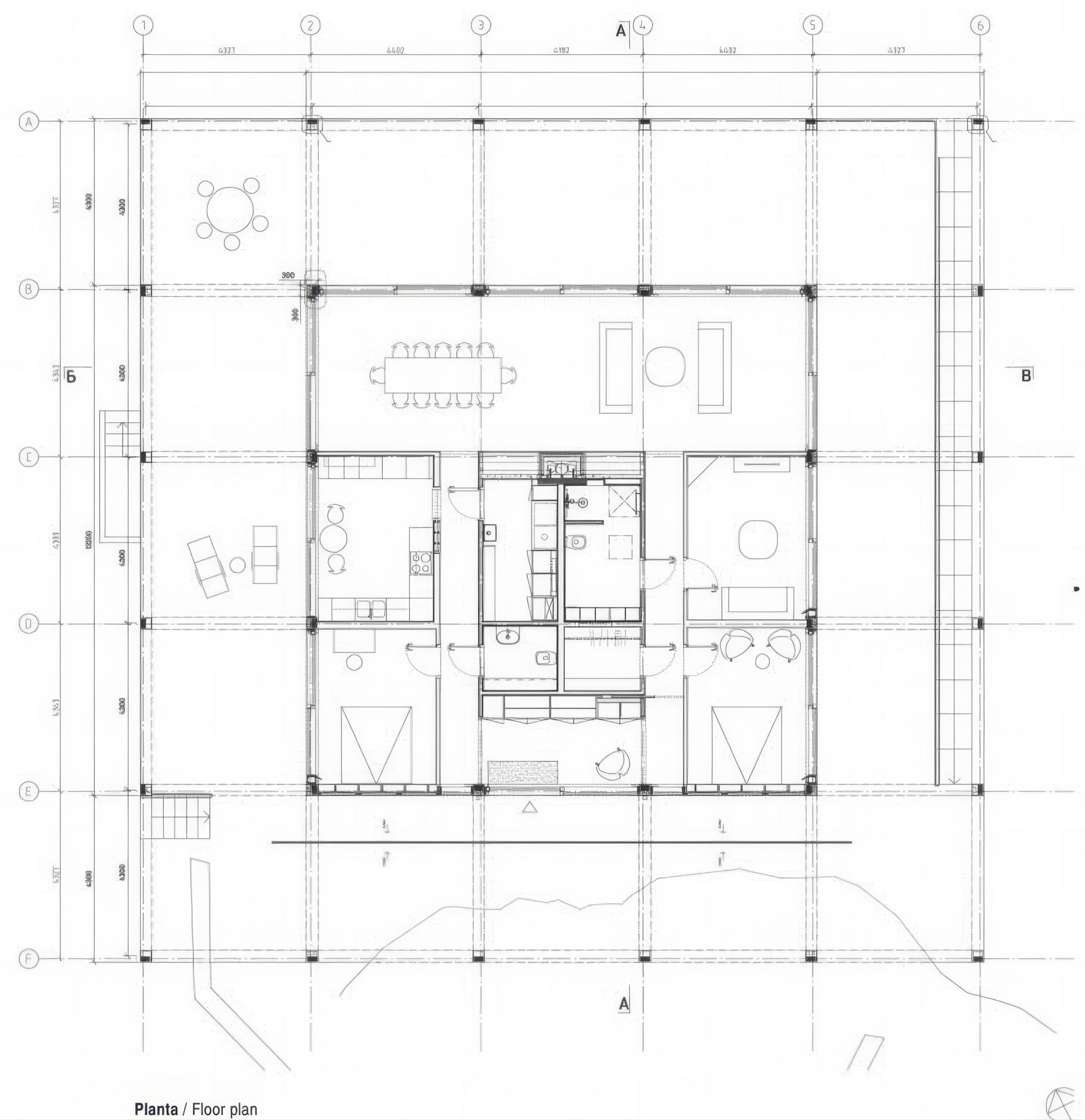
海岛住宅 Island Houses | 谭姆与维德高德建筑事务所|Tham & Videgård 谭姆与维德高德建筑事务所|Tham & Videgård • 2025-11-12 下午12:50 • 公共建筑设计, 建筑师设计, 建筑设计, 文化建筑设计 海岛住宅 Island Houses 是位于瑞典西海岸岛屿上的两栋独立住宅,由谭姆与维德高德建筑事务所设计。项目巧妙利用陡峭山地地形,通过当地石材建造梯田平台,轻盈的木结构框架与环绕式凉廊空间,创造出与自然环境完美融合的居住体验,享有开阔的海景视野。 设计: 谭姆与维德高德建筑事务所|Tham & Videgård 类型: 文化建筑设计 功能: 独立住宅 风格: 地域主义 材料: 混凝土 木材 石材 尺度: 小型建筑 地点:瑞典 时间: 2010年 项目简介 海岛住宅 Island Houses 位于瑞典西海岸岛屿的陡峭山坡上,包含两栋独立住宅,分别为父母和成年子女设计,每栋均设有客房。项目建筑面积约300平方米,设计于2010年代,建成于2018年。 设计理念 设计团队以最小化环境干预为核心理念,通过梯田式平台解决陡峭地形挑战,延续当地渔民和船长传统建筑技艺,使用当地石材建造基础墙体,实现建筑与岩石地貌的有机融合。 空间与功能 两栋住宅采用相似布局,轻盈的木结构框架定义建筑轮廓,大型玻璃推拉门分隔室内与环绕四面立面的连续凉廊空间。功能分区清晰,包含起居区、卧室区和客房区,充分利用海景视野。 材料与技术 项目采用当地石材建造基础墙体和梯田平台,木结构框架支撑建筑主体,混凝土平台与石材墙体形成坚实基座。设计尊重自然环境,仅添加必要台阶和石墙,其余地形保持原貌。 设计团队 谭姆与维德高德建筑事务所是瑞典知名建筑事务所,以对场地敏感的设计和材料创新运用著称,专注于住宅和文化建筑项目,擅长将建筑与自然环境完美结合。 项目简介 海岛住宅 Island Houses 位于瑞典西海岸岛屿的陡峭山坡上,包含两栋独立住宅,分别为父母和成年子女设计,每栋均设有客房。项目建筑面积约300平方米,设计于2010年代,建成于2018年。 设计理念 设计团队以最小化环境干预为核心理念,通过梯田式平台解决陡峭地形挑战,延续当地渔民和船长传统建筑技艺,使用当地石材建造基础墙体,实现建筑与岩石地貌的有机融合。 空间与功能 两栋住宅采用相似布局,轻盈的木结构框架定义建筑轮廓,大型玻璃推拉门分隔室内与环绕四面立面的连续凉廊空间。功能分区清晰,包含起居区、卧室区和客房区,充分利用海景视野。 材料与技术 项目采用当地石材建造基础墙体和梯田平台,木结构框架支撑建筑主体,混凝土平台与石材墙体形成坚实基座。设计尊重自然环境,仅添加必要台阶和石墙,其余地形保持原貌。 设计团队 谭姆与维德高德建筑事务所是瑞典知名建筑事务所,以对场地敏感的设计和材料创新运用著称,专注于住宅和文化建筑项目,擅长将建筑与自然环境完美结合。 本文来自 © 谭姆与维德高德建筑事务所|Tham & Videgård, 发布于 © 建筑学院官方网站。 未经授权,禁止转载或摘编。 编辑版本版权归 © 建筑学院官方网站 所有, 设计、图纸及照片版权归设计方 © 谭姆与维德高德建筑事务所|Tham & Videgård ↗ 所有。 查看作者在建筑学院发布的更多作品: 谭姆与维德高德建筑事务所|Tham & Videgård @ 建筑学院官方网站 海岛住宅独立住宅设计瑞典西海岸石材与木材谭姆与维德高德建筑事务所 谭姆与维德高德建筑事务所|Tham & Videgård事务所 & 设计师 下载原图 收藏 0 关于作者 谭姆与维德高德建筑事务所|Tham & Videgård事务所 & 设计师 关注私信 12 文章 0 评论 0 粉丝 谭姆与维德高德建筑事务所(Tham & Videgård Arkitekter)是成立于瑞典斯德哥尔摩的知名建筑事务所,由波勒·谭姆与马丁·维德高德于1999年创立。他们以其深刻的实践哲学著称,坚信“建筑必须被建造出来”以供体验与评估。其作品涵盖博物馆、学校及住宅,以独特的材料运用、清晰的形体表达以及对文脉的敏锐回应而闻名。代表作包括卡尔马艺术博物馆、镜立方树屋及瑞典皇家理工学院建筑学院等。 上野屋 / Townhouse in Asakusa | 长谷川豪建筑事务所 上一篇 2025-11-12 上午8:50 水网编织的未来聚落 | CROX闊合 下一篇 2025-11-12 下午12:59 猜你喜欢 圣皮埃德拉帕斯的房屋 / House in San Pedro de la Paz | Pezo Von Ellrichshausen 2026-02-03 住宅建筑设计 帕劳Solità岛Plegamans的住宅 / House in Palau Solità i Plegamans | HArquitectes 2026-02-12 住宅建筑设计 Bredören 住宅 / House in Bredören | Arrhov Frick 建筑事务所 2026-01-02 住宅建筑设计 洛杉矶四座房子 / FOUR HOUSES IN LOS HELECHOS | Taller Héctor Barroso 2026-02-18 住宅建筑设计 霍加根的房子 / House in Hovgarden | Arrhov Frick 2025-12-25 住宅建筑设计 House at the Bäumle / Vertical Living | 贝尔纳多·巴德尔|Bernardo Bader 2025-11-19 公共建筑设计 发表回复 请登录后评论...登录后才能评论 提交